← Calderdale Council

Status

Pending Consideration New housing
Received
12 Dec 2024
New homes
1

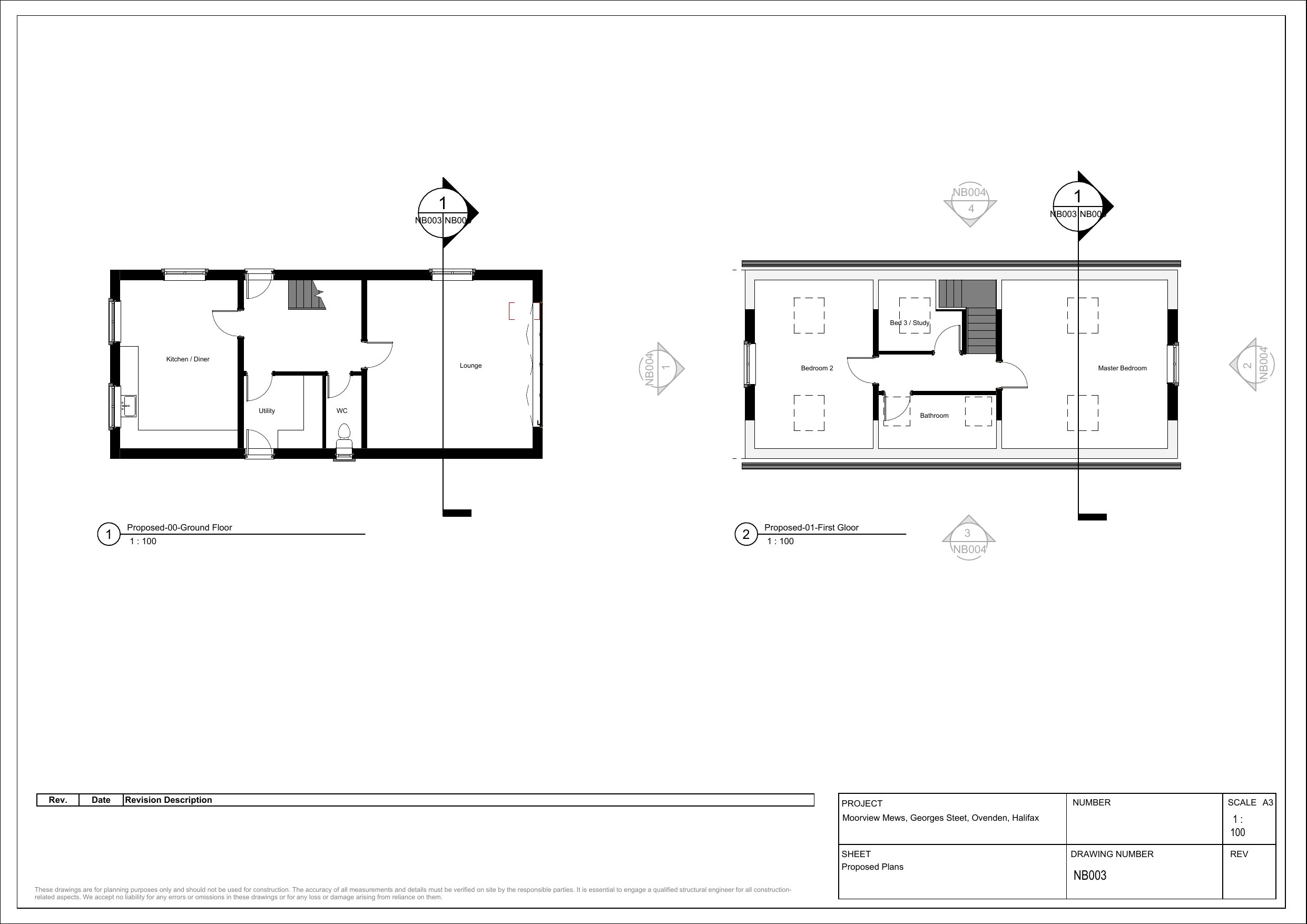
Full proposal

Construction of dormer bungalow (self Build).

Have your say

Your comment matters. Councils must consider every representation that raises material planning considerations.

Write a comment