← Calderdale Council

Status

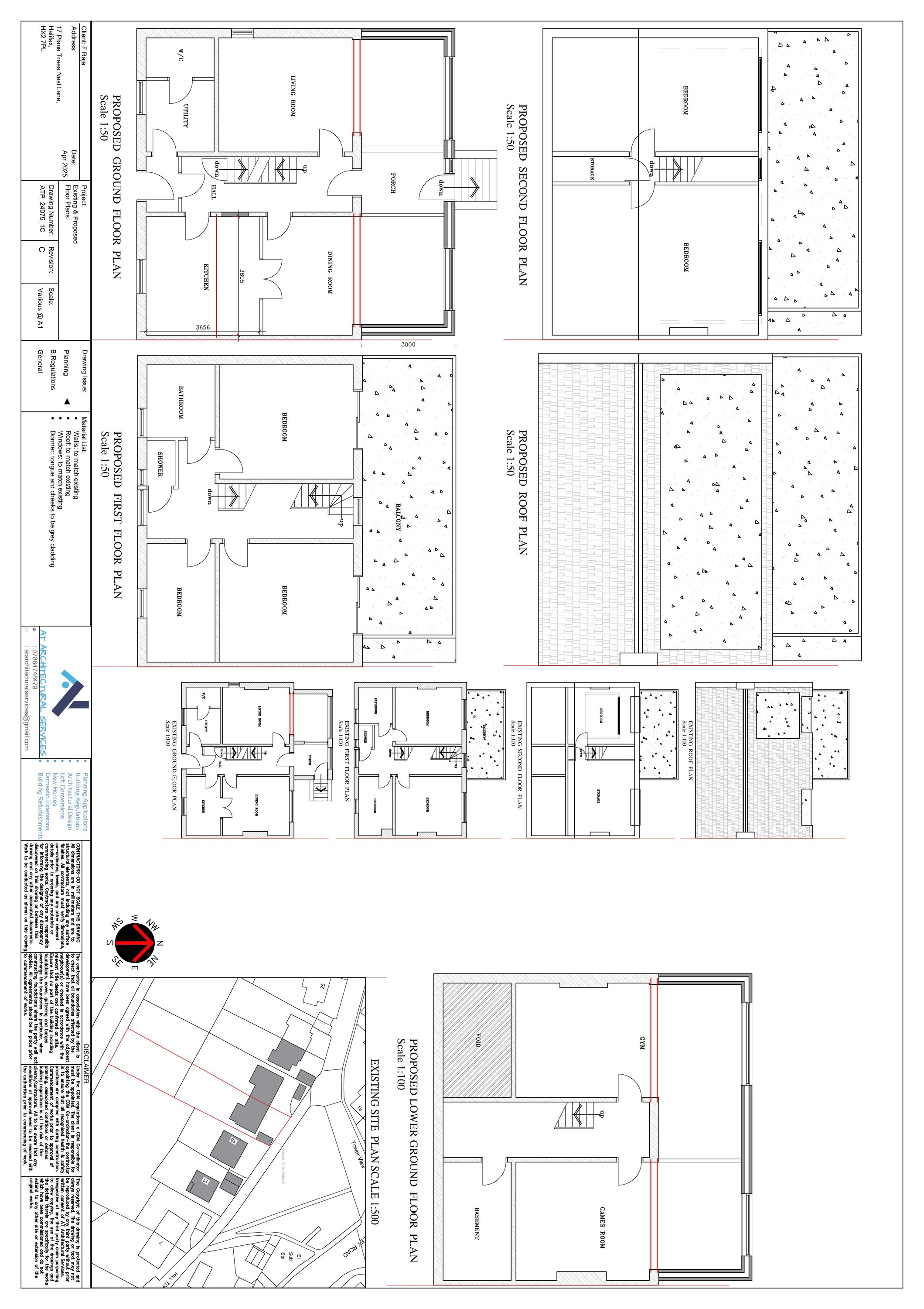
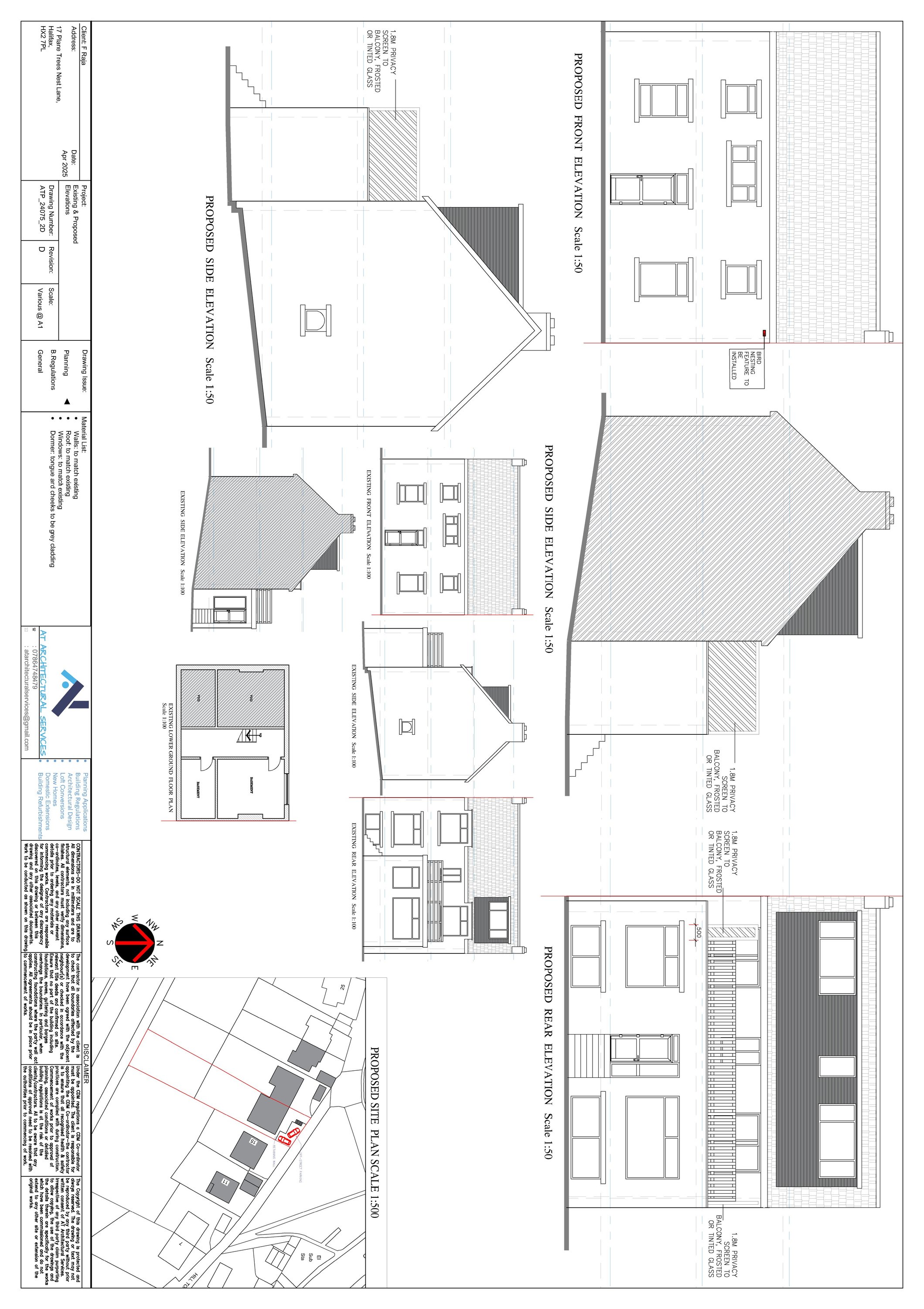
Permit House extension
Received
27 Dec 2024
New homes
0

Full proposal

Rear extension with roof garden, rear dormer, off street parking

Documents

Application Form
Archived · Original link
Consultee Comment
Archived · Original link
Consultee Comment
Archived · Original link
Decision Notice
Archived · Original link
Supporting Information
Archived · Original link
Drawing
Archived · Original link
Report
Archived · Original link
Supporting Information
Archived · Original link

Have your say

Your comment matters. Councils must consider every representation that raises material planning considerations.

Write a comment