Application
25/00008/FUL
Calderdale Council · IDOX
Status
Refuse
Received
06 Jan 2025
New dwellings
n/a
What you can do
Take Action
Make your voice heard. Authorities need to hear from people who support new homes.
Full Proposal
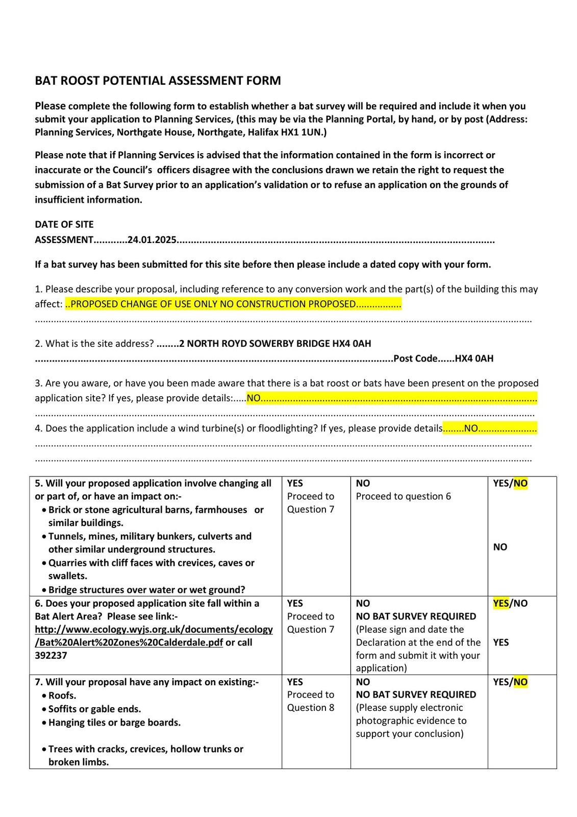
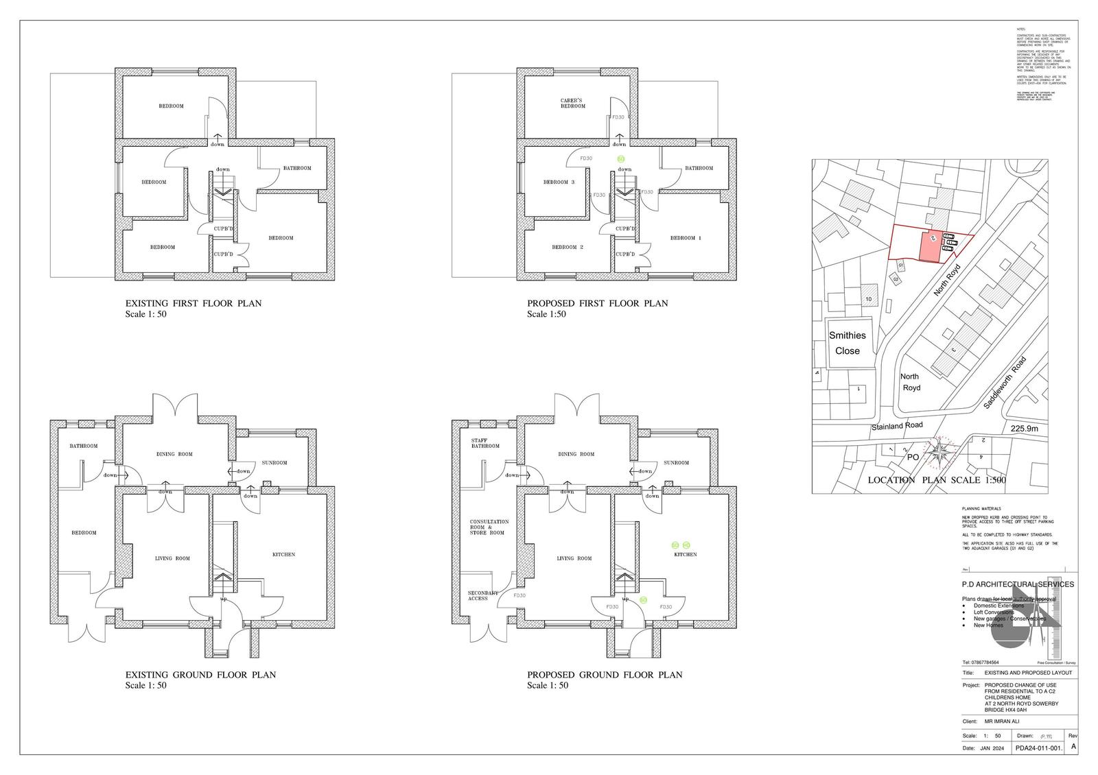
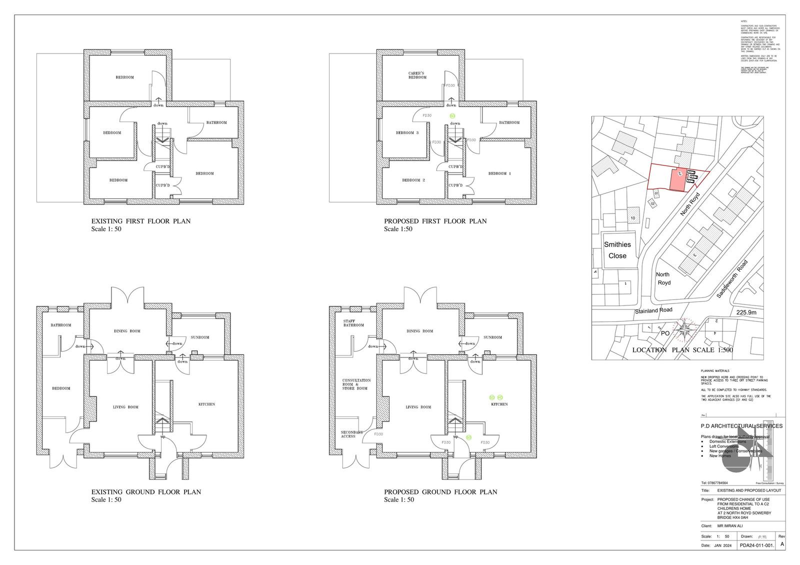
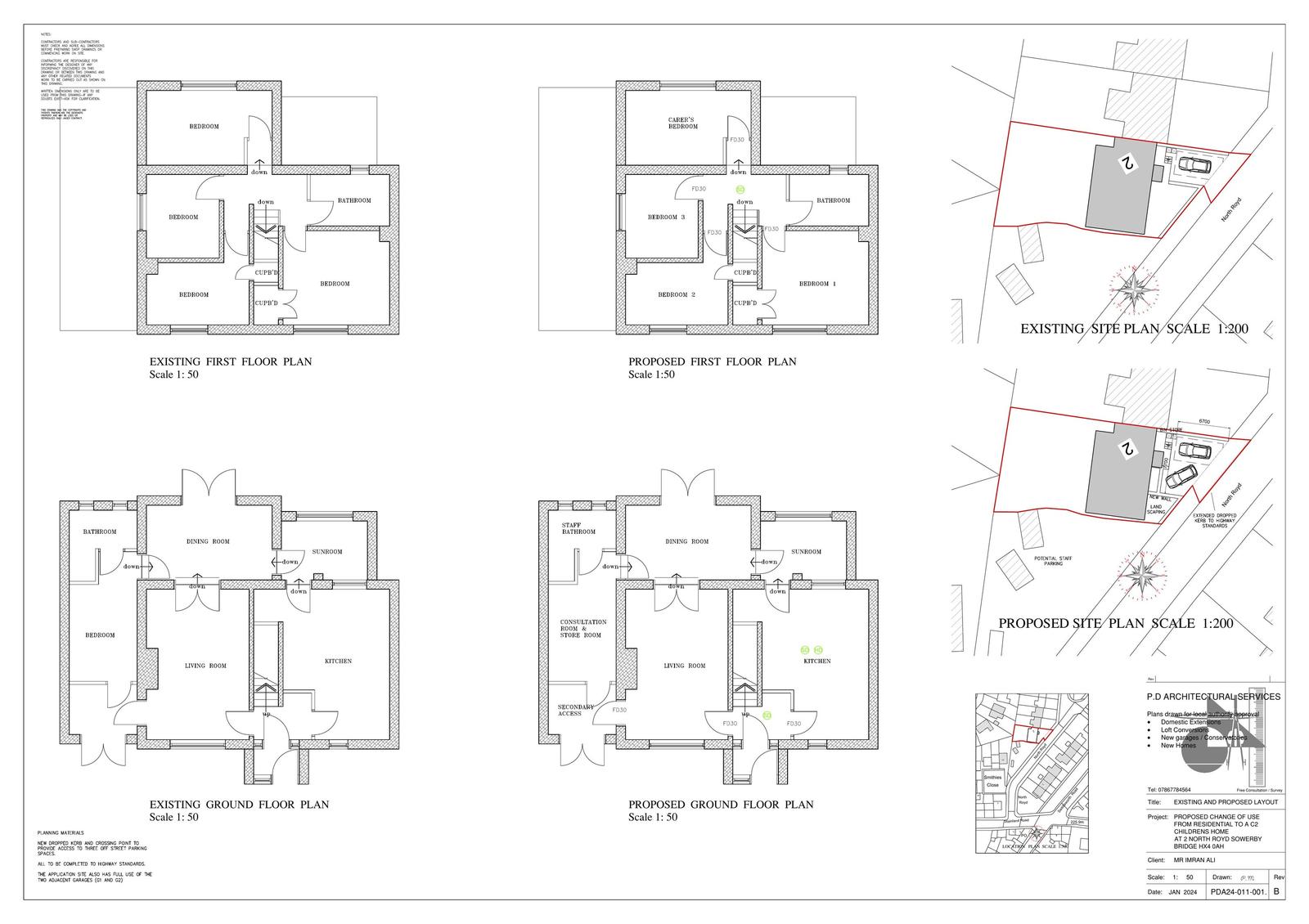
Change of use from Residential Dwelling to C2 Childrens' Home for 3 Children.
Detail pages
- View live detail on council site
- No archived detail page available.
Documents
APPLICATIONFORMREDACTED
Application Form
Not downloaded
· Council link
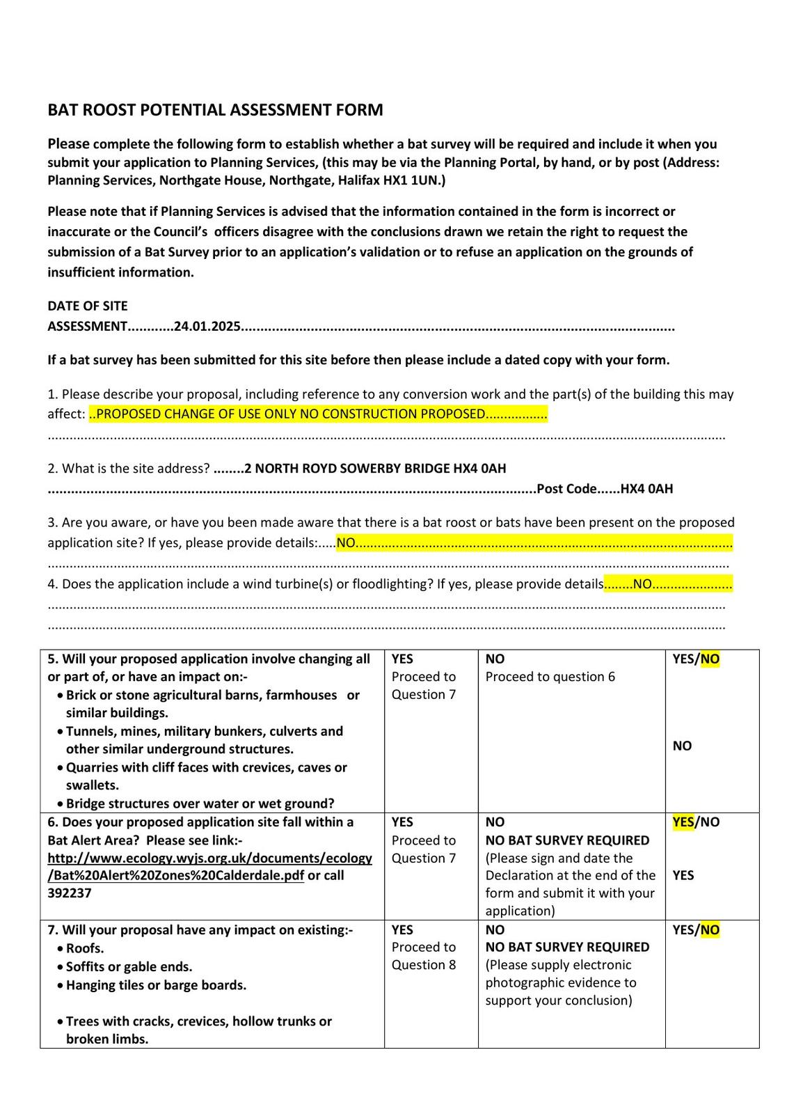
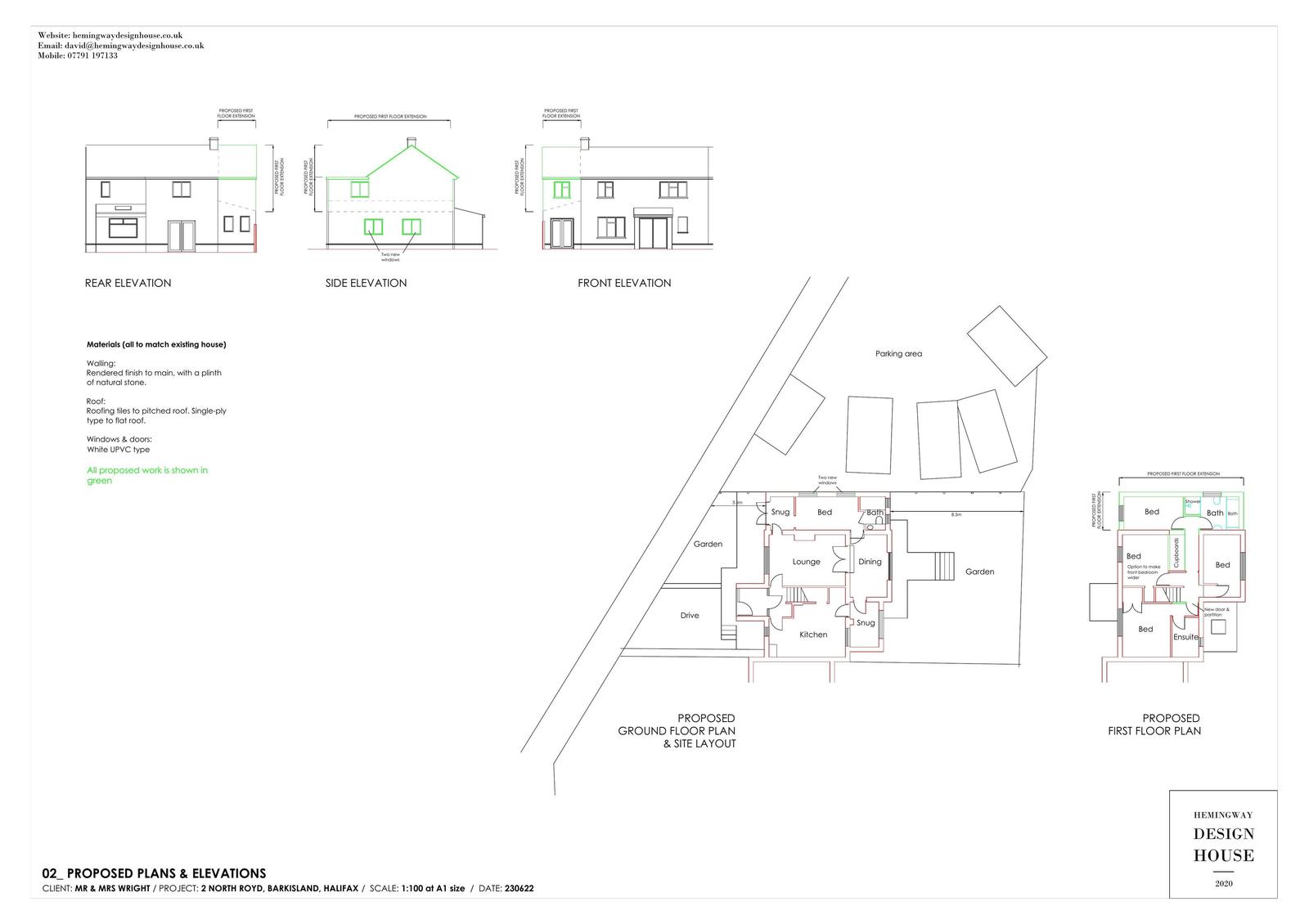
BAT ASSESSMENT FORM
Supporting Information
Not downloaded
· Council link
BAT FORM
Supporting Information
Not downloaded
· Council link
CONSULTEE COMMENT SUBMITTED ONLINE
Consultee Comment
Not downloaded
· Council link
CONSULTEE COMMENT SUBMITTED ONLINE
Consultee Comment
Not downloaded
· Council link
CONSULTEE COMMENT SUBMITTED ONLINE
Consultee Comment
Not downloaded
· Council link
Decision Notice
Decision Notice
Not downloaded
· Council link
DESIGN AND ACCESS STATEMENT
Supporting Information
Not downloaded
· Council link
Archived copy
· Council link
Archived copy
· Council link
FLOOD MAP FOR PLANNING
Supporting Information
Not downloaded
· Council link
FLOOD RISK ASSESSMENT
Supporting Information
Not downloaded
· Council link
FLOOD STATEMENT
Supporting Information
Not downloaded
· Council link
FLOOD STATEMENT - MAP
Supporting Information
Not downloaded
· Council link
LOCATION PLAN
Drawing
Not downloaded
· Council link
OBJECTION
Representations
Not downloaded
· Council link
OFFICER REPORT
Report
Not downloaded
· Council link
PHOTOGRAPH
Photograph
Not downloaded
· Council link
PHOTOGRAPHS
Photograph
Not downloaded
· Council link
PHOTOGRAPHS
Photograph
Not downloaded
· Council link
PHOTOS FROM OBJECTOR
Photograph
Not downloaded
· Council link
PROPOSED PLANS & ELEVATIONS
Drawing
Archived copy
· Council link
PSA RESULTS
Supporting Information
Not downloaded
· Council link
RESULTS
Supporting Information
Not downloaded
· Council link
REVISED PLANS SHOWING REVISED PARKING PLAN
Drawing
Not downloaded
· Council link
STATEMENT OF USE
Supporting Information
Not downloaded
· Council link