← Calderdale Council

Status

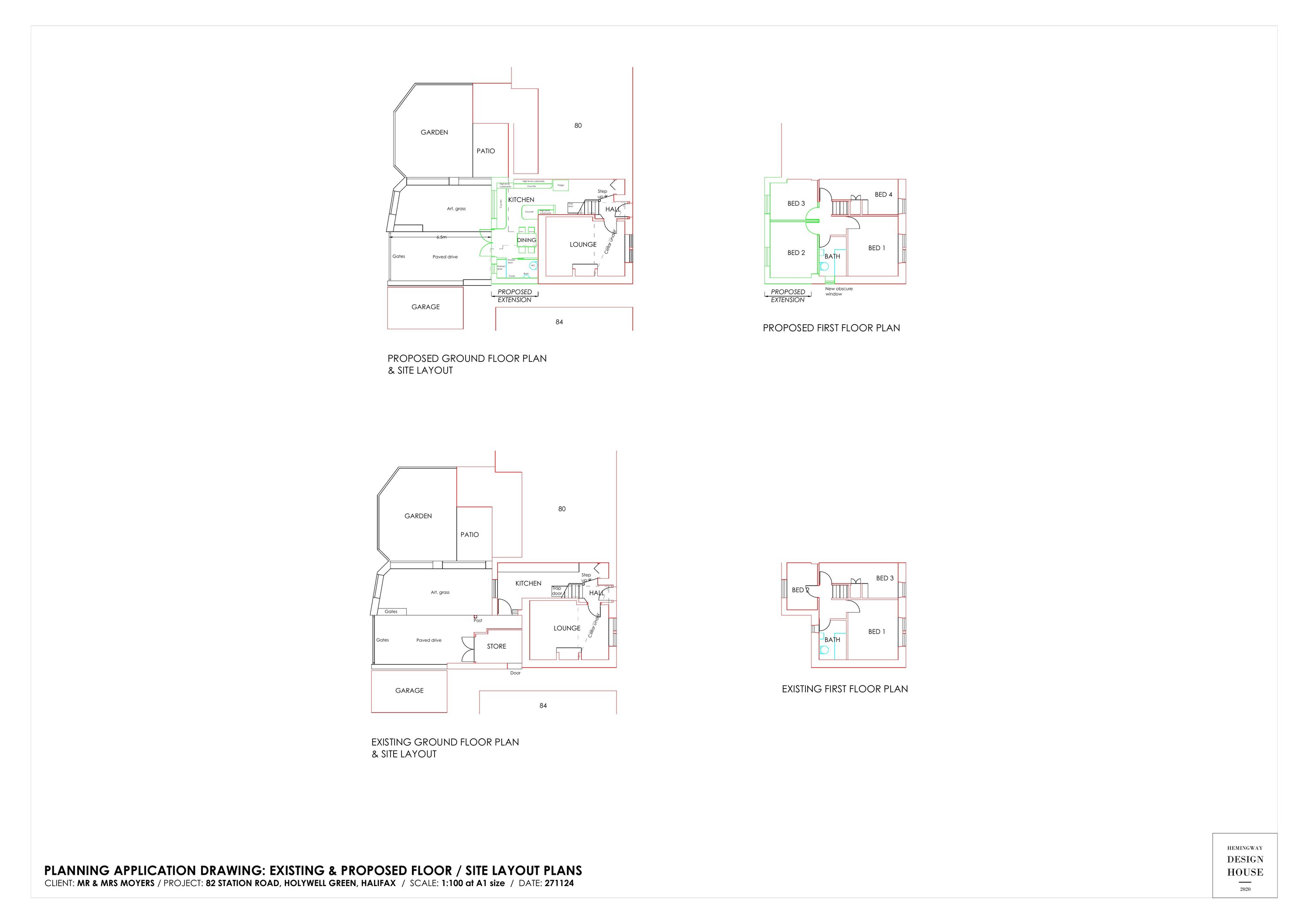
Permit House extension
Received
07 Jan 2025
New homes
0

Full proposal

Two storey extension, inc demolition of existing extension

Have your say

Your comment matters. Councils must consider every representation that raises material planning considerations.

Write a comment