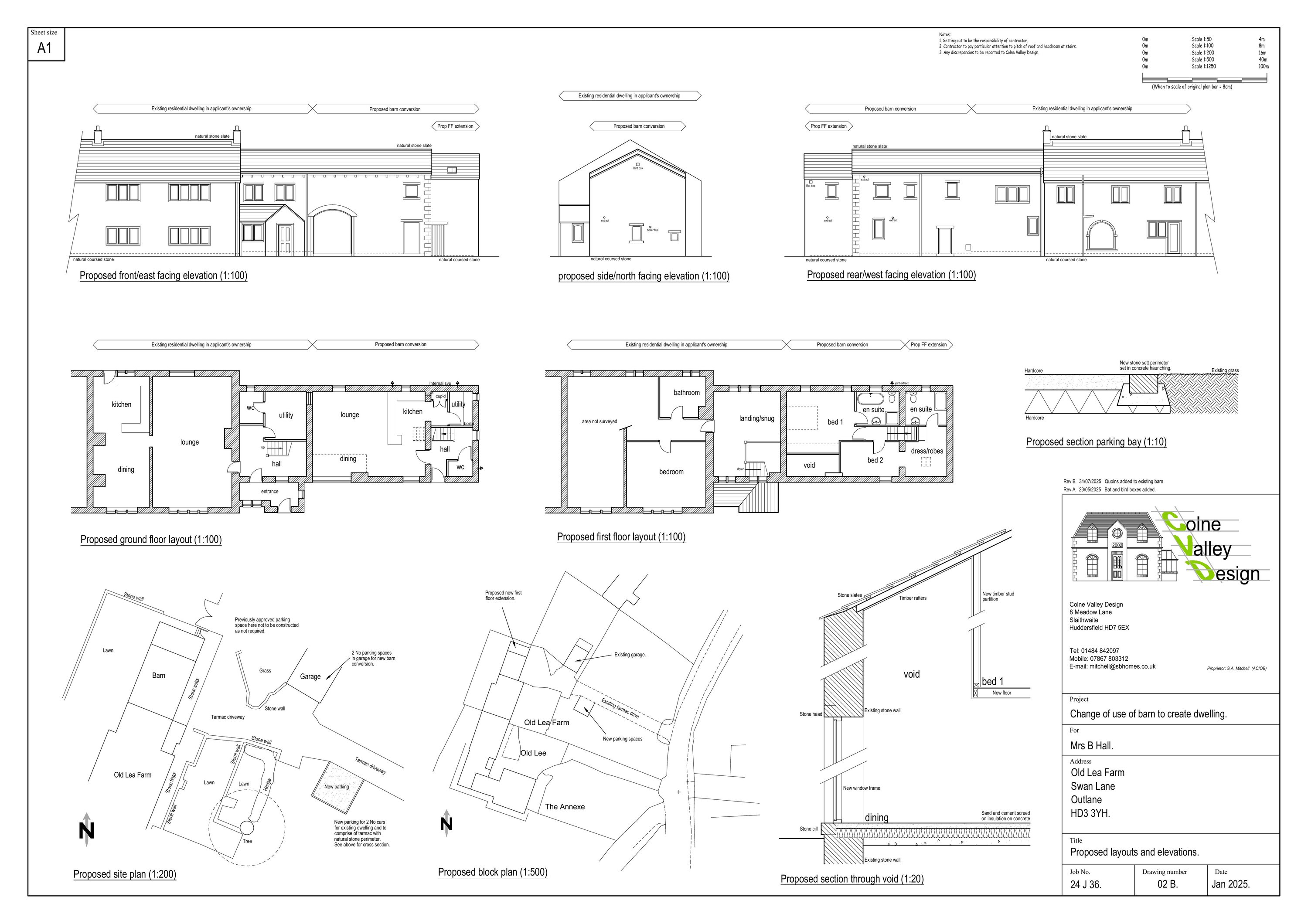
25/00279/FUL
Calderdale Council
Status
Permit
Change of use
Received
08 Apr 2025
New homes
1
Full proposal
Barn conversion to one dwelling
Documents
Have your say
Your comment matters. Councils must consider every representation that raises material planning considerations.