← Calderdale Council

Status

Permit Change of use
Received
07 May 2025
New homes
0

Full proposal

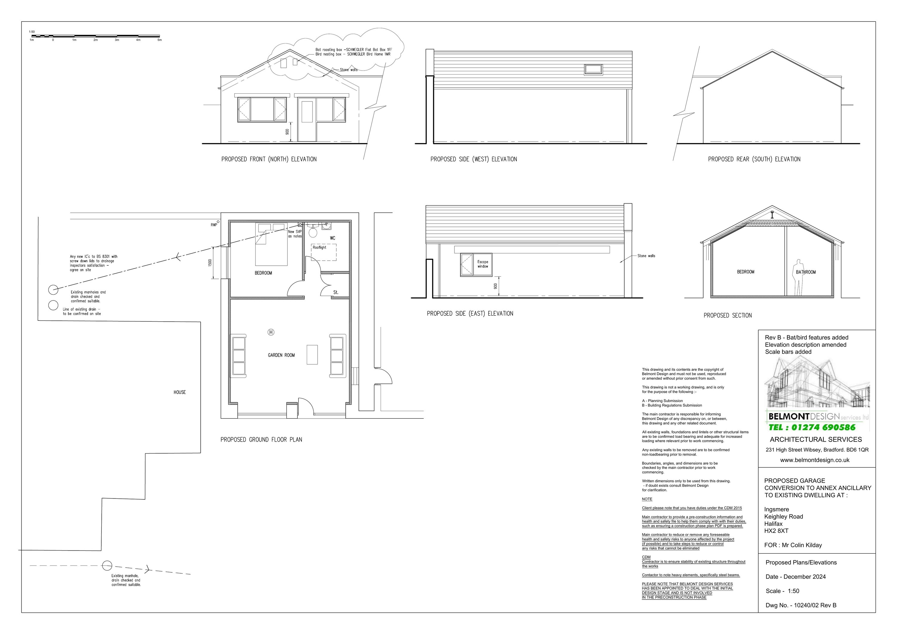
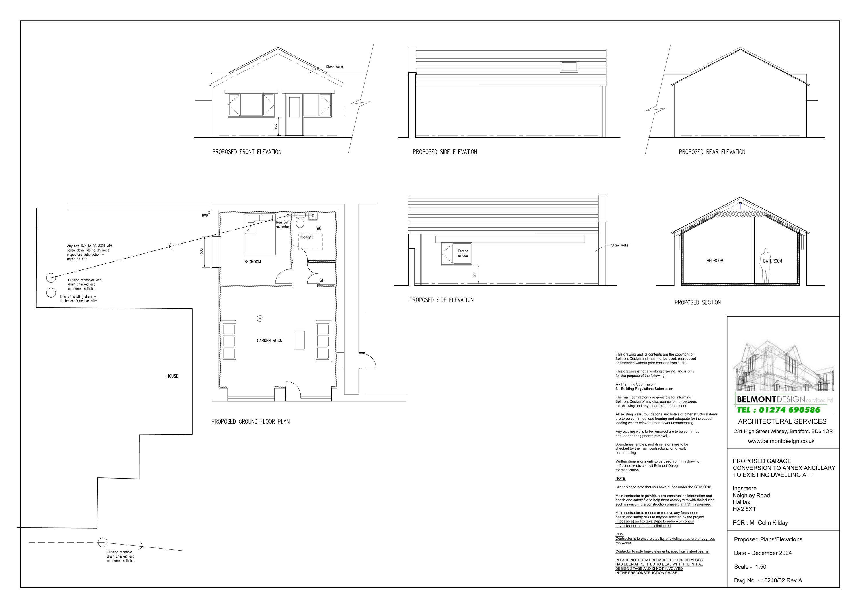
Conversion of garage to annex ancillary to dwelling

Documents

APPLICATIONFORMREDACTED
Application Form
Not yet archived · Original link
BAT ASSESSMENT FORM
Supporting Information
Not yet archived · Original link
CONSULTEE COMMENT SUBMITTED ONLINE
Consultee Comment
Not yet archived · Original link
Decision Notice
Decision Notice
Not yet archived · Original link
DPAPH - PLANNING APP - DEPART HSE/MC
Other
Not yet archived · Original link
EXISTING PLANS & ELEVATIONS
Drawing
Not yet archived · Original link
FOUL DRAINAGE ASSESSMENT
Supporting Information
Not yet archived · Original link
LOCATION PLAN
Drawing
Not yet archived · Original link
OFFICER REPORT
Report
Not yet archived · Original link
PHOTOGRAPHS
Photograph
Not yet archived · Original link
SPECIES ENHANCEMENT STATEMENT
Supporting Information
Not yet archived · Original link

Have your say

Your comment matters. Councils must consider every representation that raises material planning considerations.

Write a comment