← Cambridge City & South Cambridgeshire

Status

Awaiting decision Commercial
Received
03 Jan 2025
New homes
0

Full proposal

Demolition of existing buildings and the erection of buildings for Use Class E(g)i (offices) and E(g)ii (research and development) with Class E(a) (retail) and E(b) (sale of food and drink) uses on the ground floor together with Public Garden, landscaping and associated infrastructure works.

Documents

ABORICULTURE/TREES
Consultee Comments
Not yet archived · Original link
Consultee Comments
Archived · Original link
Application Officer Correspondence
Archived · Original link
Application Officer Correspondence
Archived · Original link
Consultee Comments
Archived · Original link
Consultee Comments
Archived · Original link
Consultee Comments
Archived · Original link
Consultee Comments
Archived · Original link
Application Information
Archived · Original link
Consultee Comments
Archived · Original link
Application Information
Archived · Original link
BIODIVERSITY METRIC CALCULATION TOOL
Application Survey / Assessment / Statement
Not yet archived · Original link
Application Survey / Assessment / Statement
Archived · Original link
Consultee Comments
Archived · Original link
Consultee Comments
Archived · Original link
Third Party Comments
Archived · Original link
Third Party Comments
Archived · Original link
Application Committee / Delegated Report
Archived · Original link
Application Committee / Delegated Report
Archived · Original link
Application Committee / Delegated Report
Archived · Original link
Application Survey / Assessment / Statement
Archived · Original link
Consultee Comments
Archived · Original link
Application Information
Archived · Original link
Application Information
Archived · Original link
Design and Access Statement
Archived · Original link
Design and Access Statement
Archived · Original link
Design and Access Statement
Archived · Original link
Design and Access Statement
Archived · Original link
Design and Access Statement
Archived · Original link
Application Information
Archived · Original link
Design and Access Statement
Archived · Original link
Design and Access Statement
Archived · Original link
Design and Access Statement
Archived · Original link
Design and Access Statement
Archived · Original link
Design and Access Statement
Archived · Original link
Design and Access Statement
Archived · Original link
Design and Access Statement
Archived · Original link
Design and Access Statement
Archived · Original link
Design and Access Statement
Archived · Original link
Design and Access Statement
Archived · Original link
Consultee Comments
Archived · Original link
Application Survey / Assessment / Statement
Archived · Original link
Application Information
Archived · Original link
Superseded Documents
Archived · Original link
Application Survey / Assessment / Statement
Archived · Original link
Superseded Documents
Archived · Original link
Superseded Documents
Archived · Original link
Application Survey / Assessment / Statement
Archived · Original link
Superseded Documents
Archived · Original link
Application Information
Archived · Original link
Application Information
Archived · Original link
Consultee Comments
Archived · Original link
Consultee Comments
Archived · Original link
ENVIRONMENTAL QUALITY AND GROWTH
Consultee Comments
Not yet archived · Original link
Extension of Time Request
Archived · Original link
Extension of Time Request
Archived · Original link
Extension of Time Request
Archived · Original link
Extension of Time Request
Archived · Original link
Application Survey / Assessment / Statement
Archived · Original link
Application Survey / Assessment / Statement
Archived · Original link
Application Survey / Assessment / Statement
Archived · Original link
Application Survey / Assessment / Statement
Archived · Original link
Application Survey / Assessment / Statement
Archived · Original link
Application Survey / Assessment / Statement
Archived · Original link
Application Survey / Assessment / Statement
Archived · Original link
Application Survey / Assessment / Statement
Archived · Original link
Application Survey / Assessment / Statement
Archived · Original link
Application Survey / Assessment / Statement
Archived · Original link
Application Survey / Assessment / Statement
Archived · Original link
Application Survey / Assessment / Statement
Archived · Original link
Application Survey / Assessment / Statement
Archived · Original link
Application Survey / Assessment / Statement
Archived · Original link
Application Survey / Assessment / Statement
Archived · Original link
Application Survey / Assessment / Statement
Archived · Original link
Application Survey / Assessment / Statement
Archived · Original link
Application Survey / Assessment / Statement
Archived · Original link
Application Survey / Assessment / Statement
Archived · Original link
Application Survey / Assessment / Statement
Archived · Original link
Application Survey / Assessment / Statement
Archived · Original link
Application Survey / Assessment / Statement
Archived · Original link
Application Survey / Assessment / Statement
Archived · Original link
Application Survey / Assessment / Statement
Archived · Original link
Application Survey / Assessment / Statement
Archived · Original link
Application Survey / Assessment / Statement
Archived · Original link
Application Survey / Assessment / Statement
Archived · Original link
Application Survey / Assessment / Statement
Archived · Original link
Application Survey / Assessment / Statement
Archived · Original link
Application Survey / Assessment / Statement
Archived · Original link
Application Survey / Assessment / Statement
Archived · Original link
Application Survey / Assessment / Statement
Archived · Original link
Application Survey / Assessment / Statement
Archived · Original link
Application Survey / Assessment / Statement
Archived · Original link
Application Information
Archived · Original link
Application Survey / Assessment / Statement
Archived · Original link
Application Survey / Assessment / Statement
Archived · Original link
Superseded Documents
Archived · Original link
Application Information
Archived · Original link
Application Survey / Assessment / Statement
Archived · Original link
Application Survey / Assessment / Statement
Archived · Original link
Application Survey / Assessment / Statement
Archived · Original link
Application Survey / Assessment / Statement
Archived · Original link
Application Survey / Assessment / Statement
Archived · Original link
Application Survey / Assessment / Statement
Archived · Original link
Application Survey / Assessment / Statement
Archived · Original link
Application Survey / Assessment / Statement
Archived · Original link
Application Survey / Assessment / Statement
Archived · Original link
Application Survey / Assessment / Statement
Archived · Original link
Application Survey / Assessment / Statement
Archived · Original link
Application Survey / Assessment / Statement
Archived · Original link
Application Survey / Assessment / Statement
Archived · Original link
Application Survey / Assessment / Statement
Archived · Original link
Application Survey / Assessment / Statement
Archived · Original link
Application Survey / Assessment / Statement
Archived · Original link
Application Survey / Assessment / Statement
Archived · Original link
Application Survey / Assessment / Statement
Archived · Original link
Application Survey / Assessment / Statement
Archived · Original link
Application Survey / Assessment / Statement
Archived · Original link
Application Survey / Assessment / Statement
Archived · Original link
Application Survey / Assessment / Statement
Archived · Original link
Application Survey / Assessment / Statement
Archived · Original link
Application Survey / Assessment / Statement
Archived · Original link
Application Survey / Assessment / Statement
Archived · Original link
Application Survey / Assessment / Statement
Archived · Original link
Application Survey / Assessment / Statement
Archived · Original link
Application Survey / Assessment / Statement
Archived · Original link
Application Survey / Assessment / Statement
Archived · Original link
Superseded Documents
Archived · Original link
Superseded Documents
Archived · Original link
Application Survey / Assessment / Statement
Archived · Original link
Application Survey / Assessment / Statement
Archived · Original link
Application Survey / Assessment / Statement
Archived · Original link
Application Survey / Assessment / Statement
Archived · Original link
Application Survey / Assessment / Statement
Archived · Original link
Application Survey / Assessment / Statement
Archived · Original link
Application Survey / Assessment / Statement
Archived · Original link
Application Survey / Assessment / Statement
Archived · Original link
Superseded Documents
Archived · Original link
Application Information
Archived · Original link
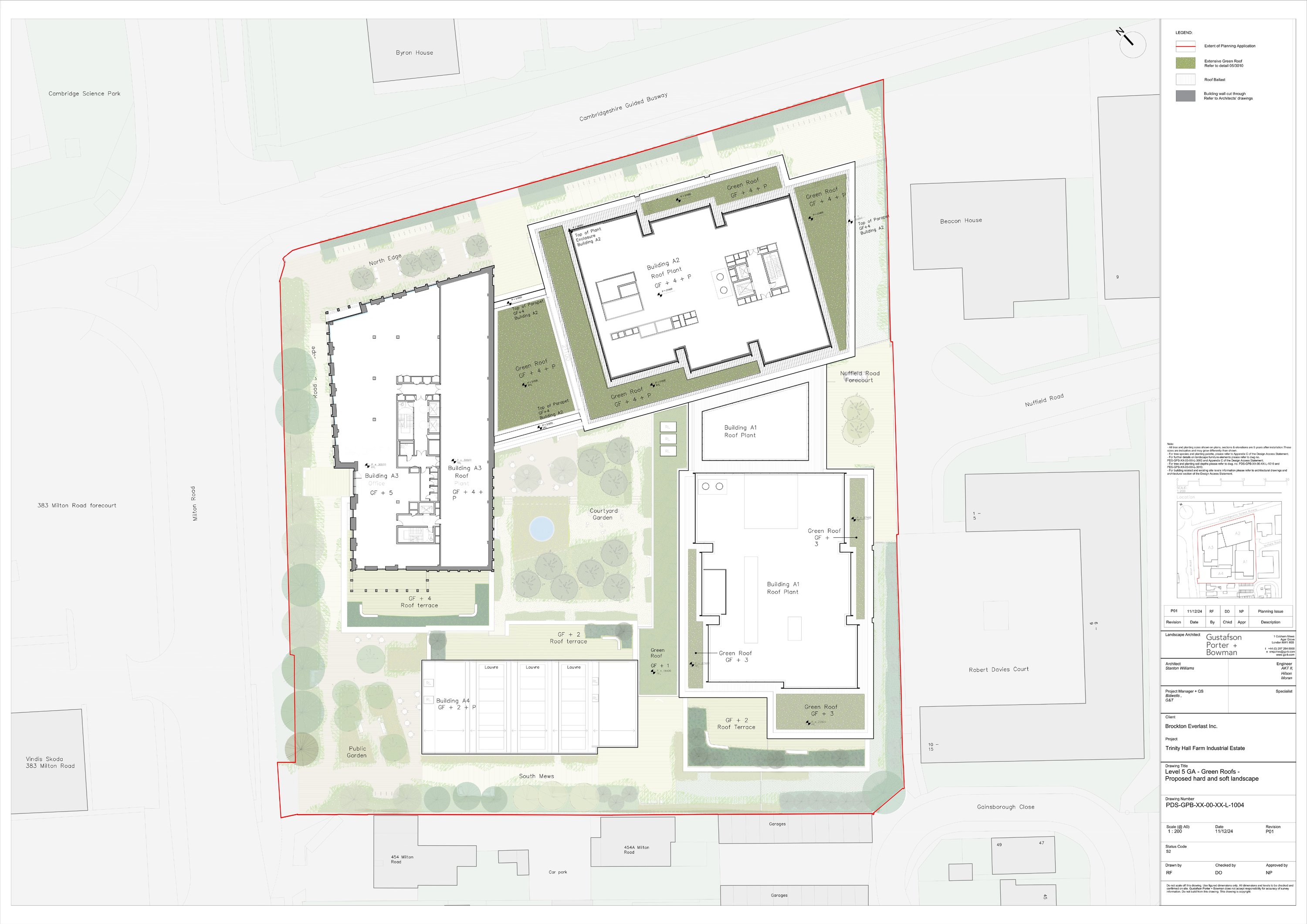
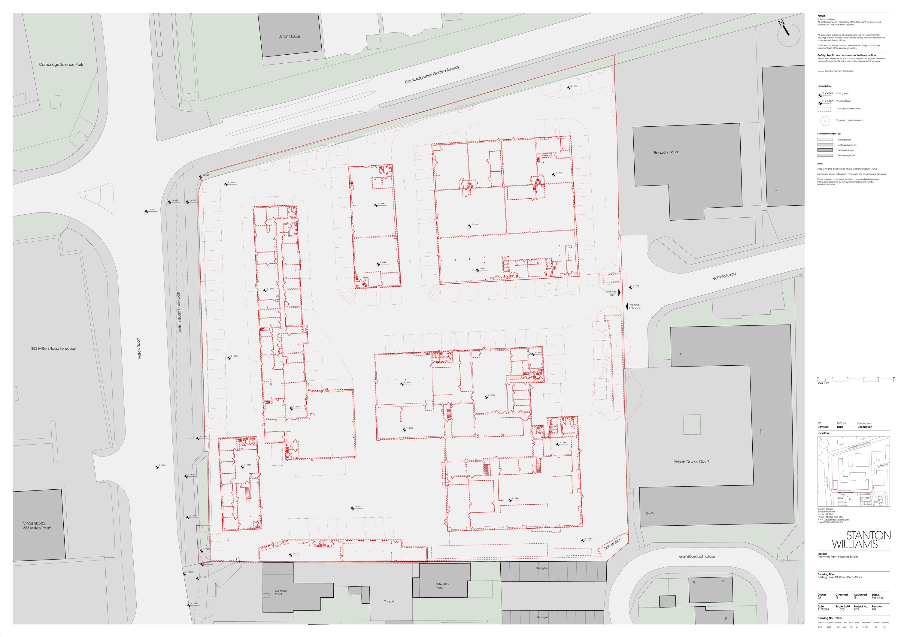
Drawings
Archived · Original link
Drawings
Archived · Original link
Drawings
Archived · Original link
Drawings
Archived · Original link
Superseded Documents
Archived · Original link
Application Information
Archived · Original link
Application Officer Correspondence
Archived · Original link
Application Survey / Assessment / Statement
Archived · Original link
Application Survey / Assessment / Statement
Archived · Original link
Application Survey / Assessment / Statement
Archived · Original link
Application Information
Archived · Original link
HSE
Consultee Comments
Archived · Original link
Consultee Comments
Archived · Original link
Consultee Comments
Archived · Original link
Application Information
Archived · Original link
Consultee Comments
Archived · Original link
Consultee Comments
Archived · Original link
Consultee Comments
Archived · Original link
Consultee Comments
Archived · Original link
Neighbour/Consultee Notification List
Archived · Original link
Consultee Comments
Archived · Original link
Application Survey / Assessment / Statement
Archived · Original link
Application Information
Archived · Original link
Application Information
Archived · Original link
Application Information
Archived · Original link
Superseded Documents
Archived · Original link
Application Survey / Assessment / Statement
Archived · Original link
Application Survey / Assessment / Statement
Archived · Original link
Application Survey / Assessment / Statement
Archived · Original link
Application Information
Archived · Original link
Drawings
Archived · Original link
Drawings
Archived · Original link
Drawings
Archived · Original link
Drawings
Archived · Original link
Drawings
Archived · Original link
Drawings
Archived · Original link
Drawings
Archived · Original link
Drawings
Archived · Original link
Drawings
Archived · Original link
Application Information
Archived · Original link
Application Information
Archived · Original link
Application Committee / Delegated Report
Archived · Original link
Application Information
Archived · Original link
Application Survey / Assessment / Statement
Archived · Original link
Consultee Comments
Archived · Original link
Consultee Comments
Archived · Original link
Consultee Comments
Archived · Original link
Superseded Documents
Archived · Original link
Application Press/Site Notices
Archived · Original link
Application Press/Site Notices
Archived · Original link
Application Press/Site Notices
Archived · Original link
Application Press/Site Notices
Archived · Original link
Application Press/Site Notices
Archived · Original link
Application Press/Site Notices
Archived · Original link
Application Press/Site Notices
Archived · Original link
Application Press/Site Notices
Archived · Original link
Application Survey / Assessment / Statement
Archived · Original link
Application Survey / Assessment / Statement
Archived · Original link
Application Survey / Assessment / Statement
Archived · Original link
Consultee Comments
Archived · Original link
Consultee Comments
Archived · Original link
Application Information
Archived · Original link
Application Survey / Assessment / Statement
Archived · Original link
Application Survey / Assessment / Statement
Archived · Original link
Application Survey / Assessment / Statement
Archived · Original link
Application Survey / Assessment / Statement
Archived · Original link
Application Survey / Assessment / Statement
Archived · Original link
Application Survey / Assessment / Statement
Archived · Original link
Application Survey / Assessment / Statement
Archived · Original link
Application Survey / Assessment / Statement
Archived · Original link
Application Survey / Assessment / Statement
Archived · Original link
Consultee Comments
Archived · Original link
Application Survey / Assessment / Statement
Archived · Original link
Application Survey / Assessment / Statement
Archived · Original link
Application Survey / Assessment / Statement
Archived · Original link
Application Survey / Assessment / Statement
Archived · Original link
Consultee Comments
Archived · Original link
Consultee Comments
Archived · Original link
Application Survey / Assessment / Statement
Archived · Original link
Application Survey / Assessment / Statement
Archived · Original link
Consultee Comments
Archived · Original link
Application Information
Archived · Original link
Application Information
Archived · Original link

Have your say

Your comment matters. Councils must consider every representation that raises material planning considerations.

Write a comment