← Cambridge City & South Cambridgeshire

Status

Awaiting decision New housing
Received
12 Sep 2025
New homes
1

Full proposal

Redevelopment of the site to provide 1 no. residential dwelling, demolition of existing triple garage and widening of existing access crossover.

Documents

20260127-CFRA&SUDS
Agent / Applicant Comments
Not yet archived · Original link
ACKNOWLEDGEMENT LETTER
Application Officer Correspondence
Not yet archived · Original link
ADDITIONAL MARKETING INFORMATION - LETTER
Agent / Applicant Comments
Not yet archived · Original link
ADDITIONAL MARKETING INFORMATION - PROPERTY REPORT
Agent / Applicant Comments
Not yet archived · Original link
AMENDMENTS- EMAIL CONFIRMATION
Agent / Applicant Comments
Not yet archived · Original link
APPLICATION FORM - NO PERSONAL INFO
Application Information
Not yet archived · Original link
ARBORICULTURAL IMPACT ASSESSMENT AND METHOD STATEMENT
Application Survey / Assessment / Statement
Not yet archived · Original link
ATTACHMENT SUMMARY FROM PORTAL
Attachment Summary
Not yet archived · Original link
BIODIVERSITY NET GAIN ASSESSMENT
Application Survey / Assessment / Statement
Not yet archived · Original link
CLIMATE, WASTE & ENVIRONMENT
Consultee Comments
Not yet archived · Original link
CONFIRMATION - ECOLOGY ISSUES
Agent / Applicant Comments
Not yet archived · Original link
CONFIRMATION OF PRIOR COMMENCEMENT CONDITION
Agent / Applicant Comments
Not yet archived · Original link
CONTAMINATED LAND
Consultee Comments
Not yet archived · Original link
DRAINAGE
Consultee Comments
Not yet archived · Original link
DRAINAGE
Consultee Comments
Not yet archived · Original link
DRAINAGE
Consultee Comments
Not yet archived · Original link
ECOLOGY
Consultee Comments
Not yet archived · Original link
ELEVATIONS
Superseded Documents
Not yet archived · Original link
ENVIRO AND GENO INSIGHT MAP (PAGE 1-50)
Application Information
Not yet archived · Original link
ENVIRO AND GENO INSIGHT MAP (PAGE 51-99)
Application Information
Not yet archived · Original link
EOT REQUEST
Extension of Time Request
Not yet archived · Original link
EOT REQUEST
Extension of Time Request
Not yet archived · Original link
EOT REQUEST
Extension of Time Request
Not yet archived · Original link
FEE CALCULATION
Application Information
Not yet archived · Original link
FILE COPY OF AMENDMENT LETTER
Application Officer Correspondence
Not yet archived · Original link
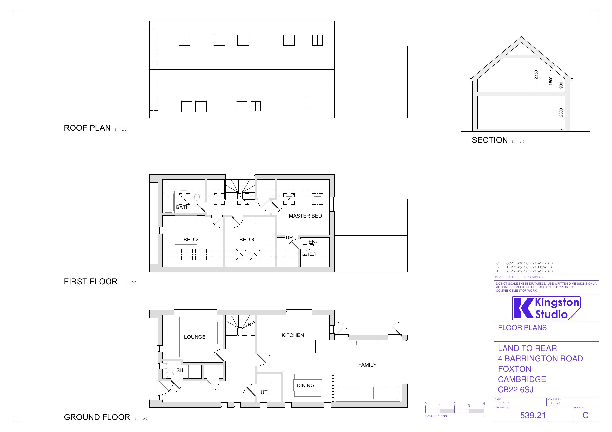
FLOOR PLANS
Superseded Documents
Not yet archived · Original link
LOCAL HIGHWAY AUTHORITY
Consultee Comments
Not yet archived · Original link
LOCAL HIGHWAY AUTHORITY
Consultee Comments
Not yet archived · Original link
LOCATION AND BLOCK PLAN
Drawings
Not yet archived · Original link
MAP OF NOTIFIED NEIGHBOURS
Neighbour/Consultee Notification List
Not yet archived · Original link
MARKETING UPDATE 4B BARRINGTON ROAD FOXTON
Application Information
Not yet archived · Original link
MARKETING UPDATE SCREENSHOT A 2025-09-10 AT 11.54.33
Application Information
Not yet archived · Original link
MARKETING UPDATE SCREENSHOT B 2025-09-10 AT 11.54.54
Application Information
Not yet archived · Original link
NATURAL ENGLAND COMMENTS
Consultee Comments
Not yet archived · Original link
NATURAL ENGLAND COMMENTS
Consultee Comments
Not yet archived · Original link
NATURAL ENGLAND COMMENTS
Consultee Comments
Not yet archived · Original link
PARISH
Consultee Comments
Not yet archived · Original link
PARKING PLAN
Drawings
Not yet archived · Original link
POLICY H12 ASSESSMENT
Drawings
Not yet archived · Original link
PRELIMINARY ECOLOGICAL APPRAISAL AND ROOT ASSESSEMENT
Application Survey / Assessment / Statement
Not yet archived · Original link
Superseded Documents
Archived · Original link
REFUSE AND CYCLE STORE
Drawings
Not yet archived · Original link
Drawings
Archived · Original link
REVISED-PROPOSED ELEVATIONS
Drawings
Not yet archived · Original link
SCHEMATIC FOUNDATION LAYOUT
Drawings
Not yet archived · Original link
SITE NOTICE
Application Press/Site Notices
Not yet archived · Original link
STATUTORY BIODIVERSITY METRIC CALCULATION TOOL
Application Information
Not yet archived · Original link
TOPOGRAPHICAL SURVEY
Drawings
Not yet archived · Original link
TREES
Consultee Comments
Not yet archived · Original link
VISIBILITY SPLAYS
Drawings
Not yet archived · Original link
WASTE - SHARED SERVICE
Consultee Comments
Not yet archived · Original link

Have your say

Your comment matters. Councils must consider every representation that raises material planning considerations.

Write a comment