← Cambridge City & South Cambridgeshire

Status

Awaiting decision Change of use
Received
27 Nov 2025
New homes
0

Full proposal

Single storey front extension, single storey side and rear extension and first floor side extension to create change of use from residential (Use Class C3) to a large 7-bed HMO (sui generis) and associated works

Documents

12 KINGS MEADOW
Third Party Comments
Not yet archived · Original link
ACKNOWLEDGEMENT LETTER
Application Officer Correspondence
Not yet archived · Original link
APPLICATION FORM - NO PERSONAL INFO
Application Information
Not yet archived · Original link
ATTACHMENT SUMMARY FROM PORTAL
Attachment Summary
Not yet archived · Original link
CIL FORM
Application Information
Not yet archived · Original link
DRAINAGE
Consultee Comments
Not yet archived · Original link
DRAINAGE
Consultee Comments
Not yet archived · Original link
ENVIRONMENTAL HEALTH
Consultee Comments
Not yet archived · Original link
ENVIRONMENTAL QUALITY AND GROWTH
Consultee Comments
Not yet archived · Original link
ENVIRONMENTAL QUALITY AND GROWTH
Consultee Comments
Not yet archived · Original link
EOT REQUEST
Extension of Time Request
Not yet archived · Original link
EOT REQUEST
Extension of Time Request
Not yet archived · Original link
EOT REQUEST
Extension of Time Request
Not yet archived · Original link
EXISTING AND PROPOSED SECTIONS
Drawings
Not yet archived · Original link
EXISTING ELEVATIONS
Drawings
Not yet archived · Original link
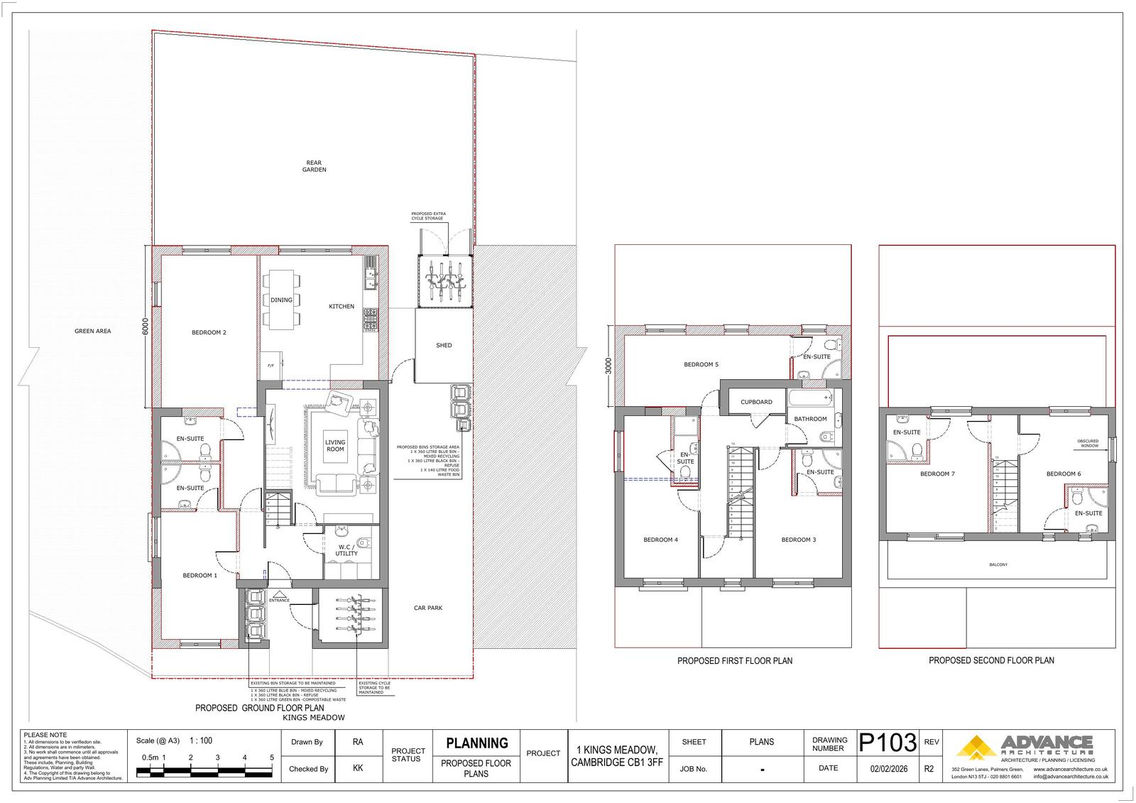
EXISTING FLOOR PLANS
Drawings
Not yet archived · Original link
EXISTING ROOF PLAN
Drawings
Not yet archived · Original link
FEE CALCULATION
Application Information
Not yet archived · Original link
FILE COPY OF AMENDMENT LETTER
Application Officer Correspondence
Not yet archived · Original link
INVALID LETTER
Application Information
Not yet archived · Original link
LOCAL HIGHWAY AUTHORITY
Consultee Comments
Not yet archived · Original link
LOCAL HIGHWAY AUTHORITY
Consultee Comments
Not yet archived · Original link
MAP OF NOTIFIED NEIGHBOURS
Neighbour/Consultee Notification List
Not yet archived · Original link
PLANNING, DESIGN AND ACCESS STATEMENT
Design and Access Statement
Not yet archived · Original link
PROPOSED BLOCK PLAN
Drawings
Not yet archived · Original link
PROPOSED BLOCK PLAN
Superseded Documents
Not yet archived · Original link
PROPOSED ELEVATION PLANS - AMENDED
Drawings
Not yet archived · Original link
PROPOSED ELEVATIONS
Superseded Documents
Not yet archived · Original link
Superseded Documents
Archived · Original link
Superseded Documents
Archived · Original link
PROPOSED ROOF PLAN
Drawings
Not yet archived · Original link
REVISED PROPOSED ELEVATIONS
Superseded Documents
Not yet archived · Original link
Drawings
Archived · Original link
SITE NOTICE
Application Press/Site Notices
Not yet archived · Original link
SITE NOTICE
Application Press/Site Notices
Not yet archived · Original link
WASTE - SHARED SERVICE
Consultee Comments
Not yet archived · Original link
WASTE - SHARED SERVICE
Consultee Comments
Not yet archived · Original link

Have your say

Your comment matters. Councils must consider every representation that raises material planning considerations.

Write a comment