← Cambridge City & South Cambridgeshire

Status

Awaiting decision New housing
Received
30 Dec 2025
New homes
8

Full proposal

Outline application for the development of up to 8 No. self/custom-build dwellings, internal road, open space, SuDS, landscaping, and associated works, with all matters reserved except for access.

Documents

ACKNOWLEDGEMENT LETTER
Application Officer Correspondence
Not yet archived · Original link
APPLICATION FORM - NO PERSONAL INFO
Application Information
Not yet archived · Original link
APPLICATION VALID
Application Officer Correspondence
Not yet archived · Original link
ARCHAEOLOGICAL OFFICER
Consultee Comments
Not yet archived · Original link
ATTACHMENT SUMMARY FROM PORTAL
Attachment Summary
Not yet archived · Original link
BIODIVERSITY NET GAIN CALCULATIONS
Application Information
Not yet archived · Original link
BIODIVERSITY NET GAIN PLAN
Application Survey / Assessment / Statement
Not yet archived · Original link
CLIMATE, WASTE & ENVIRONMENT
Consultee Comments
Not yet archived · Original link
COVERING LETTER
Application Information
Not yet archived · Original link
DEFINITIVE MAP TEAM
Consultee Comments
Not yet archived · Original link
DEFINITIVE MAP TEAM
Consultee Comments
Not yet archived · Original link
DESIGN AND ACCESS STATEMENT
Design and Access Statement
Not yet archived · Original link
DESK STUDY AND PRELIMINARY RISK ASSESSMENT PAGE 1-50
Application Survey / Assessment / Statement
Not yet archived · Original link
DESK STUDY AND PRELIMINARY RISK ASSESSMENT PAGE 103-130
Application Survey / Assessment / Statement
Not yet archived · Original link
DESK STUDY AND PRELIMINARY RISK ASSESSMENT PAGE 51-101
Application Survey / Assessment / Statement
Not yet archived · Original link
DRAINAGE
Consultee Comments
Not yet archived · Original link
ECOLOGY
Consultee Comments
Not yet archived · Original link
ENVIRONMENTAL HEALTH
Consultee Comments
Not yet archived · Original link
EOT REQUEST
Extension of Time Request
Not yet archived · Original link
FEE CALCULATION
Application Information
Not yet archived · Original link
FLOOD RISK ASSESSMENT AND DRAINAGE STRATEGY
Application Survey / Assessment / Statement
Not yet archived · Original link
LANDSCAPE
Consultee Comments
Not yet archived · Original link
LANDSCAPE AND VISUAL IMPACT ASSESSMENT PAGE 1-50
Application Survey / Assessment / Statement
Not yet archived · Original link
LANDSCAPE AND VISUAL IMPACT ASSESSMENT PAGE 51-73
Application Survey / Assessment / Statement
Not yet archived · Original link
LOCAL HIGHWAY AUTHORITY
Consultee Comments
Not yet archived · Original link
MAP OF NOTIFIED NEIGHBOURS
Neighbour/Consultee Notification List
Not yet archived · Original link
PARISH
Consultee Comments
Not yet archived · Original link
PLANNING STATEMENT
Application Survey / Assessment / Statement
Not yet archived · Original link
PRELIMINARY ECOLOGICAL APPRAISAL PAGE 1-50
Application Survey / Assessment / Statement
Not yet archived · Original link
PRELIMINARY ECOLOGICAL APPRAISAL PAGE 51-62
Application Survey / Assessment / Statement
Not yet archived · Original link
PROPOSED DRAINAGE STRATEGY PLAN
Drawings
Not yet archived · Original link
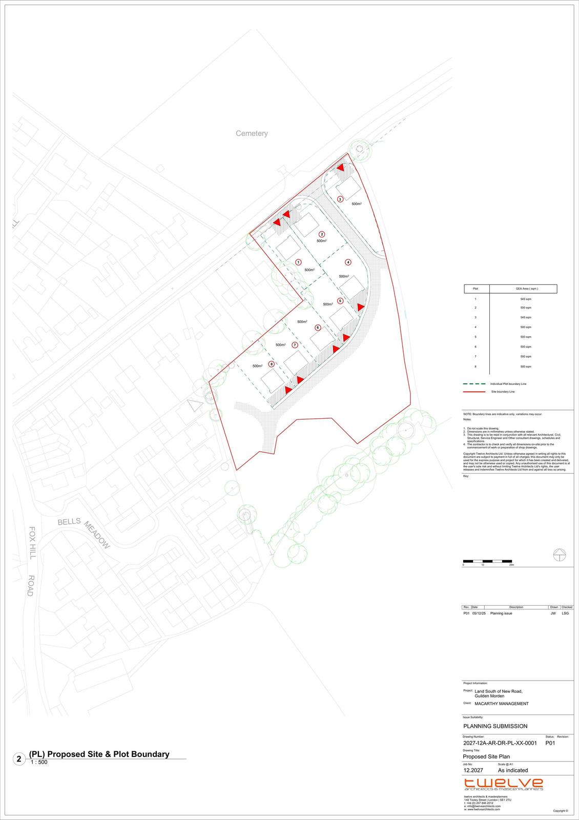
PROPOSED SITE AND PLOT BOUNDARY PLAN
Drawings
Not yet archived · Original link
RECEIPT
Application Officer Correspondence
Not yet archived · Original link
SITE BOUNDARY
Drawings
Not yet archived · Original link
SITE NOTICE
Application Press/Site Notices
Not yet archived · Original link
SUSTAINABILITY
Consultee Comments
Not yet archived · Original link
TRANSPORT STATEMENT
Application Survey / Assessment / Statement
Not yet archived · Original link
TREE SURVEY ARBORICULTURAL IMPACT ASSESSMENT AND ARBORICULTURAL METHOD STATEMENT
Application Survey / Assessment / Statement
Not yet archived · Original link
TREES
Consultee Comments
Not yet archived · Original link
URBAN DESIGN
Consultee Comments
Not yet archived · Original link
WASTE - SHARED SERVICE
Consultee Comments
Not yet archived · Original link

Have your say

Your comment matters. Councils must consider every representation that raises material planning considerations.

Write a comment