← Cambridge City & South Cambridgeshire

Status

Awaiting decision House extension
Received
Last month
New homes
0

Full proposal

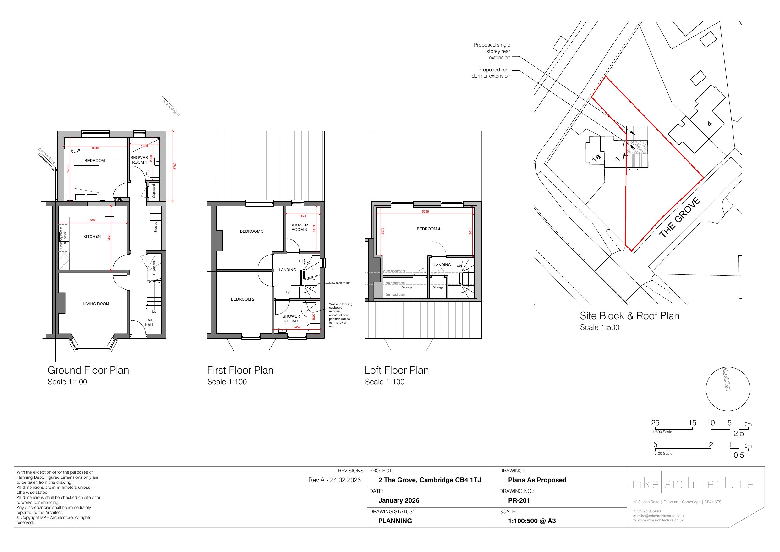
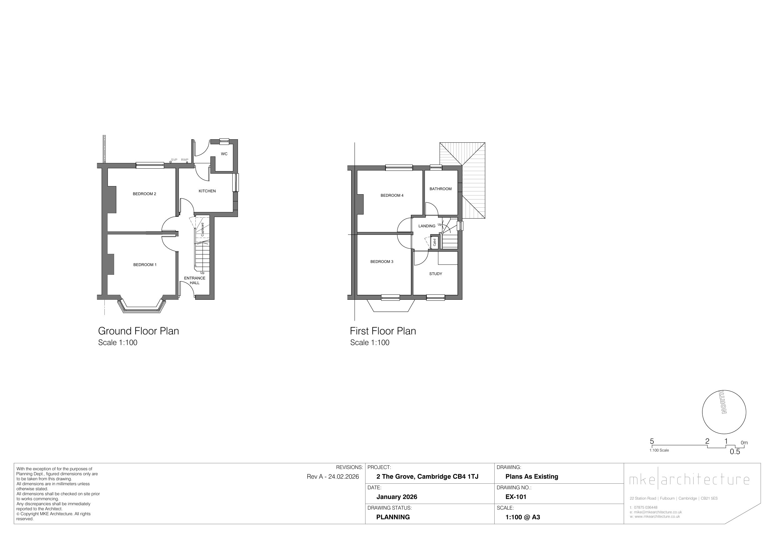
Demolition of existing side/rear extension and construction of a new single storey rear extension, construction of a hip-to-gable roof extension and rear-facing dormer extension

Documents

Application Officer Correspondence
Archived · Original link
Application Information
Archived · Original link
Attachment Summary
Archived · Original link
Drawings
Archived · Original link
Drawings
Archived · Original link
Application Information
Archived · Original link
Drawings
Archived · Original link
Neighbour/Consultee Notification List
Archived · Original link
Drawings
Archived · Original link
Drawings
Archived · Original link
Application Press/Site Notices
Archived · Original link

Have your say

Your comment matters. Councils must consider every representation that raises material planning considerations.

Write a comment