← Cambridge City & South Cambridgeshire

Status

Awaiting decision House extension
Received
Last month
New homes
0

Full proposal

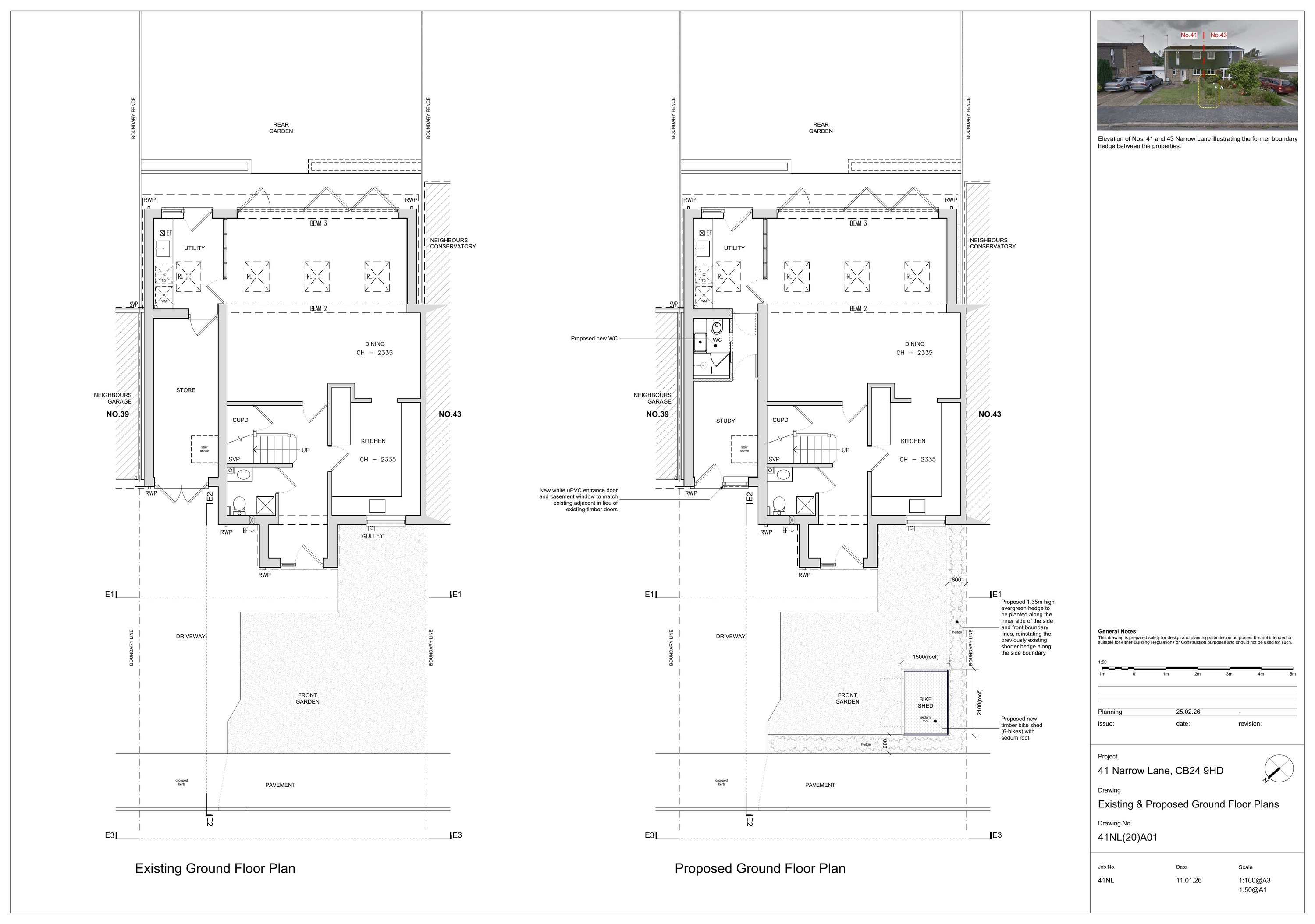
Conversion of existing store to habitable space, including replacement of existing timber door with white uPVC door and window. Erection of cycle store in front garden.

Documents

Application Officer Correspondence
Archived · Original link
Application Information
Archived · Original link
Attachment Summary
Archived · Original link
Application Information
Archived · Original link
Application Information
Archived · Original link
Drawings
Archived · Original link
Neighbour/Consultee Notification List
Archived · Original link

Have your say

Your comment matters. Councils must consider every representation that raises material planning considerations.

Write a comment