← Cambridge City & South Cambridgeshire

Status

Awaiting decision Change of use
Received
27 days ago
New homes
0

Full proposal

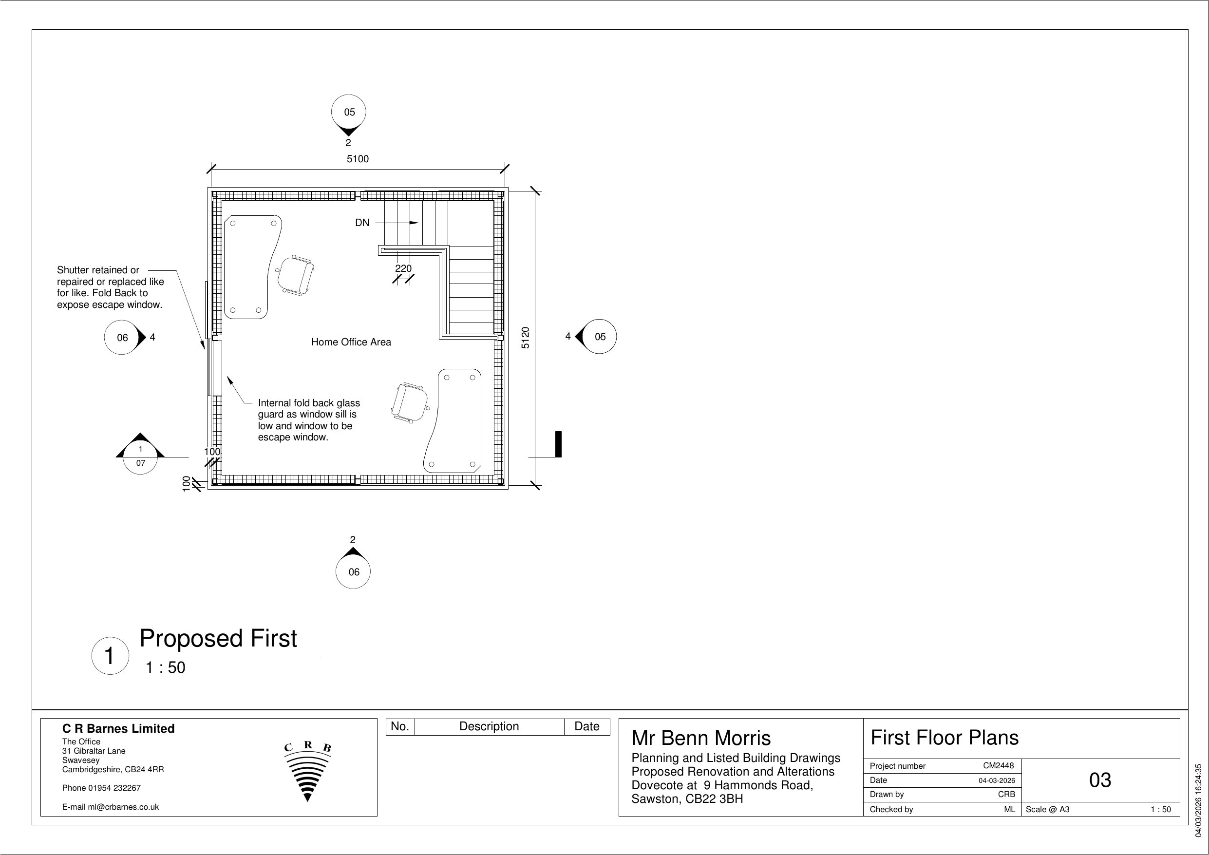
Repair and conversion of dovecote to home office

Documents

Drawings
Archived · Original link
Application Officer Correspondence
Archived · Original link
Application Information
Archived · Original link
Attachment Summary
Archived · Original link
Design and Access Statement
Archived · Original link
Drawings
Archived · Original link
Application Information
Archived · Original link
Drawings
Archived · Original link
Application Information
Archived · Original link
Neighbour/Consultee Notification List
Archived · Original link
Drawings
Archived · Original link
Drawings
Archived · Original link
Drawings
Archived · Original link

Have your say

Your comment matters. Councils must consider every representation that raises material planning considerations.

Write a comment