← London Borough of Camden

Status

REGISTERED New housing
Received
22 Jan 2025
New homes
1

Full proposal

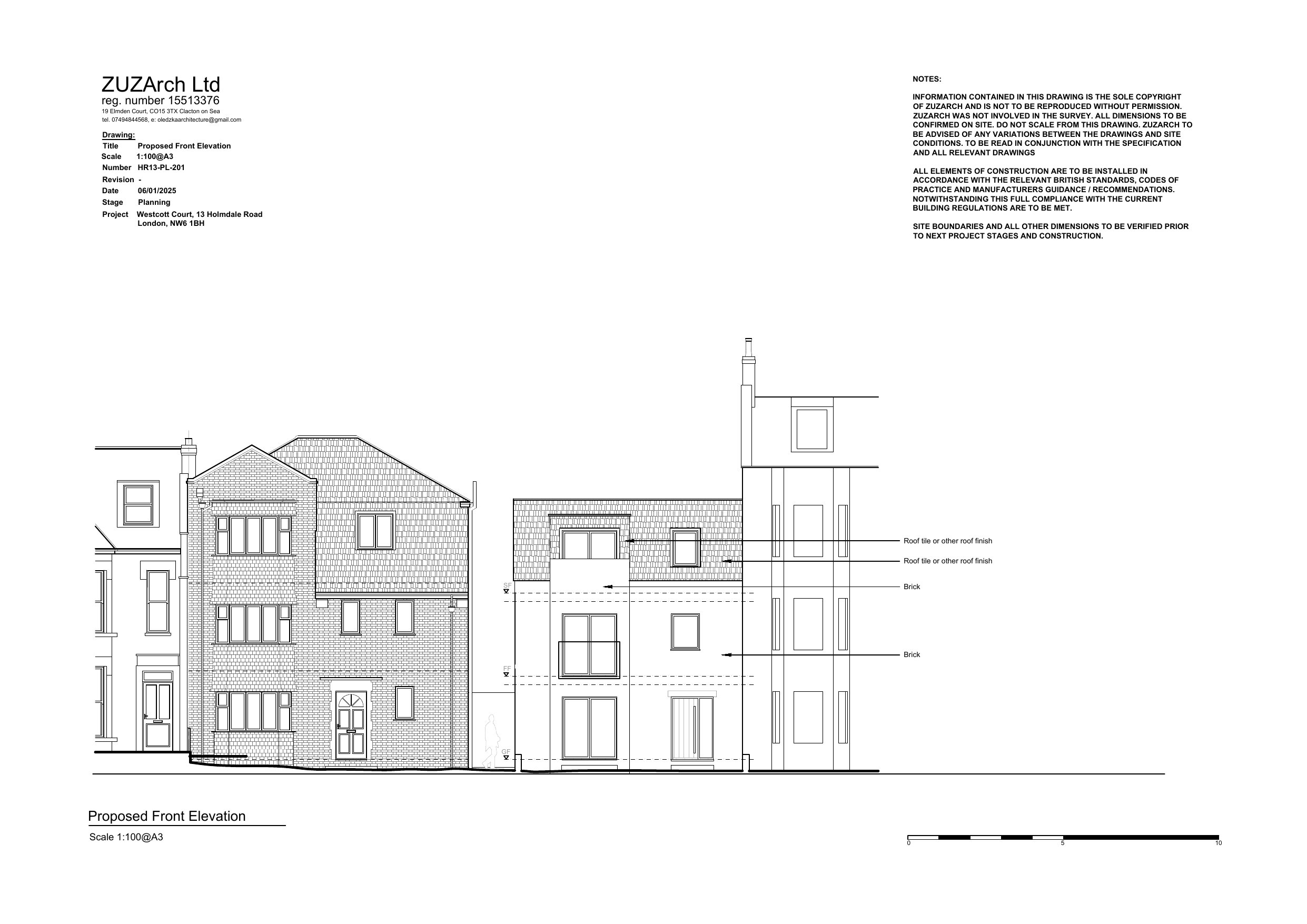
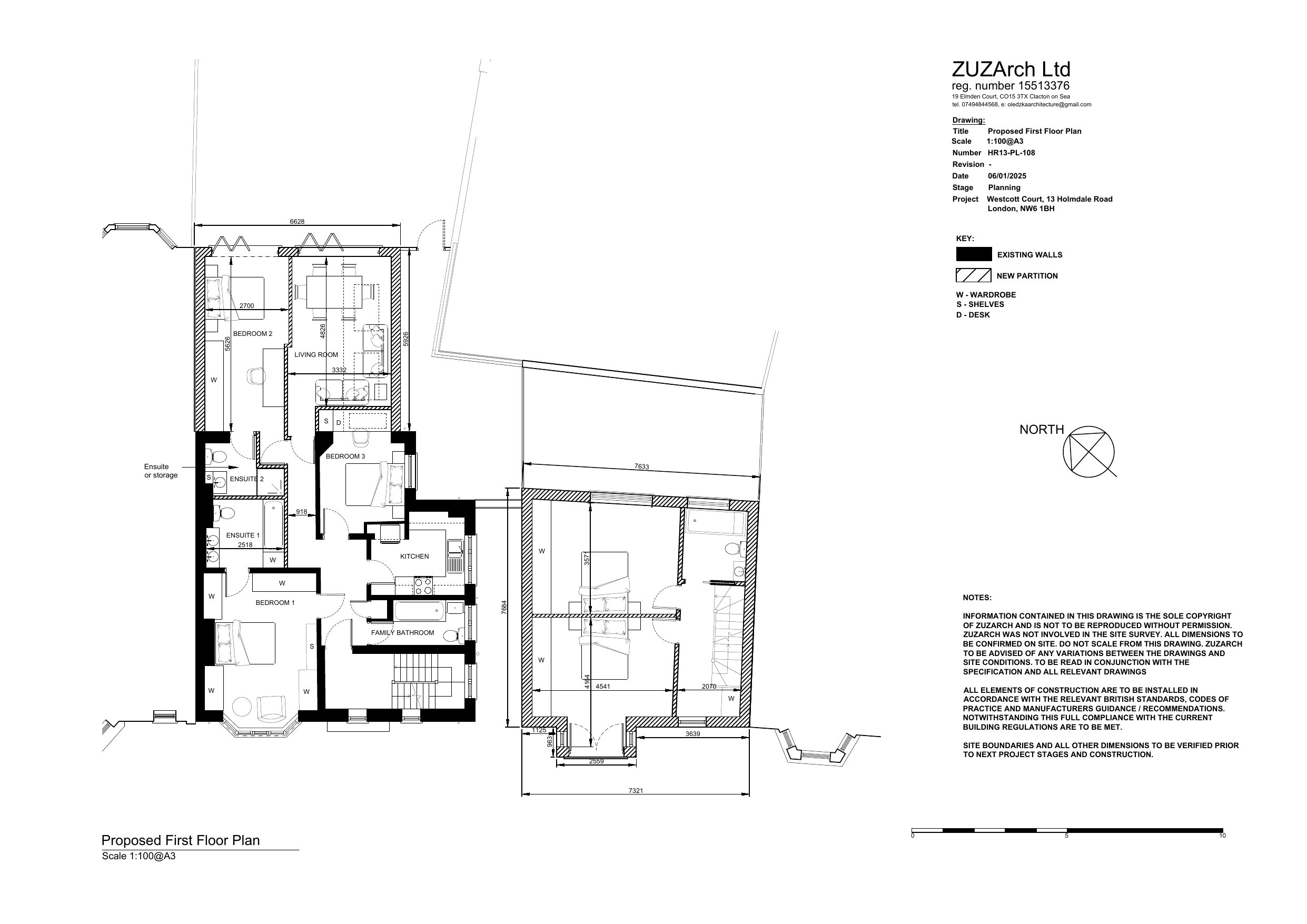
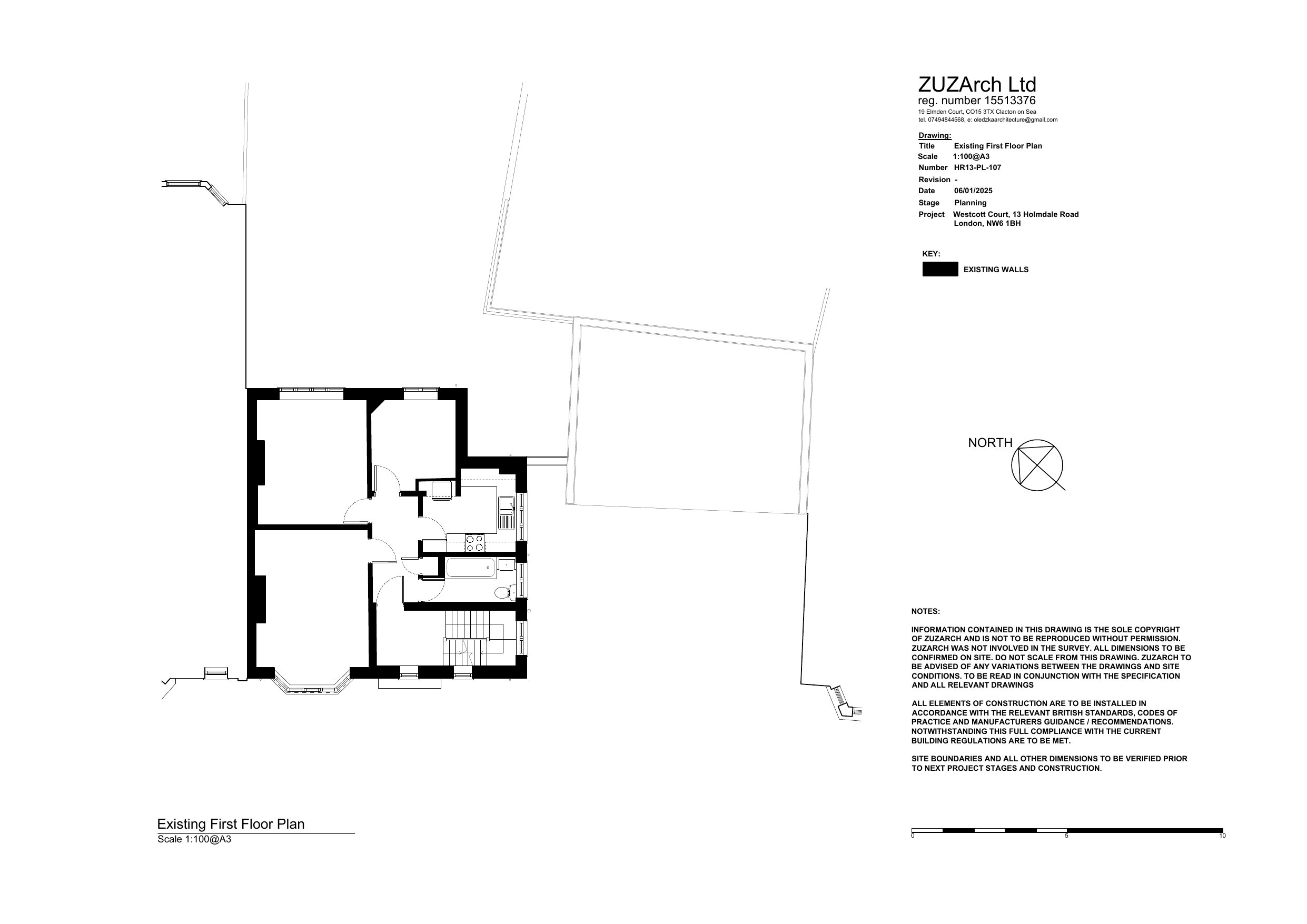
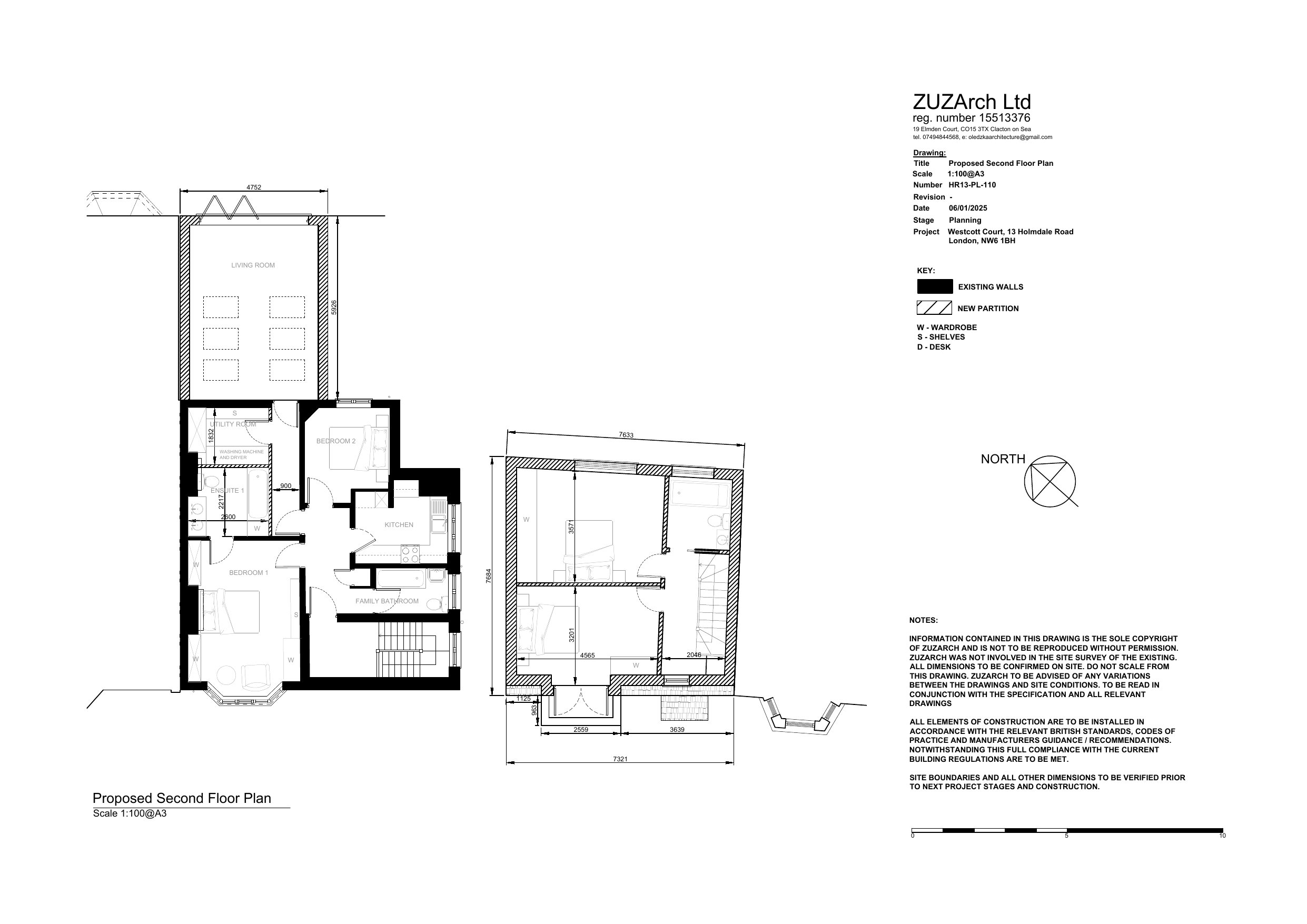
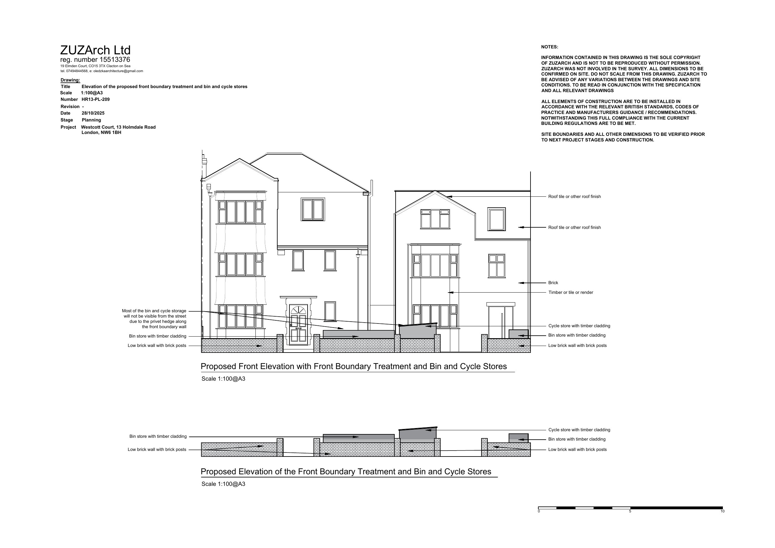
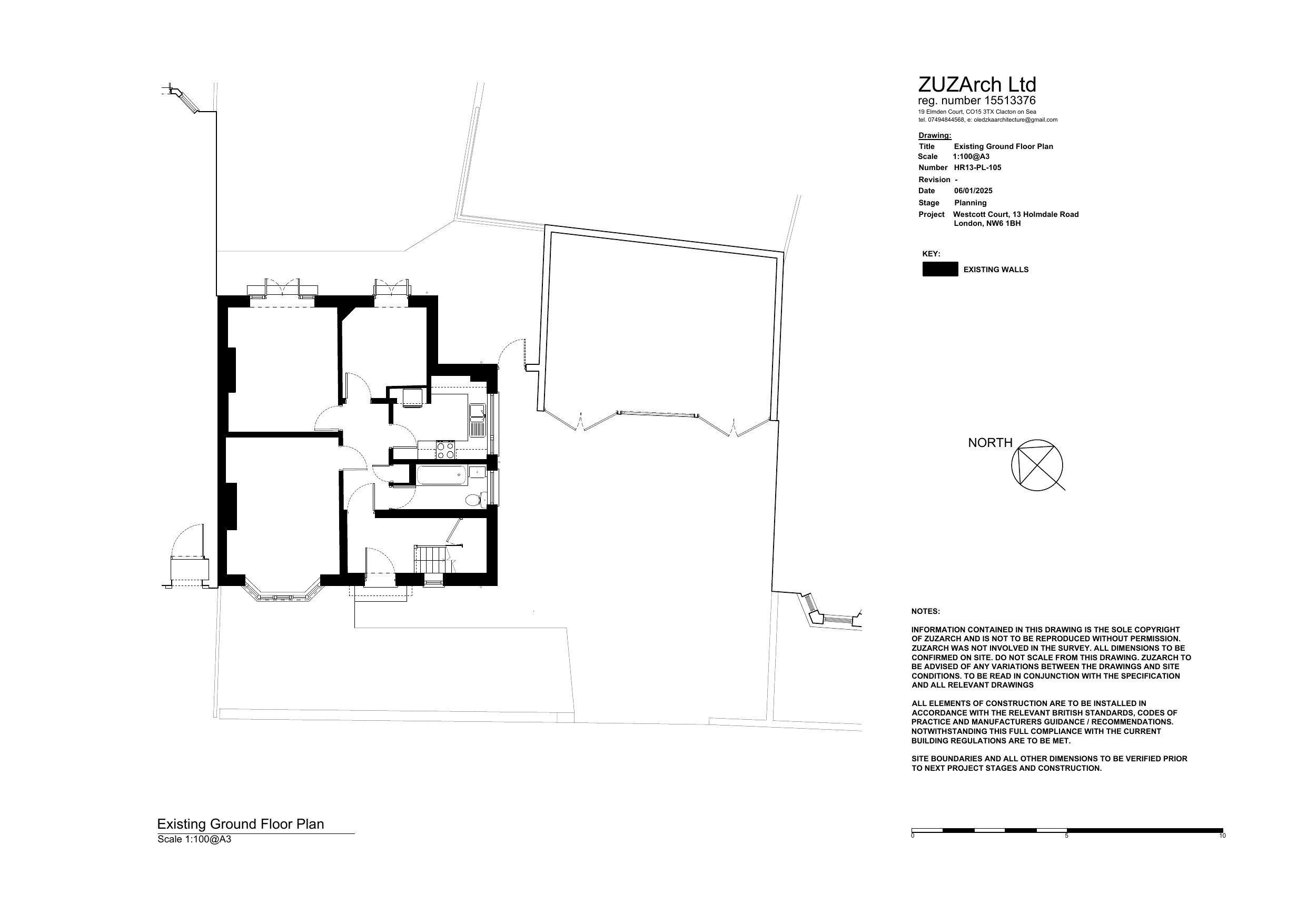
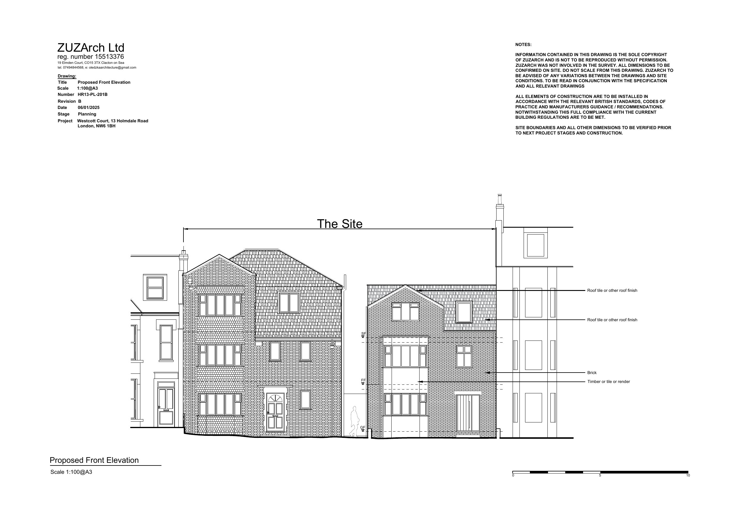
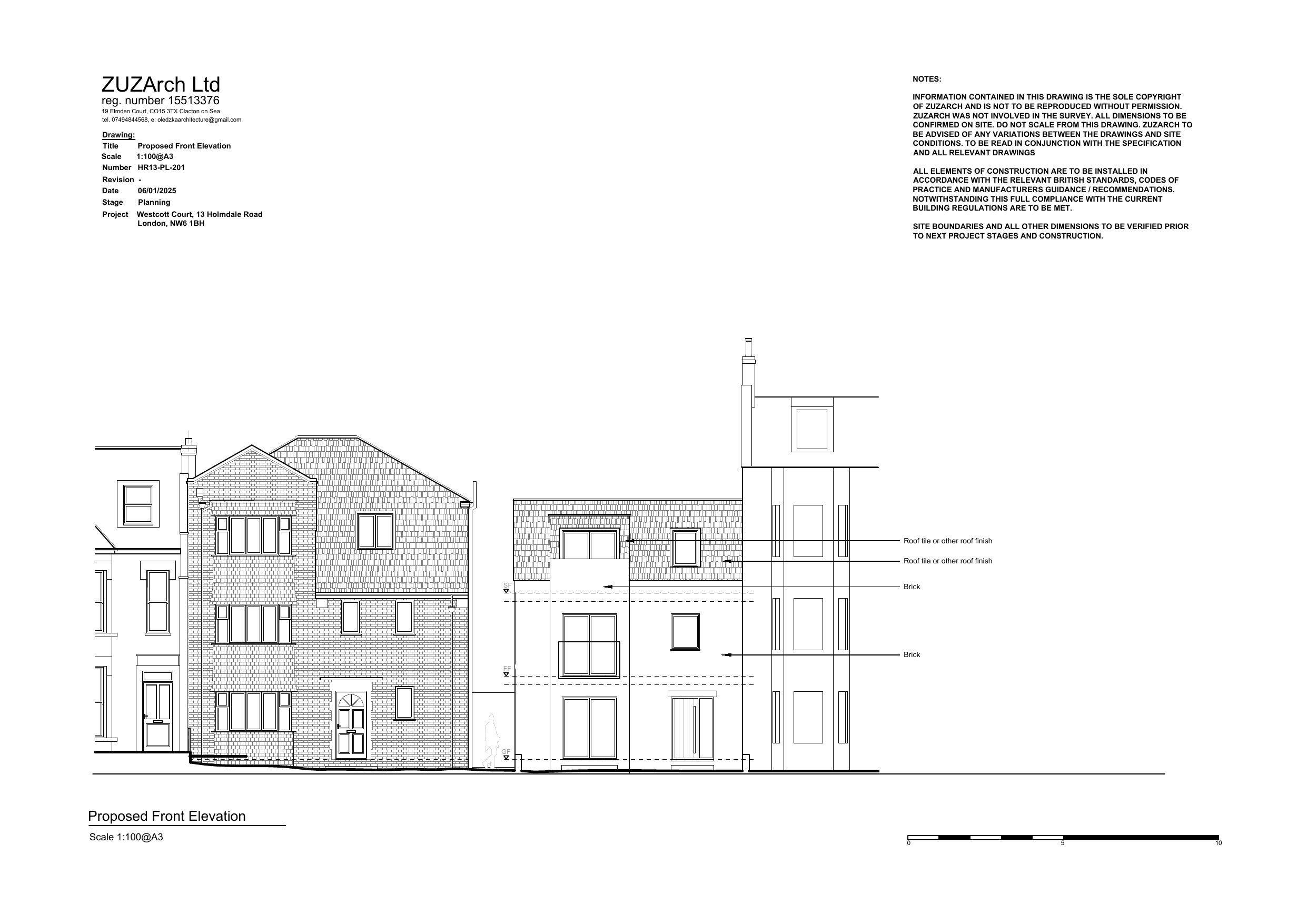
Demolition of existing garage block and erection of a three-storey dwelling; erection of three-storey rear extension to existing block of flats, erection of new boundary treatment; installation of bin and cycle stores.

Documents

Consultation Response
Archived · Original link
Consultation Response
Archived · Original link
Consultation Response
Archived · Original link
Consultation Response
Archived · Original link
Consultation Response
Archived · Original link
Consultation Response
Archived · Original link
Consultation Response
Archived · Original link
Application Form
Archived · Original link
Supporting Documents
Archived · Original link
Supporting Documents
Archived · Original link
Consultation Response
Archived · Original link
Supporting Documents
Archived · Original link
Proposed Drawing
Archived · Original link
Existing Drawing
Archived · Original link
OS Extract
Archived · Original link
Officer Delegated Report
Archived · Original link
Supporting Documents
Archived · Original link
Consultation Response
Archived · Original link
Proposed Drawing
Archived · Original link
Supporting Documents
Archived · Original link
Supporting Documents
Archived · Original link
Supporting Documents
Archived · Original link

Have your say

Your comment matters. Councils must consider every representation that raises material planning considerations.

Write a comment