← London Borough of Camden

Status

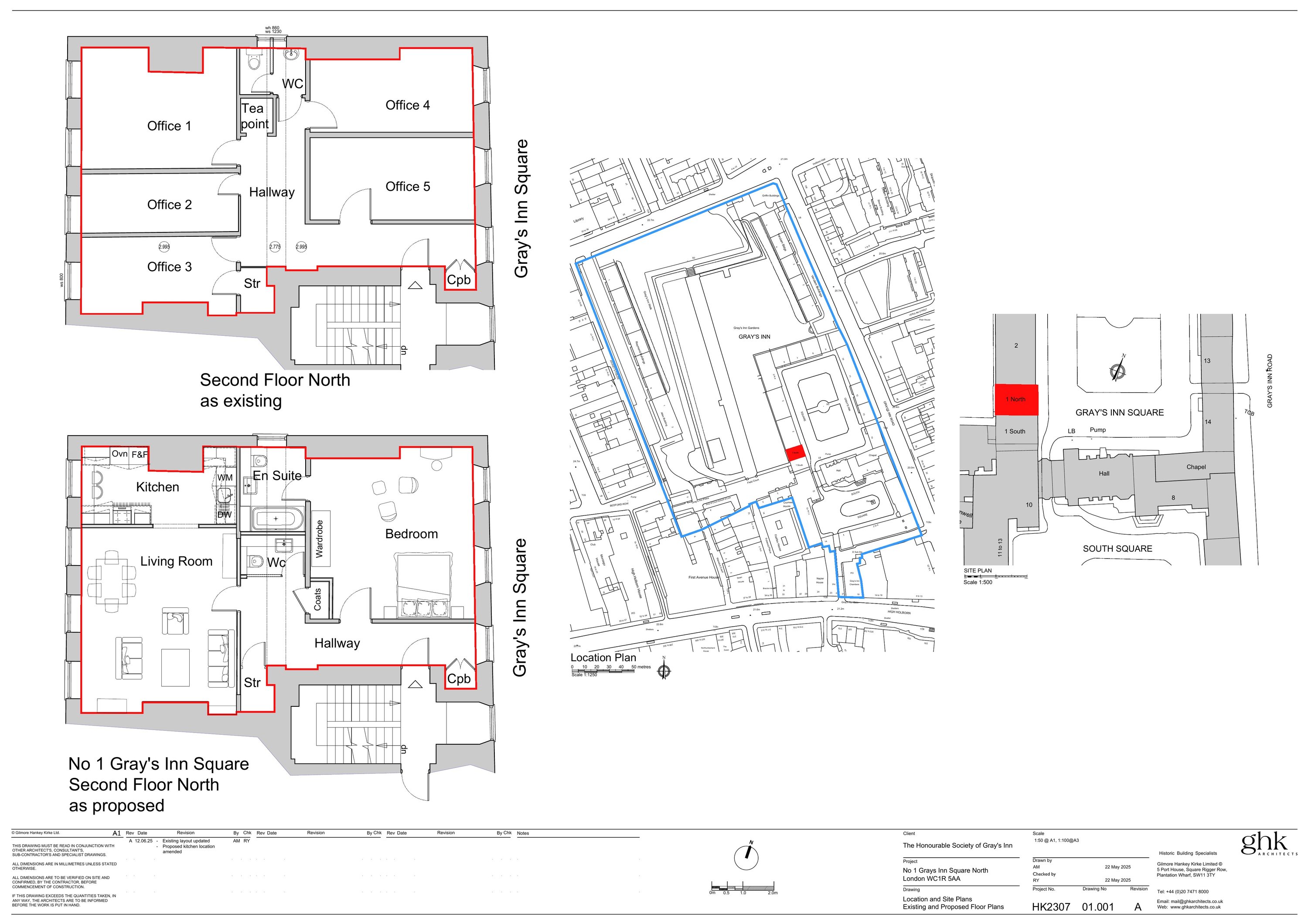
REGISTERED Change of use
Received
27 May 2025
New homes
0

Summary

Change of second floor from office (E) to one C3 dwellinghouse.

Full proposal

Change of use of second floor from E(g)(i) Office to C3 Dwellinghouse.

Have your say

Your comment matters. Councils must consider every representation that raises material planning considerations.

Write a comment