← London Borough of Camden

Status

REGISTERED Change of use
Received
16 Jun 2025
New homes
3

Summary

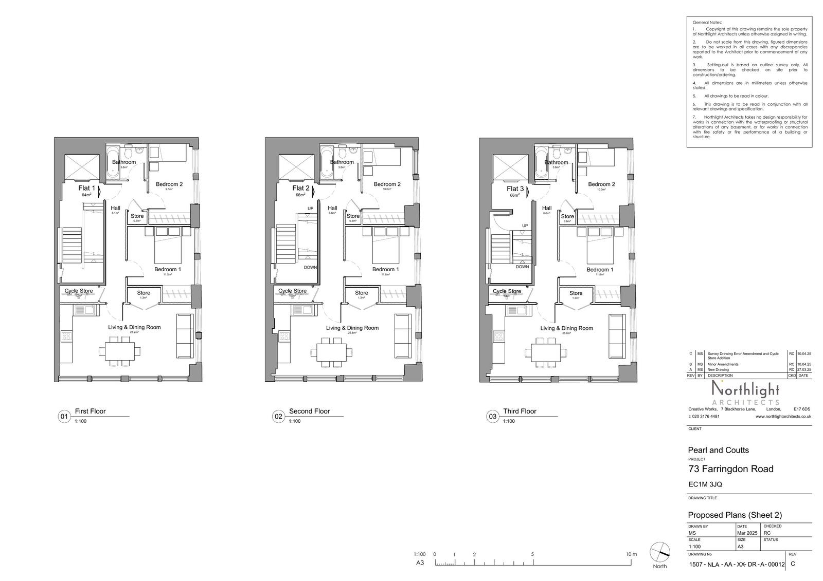
Convert first to third floors from offices to three two-bedroom residential dwellings.

Full proposal

Change of use of first to third floors from offices (Class E) to residential (Class C3) to accommodate 3 x two bedroom dwellings.

Documents

1 x Response
Consultation Response
Not yet archived · Original link
2025.2581.P Officer's report
Officer Delegated Report
Not yet archived · Original link
250328 - 73 Farringdon Road - Daylight Sunlight Letter(2)
Supporting Documents
Not yet archived · Original link
250410 - 73 Farringdon Road - Class MA PD - Cover Letter(2)
Supporting Documents
Not yet archived · Original link
250607 - 73 Farringdon Road - Noise Assessment Report v2(2)
Supporting Documents
Not yet archived · Original link
ApplicationFormRedacted(2)
Other
Not yet archived · Original link
Area and Room Schedules
Plans
Not yet archived · Original link
Existing Plans (Sheet 1)
Other
Not yet archived · Original link
Existing Plans (Sheet 2)
Other
Not yet archived · Original link
Existing Plans (Sheet 3)
Other
Not yet archived · Original link
Supporting Documents
Archived · Original link
Section 106 Agreement V.1 73 Farringdon Road UPDATED
Legal Agreement
Not yet archived · Original link
Other
Archived · Original link

Have your say

Your comment matters. Councils must consider every representation that raises material planning considerations.

Write a comment