← London Borough of Camden

Status

REGISTERED Change of use
Received
10 Sep 2025
New homes
0

Summary

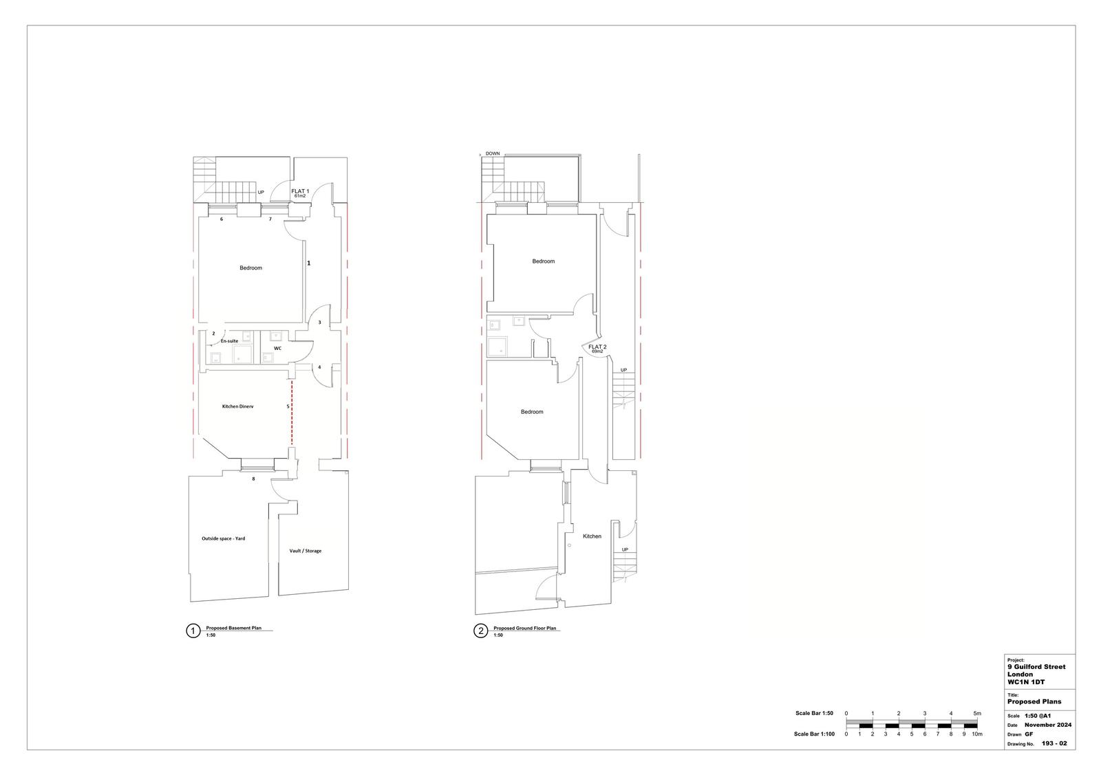
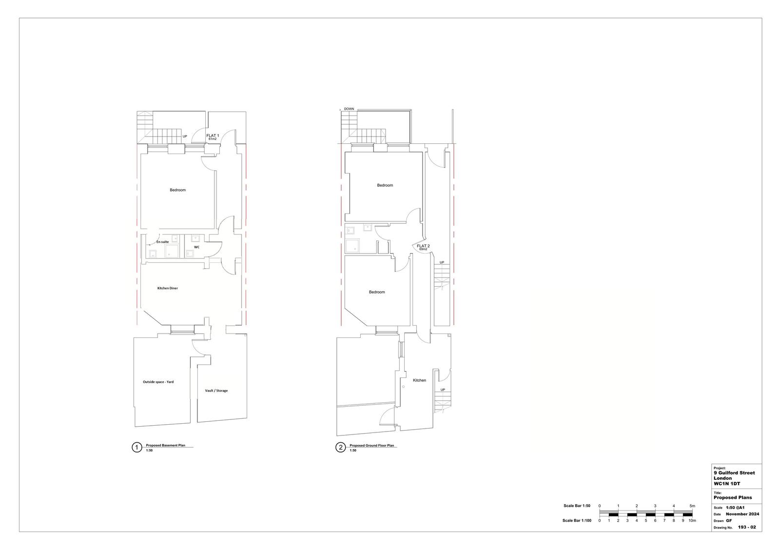
Change of use from HMO to two self-contained flats, including new front staircase (part retrospective).

Full proposal

Change of use from HMO to 2 self-contained flats (basement flat and ground floor flat); and new front staircase leading to entrance of basement flat (part retrospective).

Documents

Application Form (No Personal Data)
Application Form
Not yet archived · Original link
Existing Plans
Existing Drawing
Not yet archived · Original link
Heritage Statement
Supporting Documents
Not yet archived · Original link
Location Plan
OS Extract
Not yet archived · Original link
Location Plan
OS Extract
Not yet archived · Original link
Planning Statement
Supporting Documents
Not yet archived · Original link
Proposed Drawing
Archived · Original link
Proposed Drawing
Archived · Original link
Proposed Drawing
Archived · Original link
Schedule of works - revised
Supporting Documents
Not yet archived · Original link
Schedule of works - superseded
Supporting Documents
Not yet archived · Original link

Have your say

Your comment matters. Councils must consider every representation that raises material planning considerations.

Write a comment