← London Borough of Camden

Status

REGISTERED Change of use
Received
26 Nov 2025
New homes
0

Full proposal

Change of use of existing commercial property (Class E) with ancillary residential use on the third and fourth floor, to a residential dwelling (Class C3).

Documents

1 x Response CAAC
Consultation Response
Not yet archived · Original link
2312(Rt0)100 plans as Existing(2)
Existing Drawing
Not yet archived · Original link
2312(Rt0)100 plans as Existing.pdf
Plans
Not yet archived · Original link
2312(Rt0)300 Elevations as Existing A3L(2)
Existing Drawing
Not yet archived · Original link
2312(Rt0)300 Elevations as Existing A3L.pdf
Plans
Not yet archived · Original link
70 Grafton Way Schedules Combined(2)
Supporting Documents
Not yet archived · Original link
Air Quality Assessment(2)
Other
Not yet archived · Original link
Air Quality Assessment.pdf
Supporting Documents
Not yet archived · Original link
Amended Application form(2)
Application Form
Not yet archived · Original link
Amended CIL Form(2)
Other
Not yet archived · Original link
Application Form (No Personal Data)
Application Form
Not yet archived · Original link
Elevations as Proposed(2)
Proposed Drawing
Not yet archived · Original link
Elevations as Proposed.pdf (SUPERSEDED)
Plans
Not yet archived · Original link
Financial Viability Report
Supporting Documents
Not yet archived · Original link
Grafton Mews 3D View.pdf
Supporting Documents
Not yet archived · Original link
Grafton Way 3D View 1.pdf
Supporting Documents
Not yet archived · Original link
Grafton Way 3D View 2.pdf
Supporting Documents
Not yet archived · Original link
Grafton Way Rooftop 3D View.pdf
Supporting Documents
Not yet archived · Original link
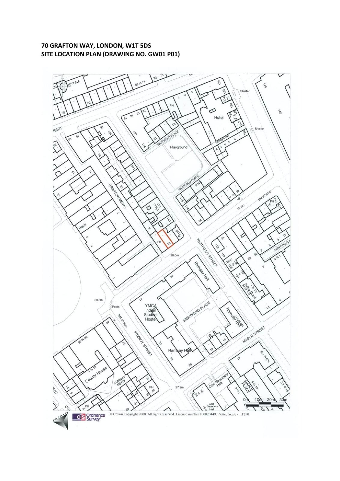
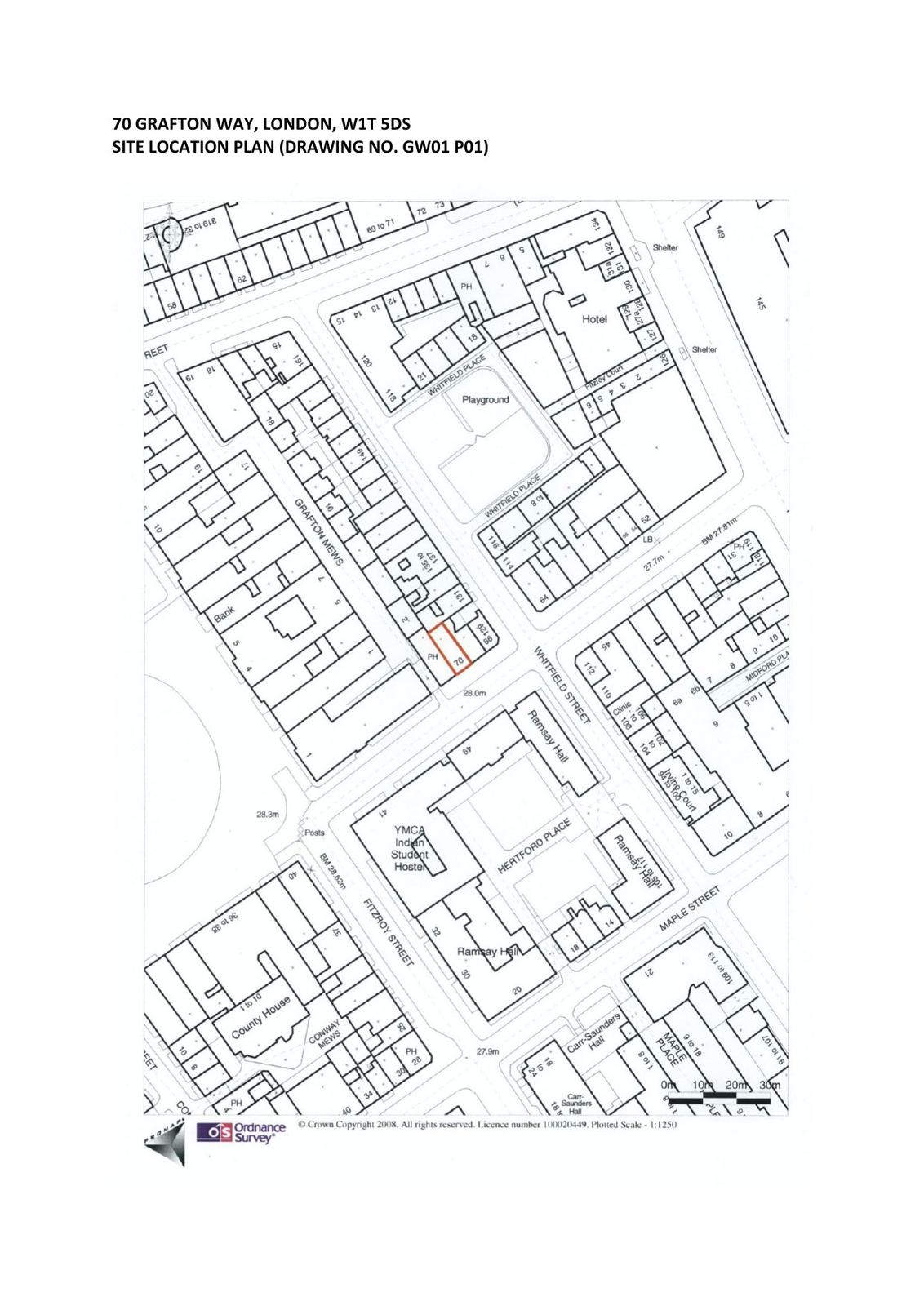
LocationPlan(2)
Other
Not yet archived · Original link
LocationPlan.pdf
Plans
Not yet archived · Original link
Noise Impact Assessment(2)
Other
Not yet archived · Original link
Noise Impact Assessment.pdf
Supporting Documents
Not yet archived · Original link
Planning Statement (REVISED)
Supporting Documents
Not yet archived · Original link
Planning Statement and Marketing Evidence
Design and Access Statement
Not yet archived · Original link
Plans as Proposed.pdf (SUPERSEDED)
Supporting Documents
Not yet archived · Original link
Proposed Elevations (REVISED)
Plans
Not yet archived · Original link

Have your say

Your comment matters. Councils must consider every representation that raises material planning considerations.

Write a comment