← London Borough of Camden

Status

REGISTERED Change of use
Received
05 Dec 2025
New homes
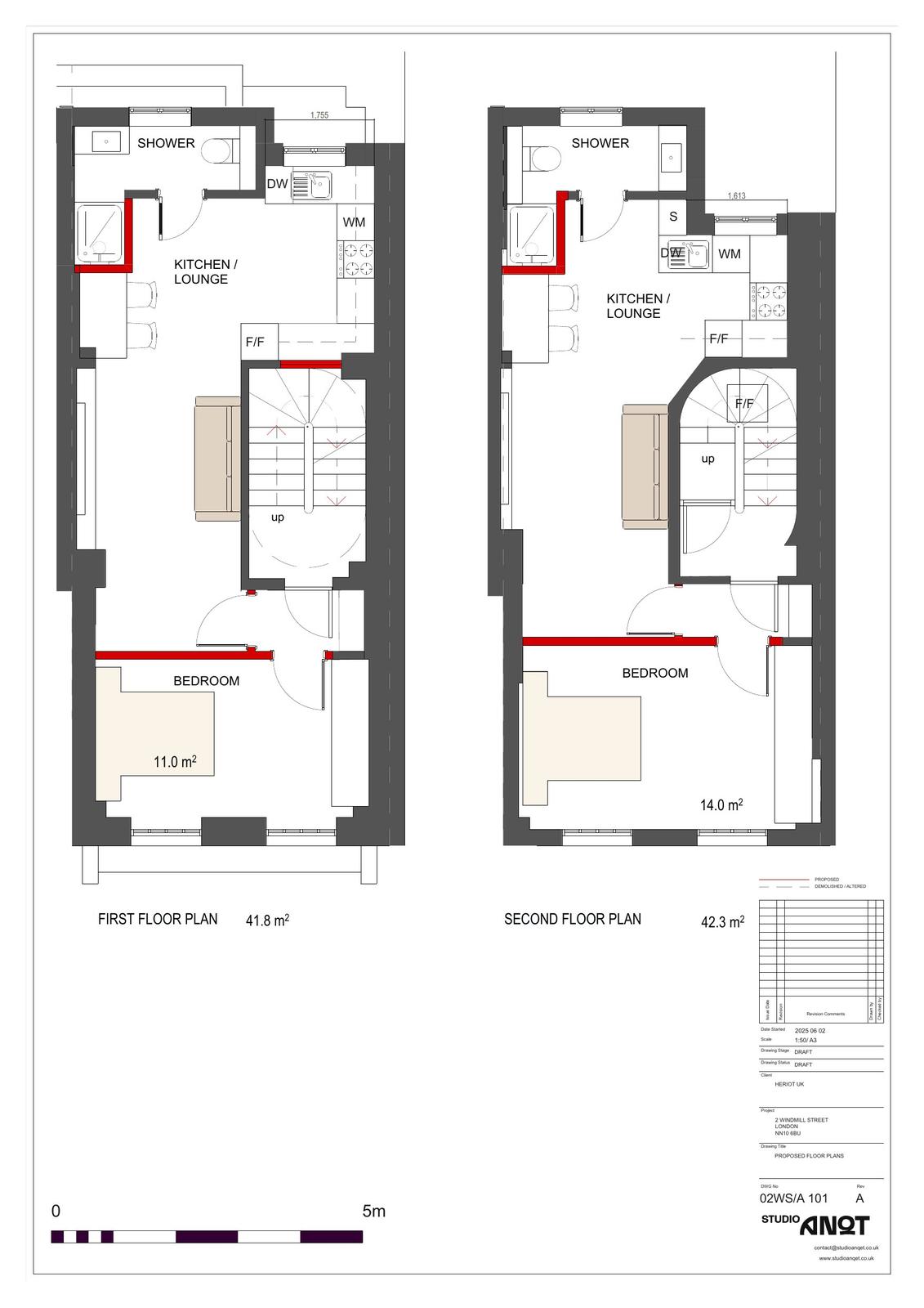
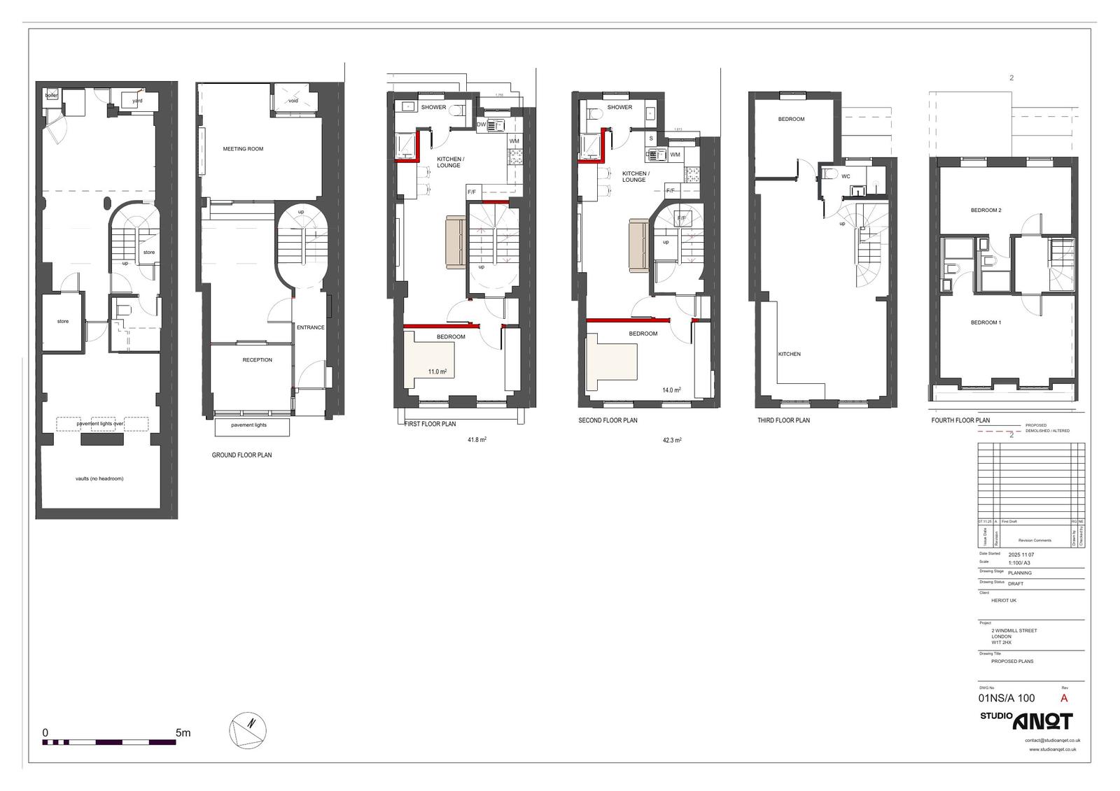
2

Full proposal

Change of use of first and second floor from office (Class E) to residential (Class C3) to form 2x -1-bedroom units.

Documents

2 WINDMILL STREET DAS 2025 11 25.pdf
M3 Document
Not yet archived · Original link
2 Windmill Street Planning Statement Final Merged.pdf
M3 Document
Not yet archived · Original link
2 Windmill Street- Fire strategy report 08-2025..pdf
M3 Document
Not yet archived · Original link
2 WS A 001 LOCATION PLAN REV A.pdf
M3 Document
Not yet archived · Original link
2 WS A 900 EXISTING PLANS REV A.pdf
Existing Drawing
Not yet archived · Original link
Application Form (No Personal Data)
Application Form
Not yet archived · Original link
AQ15979 Air Quality Assessment Final.pdf
M3 Document
Not yet archived · Original link
Lease Comps Report.pdf
M3 Document
Not yet archived · Original link
Marketing Evidence Report.pdf
M3 Document
Not yet archived · Original link
PLD 25 62741 2025.2422.PRE 2 Windmill Street
M3 Document
Not yet archived · Original link
RIB To Let Brochure.pdf
M3 Document
Not yet archived · Original link

Have your say

Your comment matters. Councils must consider every representation that raises material planning considerations.

Write a comment