← London Borough of Camden

Status

REGISTERED House extension
Received
06 Jan 2026
New homes
0

Full proposal

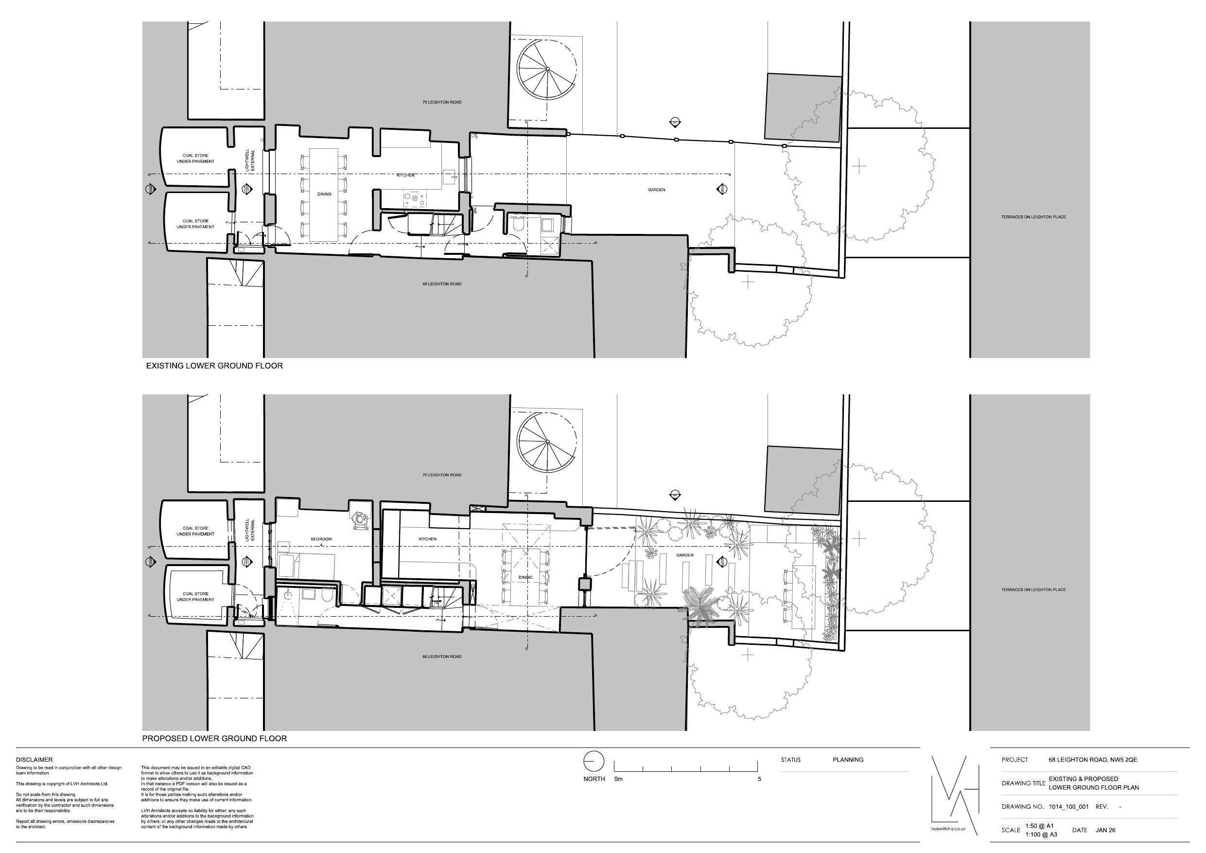
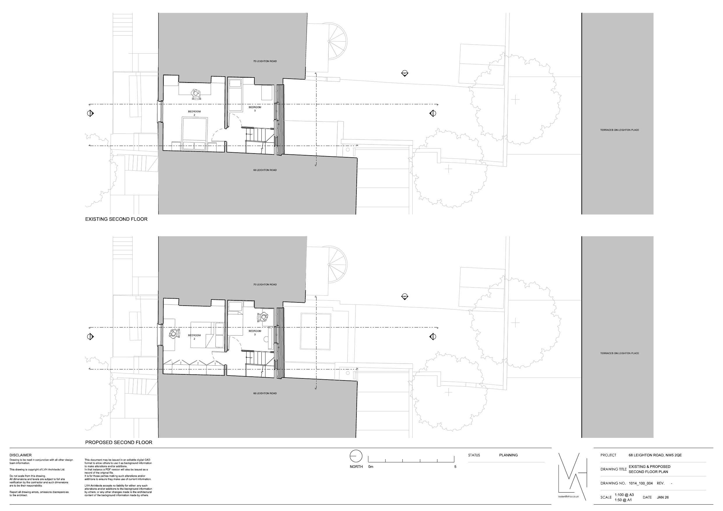
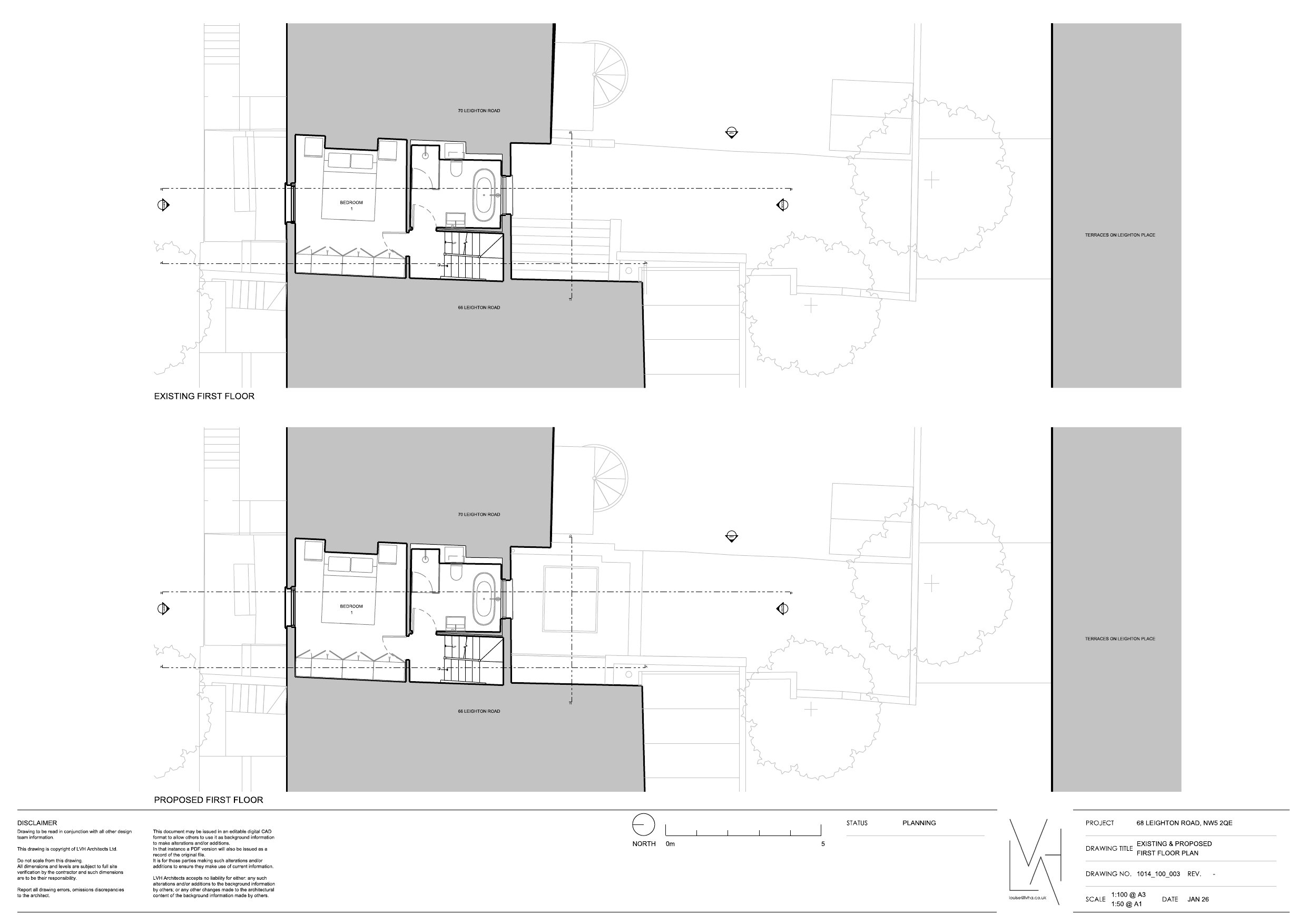
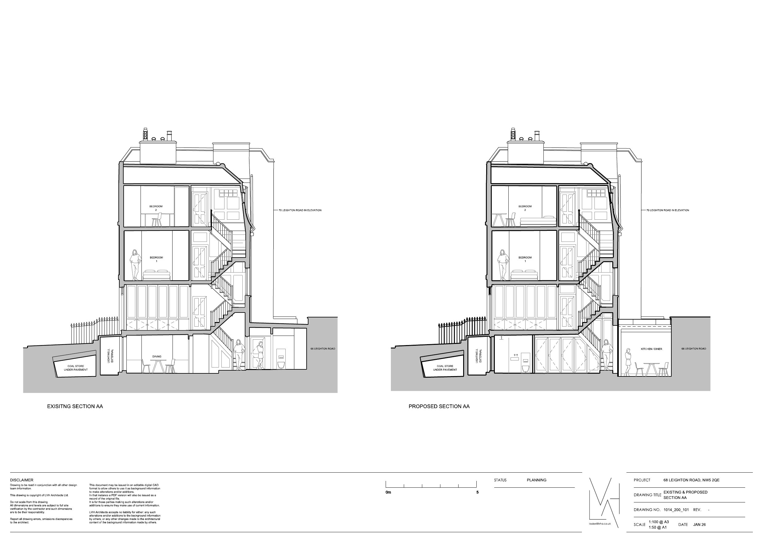
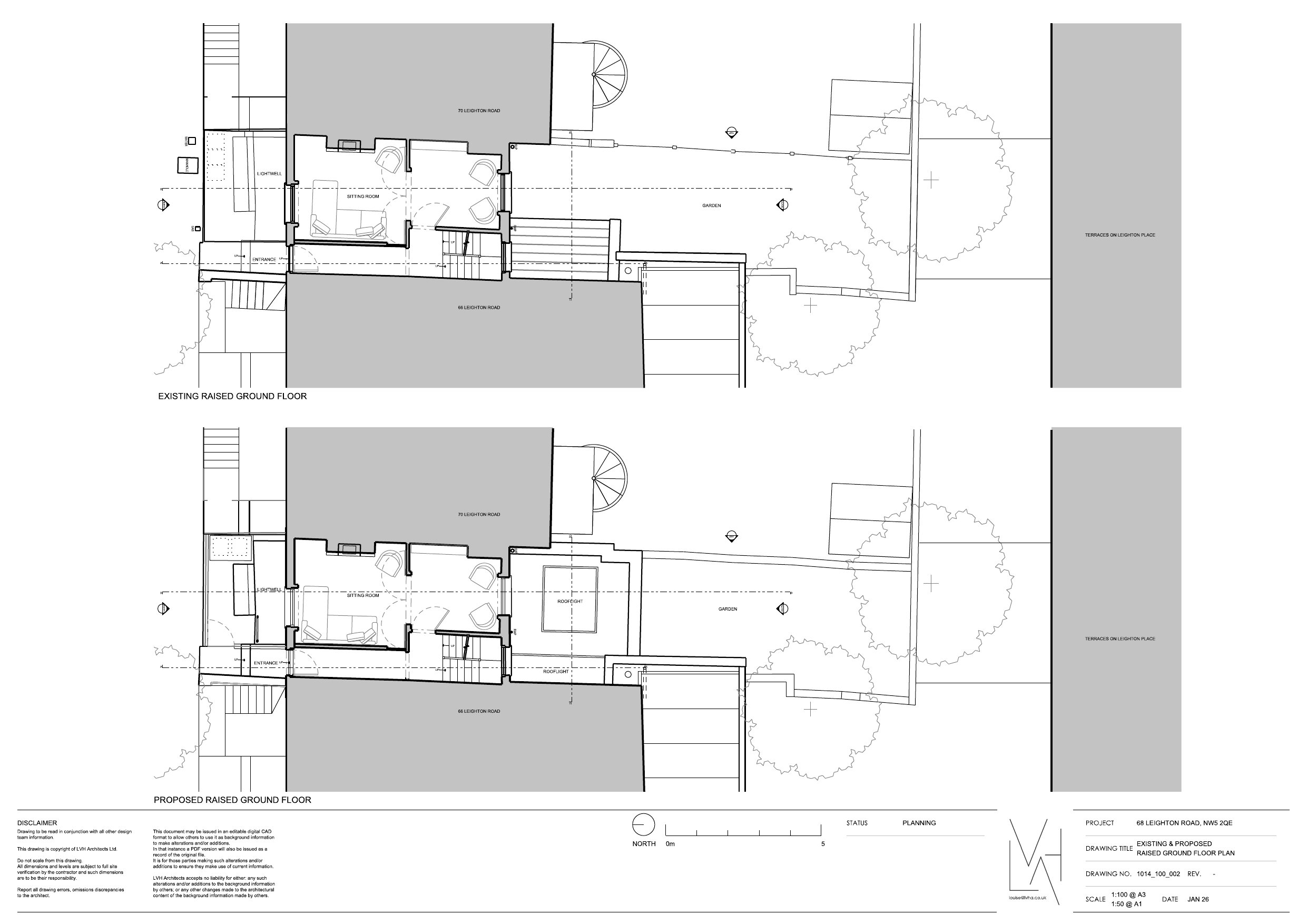
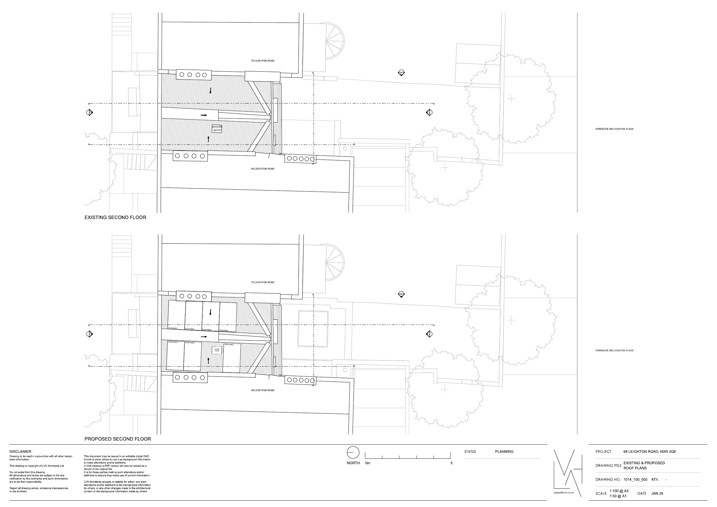
Erection of a single-storey rear extension. Replacement of existing cast iron railings and installation of a new bin store at the front of the property. At lower ground level, replacement of windows to the front elevation. Internal alterations at lower ground floor to reconfigure the layout and introduce timber wall panelling.

Documents

Supporting Documents
Archived · Original link
Application Form
Archived · Original link
Existing & Proposed Drawing
Archived · Original link
Design and Access Statement
Archived · Original link
Existing & Proposed Drawing
Archived · Original link
Existing & Proposed Drawing
Archived · Original link
Existing & Proposed Drawing
Archived · Original link
Existing & Proposed Drawing
Archived · Original link
Existing & Proposed Drawing
Archived · Original link
Existing & Proposed Drawing
Archived · Original link
Existing & Proposed Drawing
Archived · Original link
Existing & Proposed Drawing
Archived · Original link
Existing & Proposed Drawing
Archived · Original link
Existing & Proposed Drawing
Archived · Original link
Existing & Proposed Drawing
Archived · Original link
OS Extract
Archived · Original link
Existing & Proposed Drawing
Archived · Original link

Have your say

Your comment matters. Councils must consider every representation that raises material planning considerations.

Write a comment