← London Borough of Camden

Status

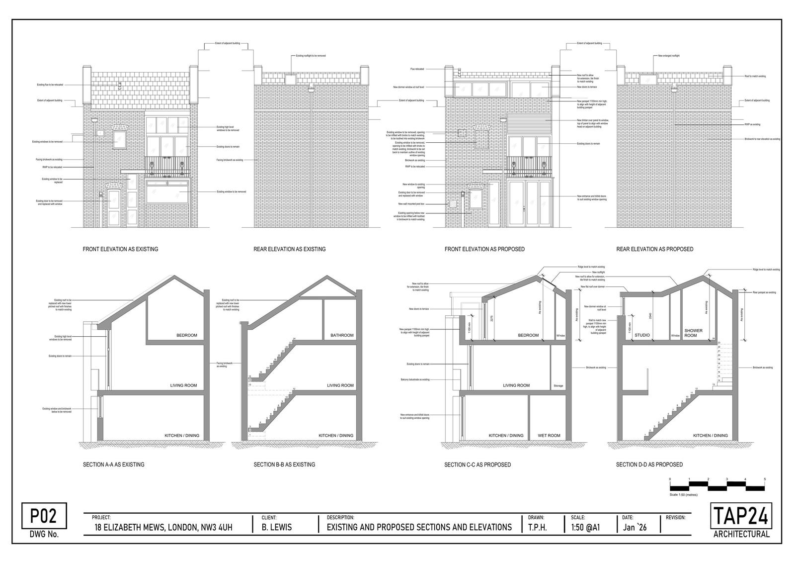
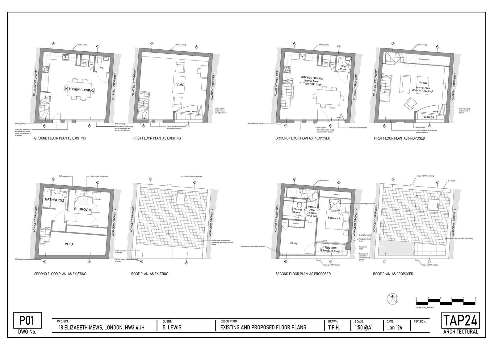
REGISTERED House extension
Received
14 Jan 2026
New homes
0

Full proposal

Erection of mansard roof extension with terrace to front and associated increase in front parapet height with alterations to front fenestration

Documents

Consultation Response
Archived · Original link
M3 Document
Archived · Original link
M3 Document
Archived · Original link
M3 Document
Archived · Original link
M3 Document
Archived · Original link
M3 Document
Archived · Original link
Application Form
Archived · Original link
M3 Document
Archived · Original link

Have your say

Your comment matters. Councils must consider every representation that raises material planning considerations.

Write a comment