← London Borough of Camden

Status

REGISTERED House extension
Received
15 Jan 2026
New homes
0

Full proposal

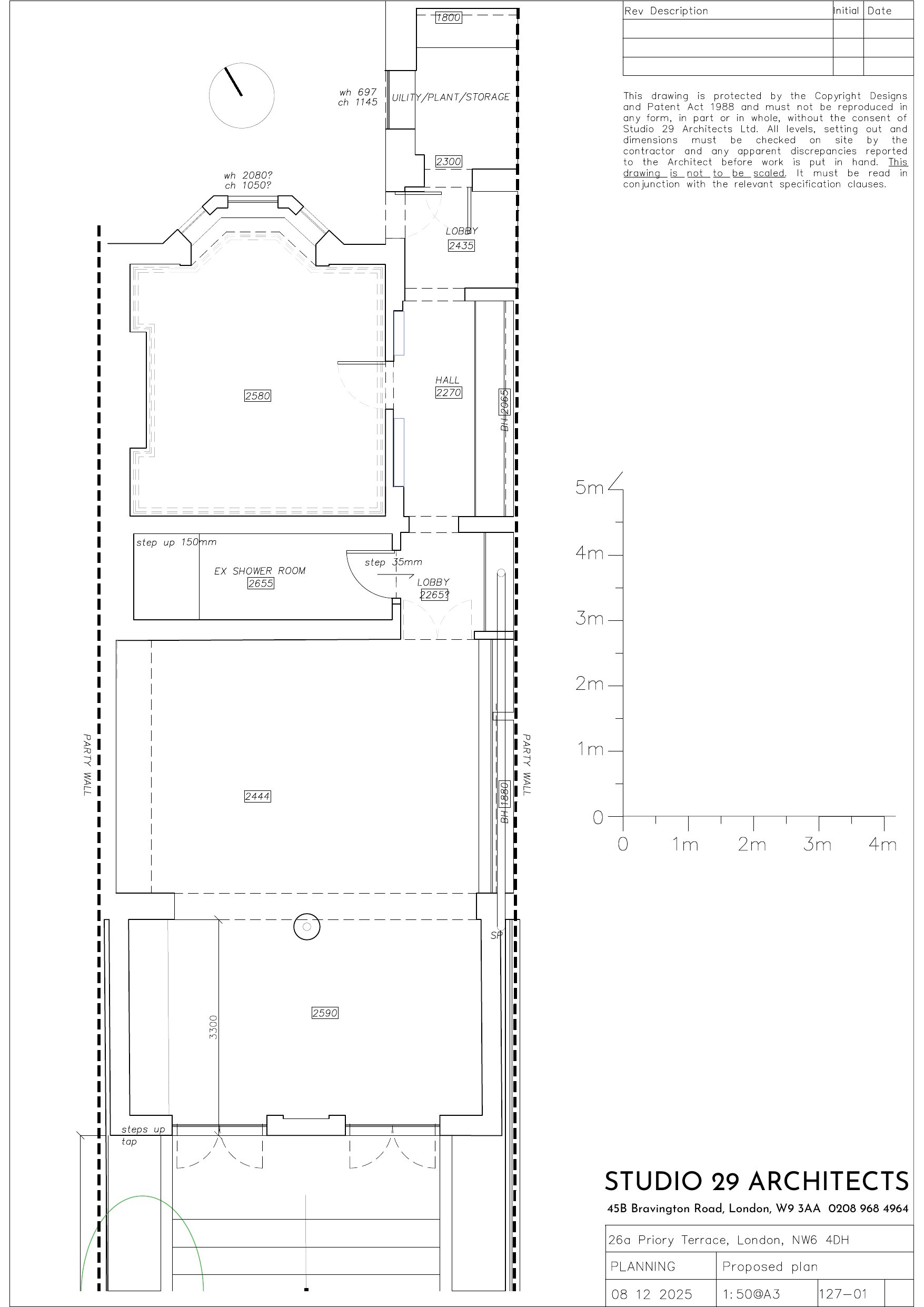
Erection of rear single storey extension

Documents

Application Form
Archived · Original link
Design and Access Statement
Archived · Original link
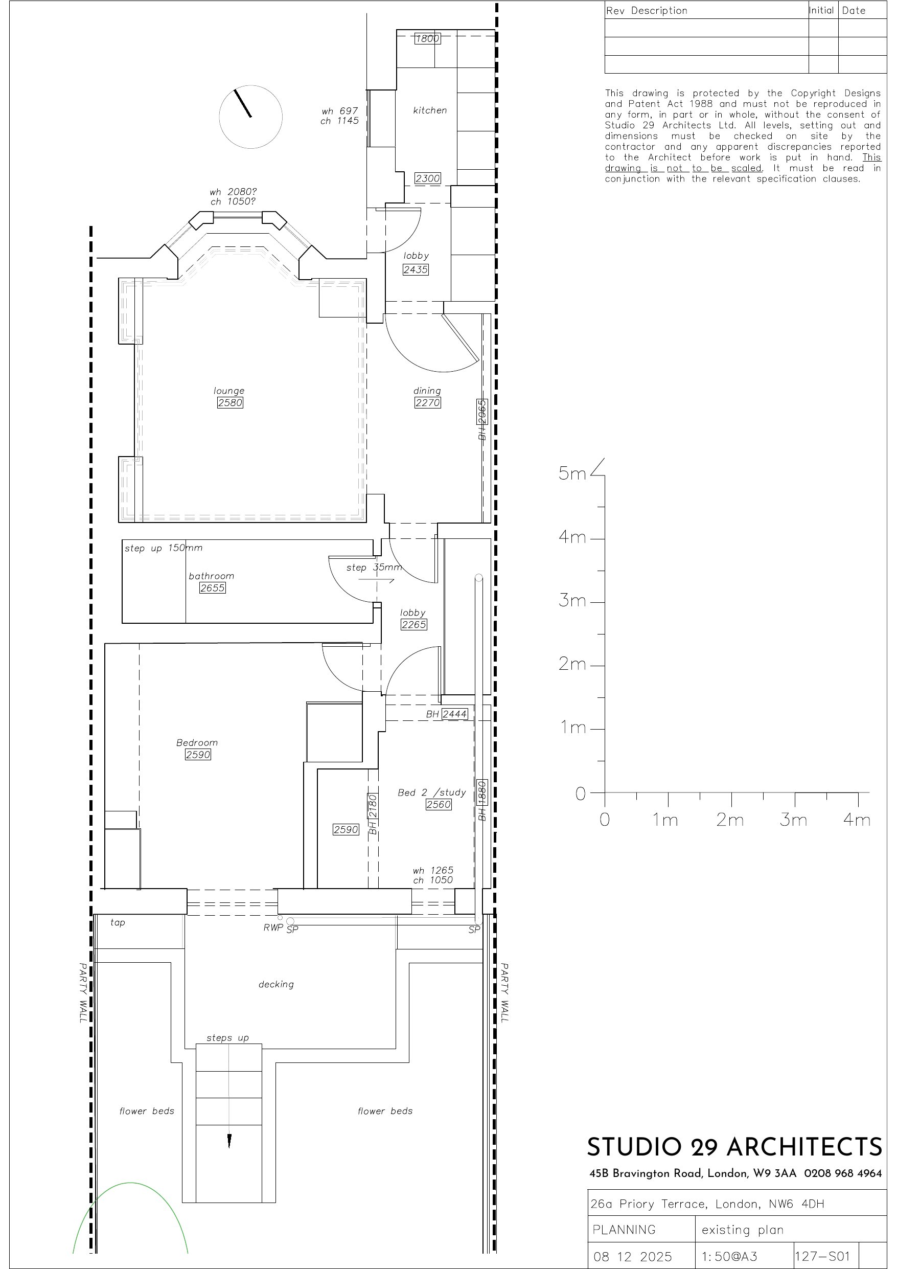
Existing Drawing
Archived · Original link
M3 Document
Archived · Original link
Existing Drawing
Archived · Original link
OS Extract
Archived · Original link
Proposed Drawing
Archived · Original link
Proposed Drawing
Archived · Original link
Proposed Drawing
Archived · Original link

Have your say

Your comment matters. Councils must consider every representation that raises material planning considerations.

Write a comment