← London Borough of Camden

Status

REGISTERED House extension
Received
19 Jan 2026
New homes
0

Full proposal

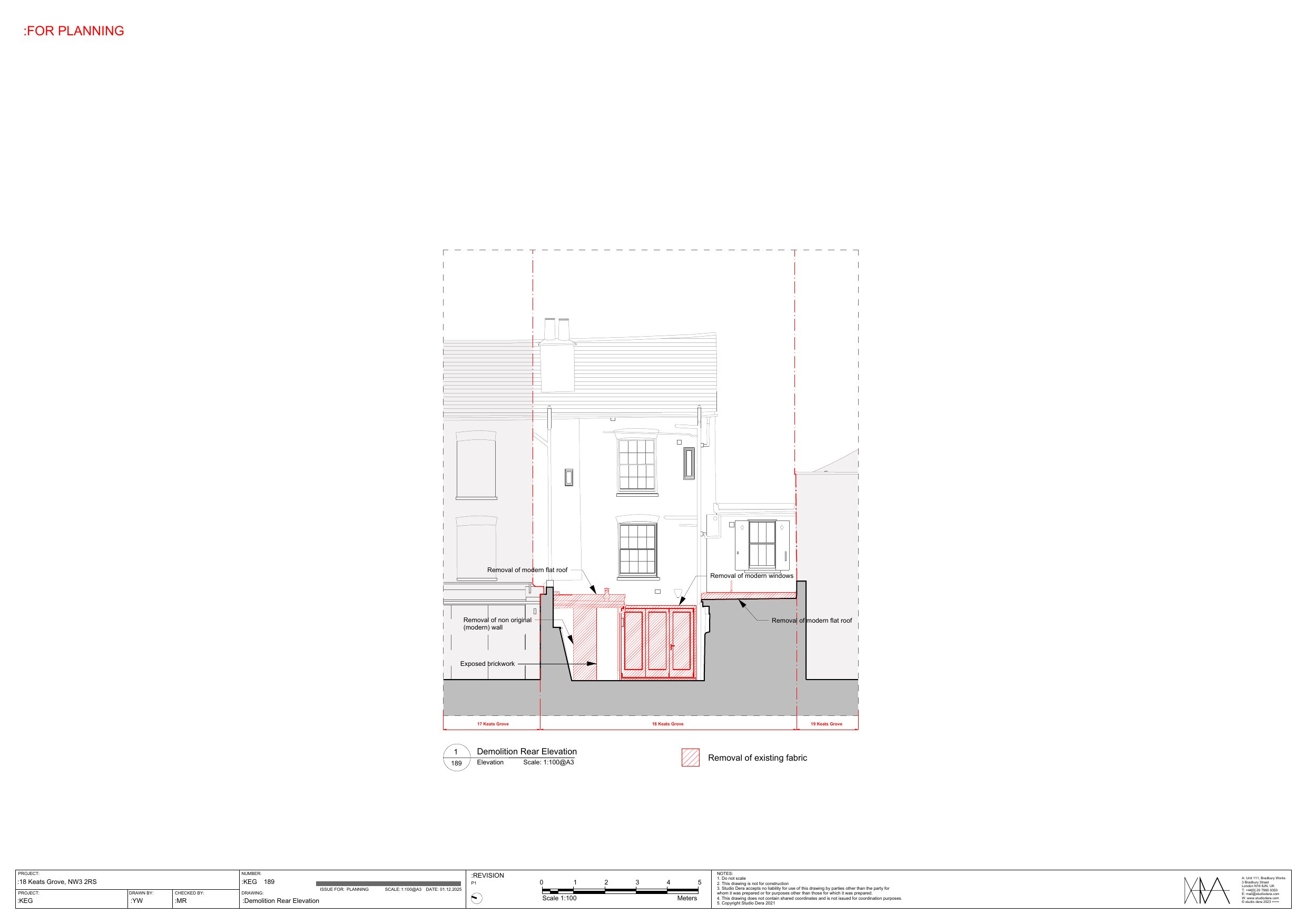
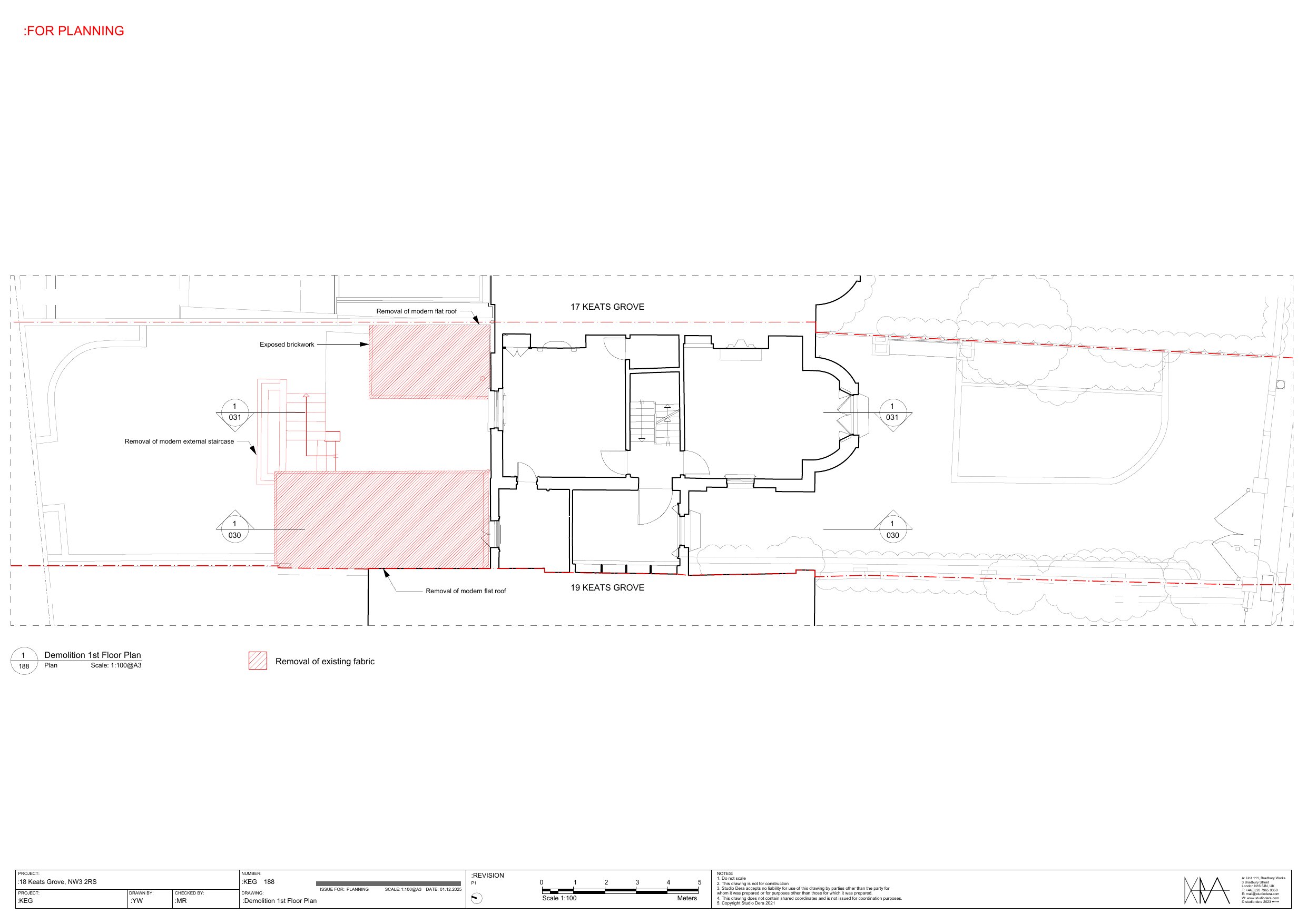
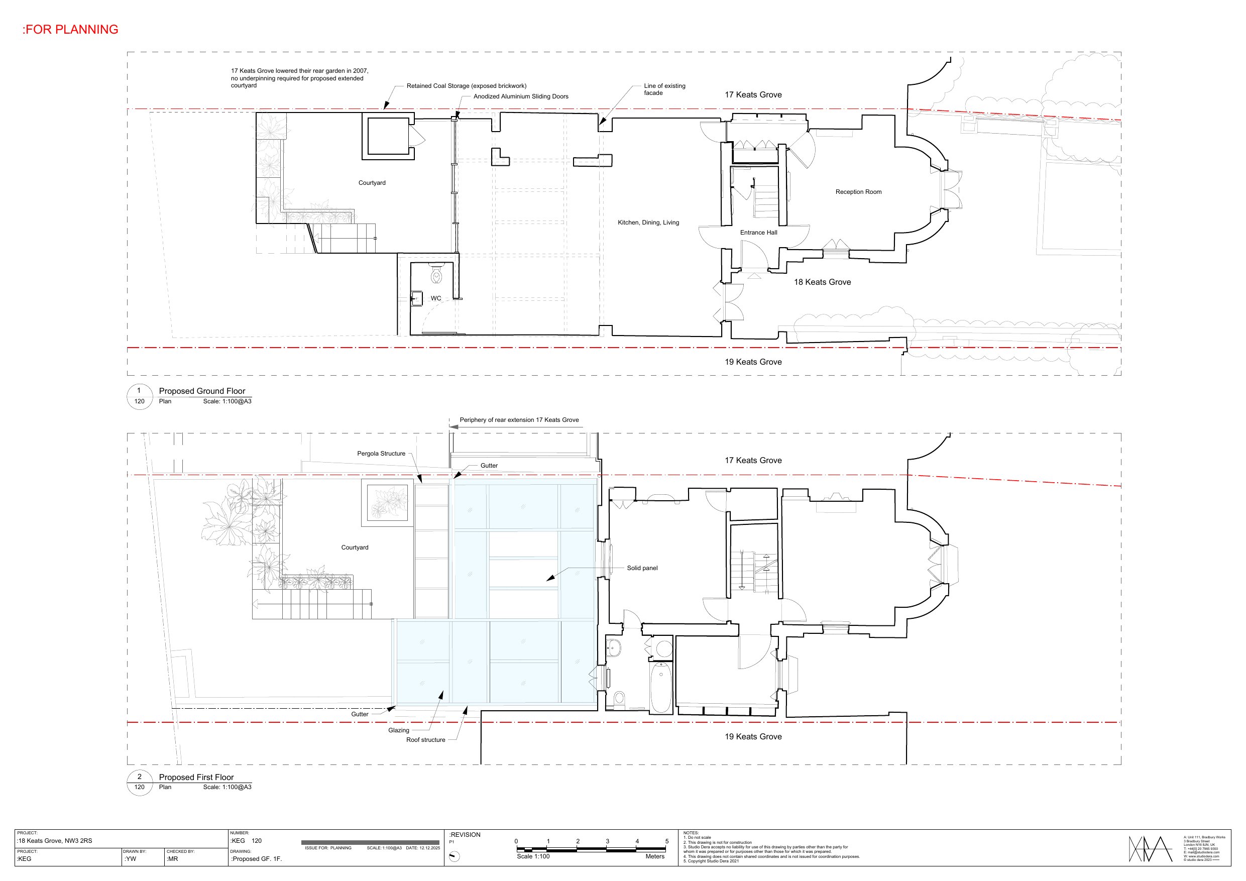
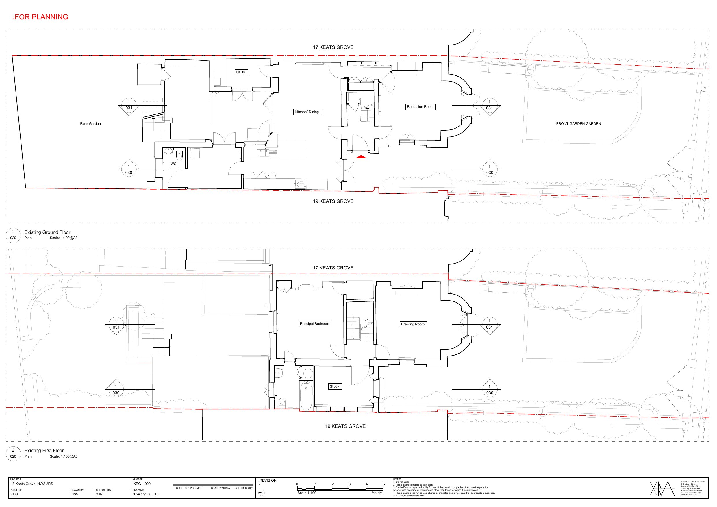
Demolition of existing single storey rear extension(s) and erection of a replacement full width single storey rear extension within an extended sunken courtyard into the rear garden

Documents

Consultation Response
Archived · Original link
Consultation Response
Archived · Original link
Consultation Response
Archived · Original link
Application Form
Archived · Original link
Design and Access Statement
Archived · Original link
Design and Access Statement
Archived · Original link
Design and Access Statement
Archived · Original link
Proposed Drawing
Archived · Original link
Proposed Drawing
Archived · Original link
Existing Drawing
Archived · Original link
Existing Drawing
Archived · Original link
Existing Drawing
Archived · Original link
Existing Drawing
Archived · Original link
OS Extract
Archived · Original link
Proposed Drawing
Archived · Original link
Proposed Drawing
Archived · Original link

Have your say

Your comment matters. Councils must consider every representation that raises material planning considerations.

Write a comment