← London Borough of Camden

Status

REGISTERED House extension
Received
20 Jan 2026
New homes
0

Full proposal

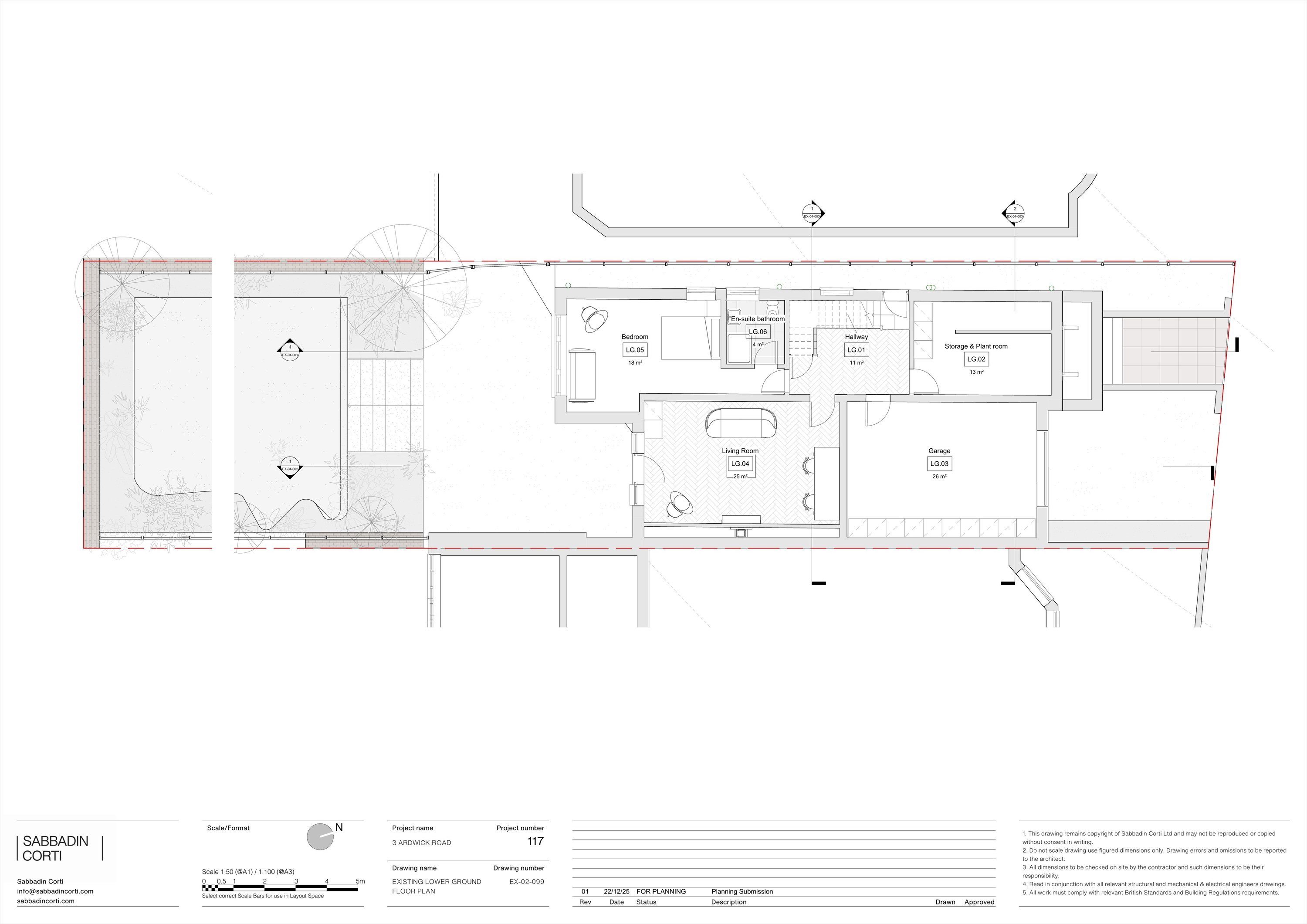
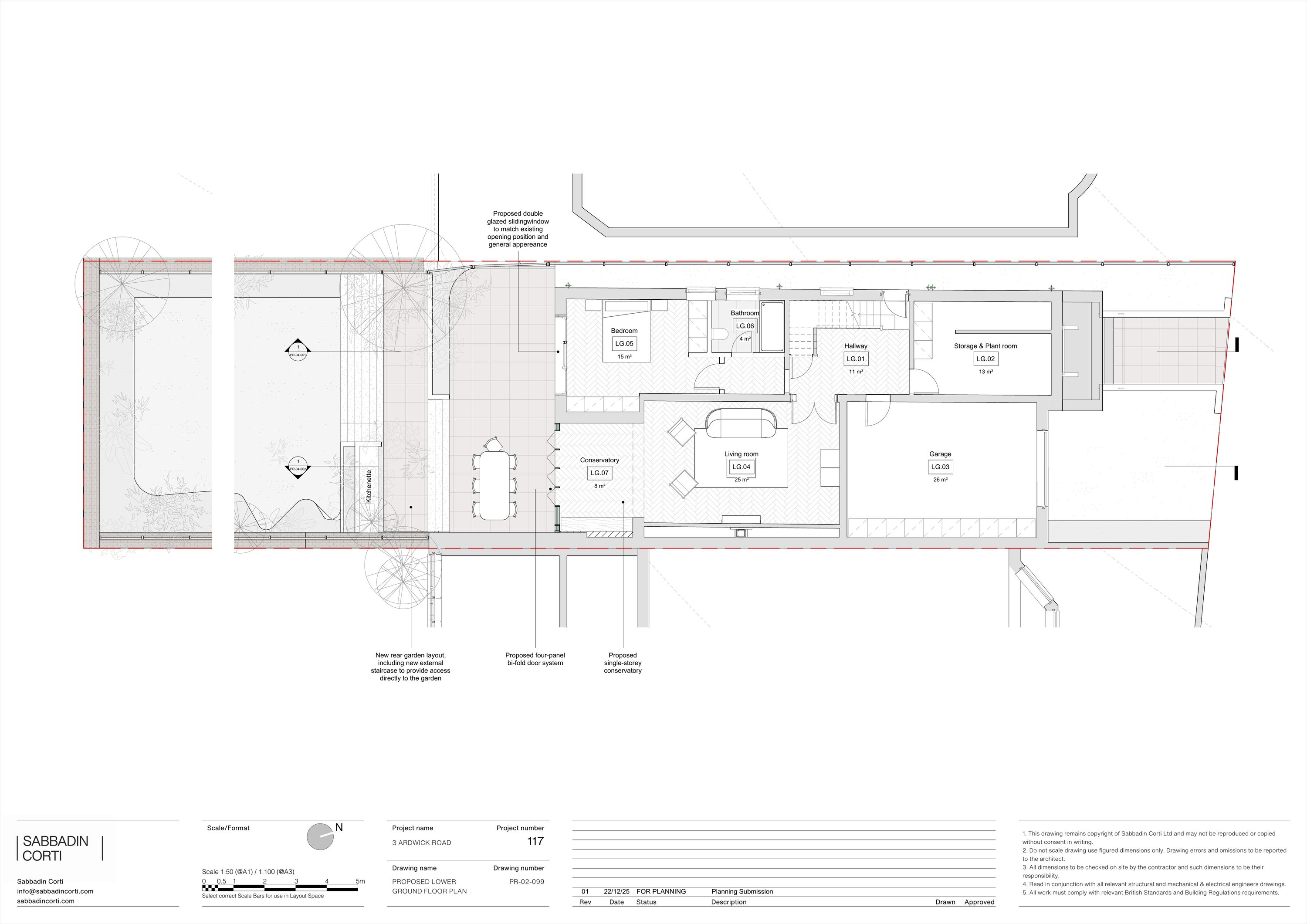
Erection of single storey rear extension, replacement of rear lower-ground-floor windows and the creation of a stepped garden and landscaping

Documents

Application Form
Archived · Original link
Existing Drawing
Archived · Original link
OS Extract
Archived · Original link
Proposed Drawing
Archived · Original link

Have your say

Your comment matters. Councils must consider every representation that raises material planning considerations.

Write a comment