← London Borough of Camden

Status

REGISTERED Change of use
Received
21 Jan 2026
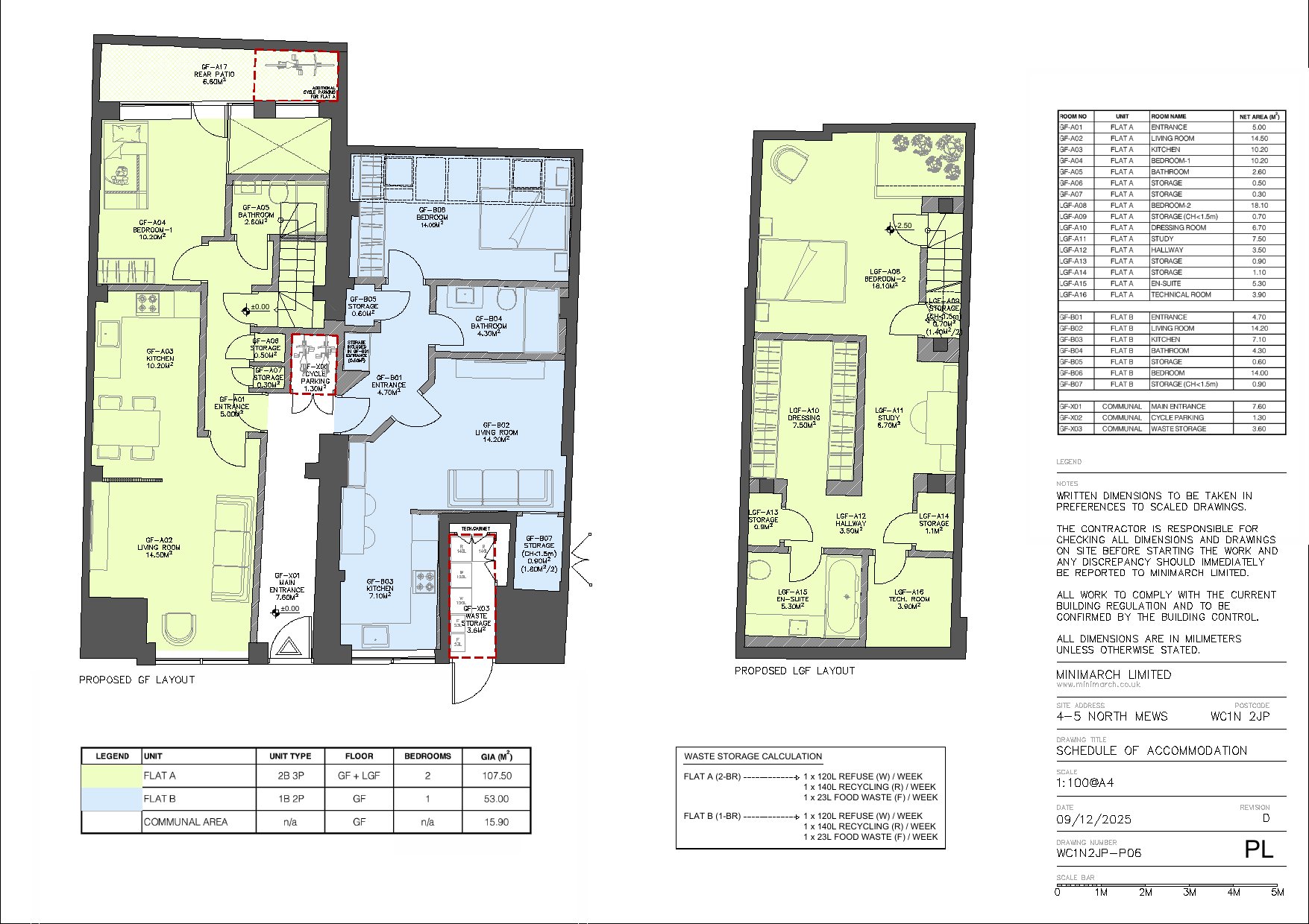
New homes
2

Full proposal

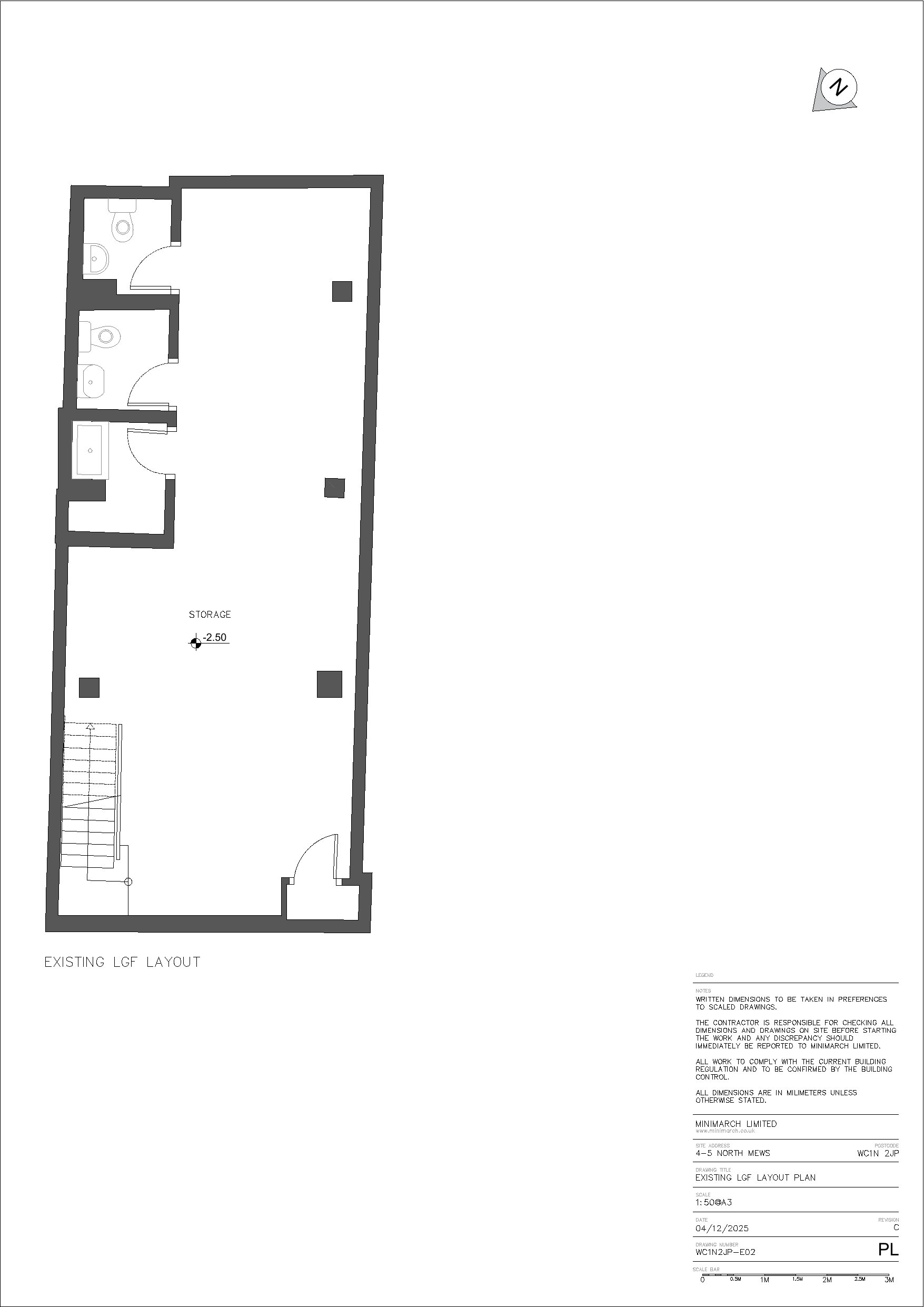
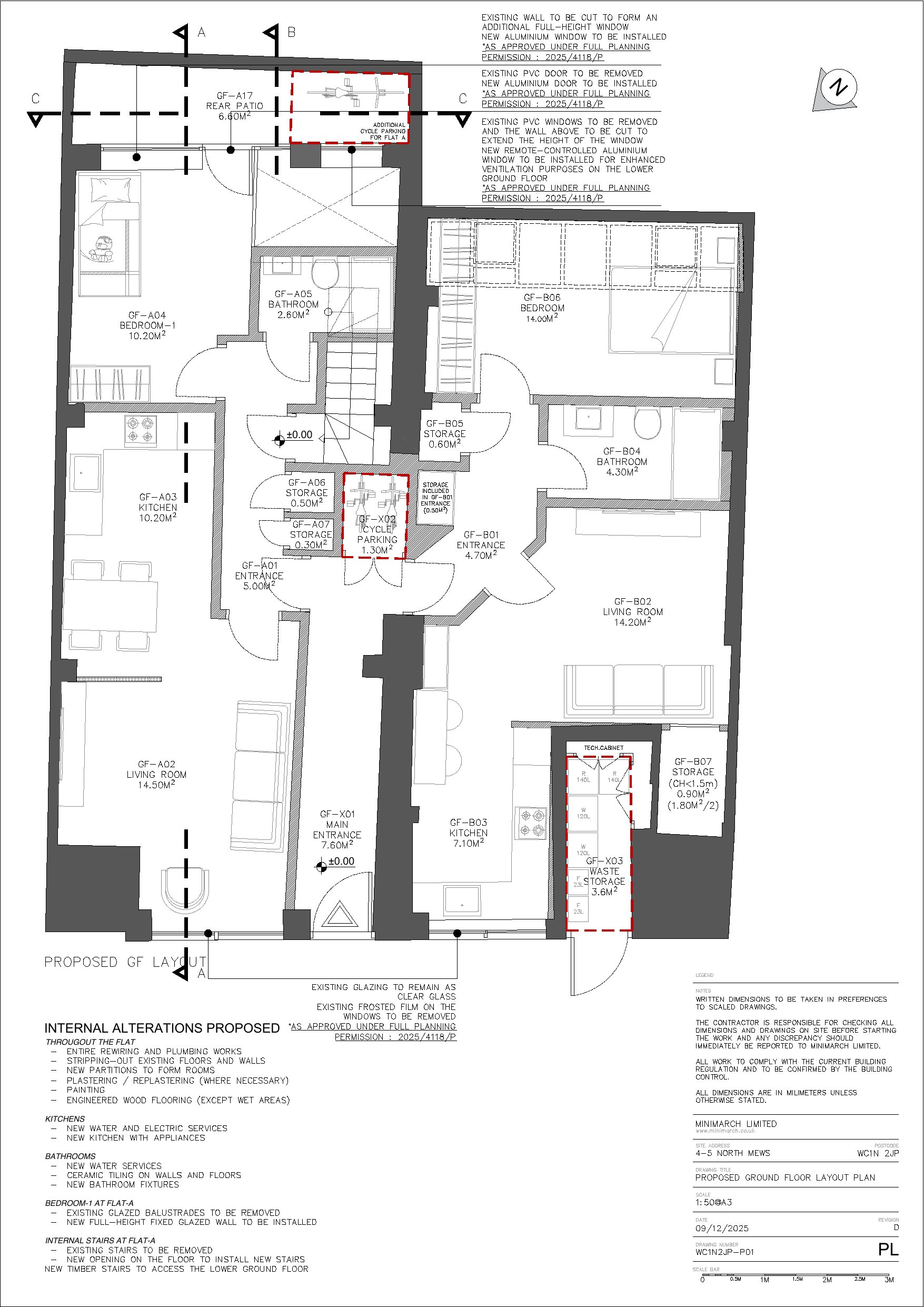
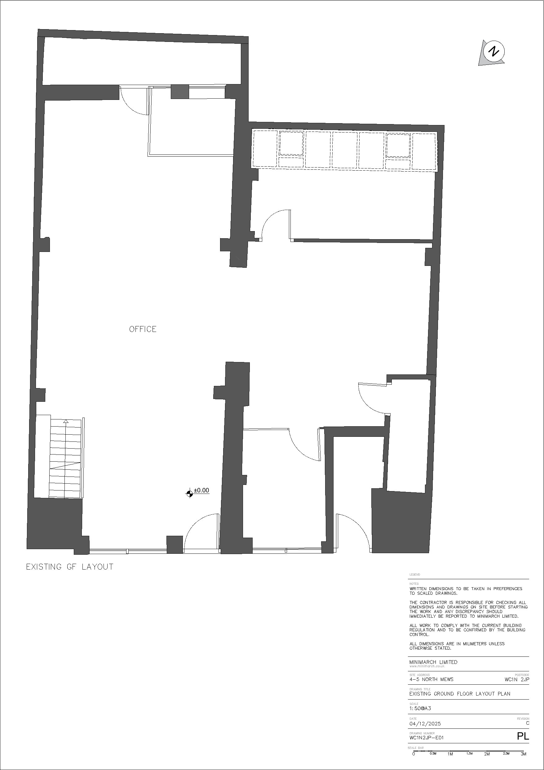
Change of use existing commerical space on lower ground and ground floors (Class E) to 2 residential units (Class C3)

Have your say

Your comment matters. Councils must consider every representation that raises material planning considerations.

Write a comment