← London Borough of Camden

Status

REGISTERED House extension
Received
22 Jan 2026
New homes
0

Full proposal

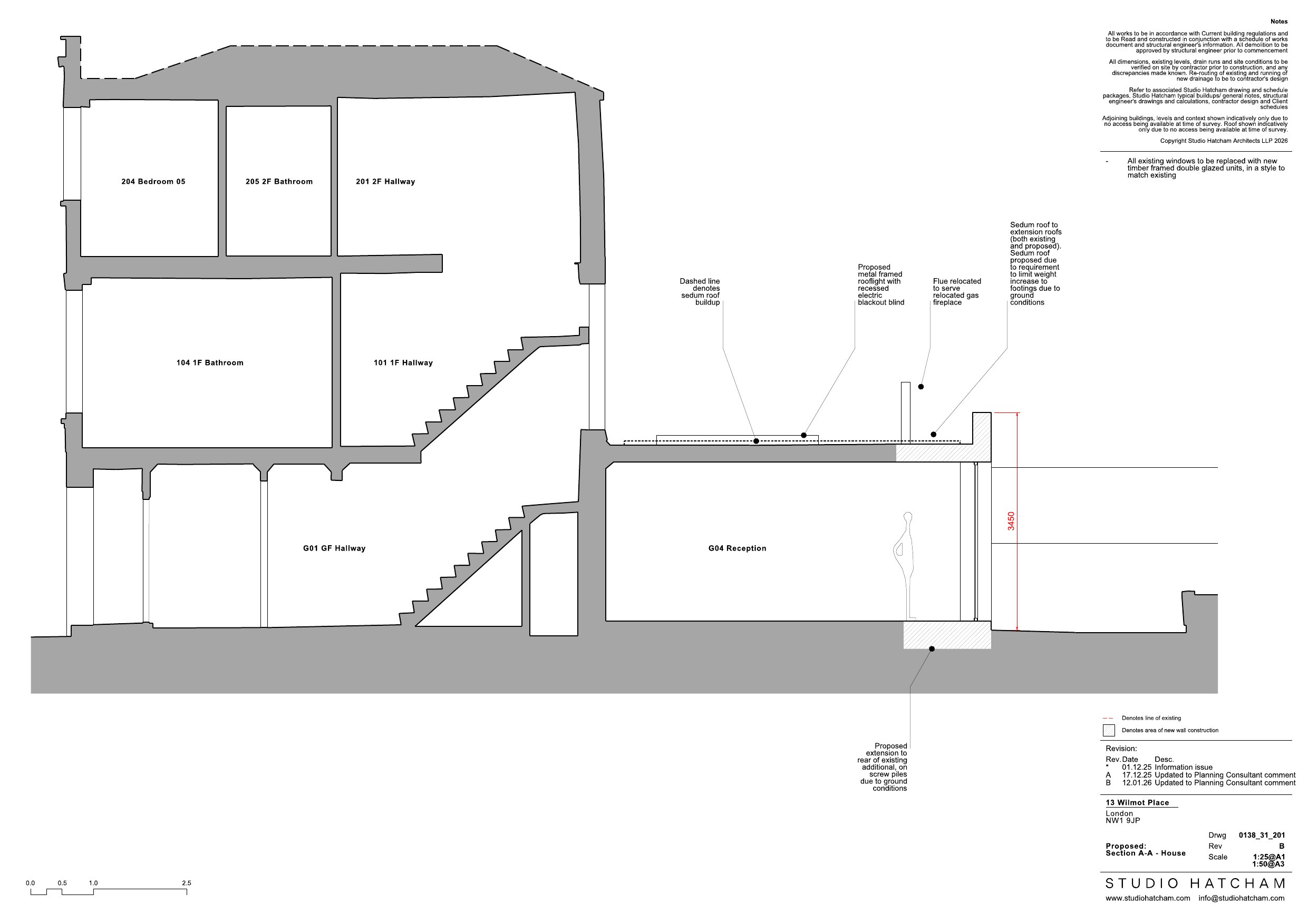
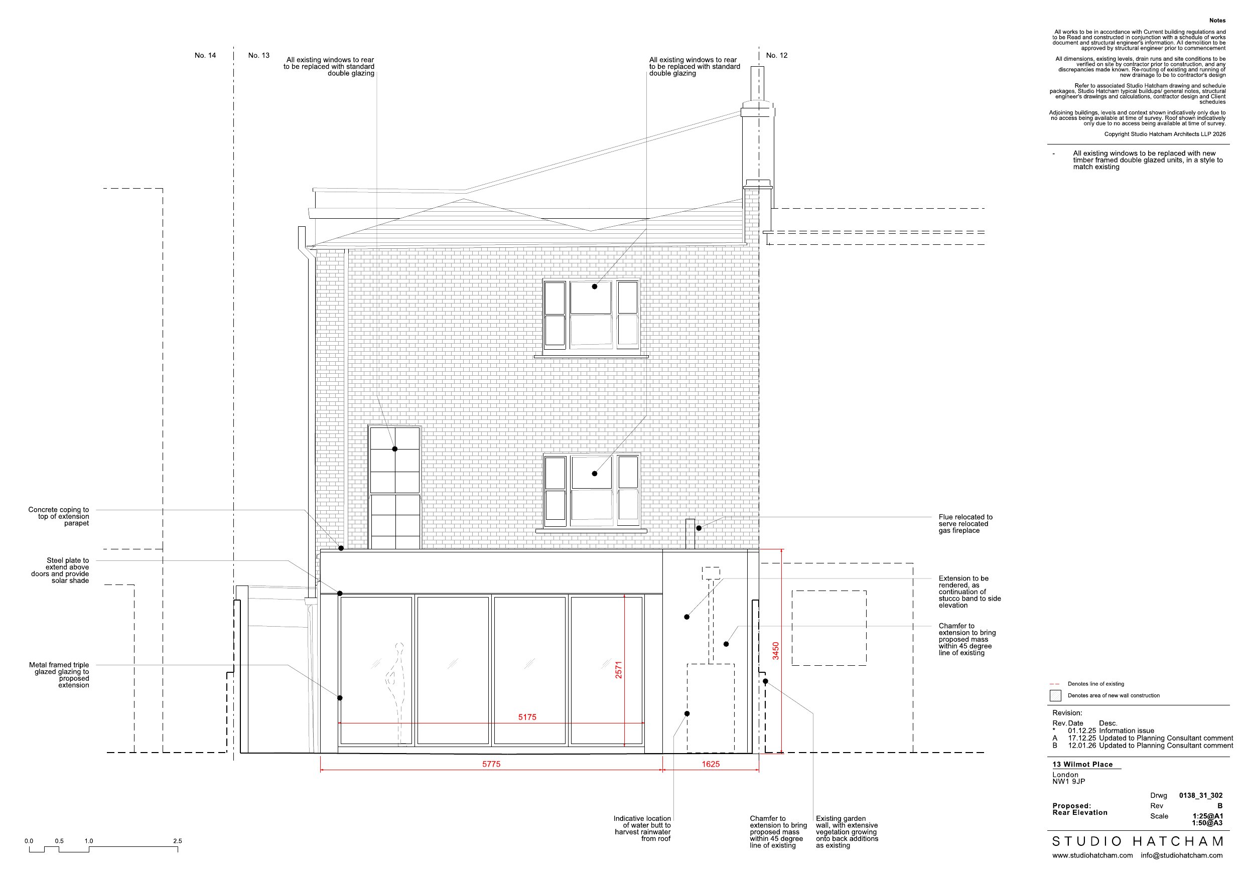
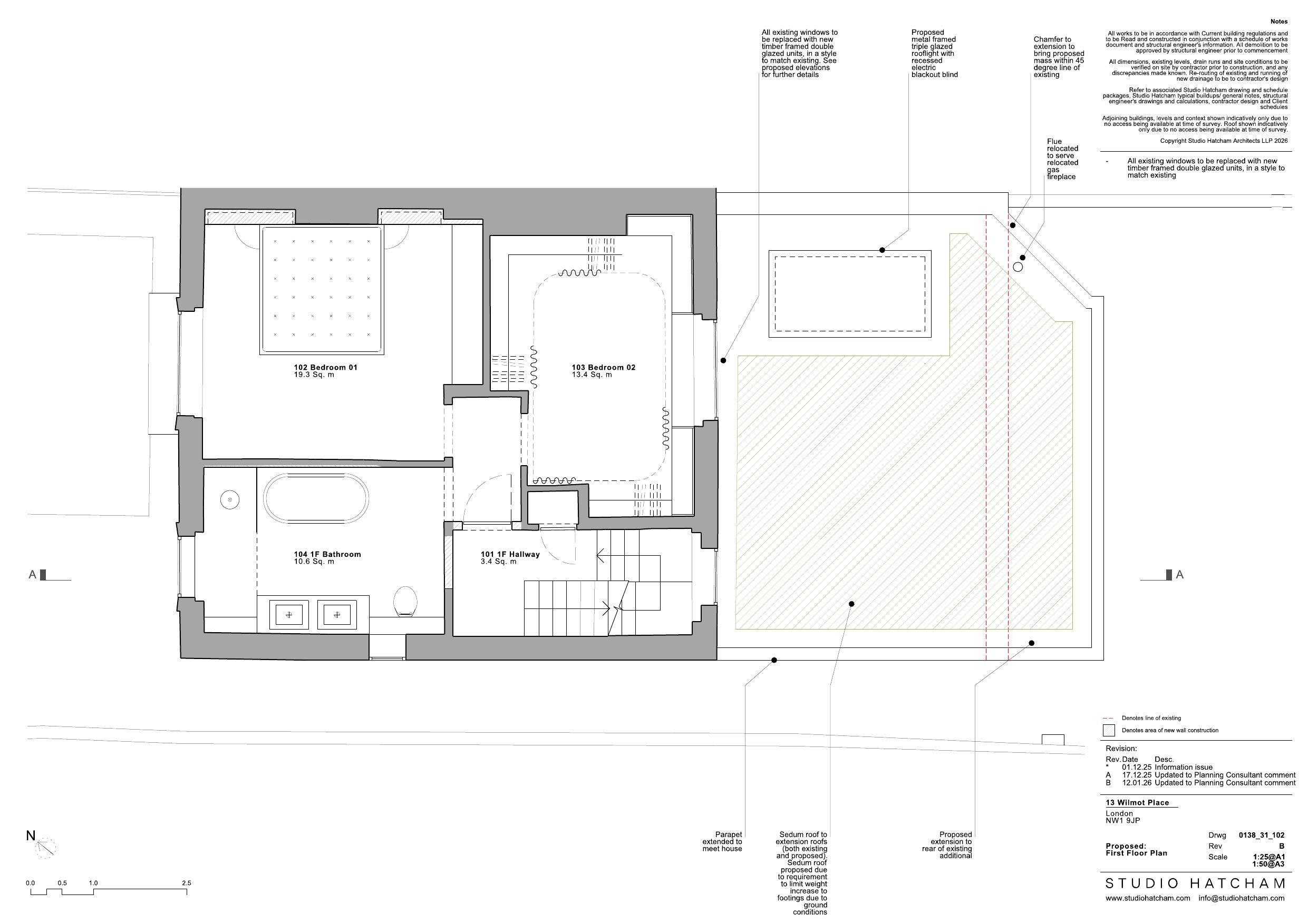
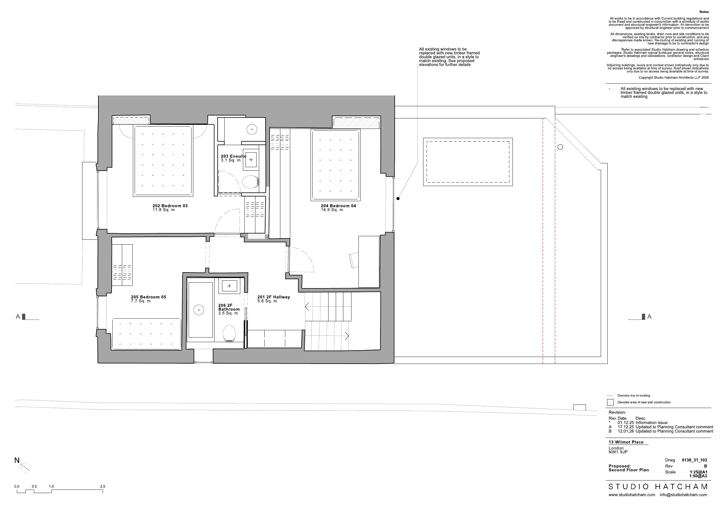
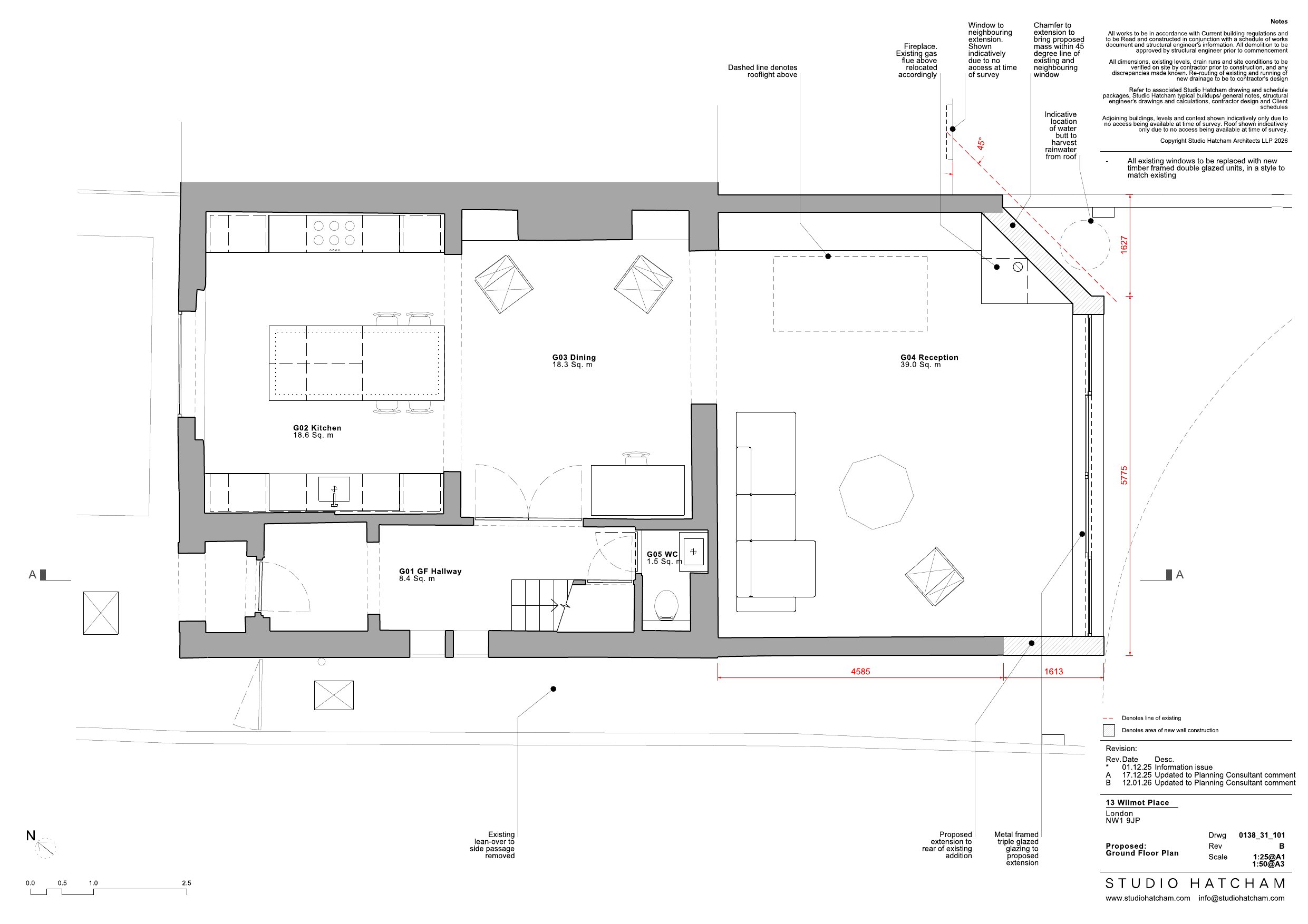
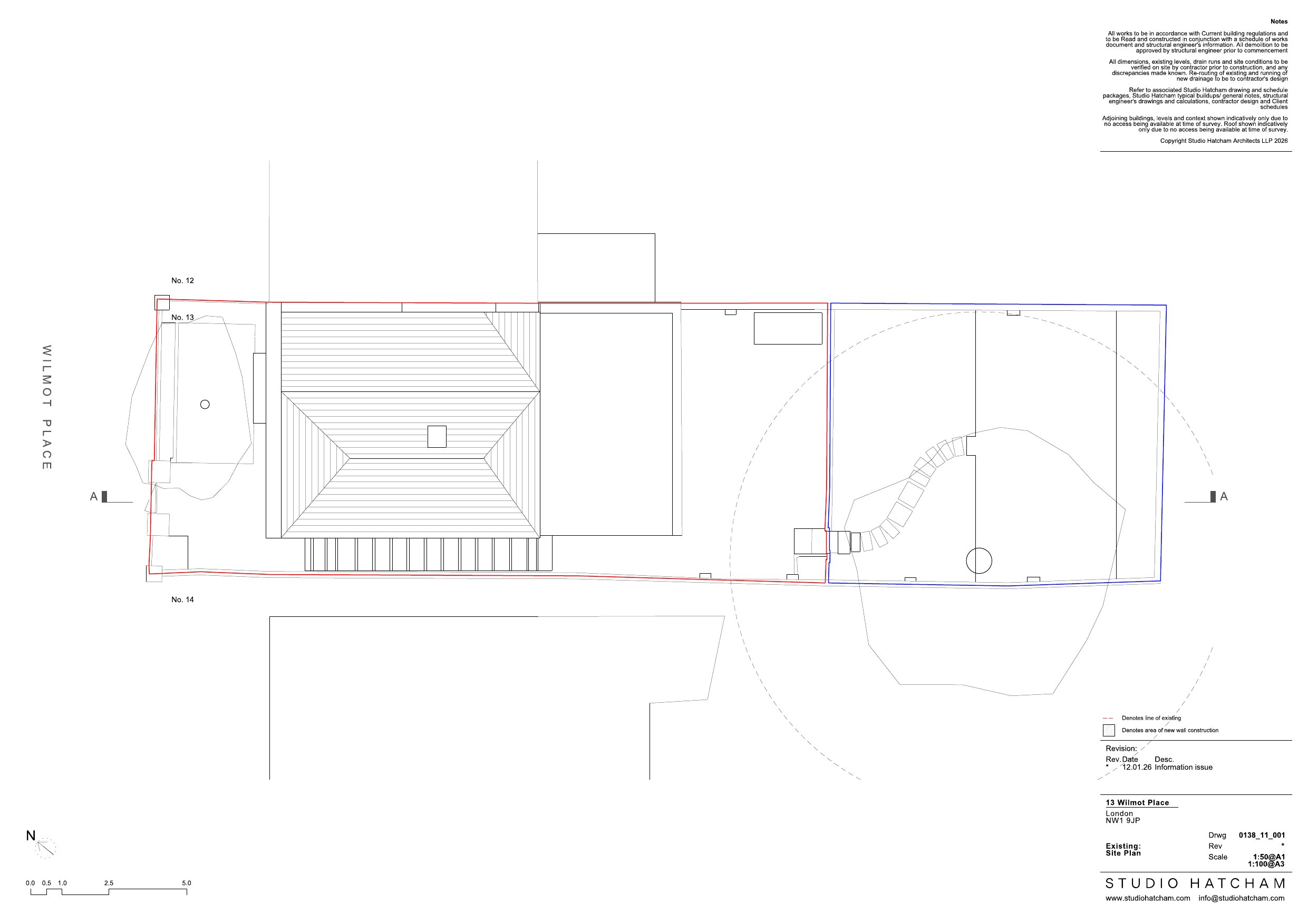
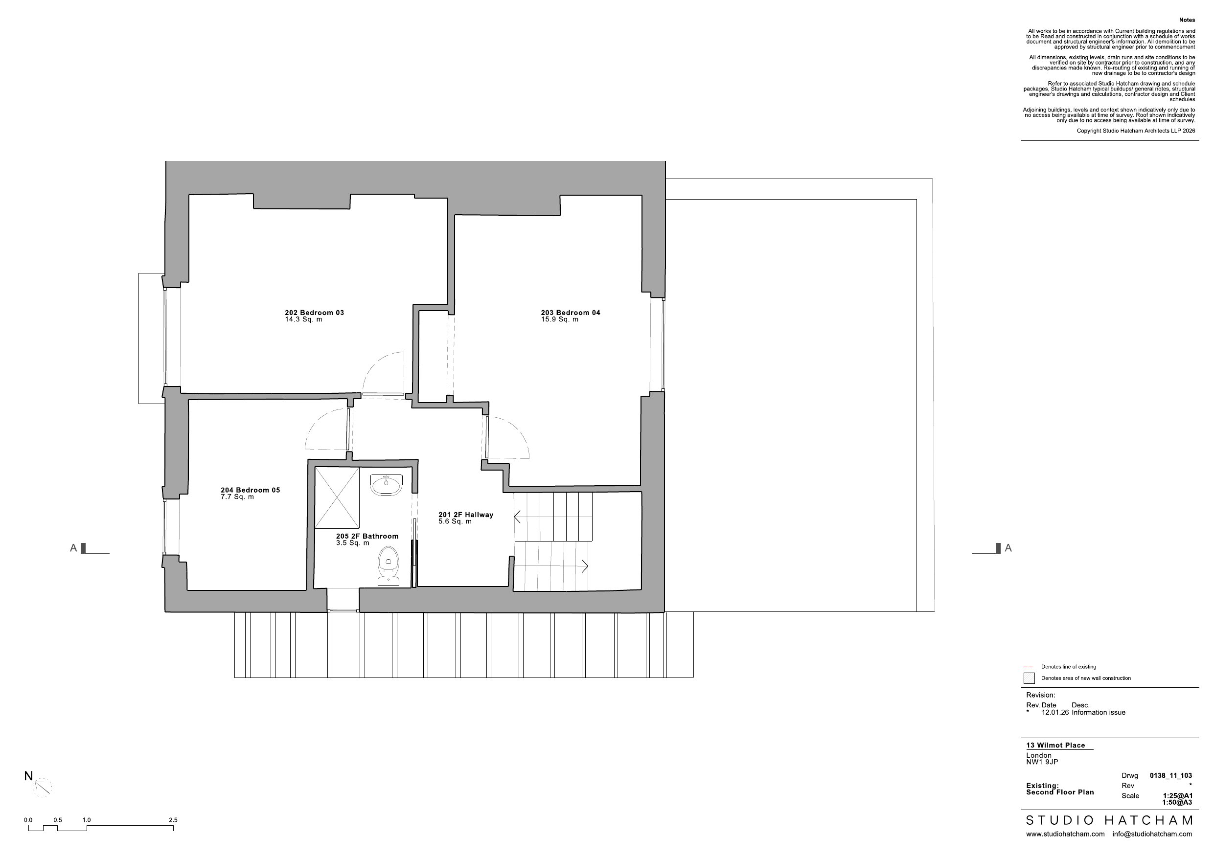
Erection of a single storey rear extension and replacement windows to all elevations.

Documents

Existing Drawing
Archived · Original link
Existing Drawing
Archived · Original link
Existing Drawing
Archived · Original link
Existing Drawing
Archived · Original link
Proposed Drawing
Archived · Original link
Proposed Drawing
Archived · Original link
Proposed Drawing
Archived · Original link
Proposed Drawing
Archived · Original link
Design and Access Statement
Archived · Original link
Correspondence
Archived · Original link
Tree Plans
Archived · Original link

Have your say

Your comment matters. Councils must consider every representation that raises material planning considerations.

Write a comment