← London Borough of Camden

Status

REGISTERED House extension
Received
22 Jan 2026
New homes
0

Full proposal

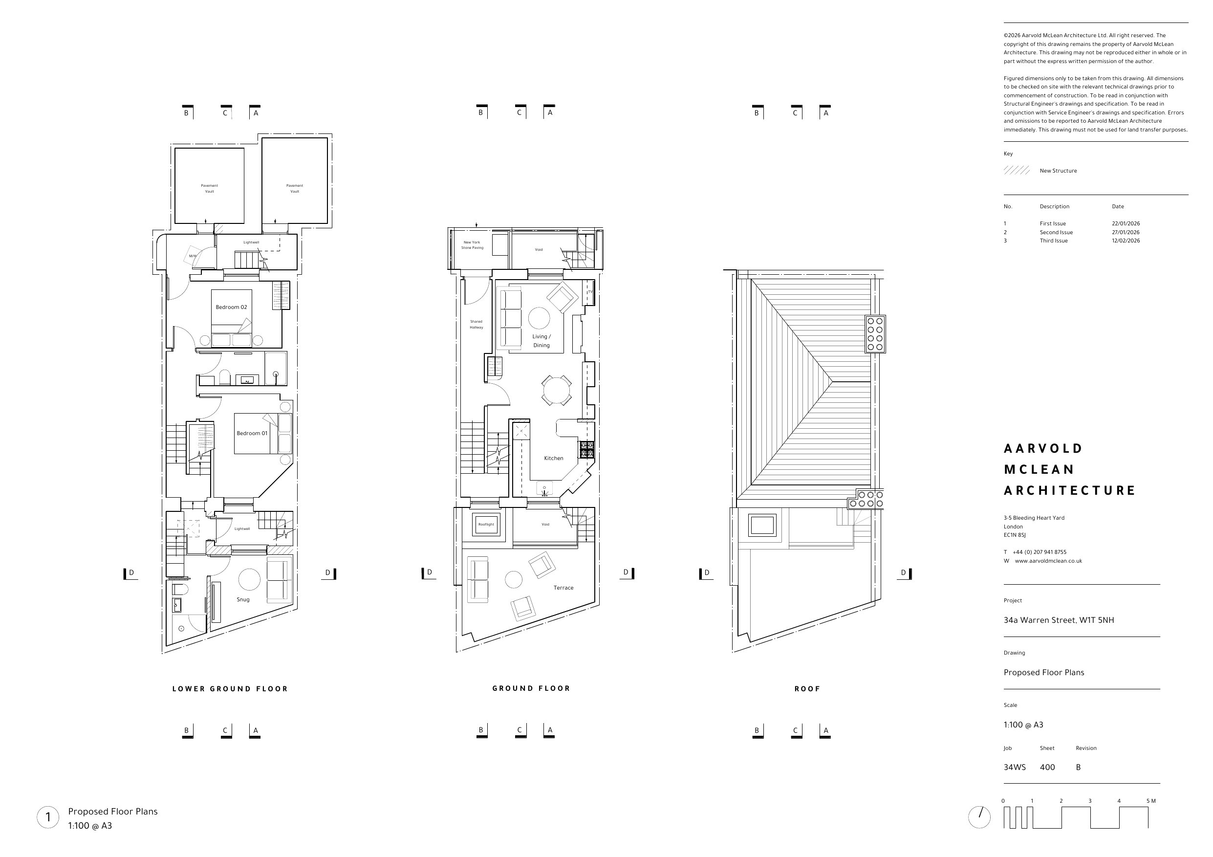
Demolition of rear lean-to structure, widening of rear lightwell and erection of lower ground floor rear extension and ground floor rear terrace, raising of party walls to the rear, installation of metal railings around rear lightwell, replacement of railings and stairs to front lightwell, refurbishment of front elevation, insertion of new doors in front lightwell and repaving of front stairs.

Documents

Application Form
Archived · Original link
Design and Access Statement
Archived · Original link
Existing & Proposed Drawing
Archived · Original link
Existing Drawing
Archived · Original link
Supporting Documents
Archived · Original link
Supporting Documents
Archived · Original link
Proposed Drawing
Archived · Original link
OS Extract
Archived · Original link
Supporting Documents
Archived · Original link

Have your say

Your comment matters. Councils must consider every representation that raises material planning considerations.

Write a comment