← London Borough of Camden

Status

REGISTERED New housing
Received
23 Jan 2026
New homes
1

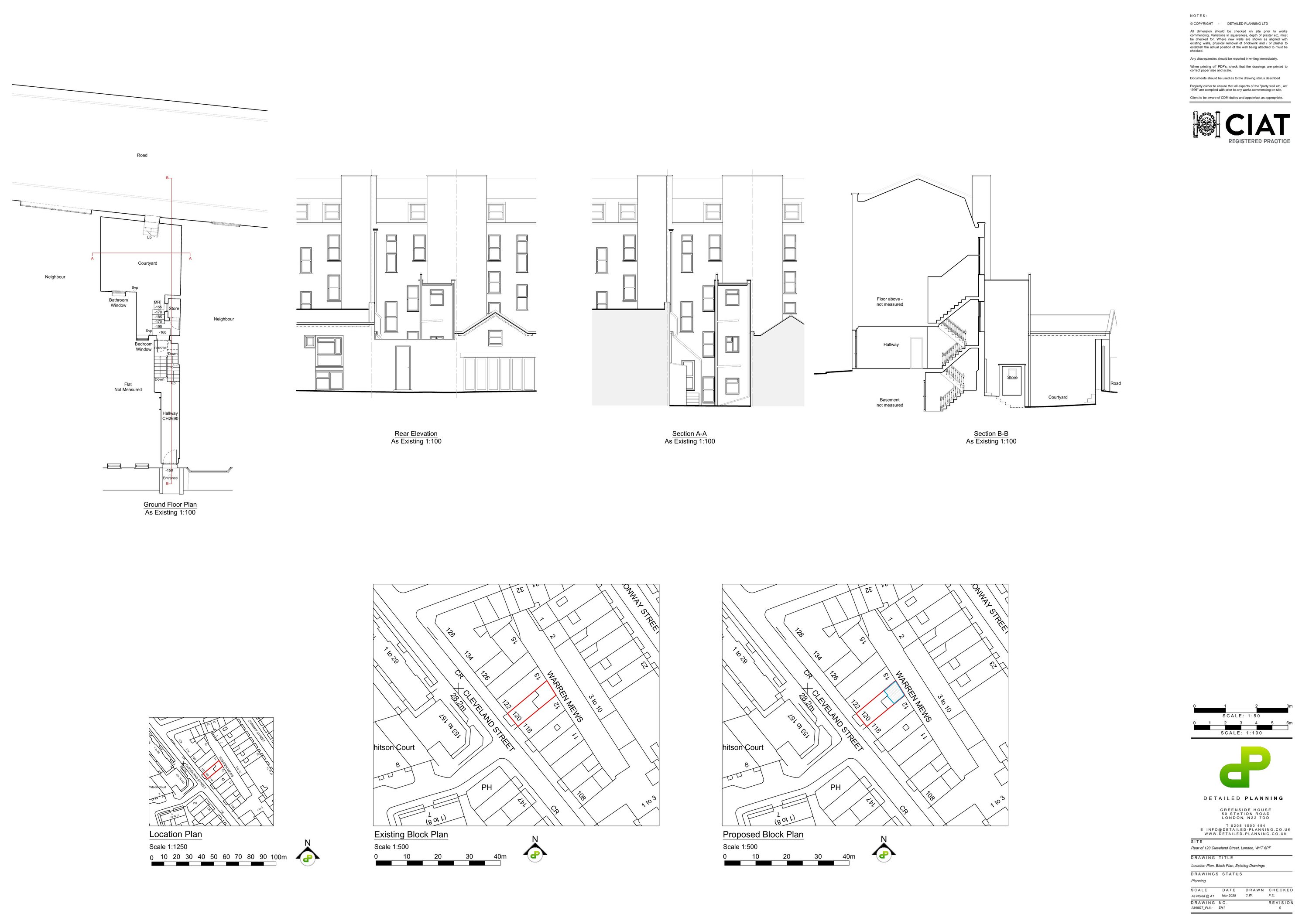
Full proposal

Erection of two-storey mews house plus basement excavation with relocation of windows to the rear of 120 Cleveland Street

Documents

Design and Access Statement
Archived · Original link
Supporting Documents
Archived · Original link
Application Form
Archived · Original link
J25303 report_rev0(2) - BIA
Supporting Documents
Not yet archived · Original link
Supporting Documents
Archived · Original link

Have your say

Your comment matters. Councils must consider every representation that raises material planning considerations.

Write a comment