← London Borough of Camden

Status

REGISTERED House extension
Received
27 Jan 2026
New homes
0

Full proposal

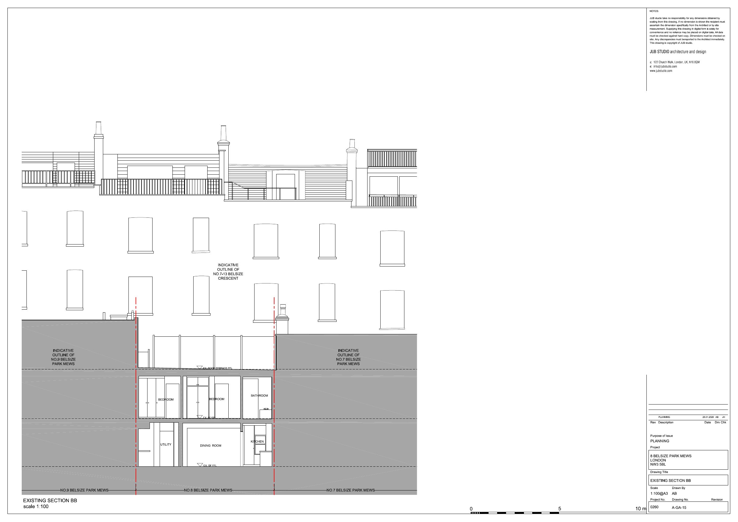
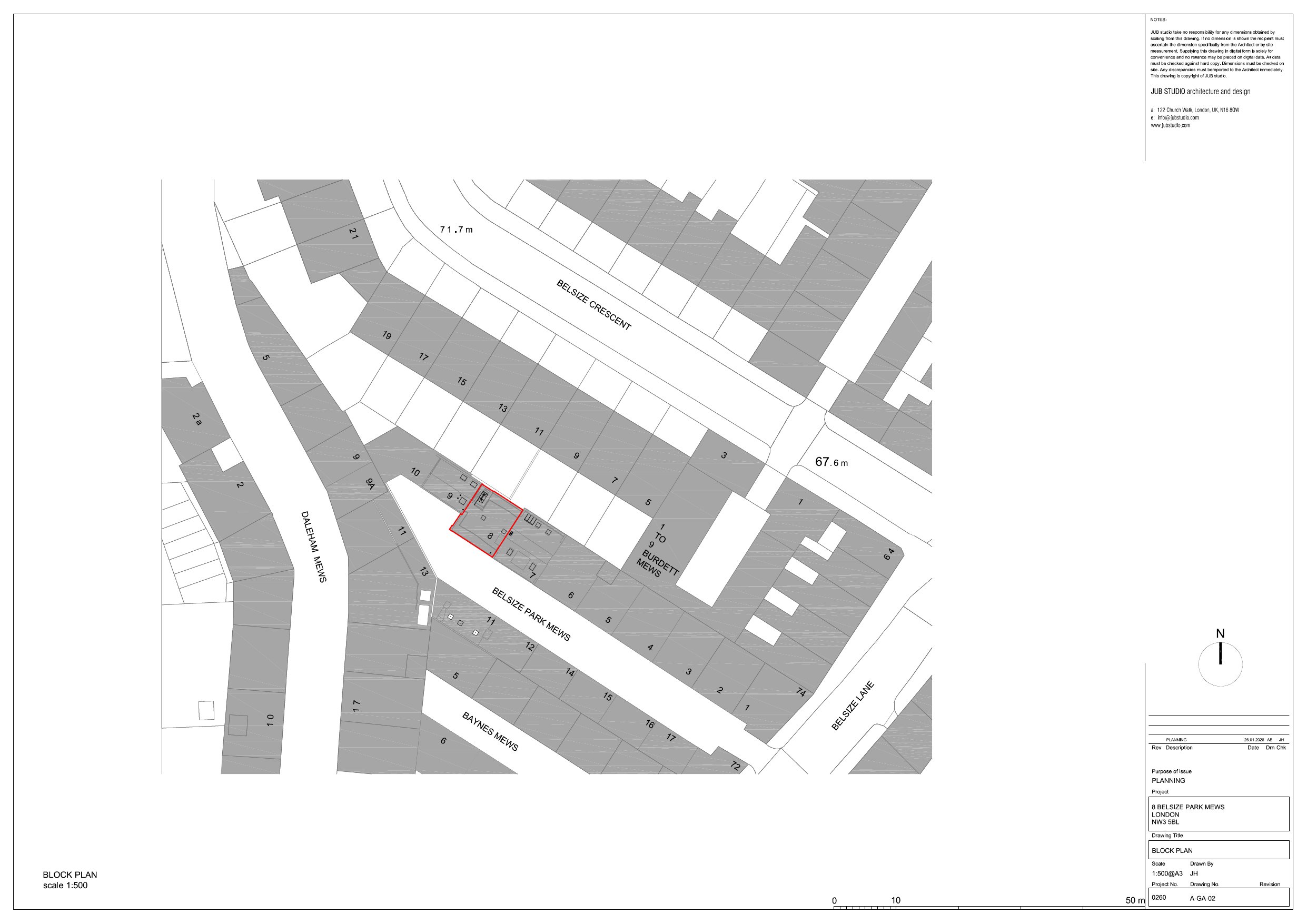
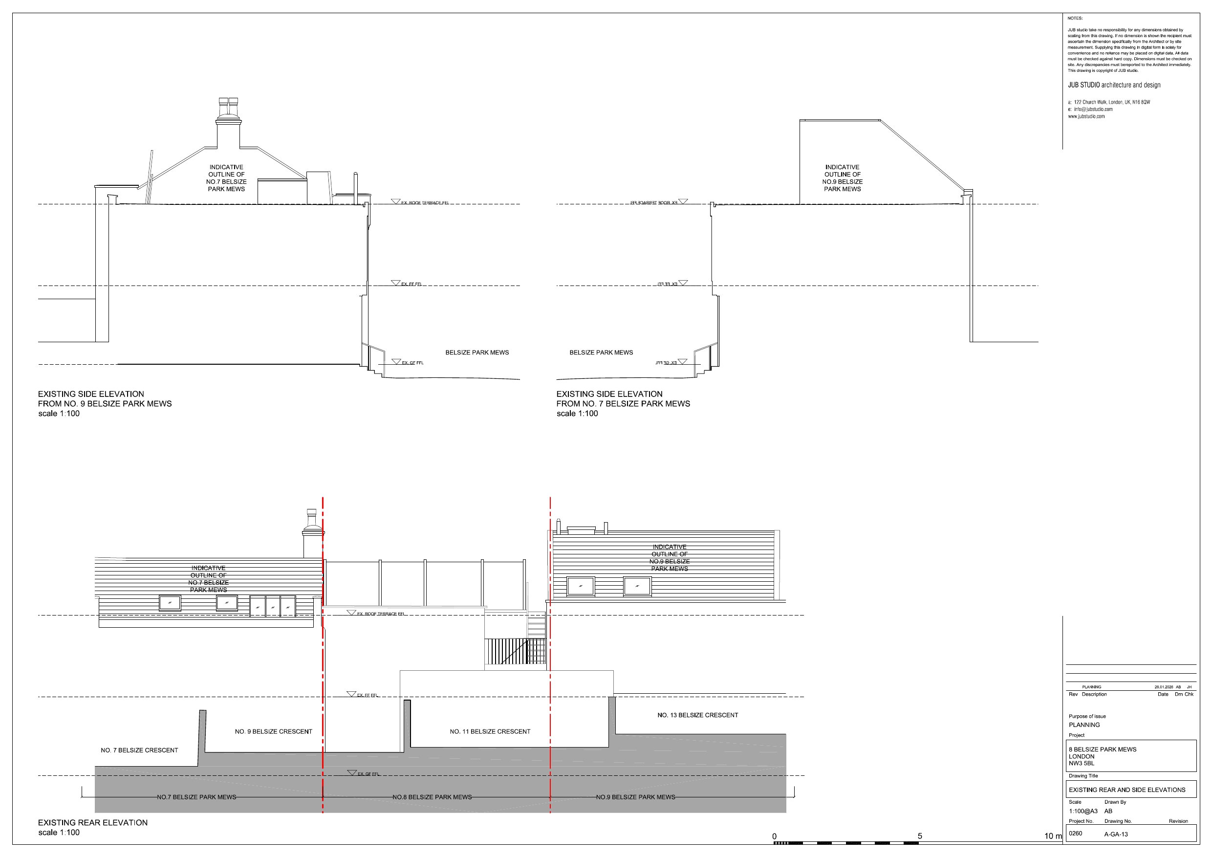
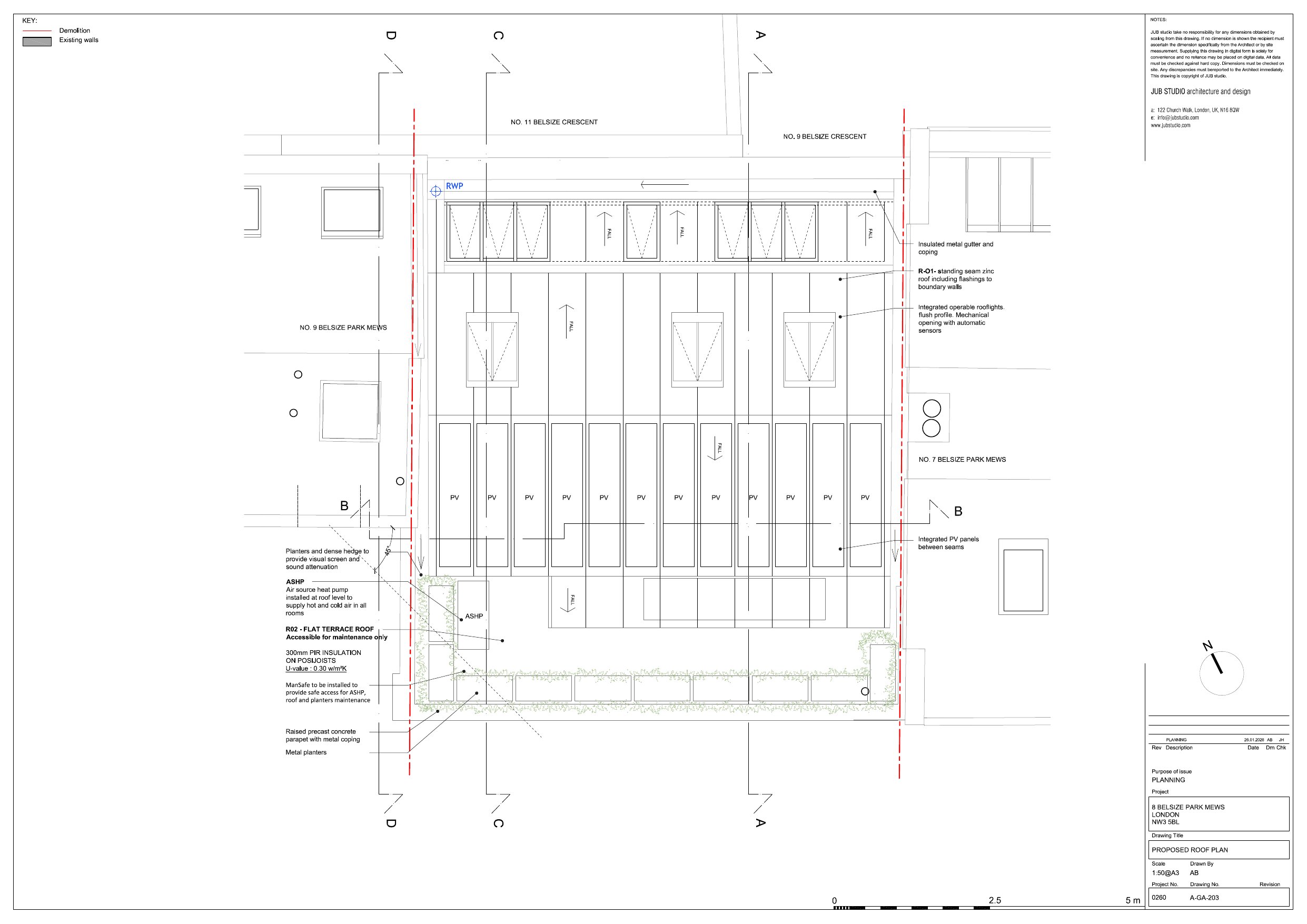
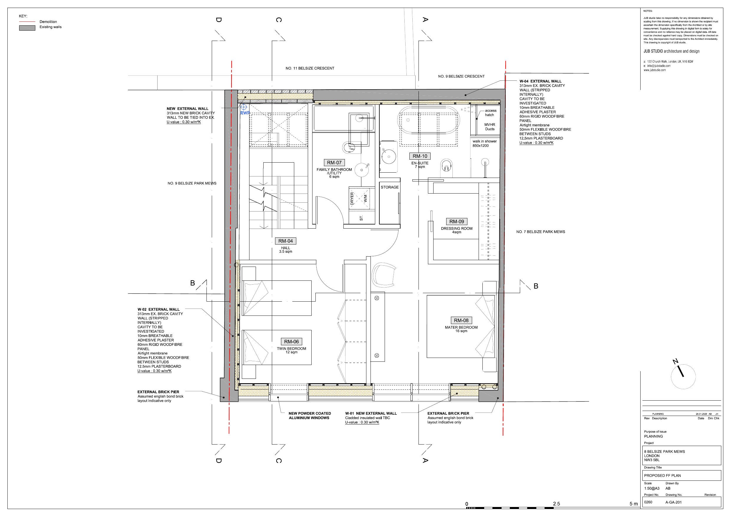
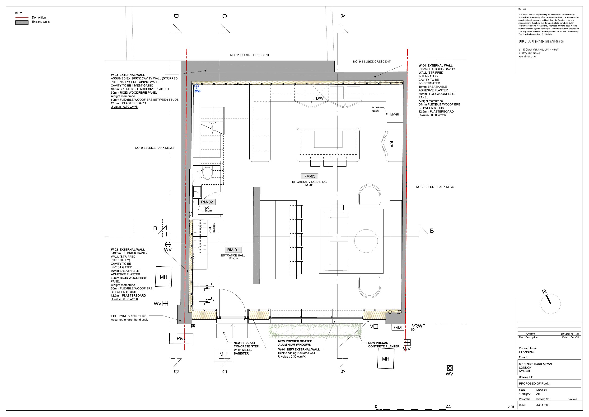
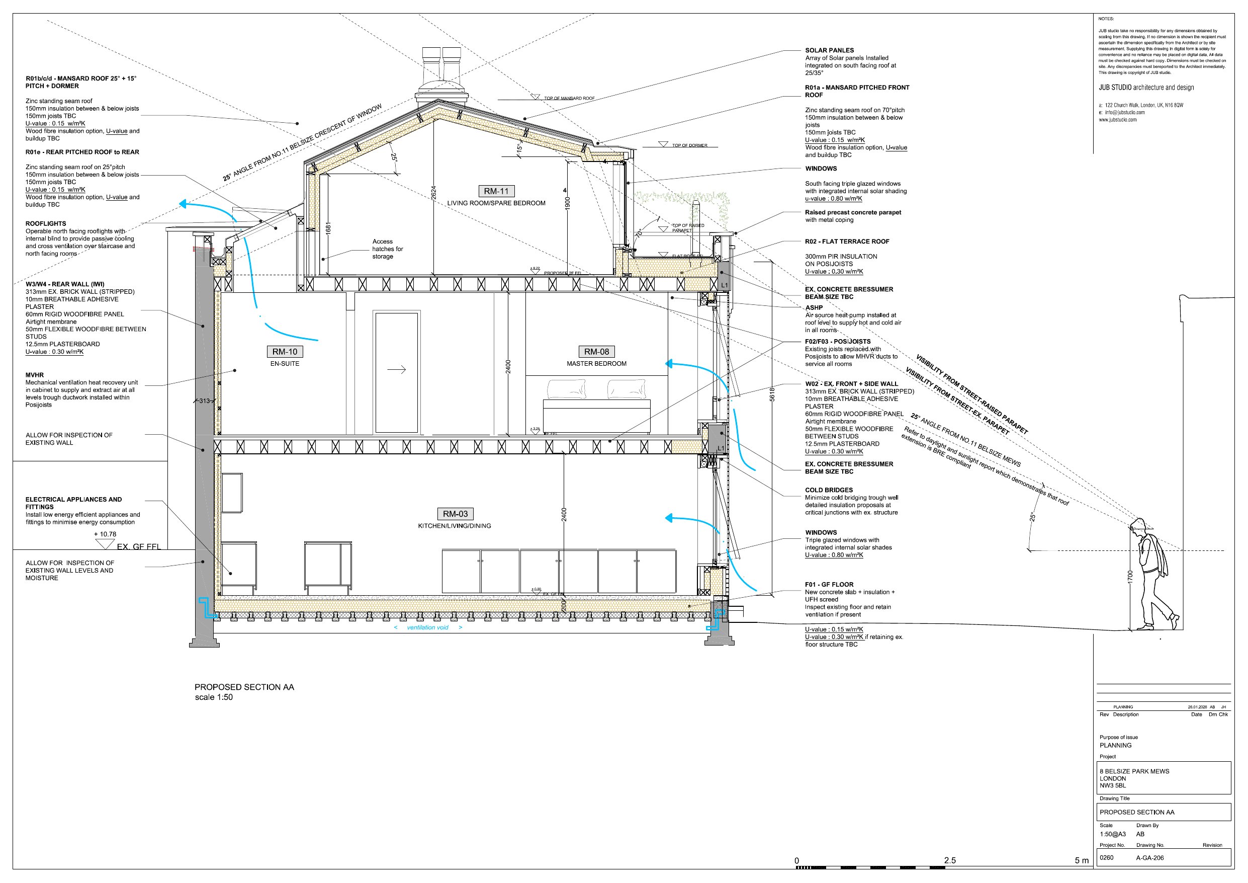
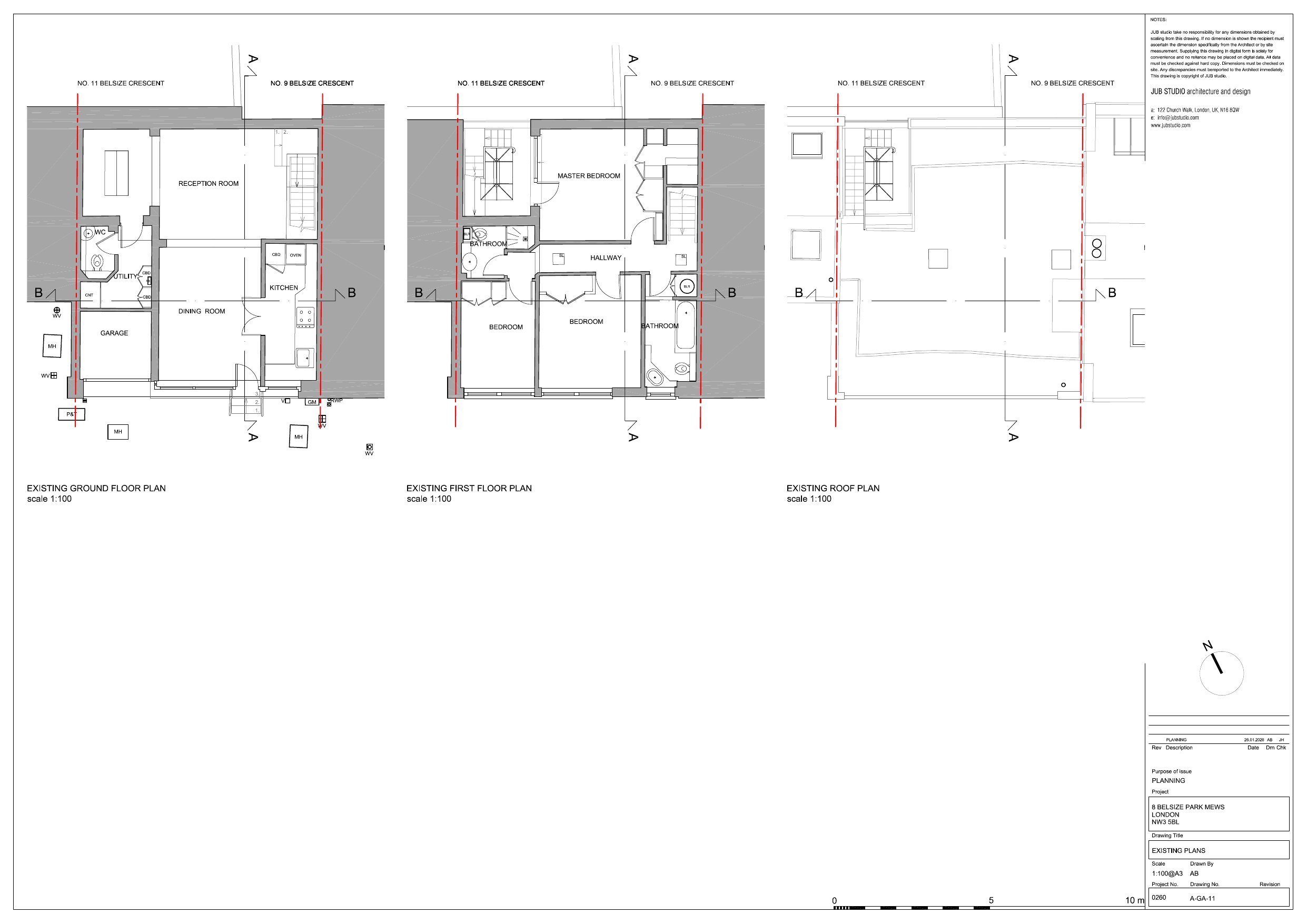
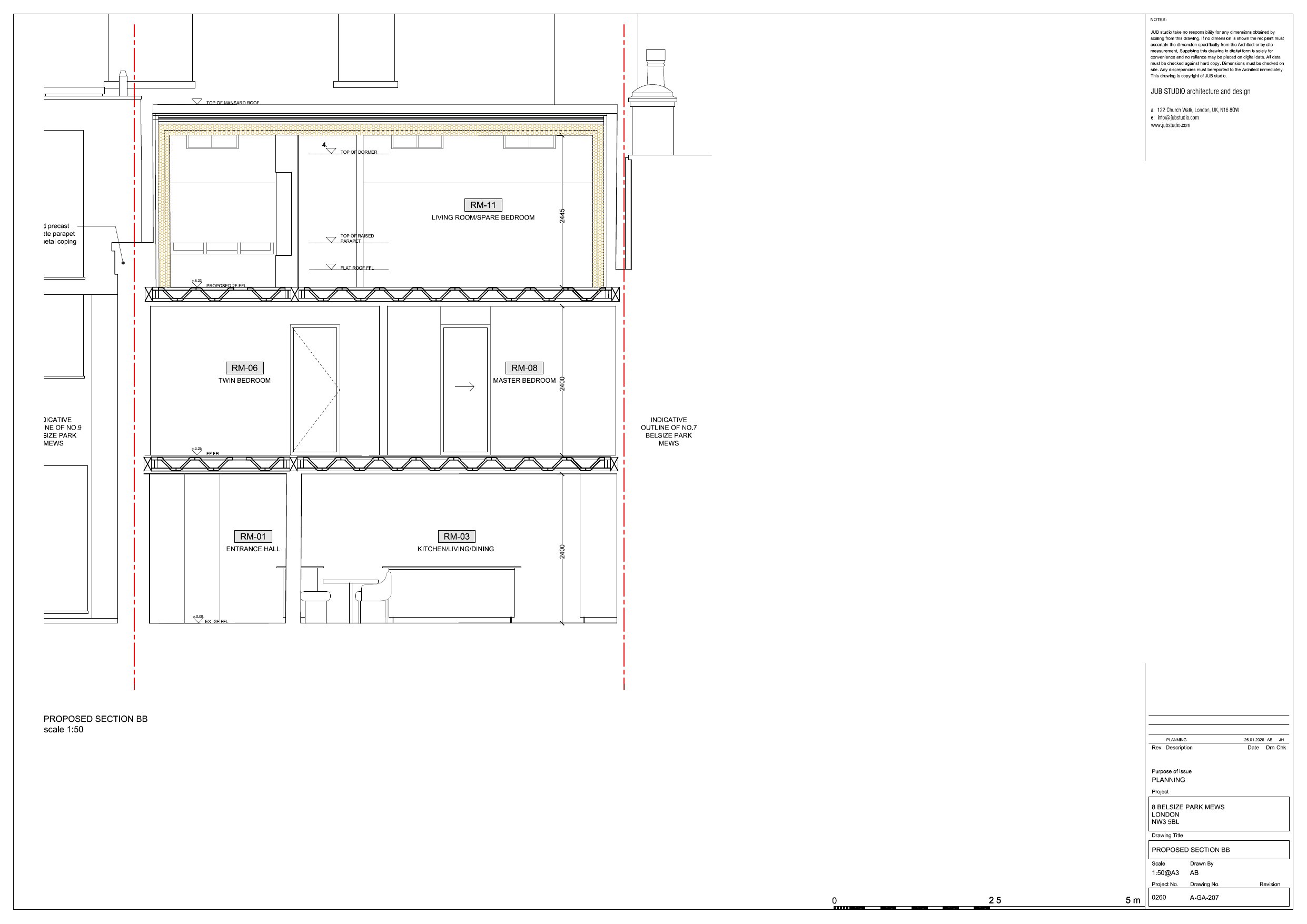
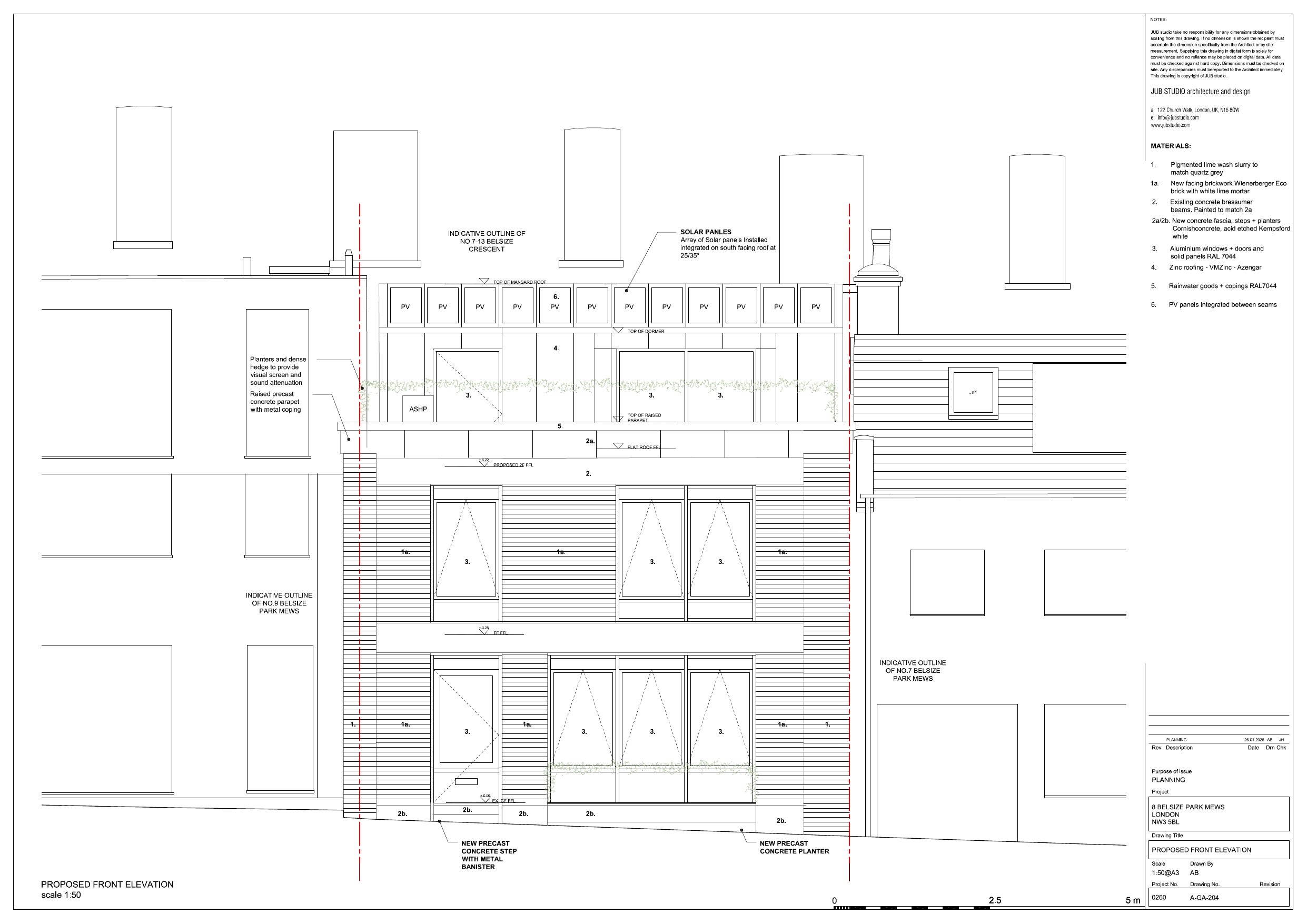
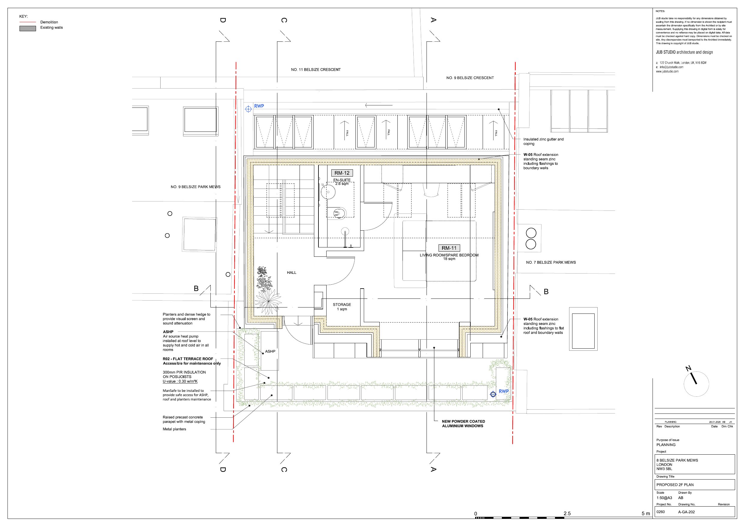
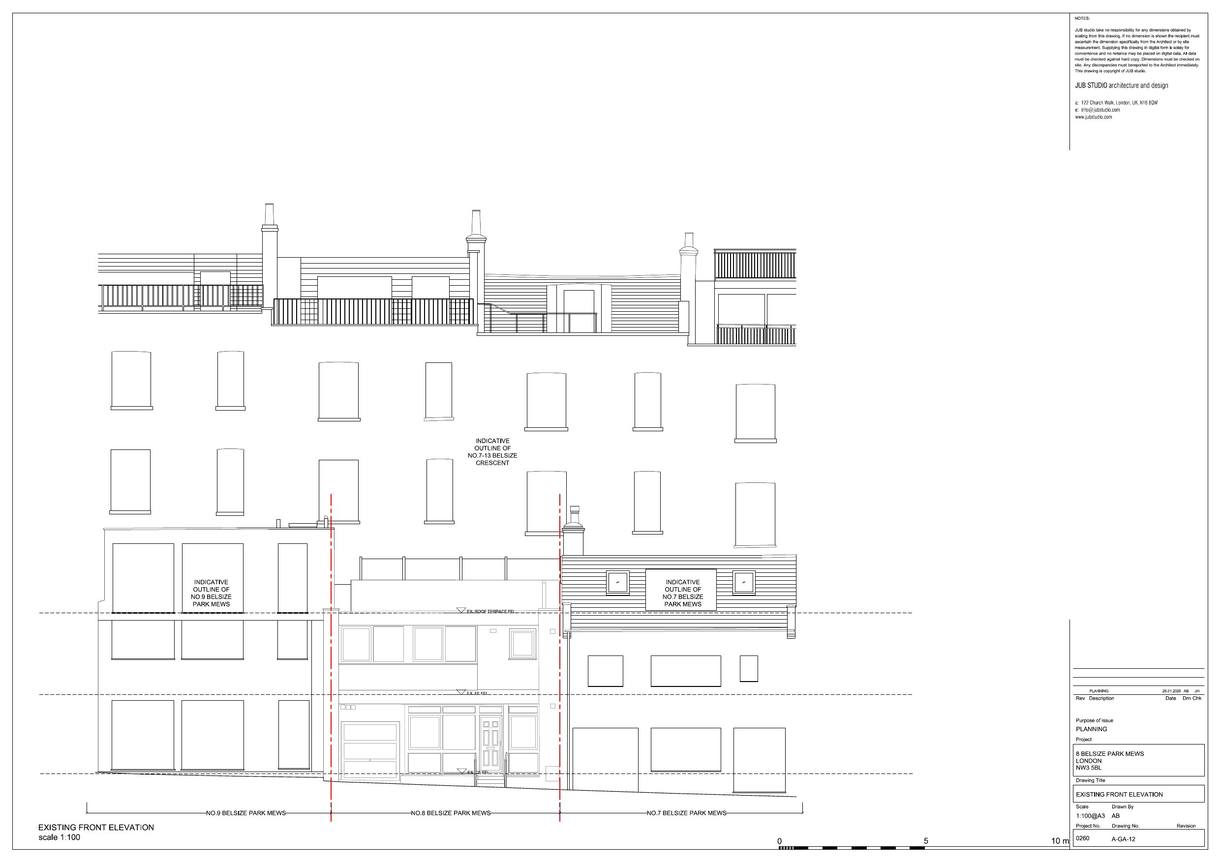
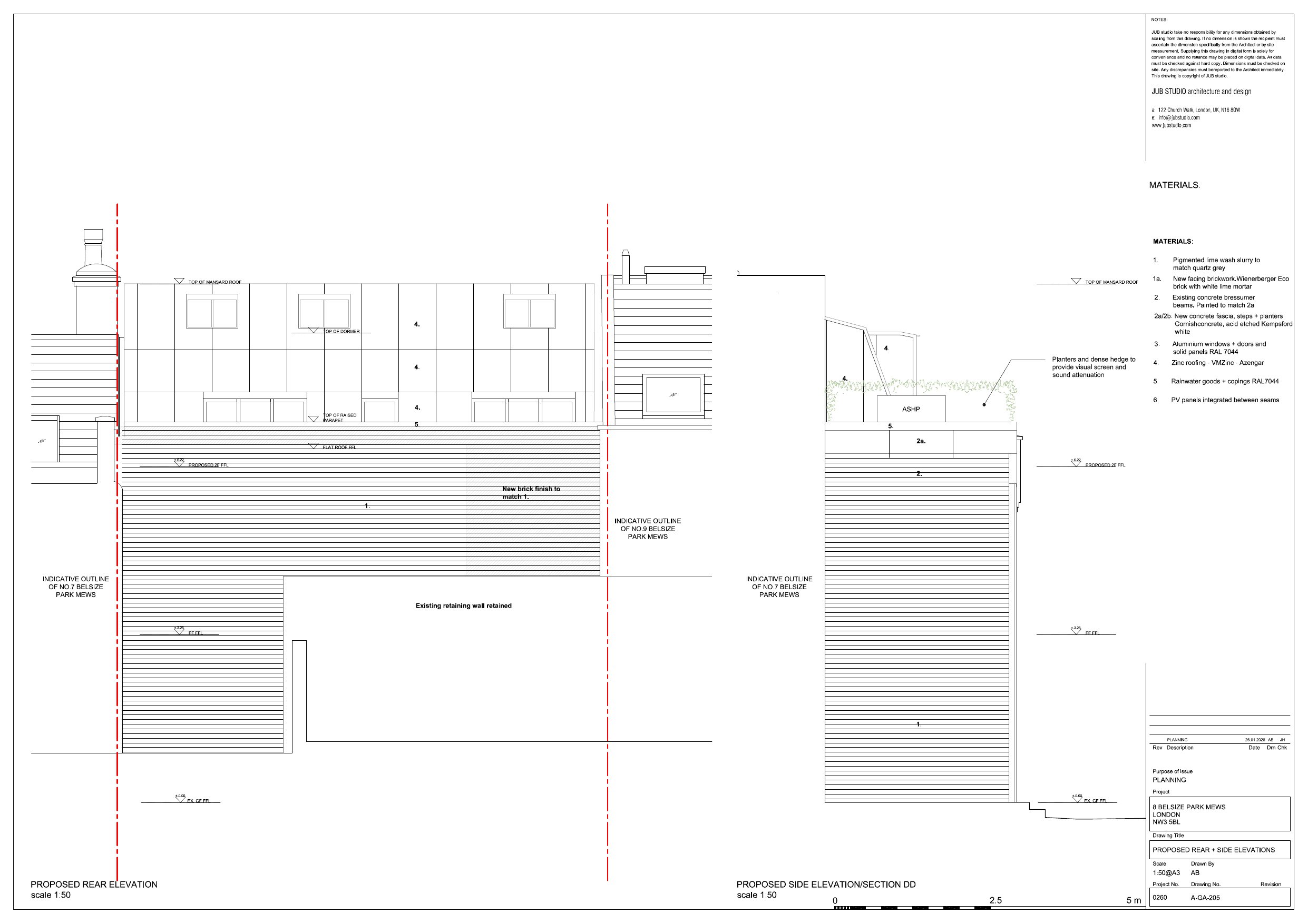
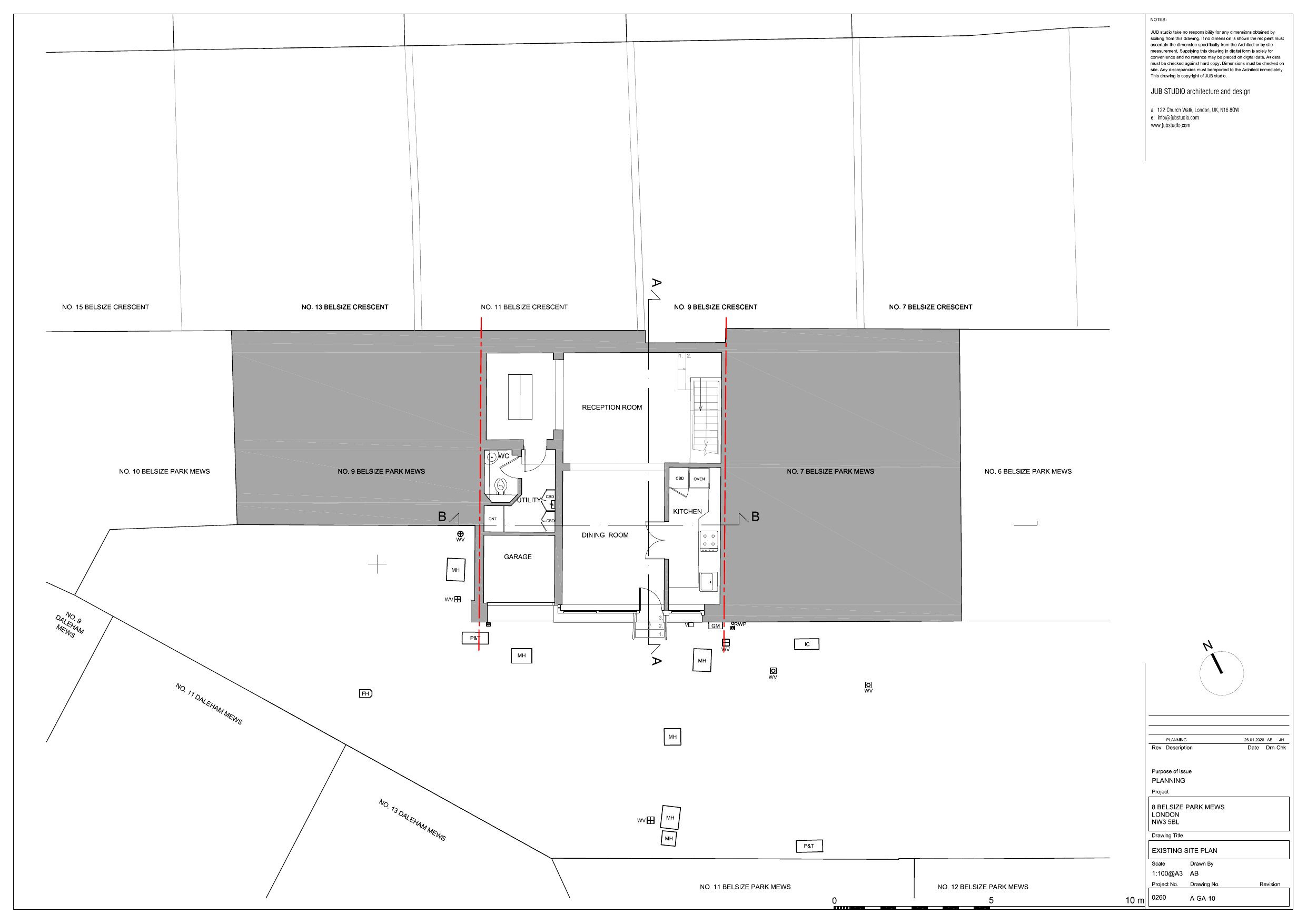
Erection of a single storey roof extension and alterations to the facade, insertion of new rooflights and associated works

Documents

M3 Document
Archived · Original link
Consultation Response
Archived · Original link
Consultation Response
Archived · Original link
Application Form
Archived · Original link

Have your say

Your comment matters. Councils must consider every representation that raises material planning considerations.

Write a comment