← London Borough of Camden

Status

REGISTERED House extension
Received
27 Jan 2026
New homes
0

Full proposal

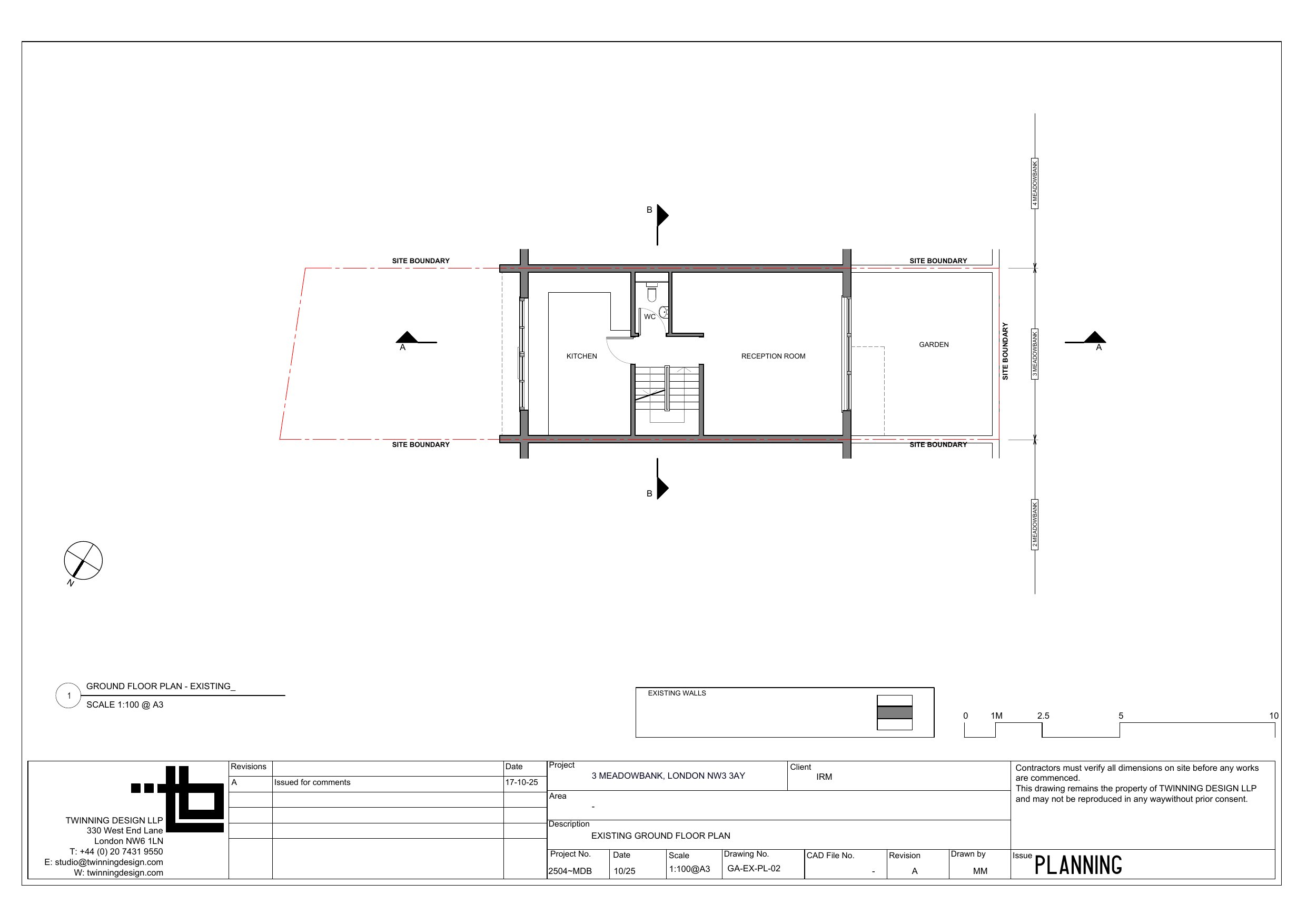
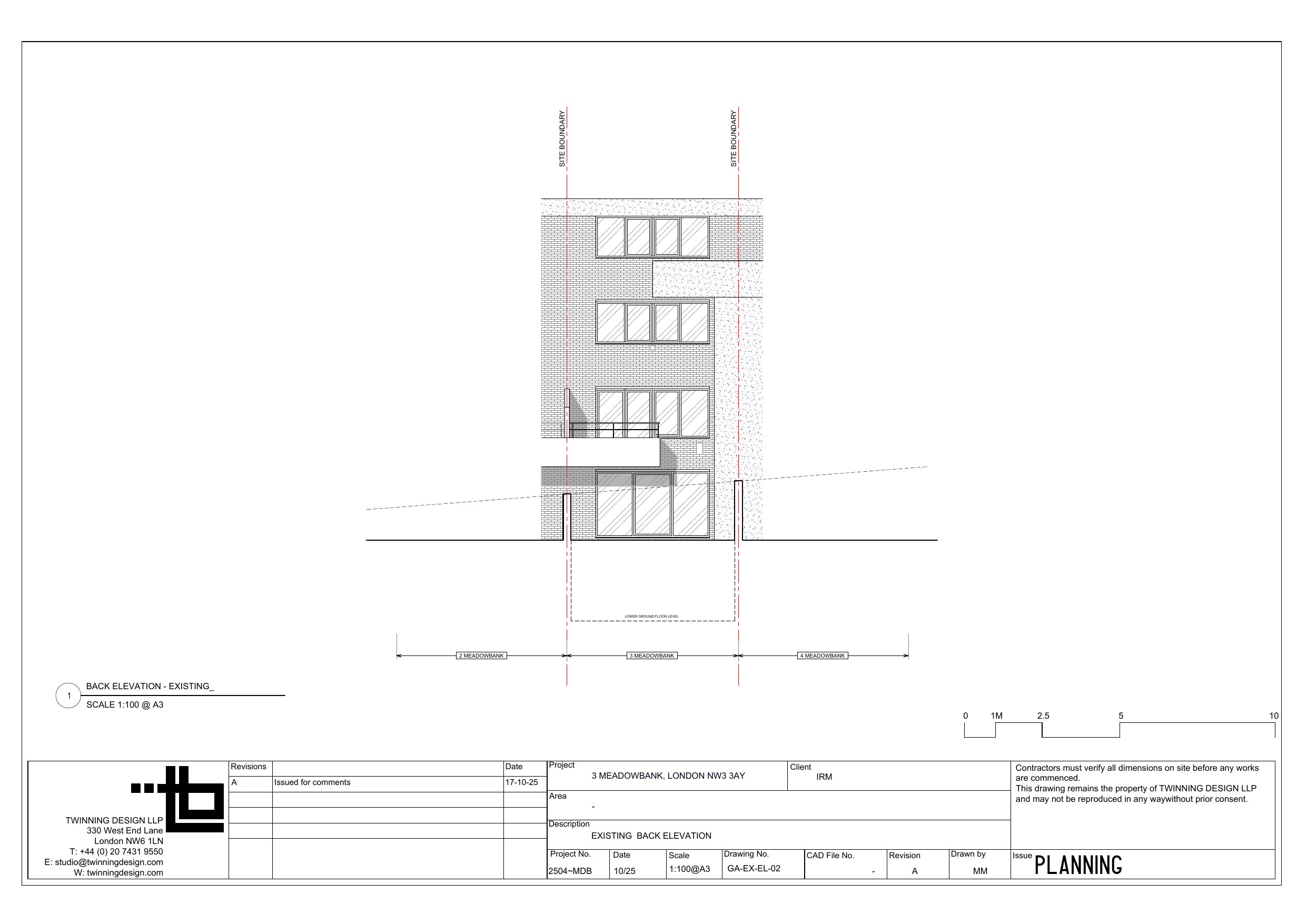
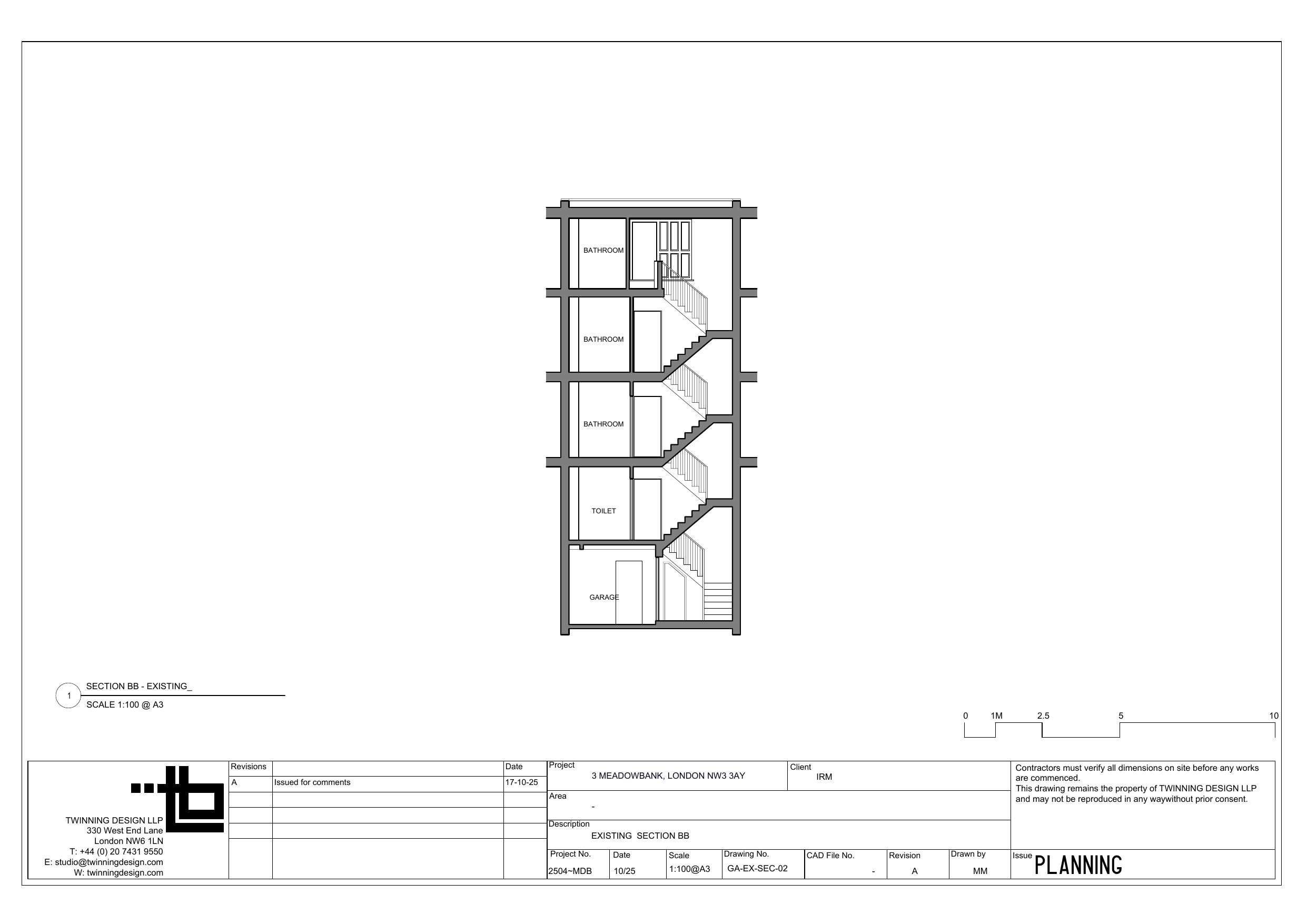
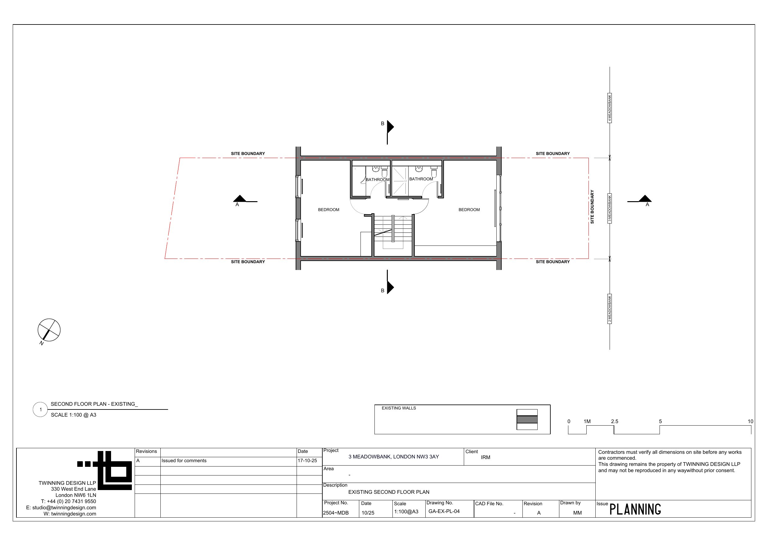
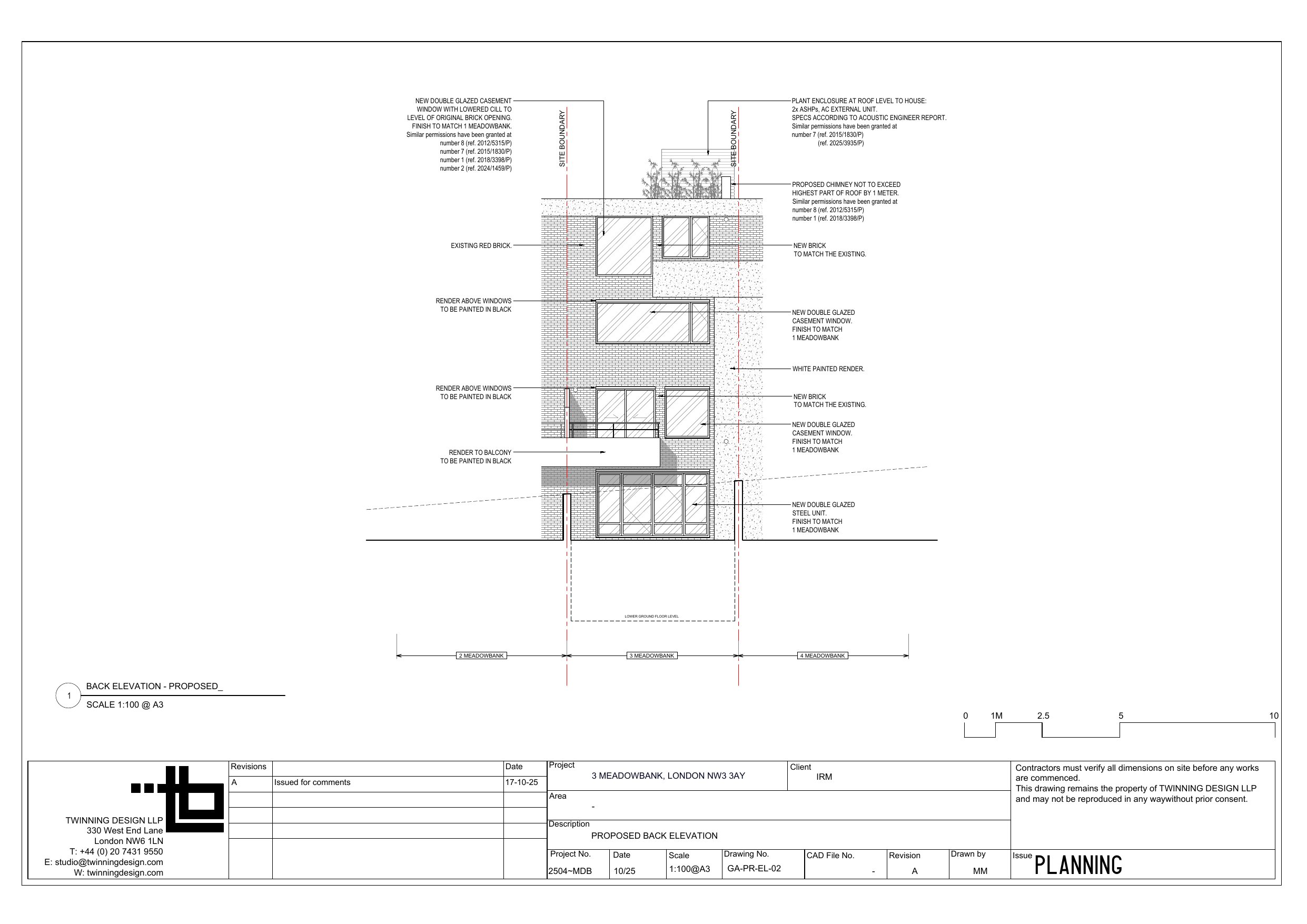
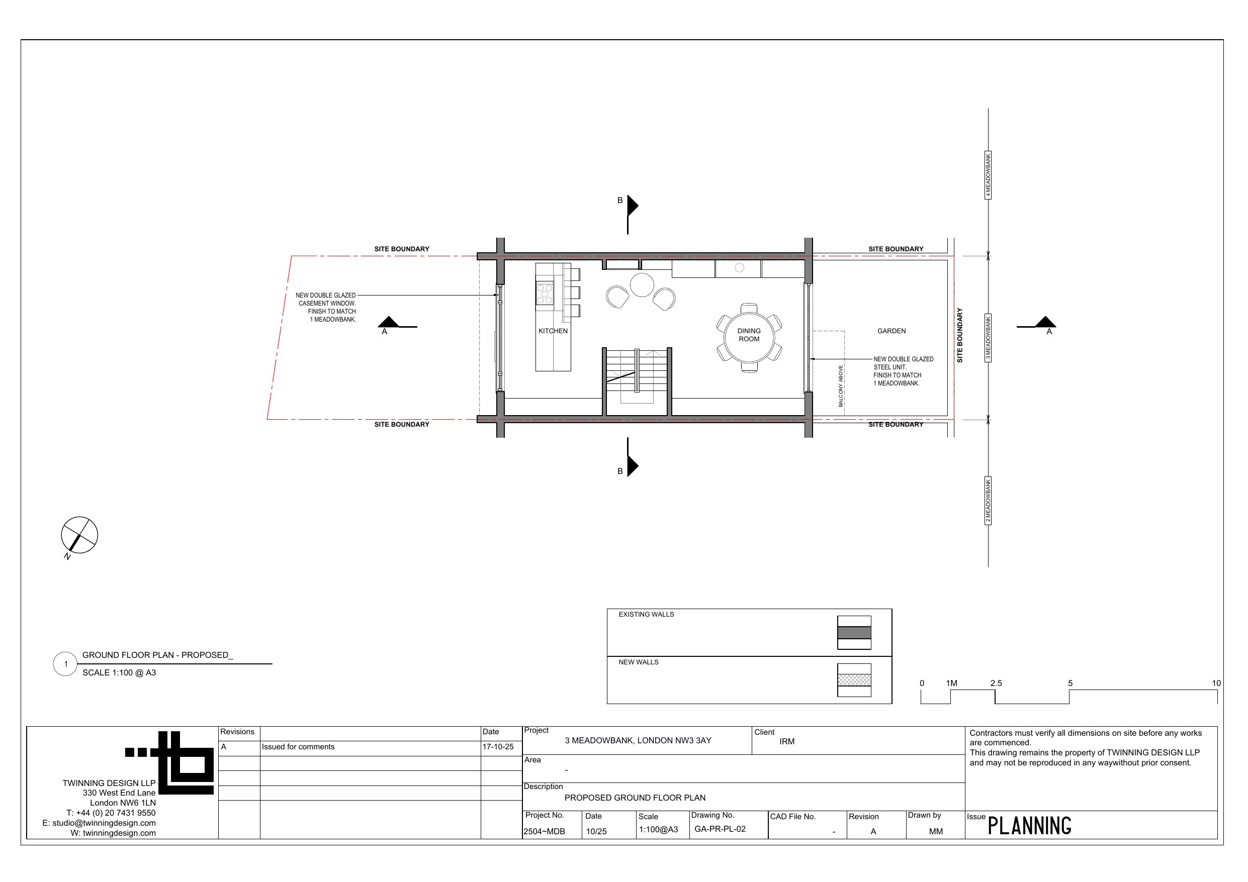
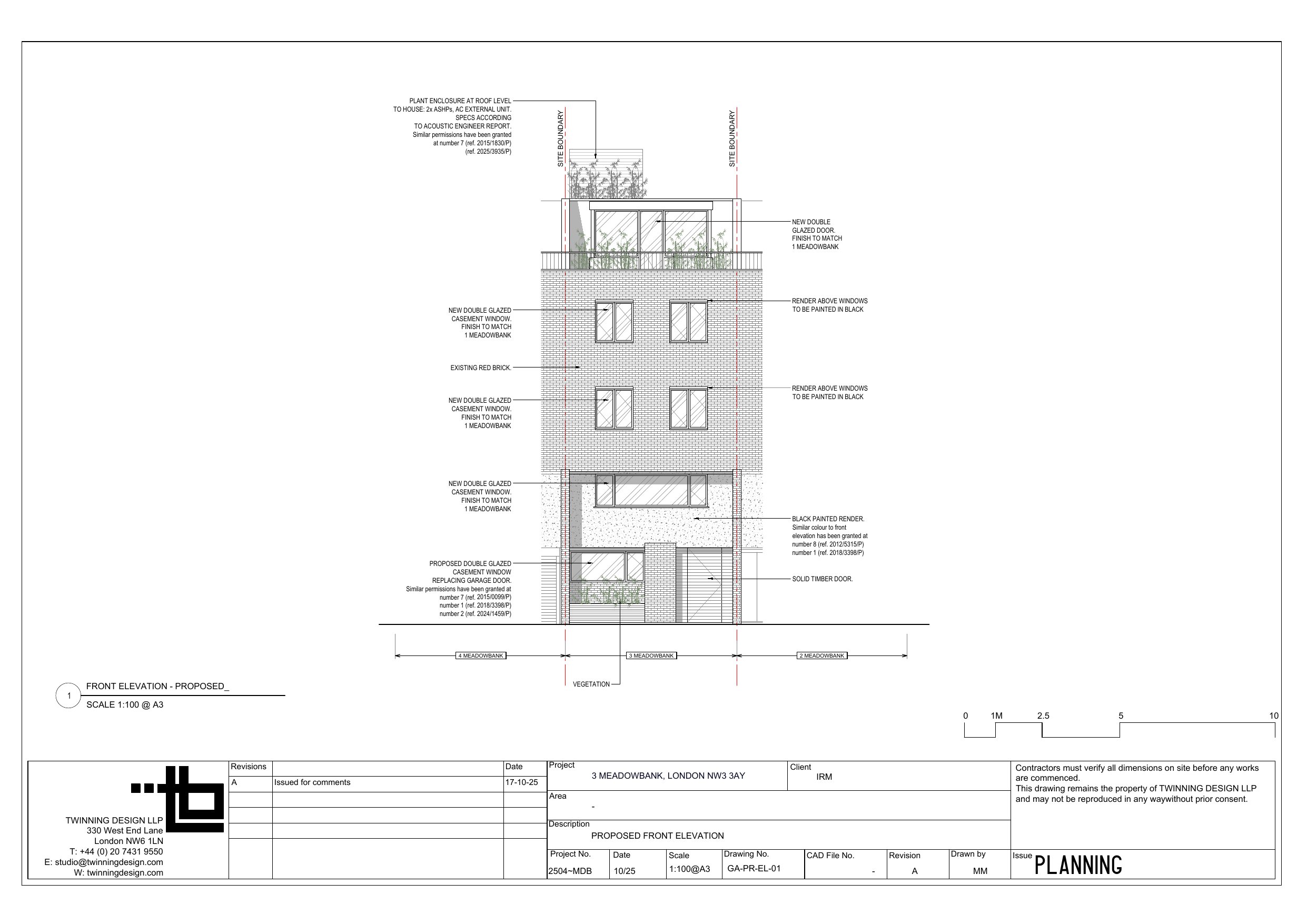
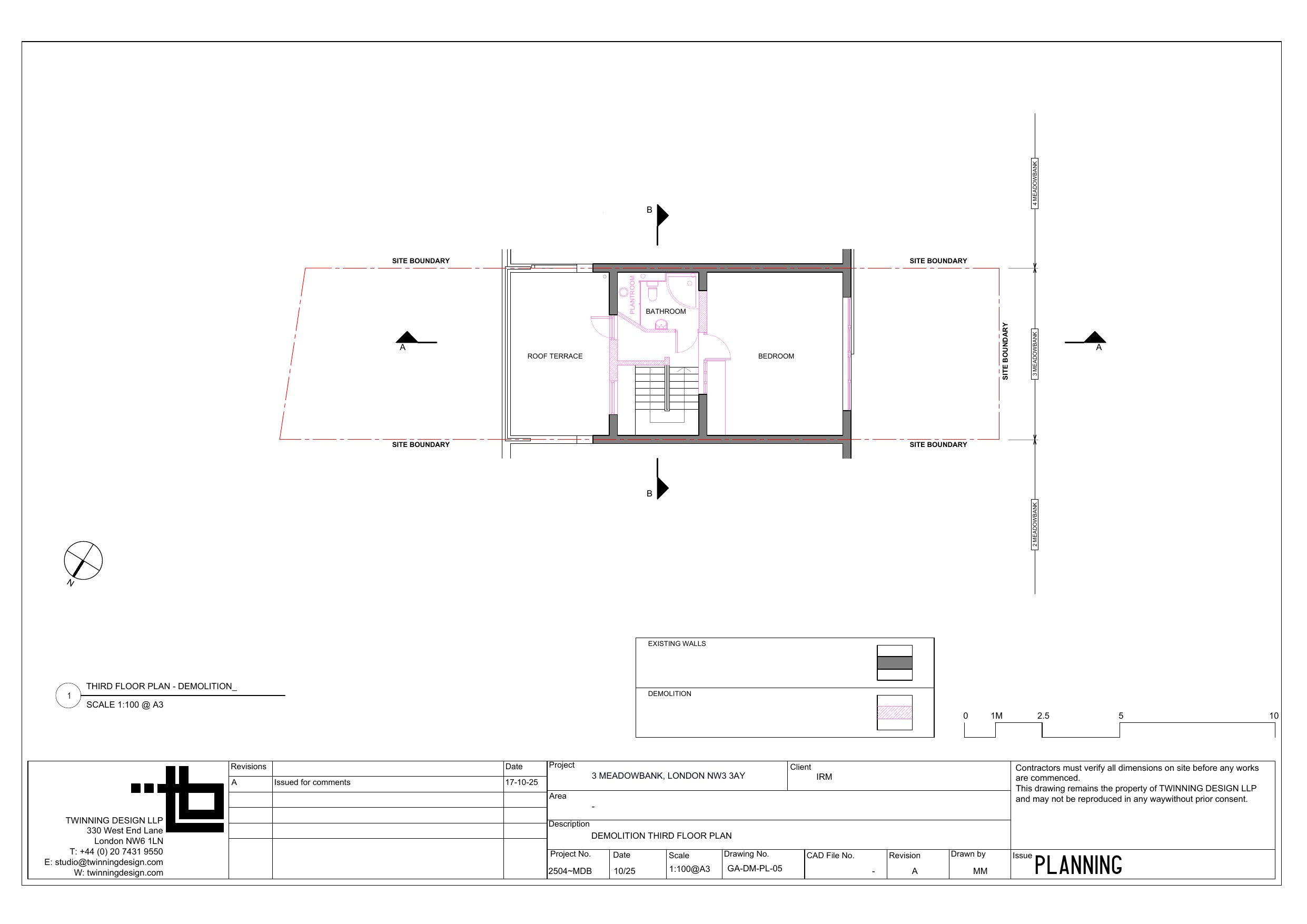
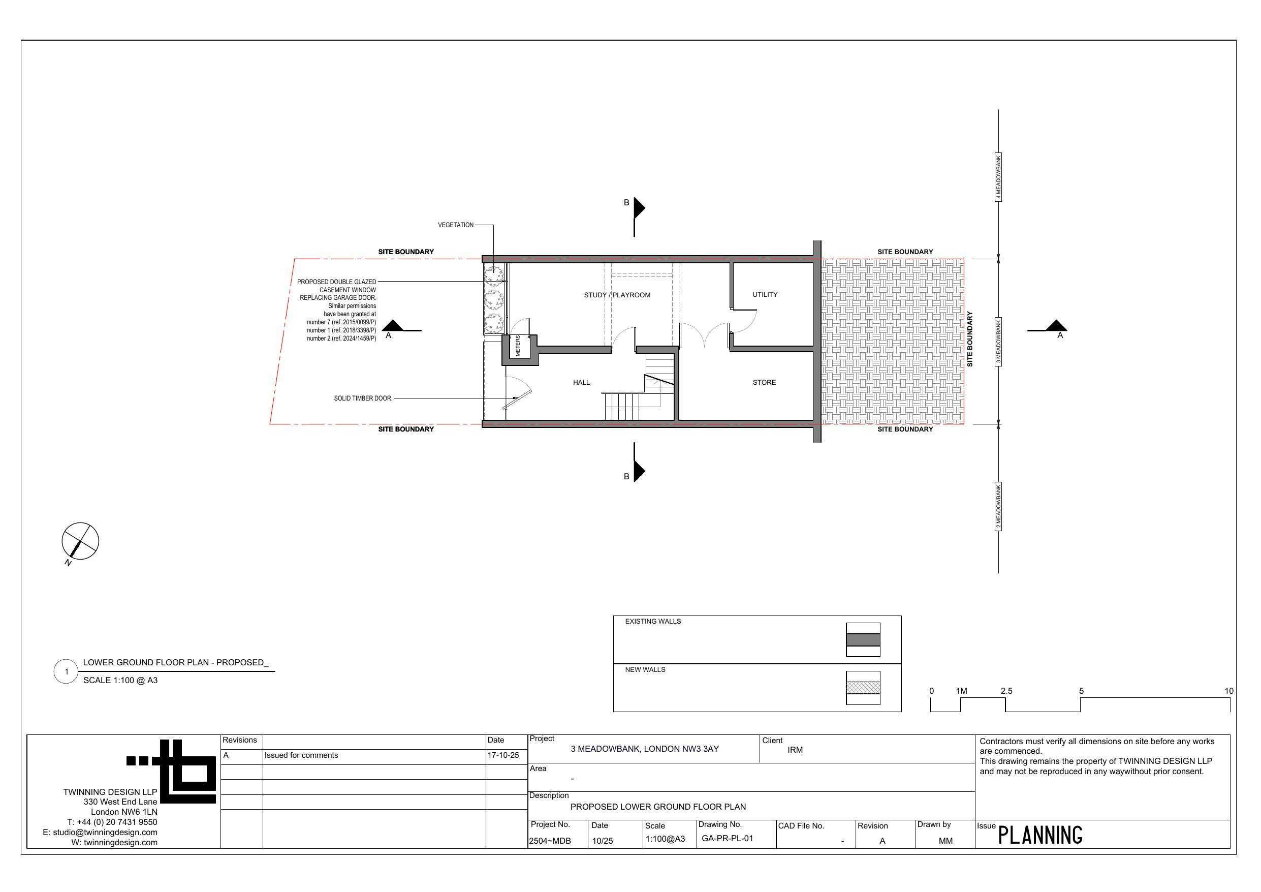
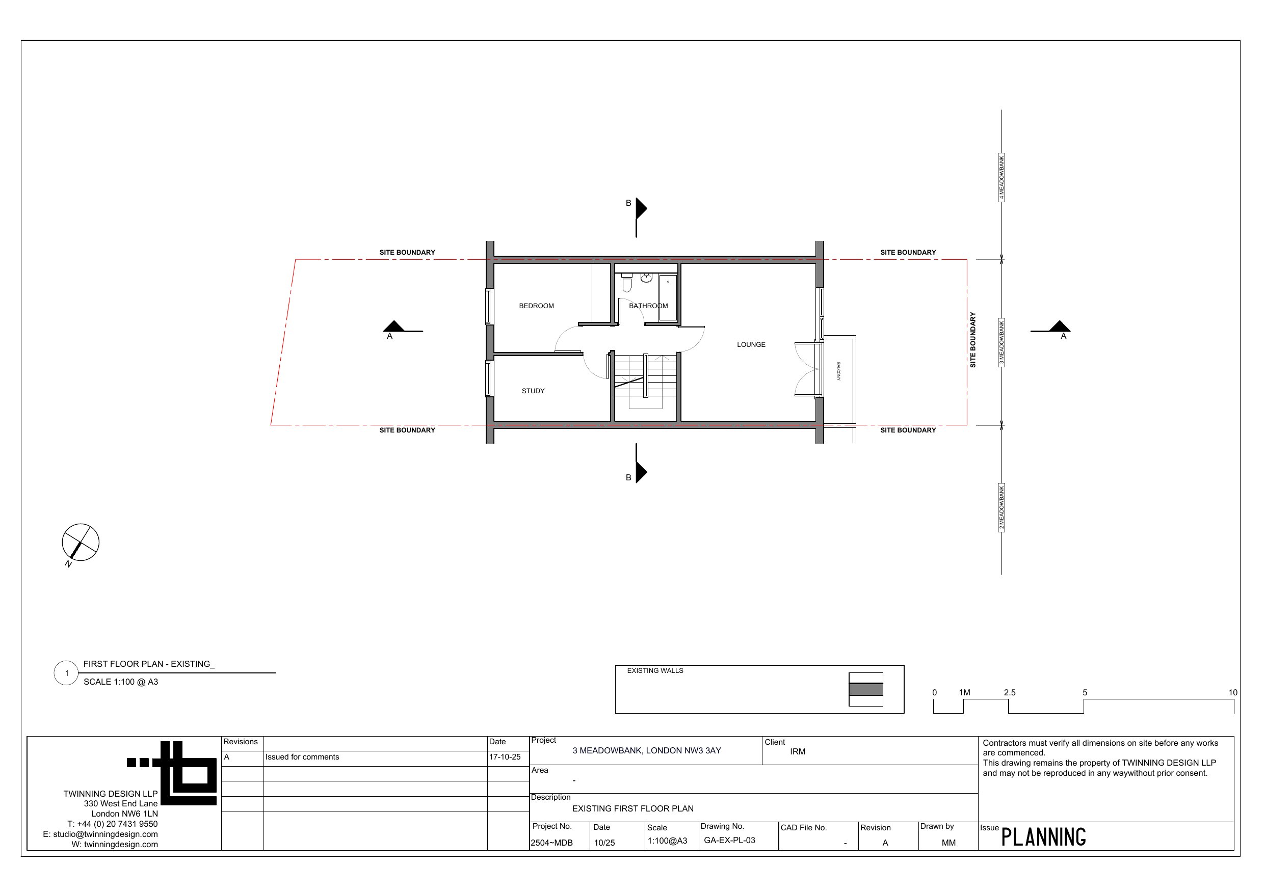
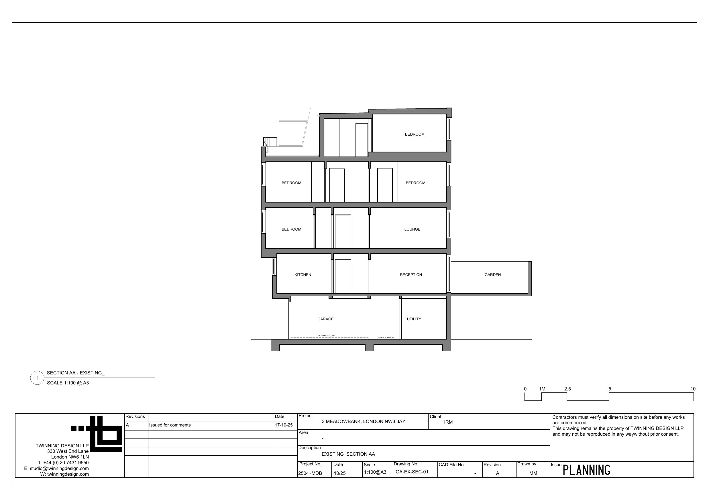
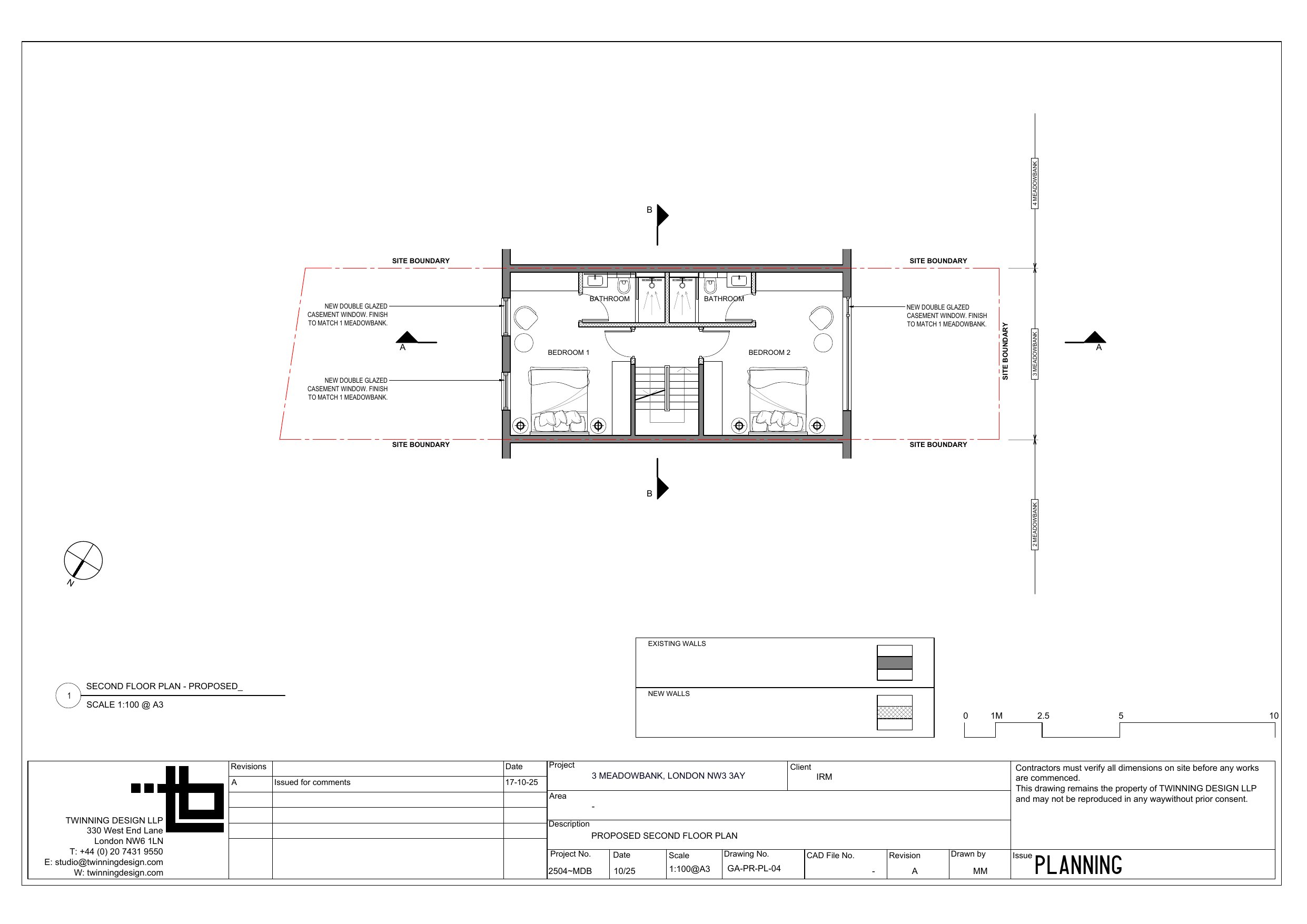
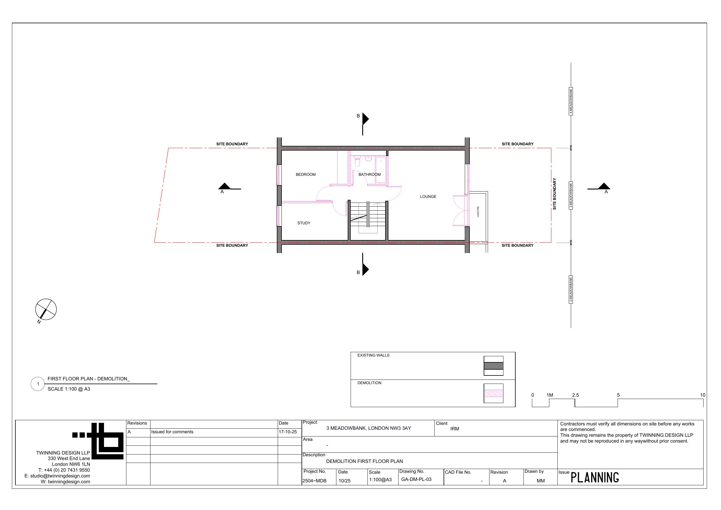
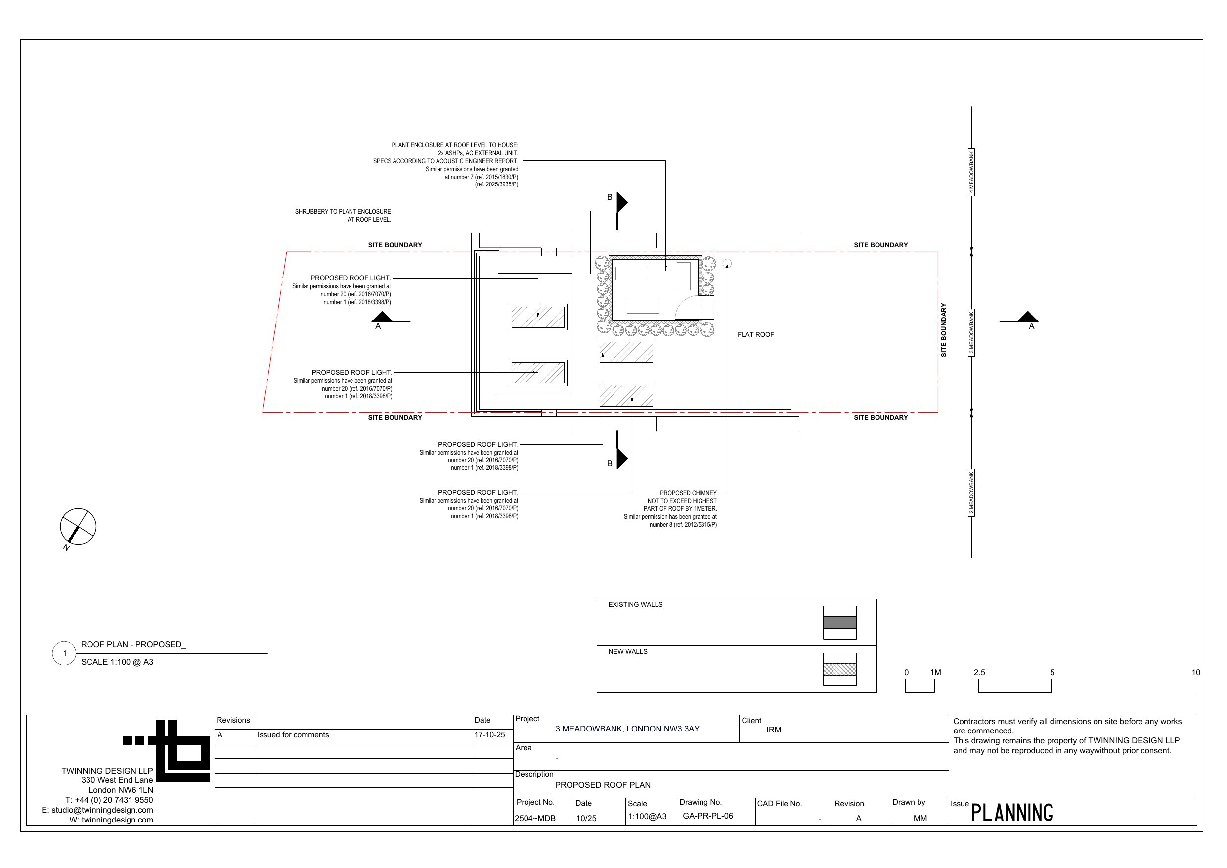
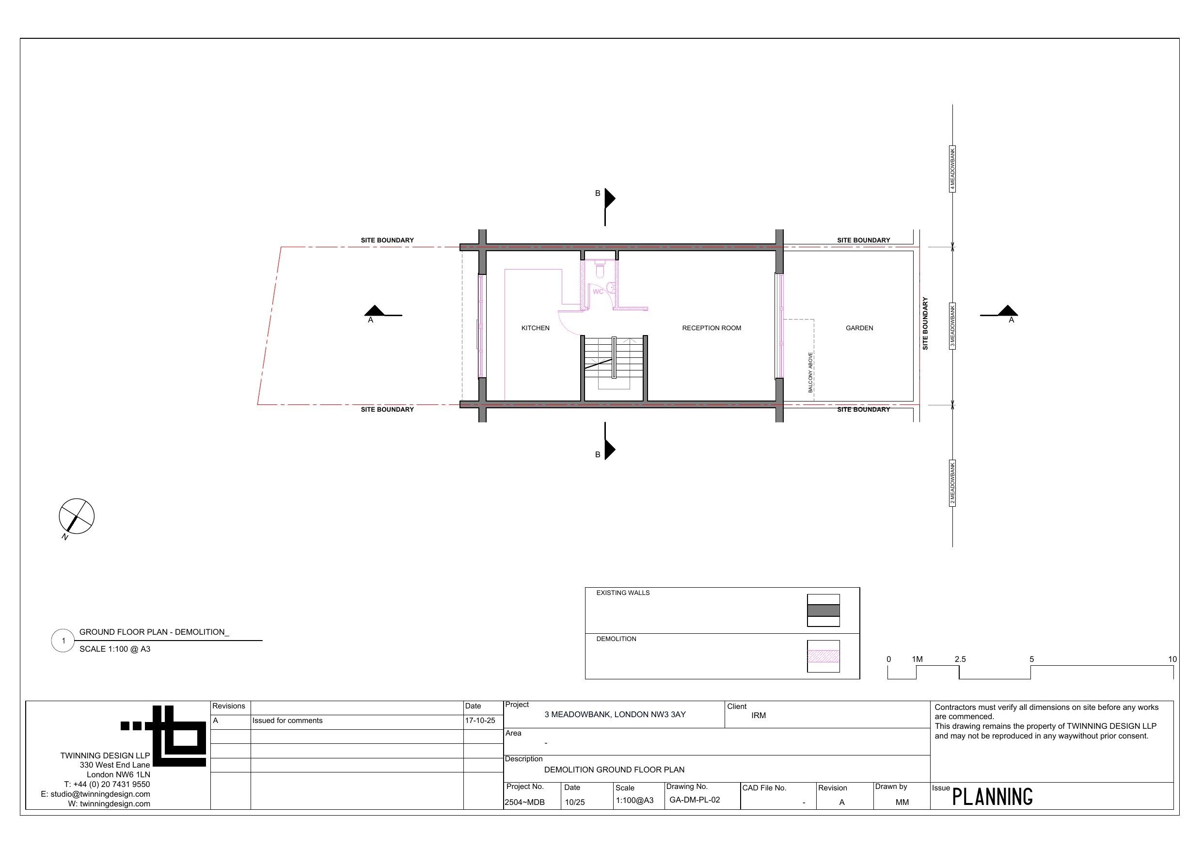
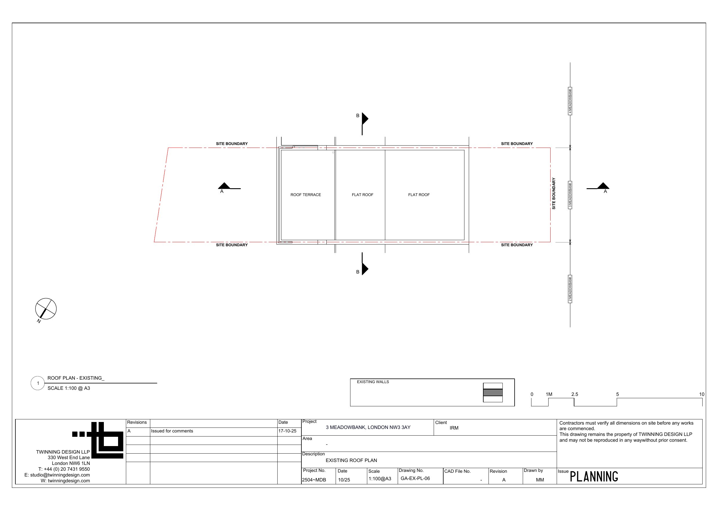
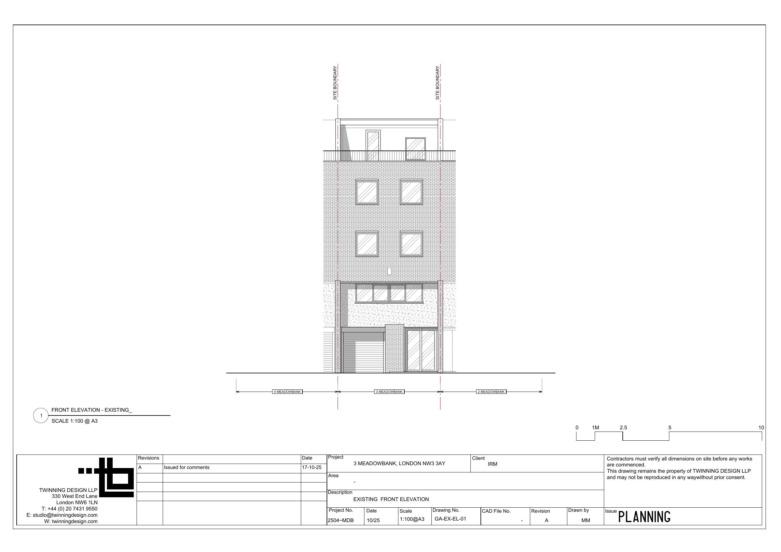
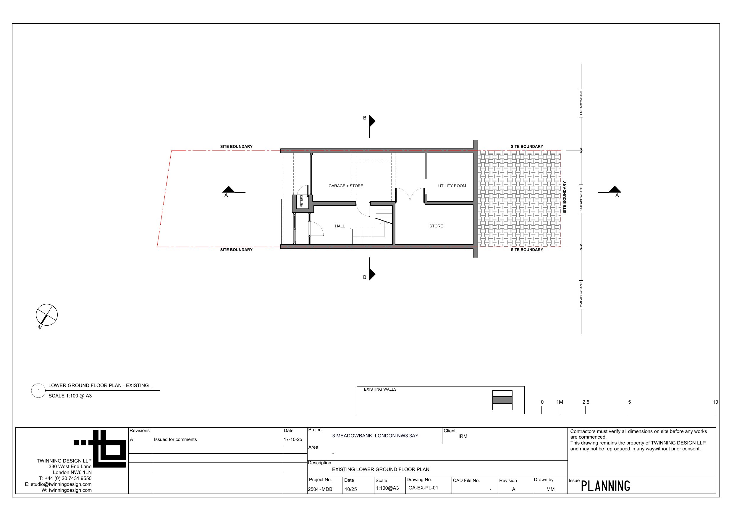
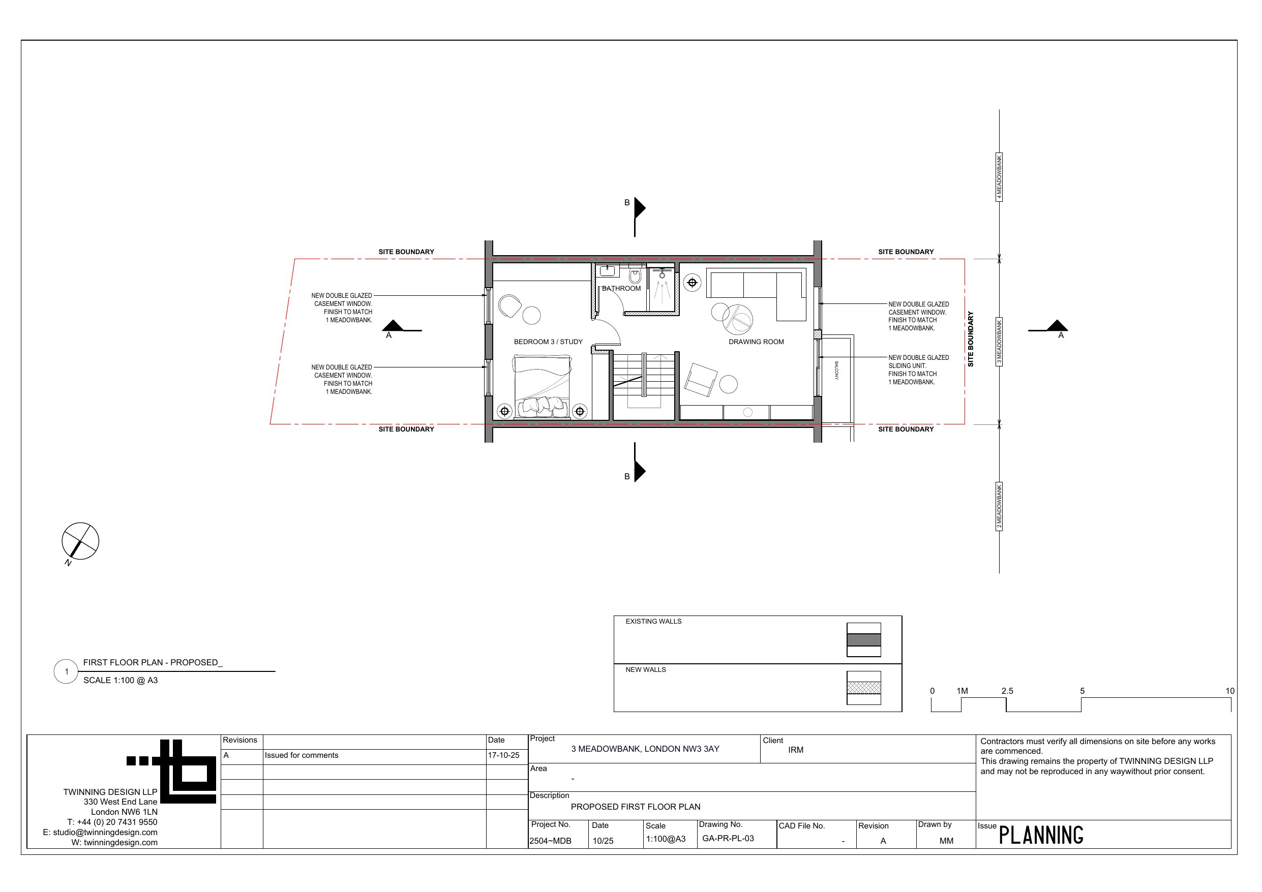
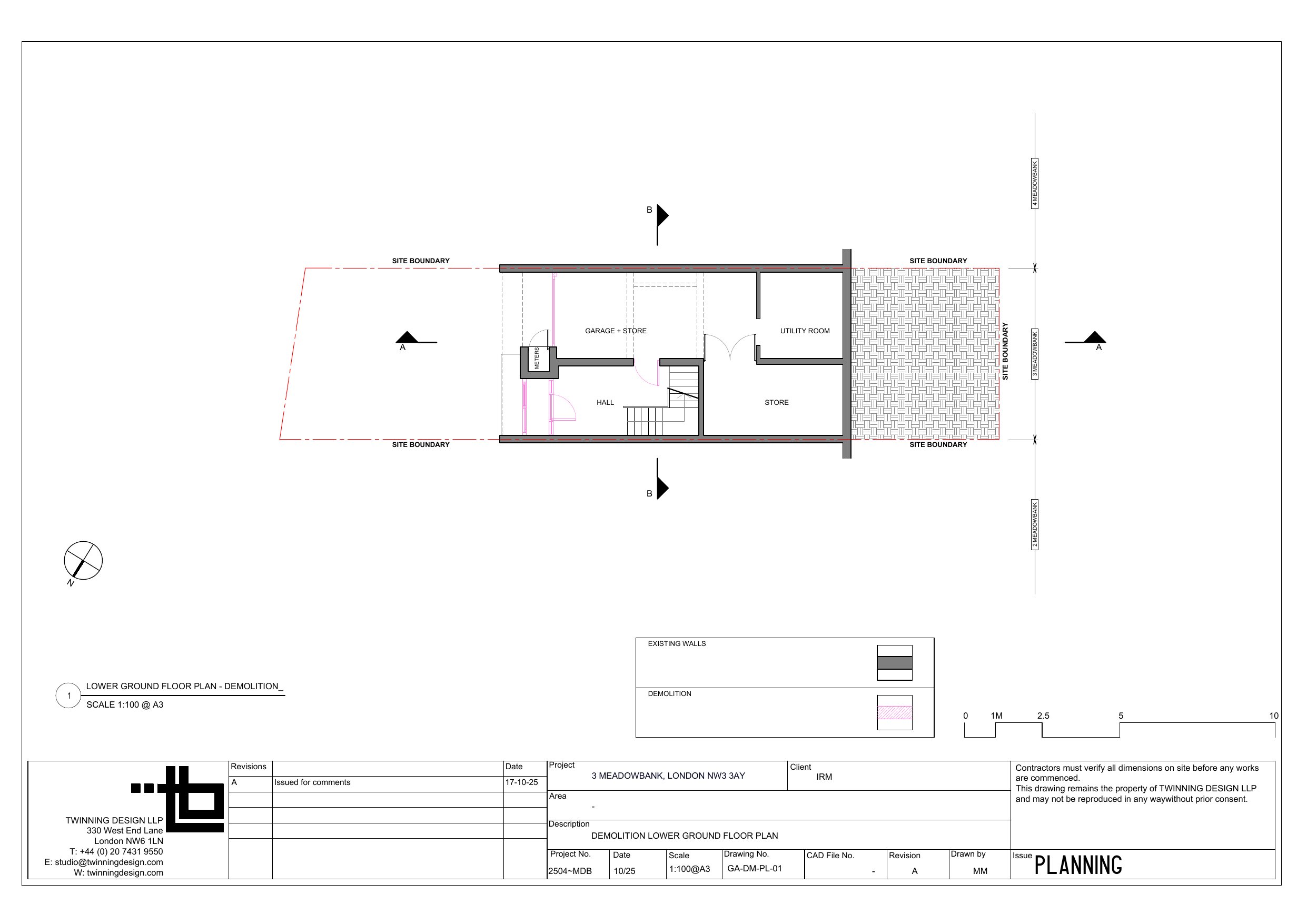
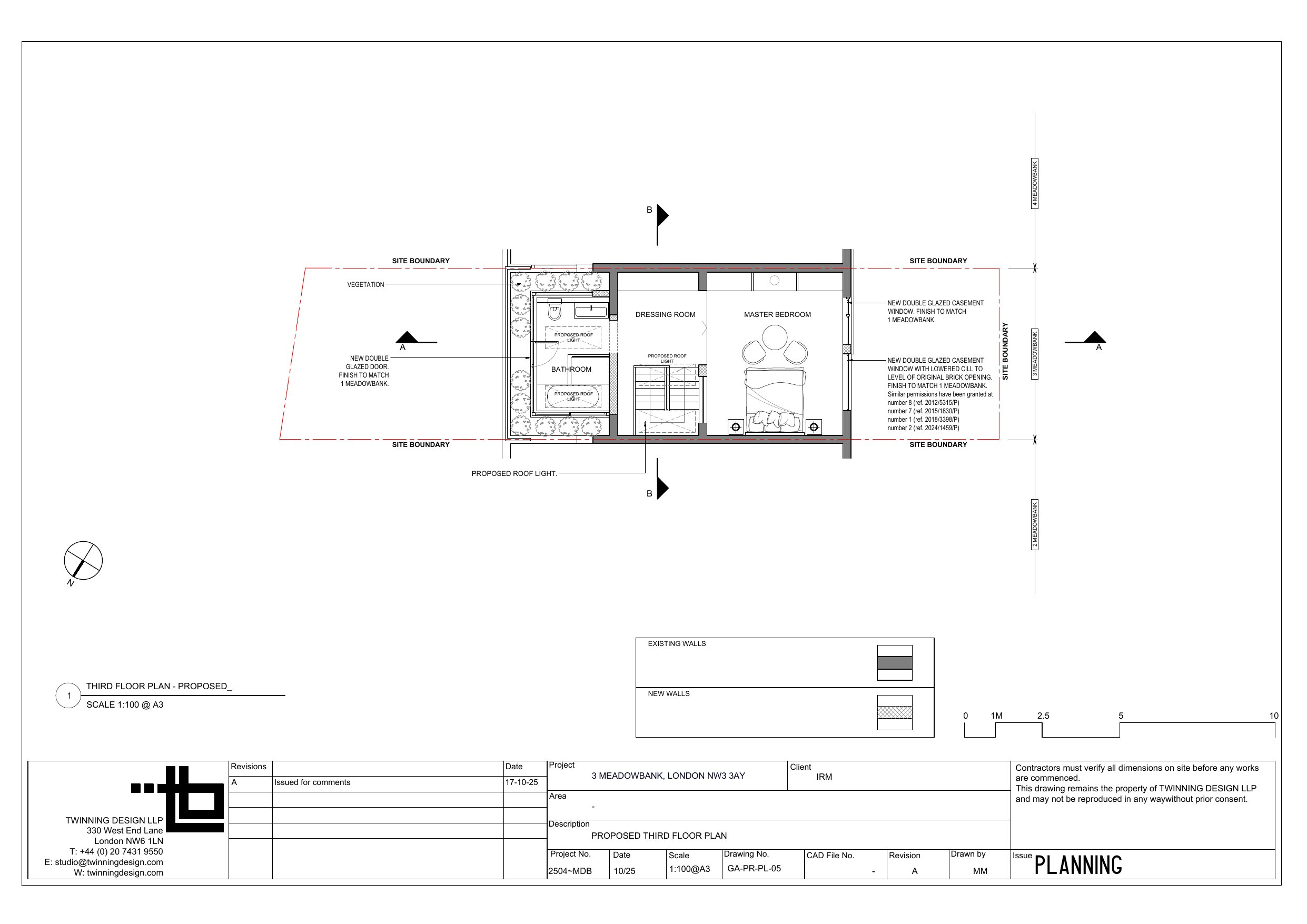
Erection of front infill extension at lower ground floor level and replacement of garage door with window in association with garage conversion to habitable floorspace; third floor extension onto the existing balcony; new plant enclosure with shrubbery at roof level; alterations to fenestration on all elevations and enlargement of rear windows at third floor level.

Documents

Application Form
Archived · Original link
M3 Document
Archived · Original link
M3 Document
Archived · Original link
M3 Document
Archived · Original link
M3 Document
Archived · Original link
M3 Document
Archived · Original link
M3 Document
Archived · Original link
M3 Document
Archived · Original link
M3 Document
Archived · Original link
M3 Document
Archived · Original link
M3 Document
Archived · Original link
M3 Document
Archived · Original link
M3 Document
Archived · Original link
M3 Document
Archived · Original link
M3 Document
Archived · Original link
M3 Document
Archived · Original link
M3 Document
Archived · Original link
M3 Document
Archived · Original link
M3 Document
Archived · Original link
M3 Document
Archived · Original link
M3 Document
Archived · Original link
M3 Document
Archived · Original link
M3 Document
Archived · Original link
M3 Document
Archived · Original link
M3 Document
Archived · Original link
M3 Document
Archived · Original link
M3 Document
Archived · Original link
M3 Document
Archived · Original link
M3 Document
Archived · Original link
M3 Document
Archived · Original link
M3 Document
Archived · Original link
M3 Document
Archived · Original link
M3 Document
Archived · Original link
M3 Document
Archived · Original link

Have your say

Your comment matters. Councils must consider every representation that raises material planning considerations.

Write a comment