2026/0343/P
London Borough of Camden
Status
REGISTERED
Infrastructure
Received
27 Jan 2026
New homes
0
Full proposal
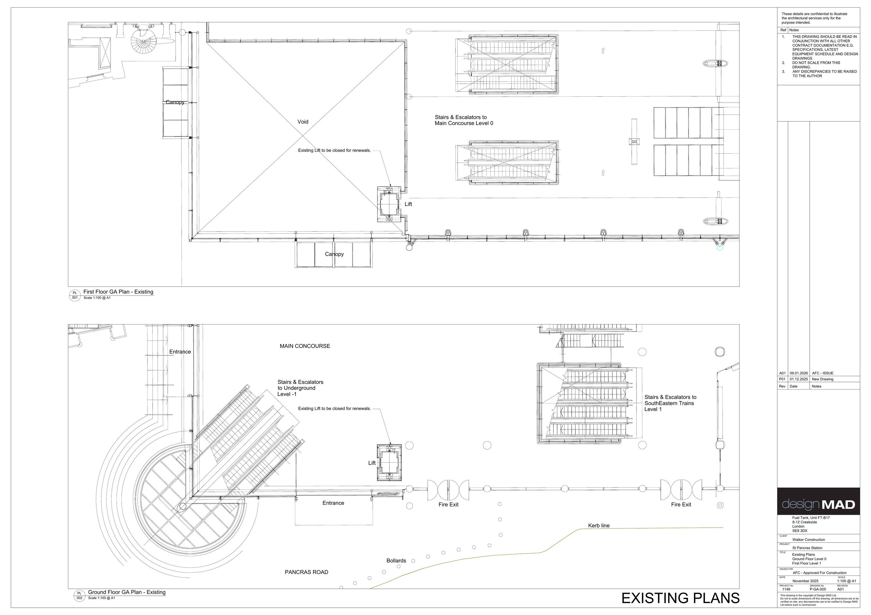
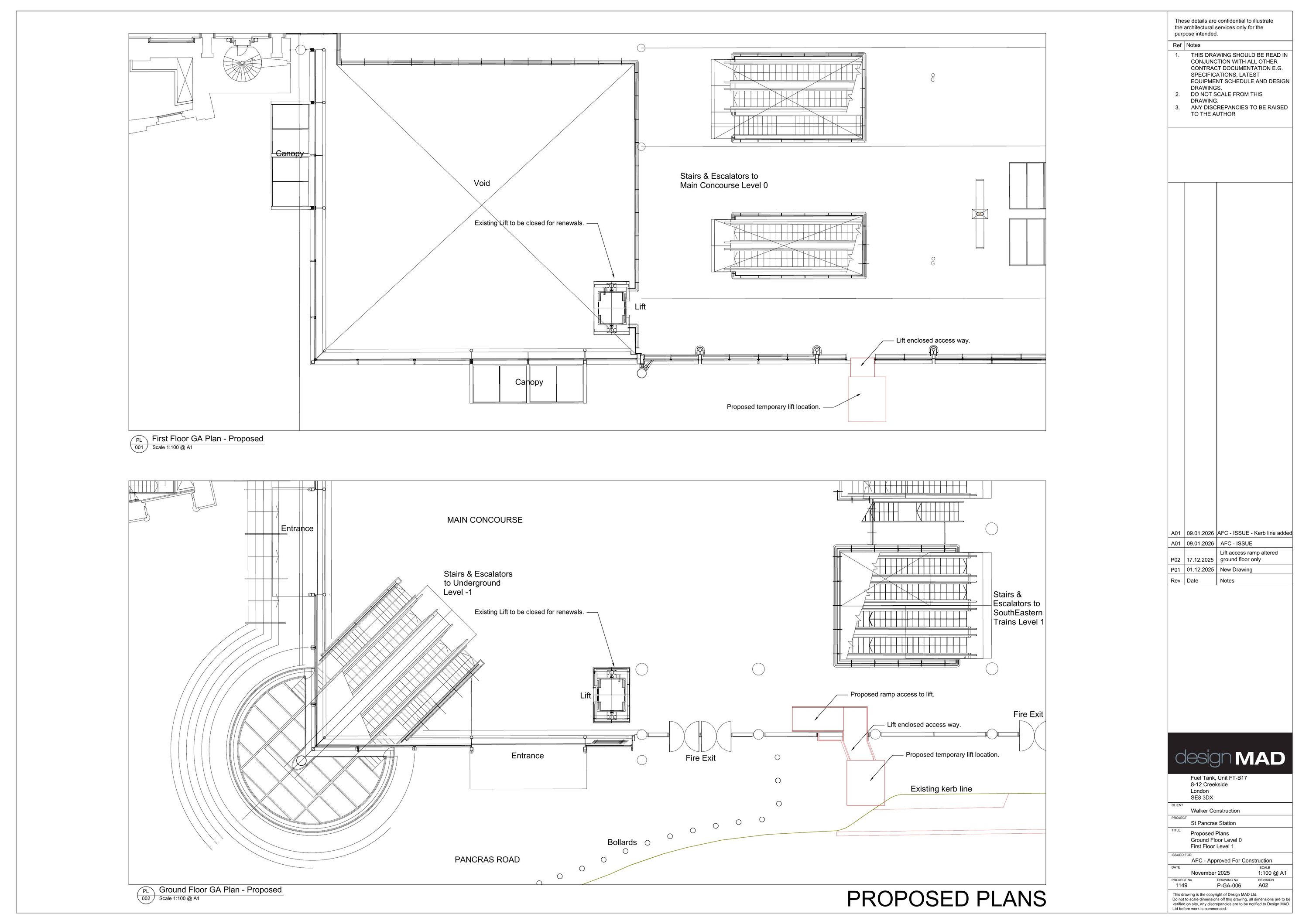
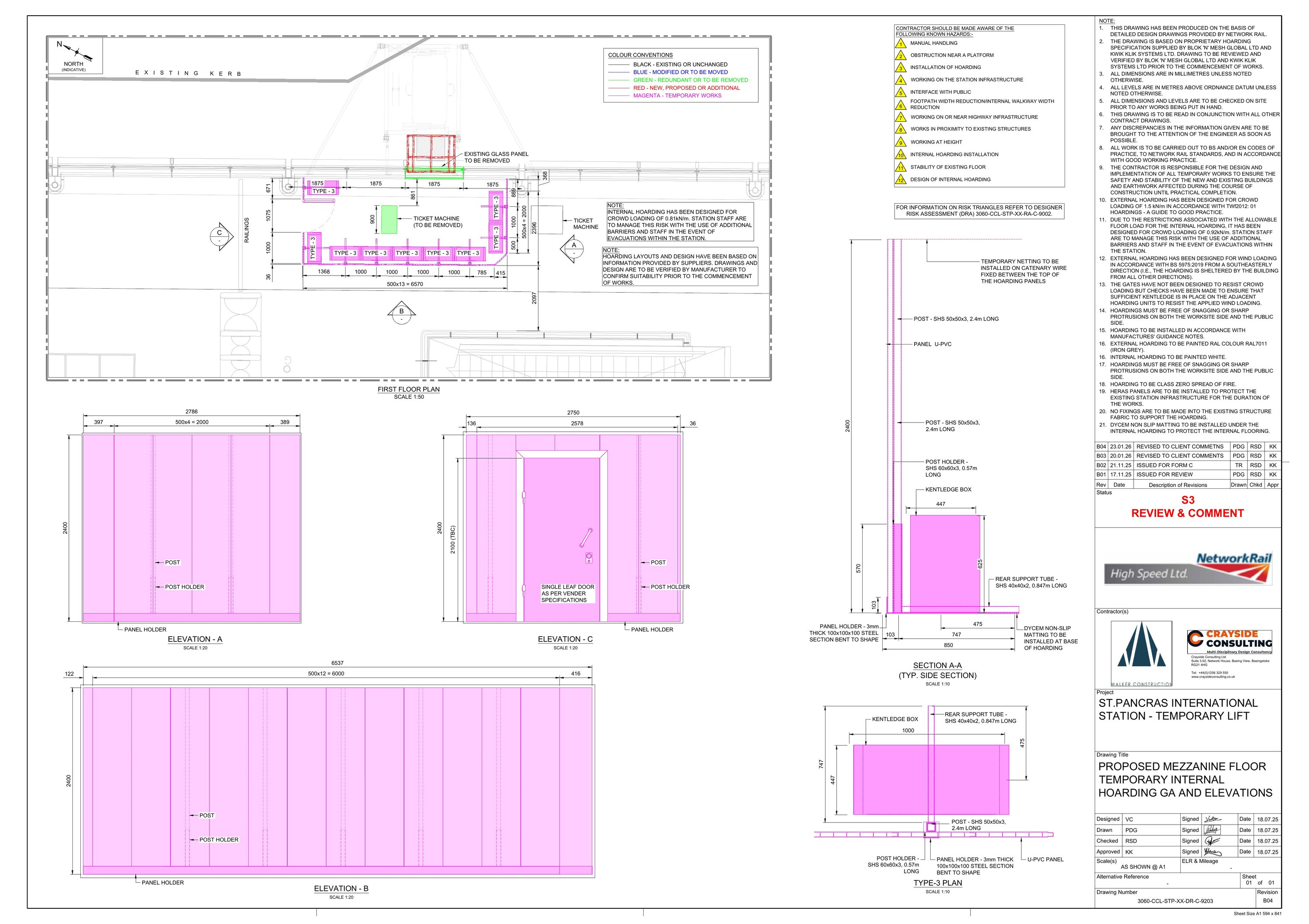
Submission under Schedule 6 of the CTRL Act 1996 of construction arrangements for the erection of a temporary external passenger lift adjacent the Pancras Road entrance to facilitate passenger access to platforms 11- 13 for a duration of 12 months to enable refurbishment to existing lift facilities. (Ref: HS1/CAM/10).
Documents
Existing Drawing
Archived
· Original link
Proposed Drawing
Archived
· Original link
Proposed Drawing
Archived
· Original link
Proposed Drawing
Archived
· Original link
Proposed Drawing
Archived
· Original link
Proposed Drawing
Archived
· Original link
Proposed Drawing
Archived
· Original link
Have your say
Your comment matters. Councils must consider every representation that raises material planning considerations.