← London Borough of Camden

Status

REGISTERED Commercial
Received
30 Jan 2026
New homes
0

Full proposal

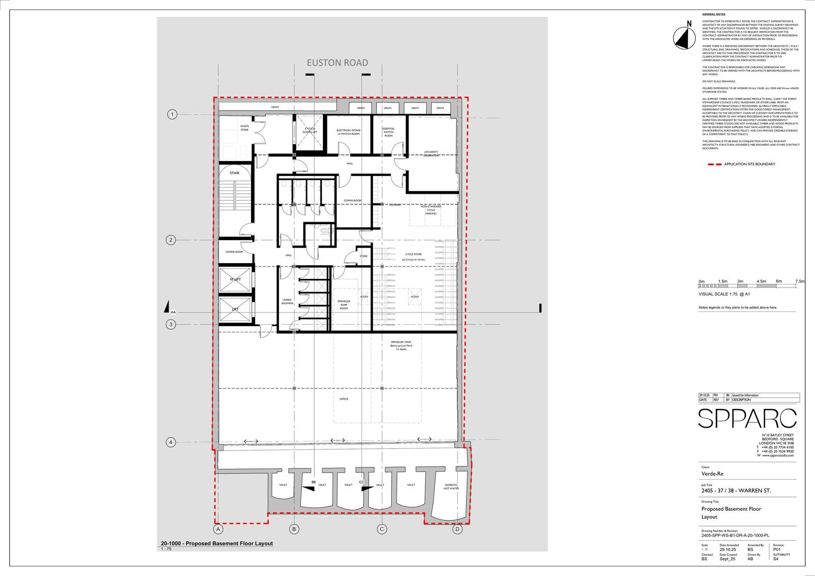
Demolition of existing buildings above ground with retention of existing basement level; erection of a new commercial building (Use Class E) comprising ground plus six storeys, external roof terrace, cycle parking, plant, substation, Warren Street lightwell, and associated works.

Documents

Air Quality Assessment
Supporting Documents
Not yet archived · Original link
Application Form (No Personal Data)
Application Form
Not yet archived · Original link
Arboricultural Impact Assessment
Supporting Documents
Not yet archived · Original link
Basement Impact Assessment
Supporting Documents
Not yet archived · Original link
Be Seen Spreadsheet
Supporting Documents
Not yet archived · Original link
Biodiversity Net Gain Report
Supporting Documents
Not yet archived · Original link
BREEAM Pre-Assessment
Supporting Documents
Not yet archived · Original link
Building Area Schedule
Supporting Documents
Not yet archived · Original link
Building Ground Movement Assessment
Supporting Documents
Not yet archived · Original link
Camden Air Quality Proforma
Supporting Documents
Not yet archived · Original link
CIL Form
CIL
Not yet archived · Original link
Circular Economy Statement
Supporting Documents
Not yet archived · Original link
Construction/Demolition Management Plan
Supporting Documents
Not yet archived · Original link
Cover Letter
Supporting Documents
Not yet archived · Original link
Daylight and Sunlight Report
Supporting Documents
Not yet archived · Original link
Delivery and Servicing Management Plan
Supporting Documents
Not yet archived · Original link
Demolition Plans Elevations and Sections
Proposed Drawing
Not yet archived · Original link
Design and Access Statement
Design and Access Statement
Not yet archived · Original link
Development Options Testing
Supporting Documents
Not yet archived · Original link
Energy Statement
Supporting Documents
Not yet archived · Original link
Existing Plans Elevations and Sections
Existing Drawing
Not yet archived · Original link
Existing Drawing
Archived · Original link
Flood Risk Assessment
Supporting Documents
Not yet archived · Original link
GLA Carbon Emission Reporting Spreadsheet
Supporting Documents
Not yet archived · Original link
GLA Circular Economy Statement.xlsx
Supporting Documents
Not yet archived · Original link
GLA WLC Assessment Template.xlsx
Supporting Documents
Not yet archived · Original link
Heritage, Townscape, and Visual Impact Assessment
Supporting Documents
Not yet archived · Original link
Landscape Statement
Supporting Documents
Not yet archived · Original link
Noise Impact Assessment
Supporting Documents
Not yet archived · Original link
Phase I Desk Study
Supporting Documents
Not yet archived · Original link
Planning Fire Safety Strategy
Supporting Documents
Not yet archived · Original link
Planning Statement
Supporting Documents
Not yet archived · Original link
Pre-Demolition Audit
Supporting Documents
Not yet archived · Original link
Proposed Landscape Drawings
Proposed Drawing
Not yet archived · Original link
Proposed Drawing
Archived · Original link
Statement of Community Involvement
Supporting Documents
Not yet archived · Original link
Structural Methodology Statement
Supporting Documents
Not yet archived · Original link
Sustainability Statement
Supporting Documents
Not yet archived · Original link
Sustainable Drainage Strategy
Supporting Documents
Not yet archived · Original link
Transport Statement
Supporting Documents
Not yet archived · Original link
Travel Plan
Supporting Documents
Not yet archived · Original link
Waste Collection and Storage Strategy
Supporting Documents
Not yet archived · Original link
Whole Life Carbon Statement
Supporting Documents
Not yet archived · Original link

Have your say

Your comment matters. Councils must consider every representation that raises material planning considerations.

Write a comment