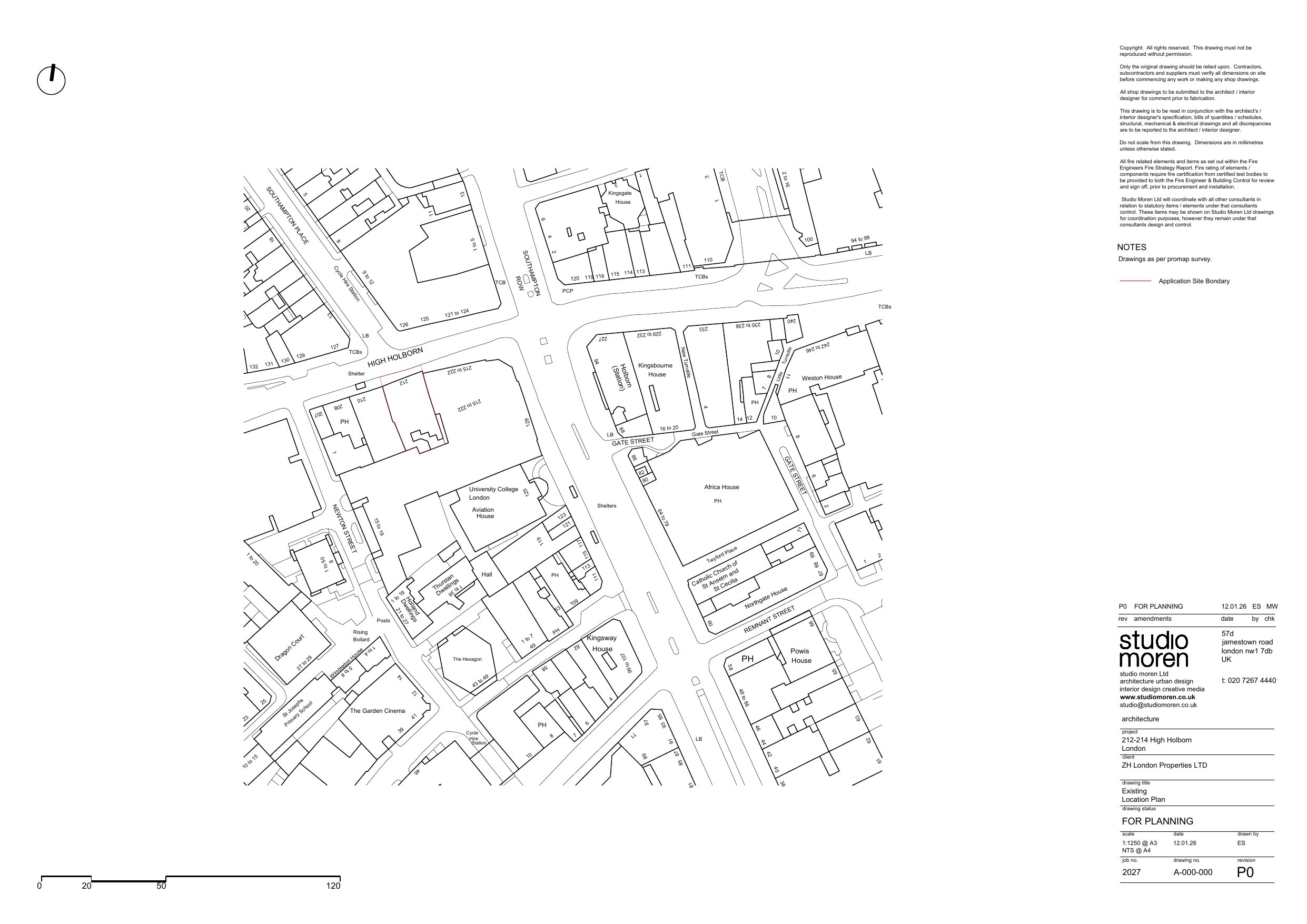
← London Borough of Camden

Status

REGISTERED Change of use
Received
02 Feb 2026
New homes
0

Full proposal

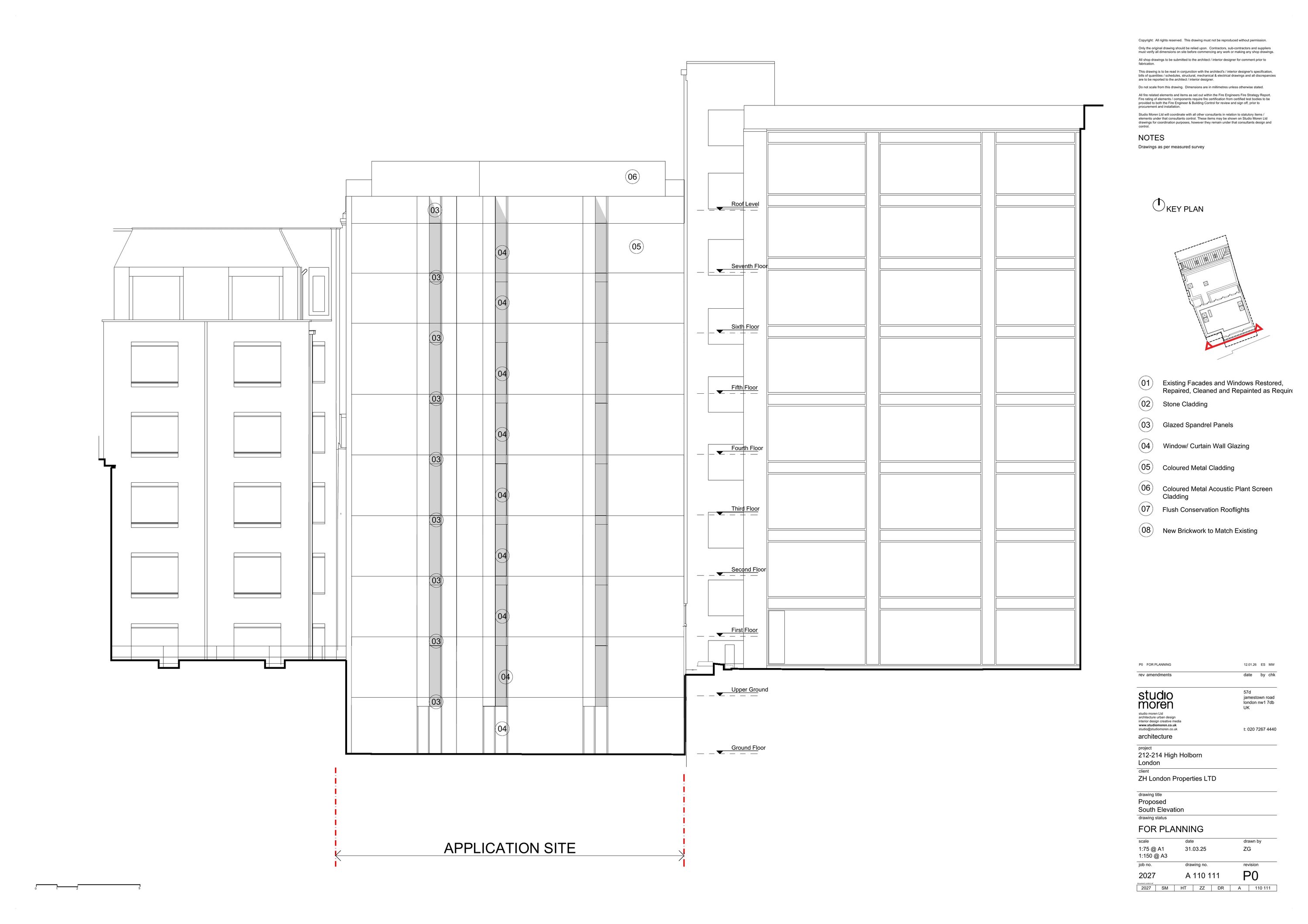
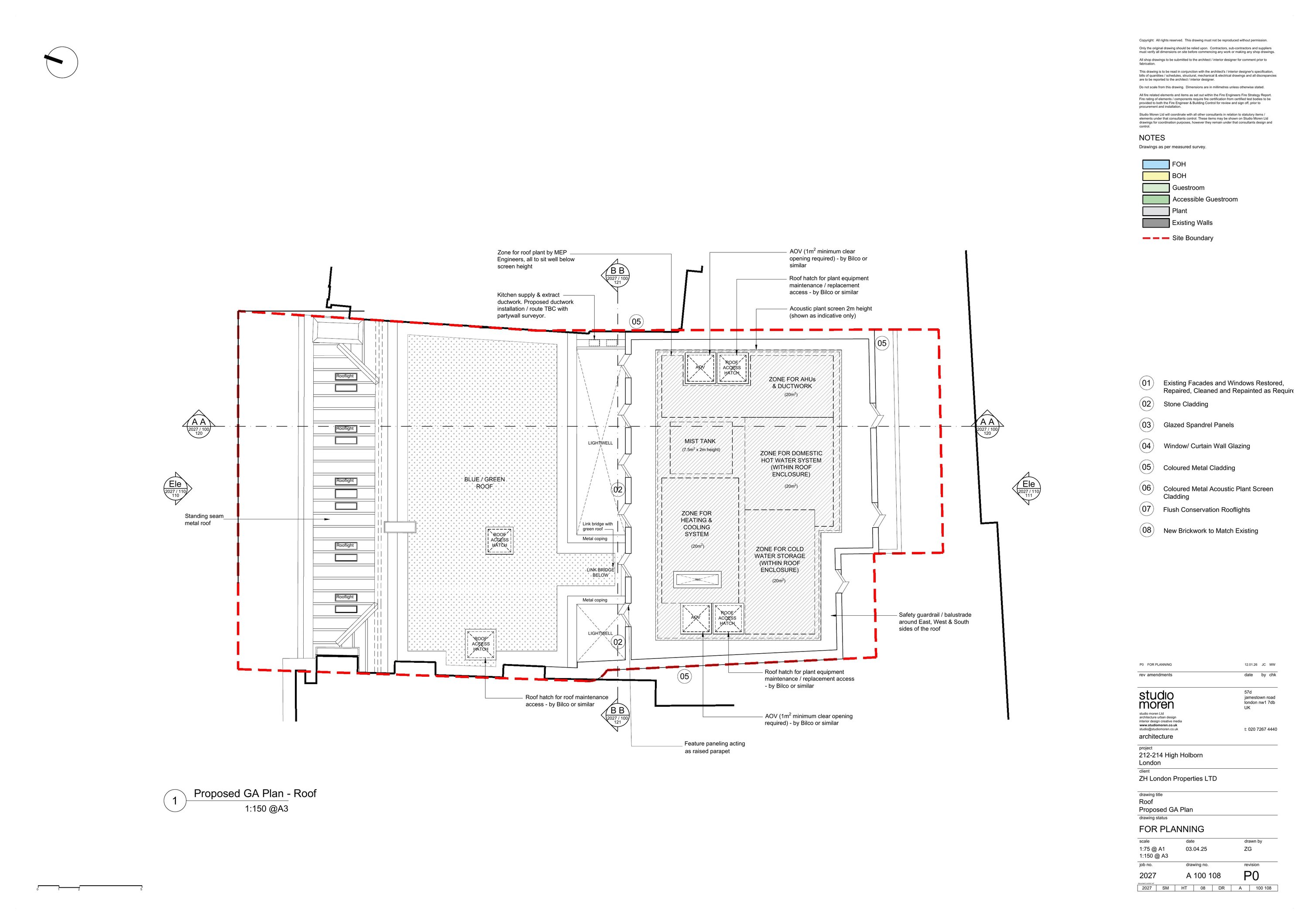
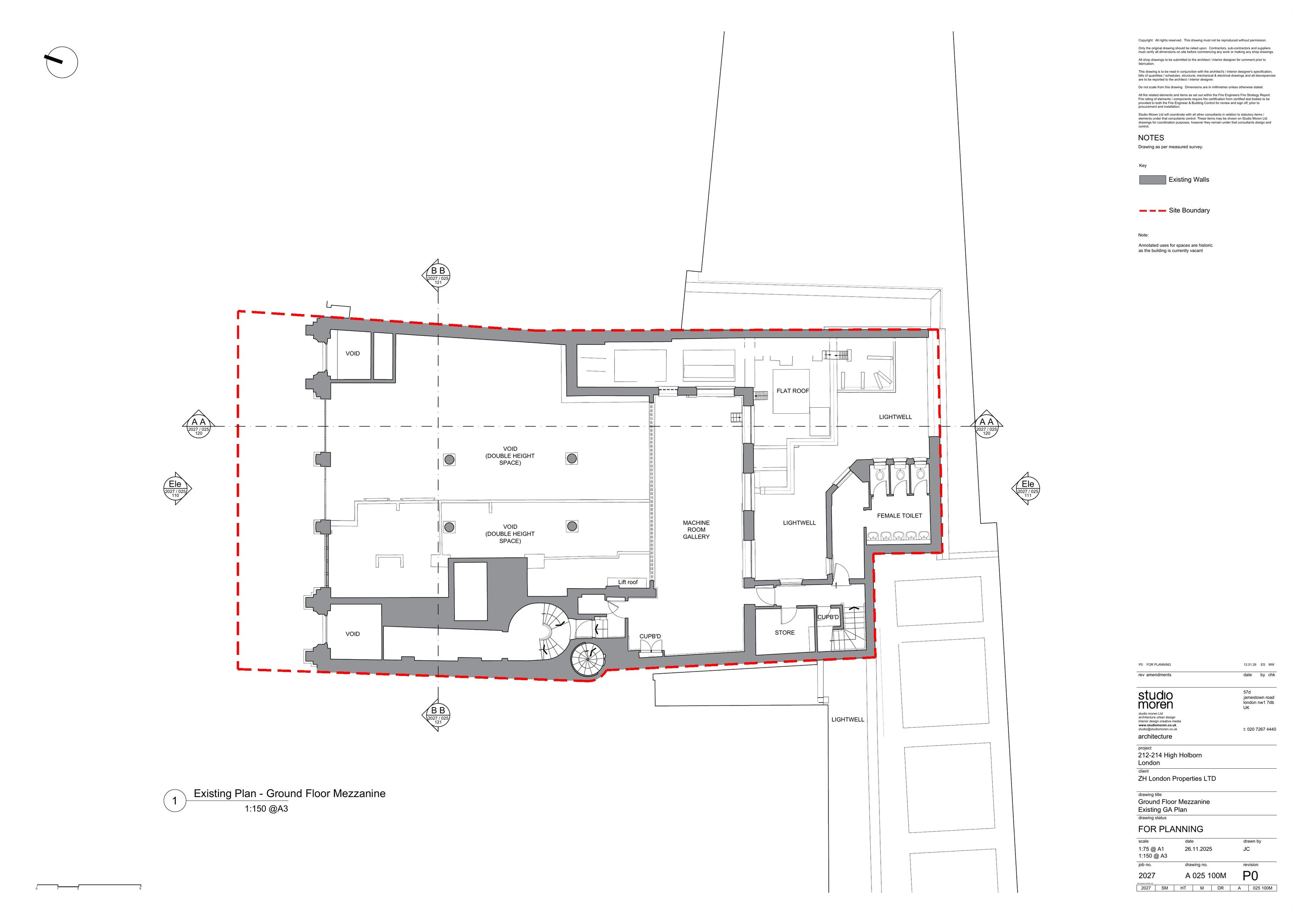
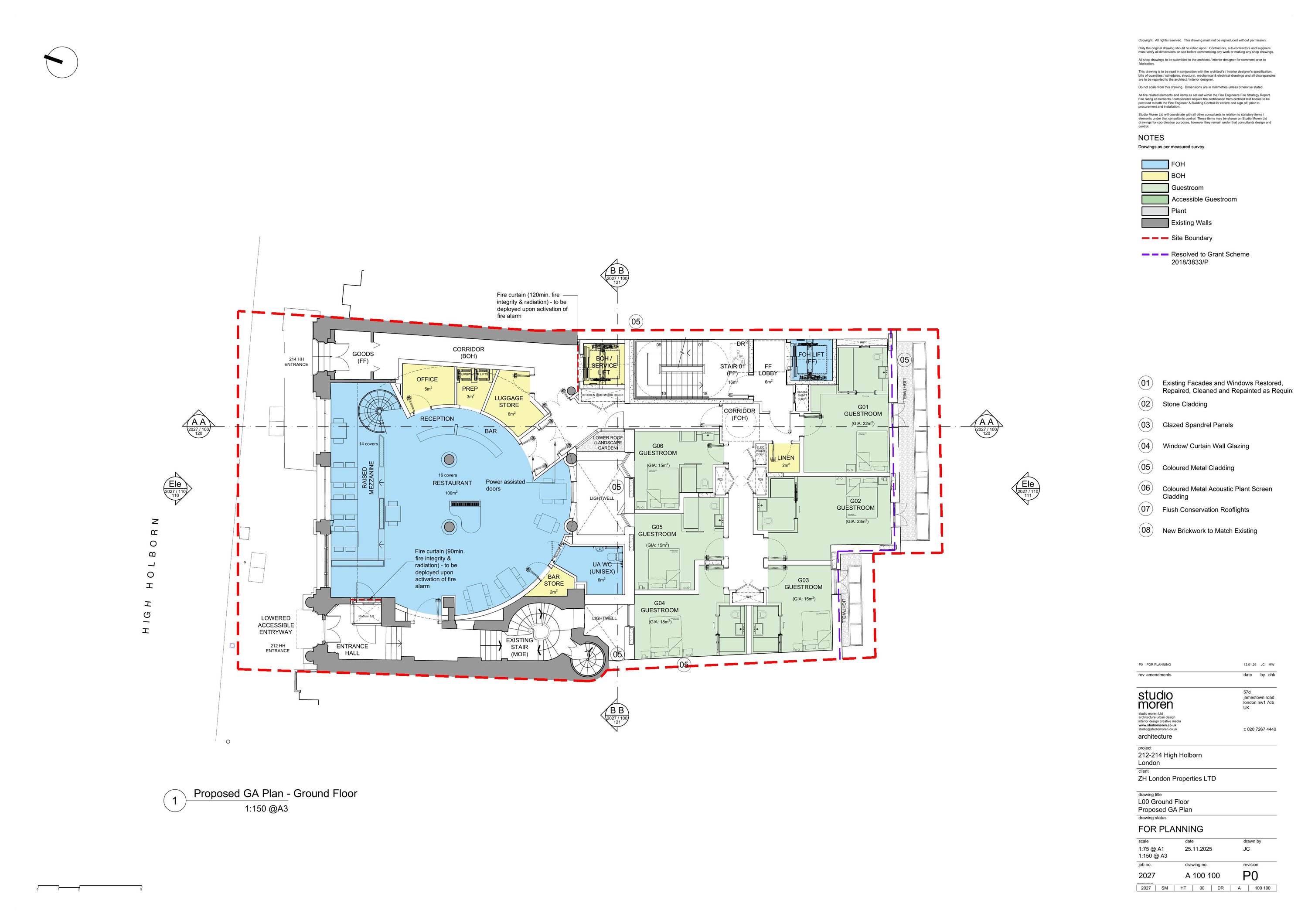
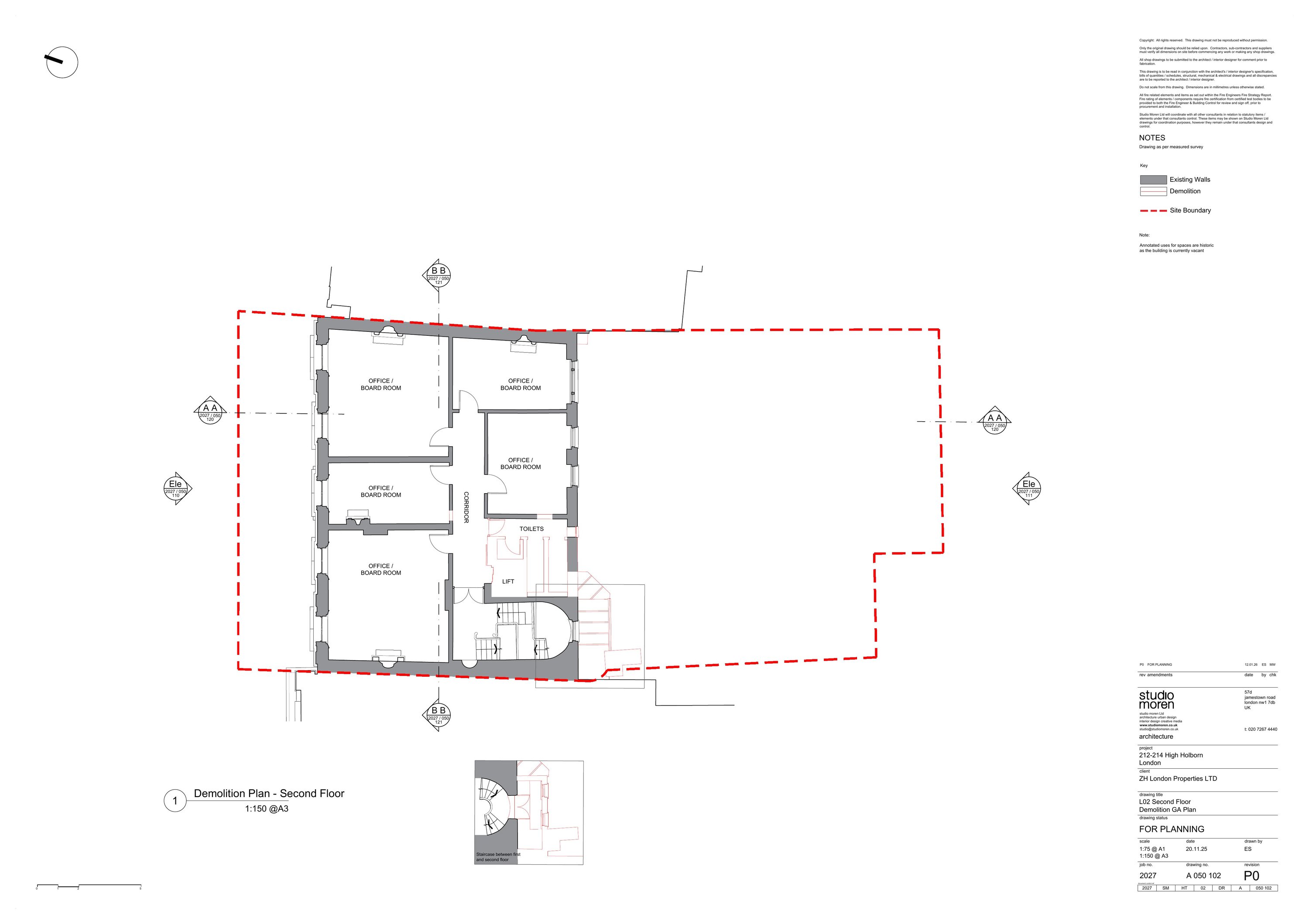
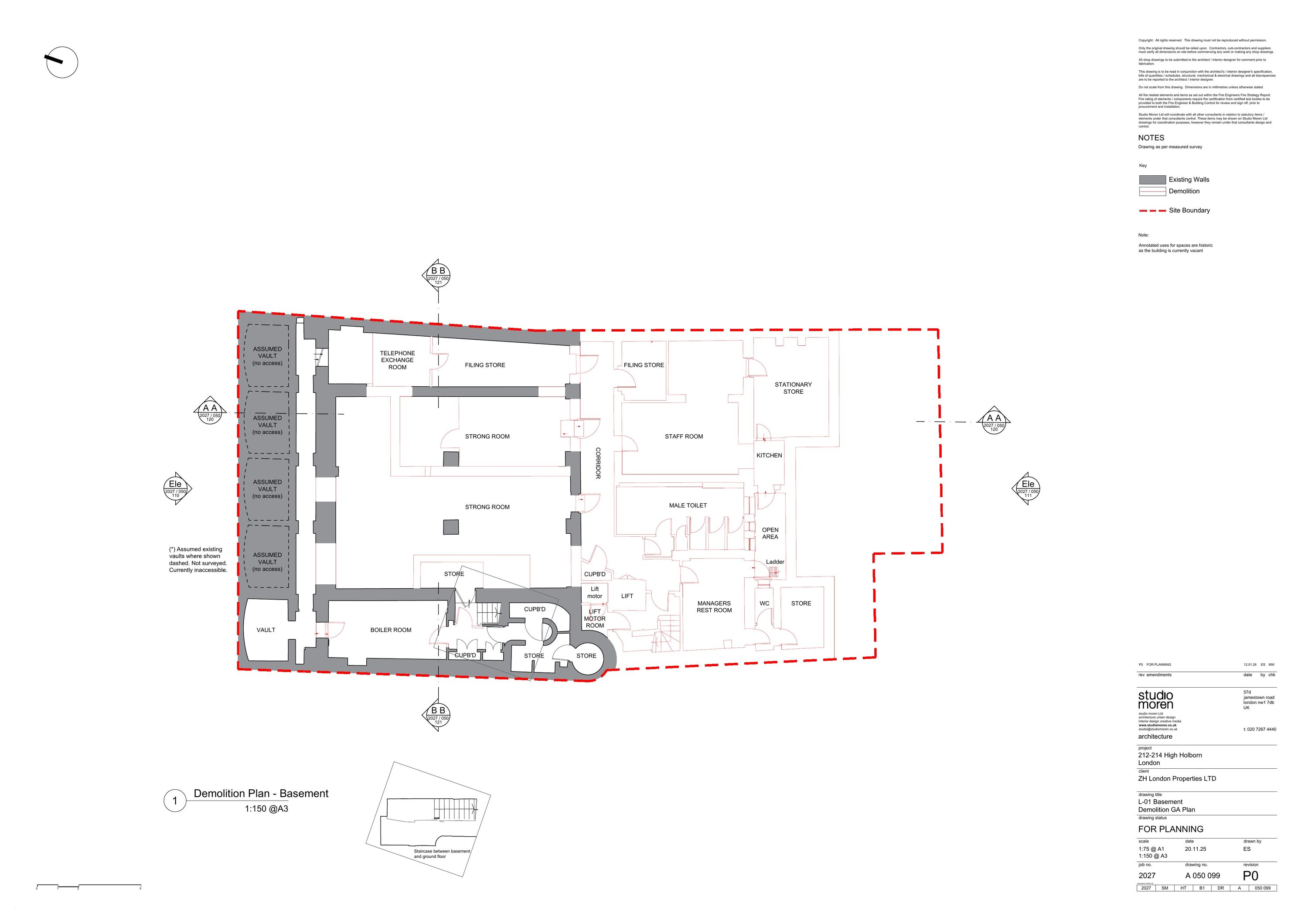
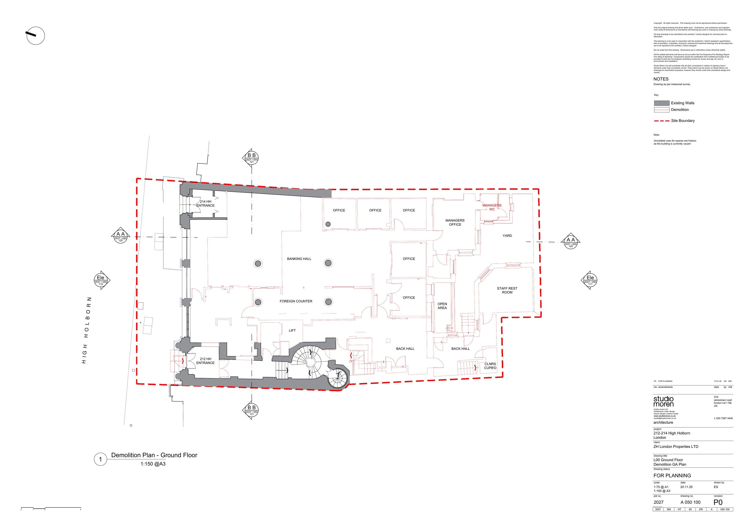
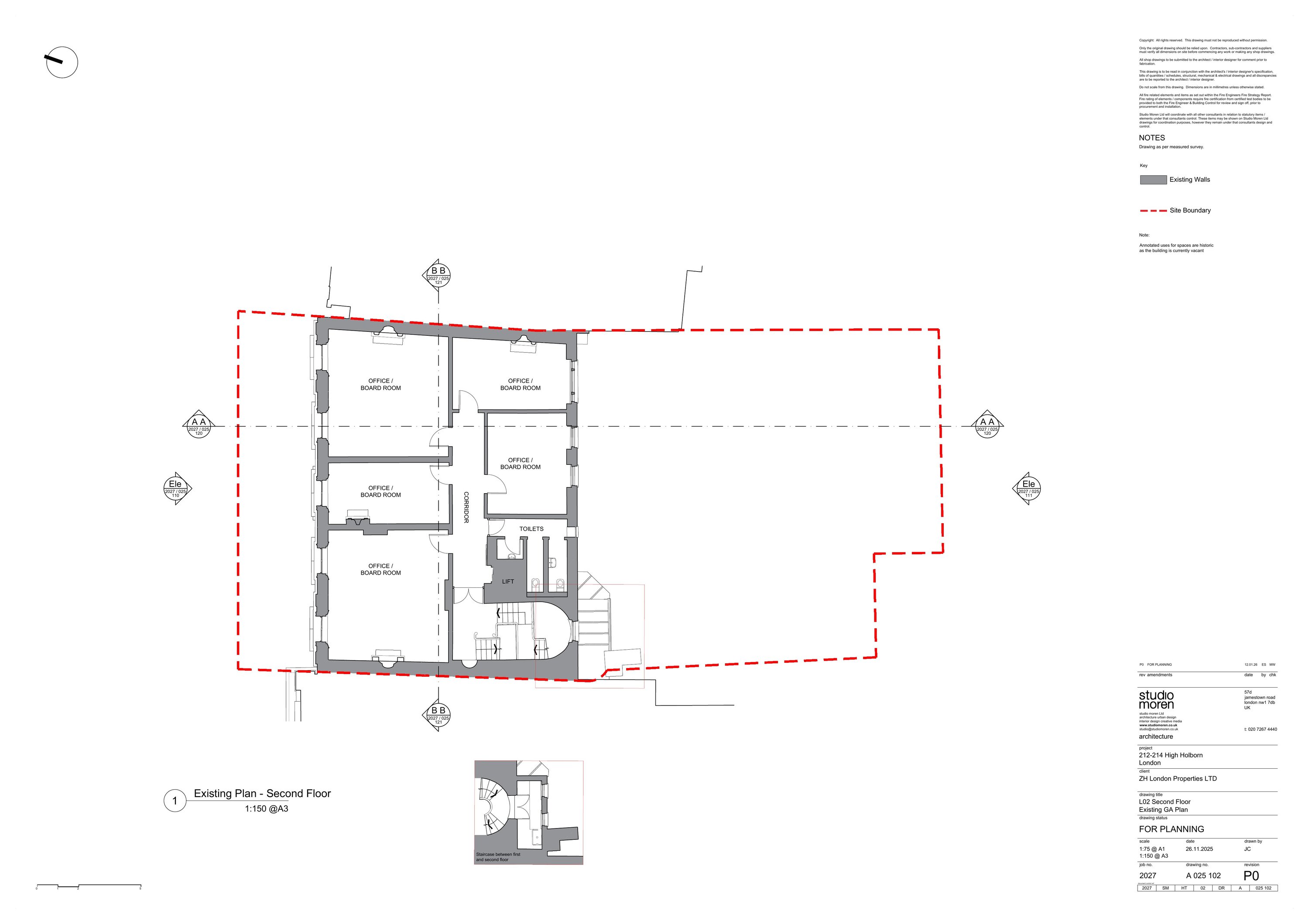
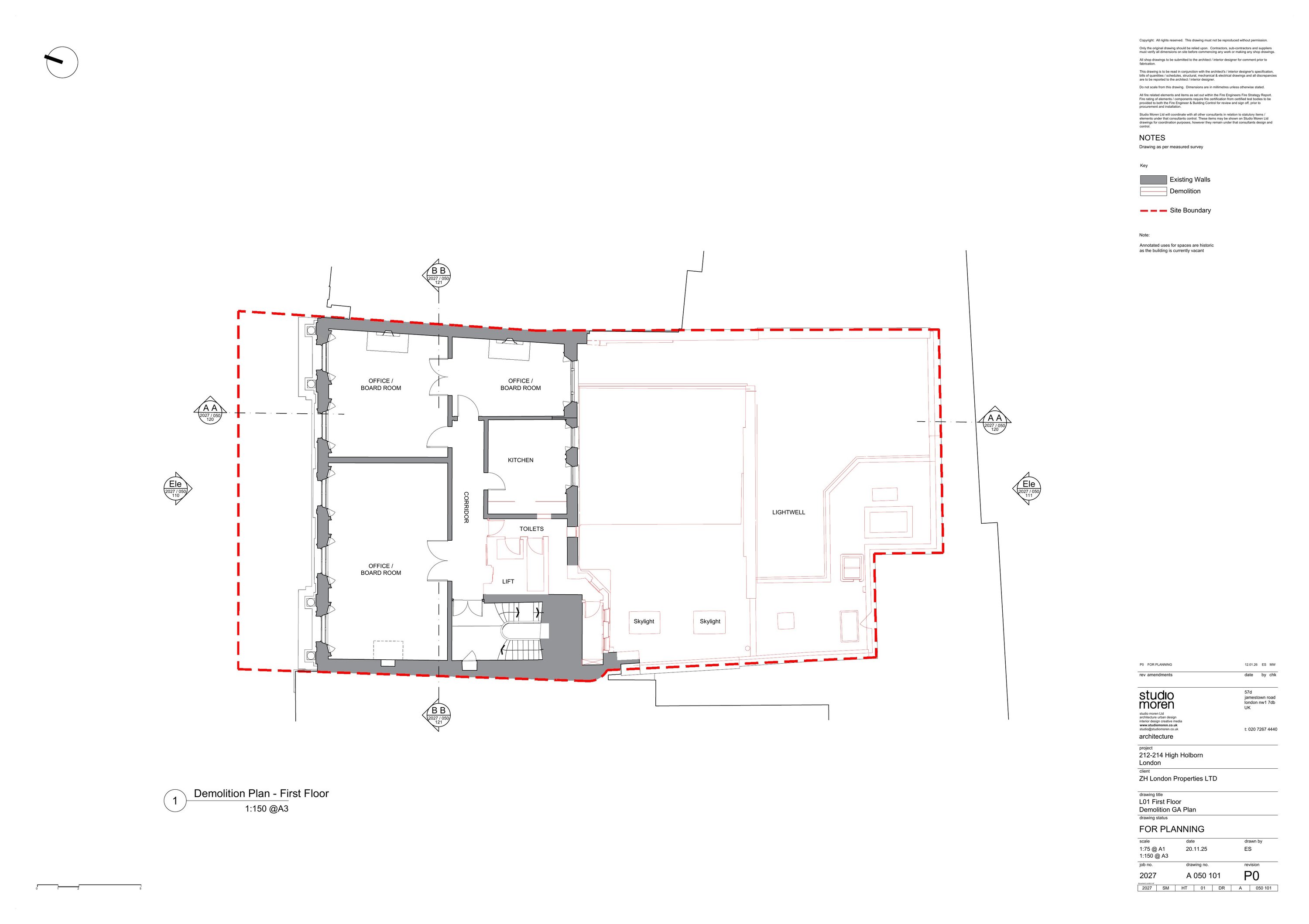
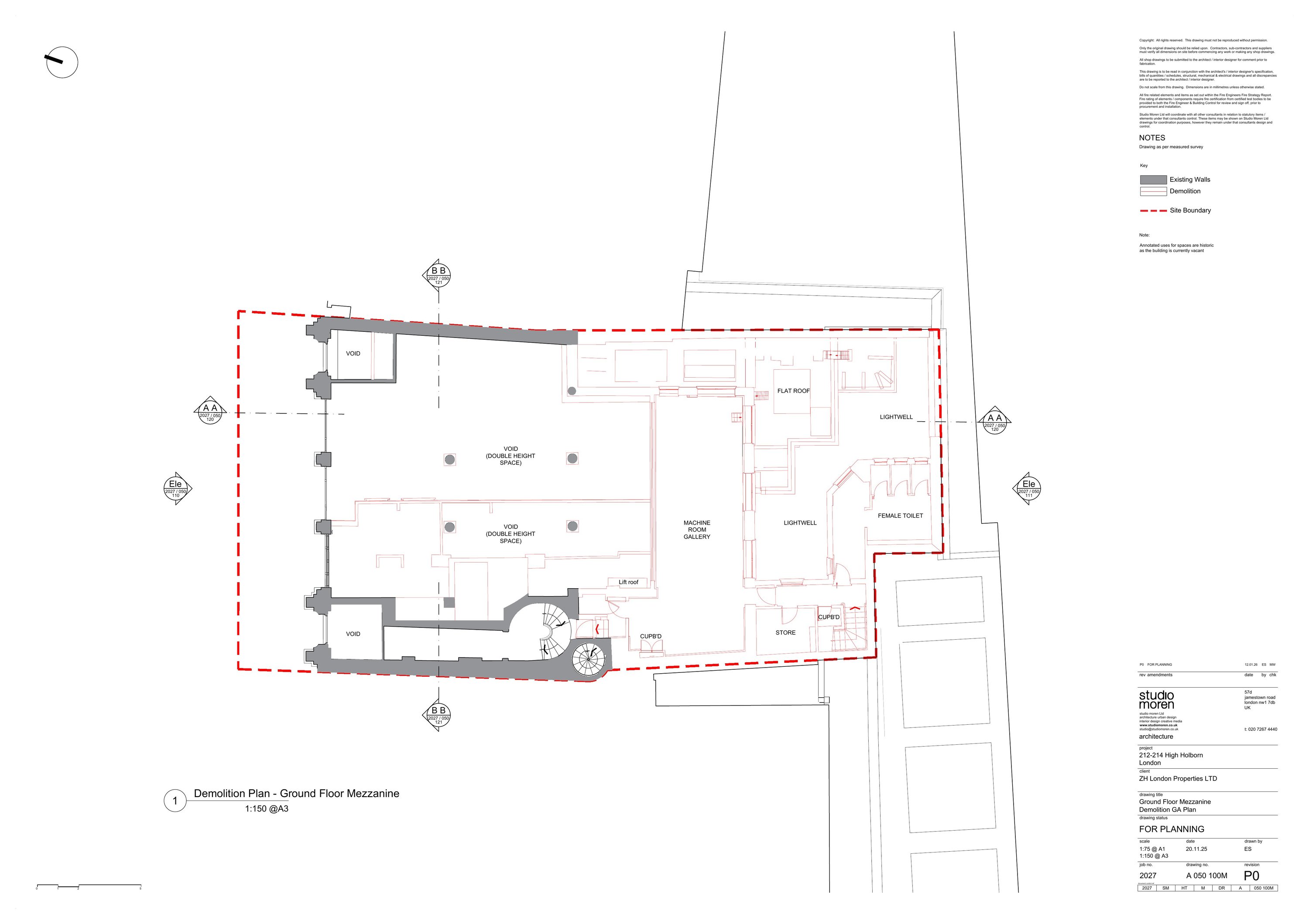
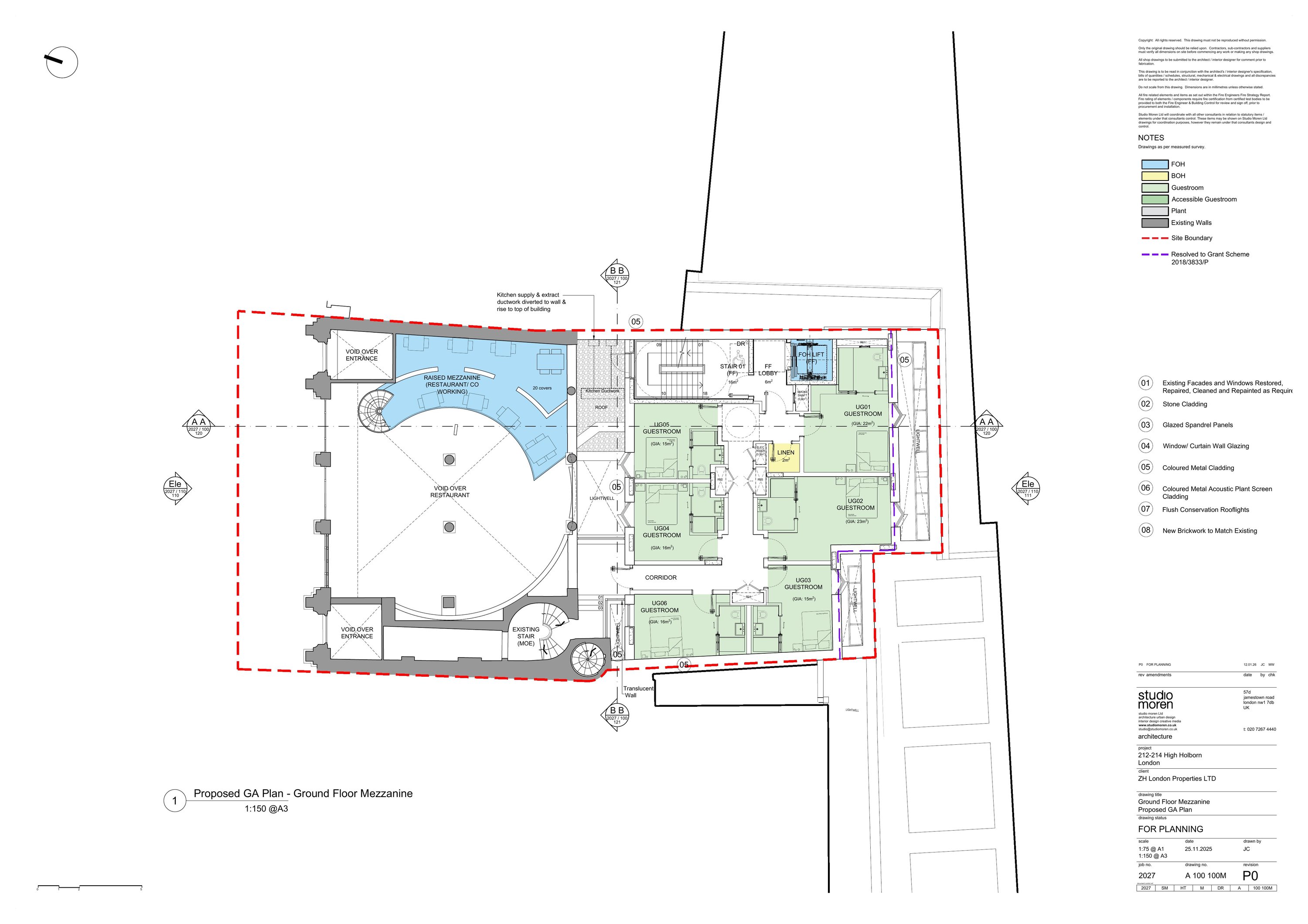
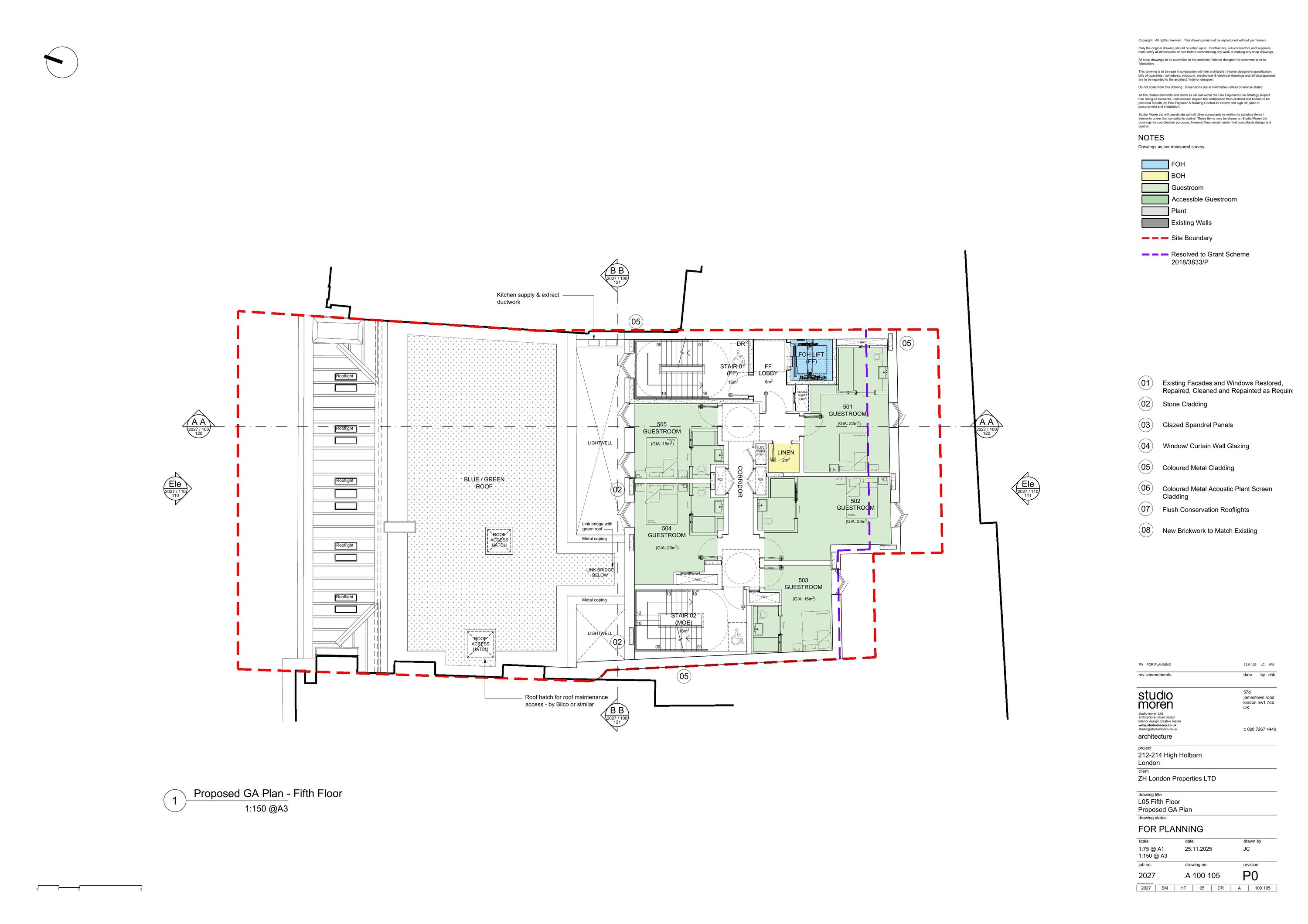
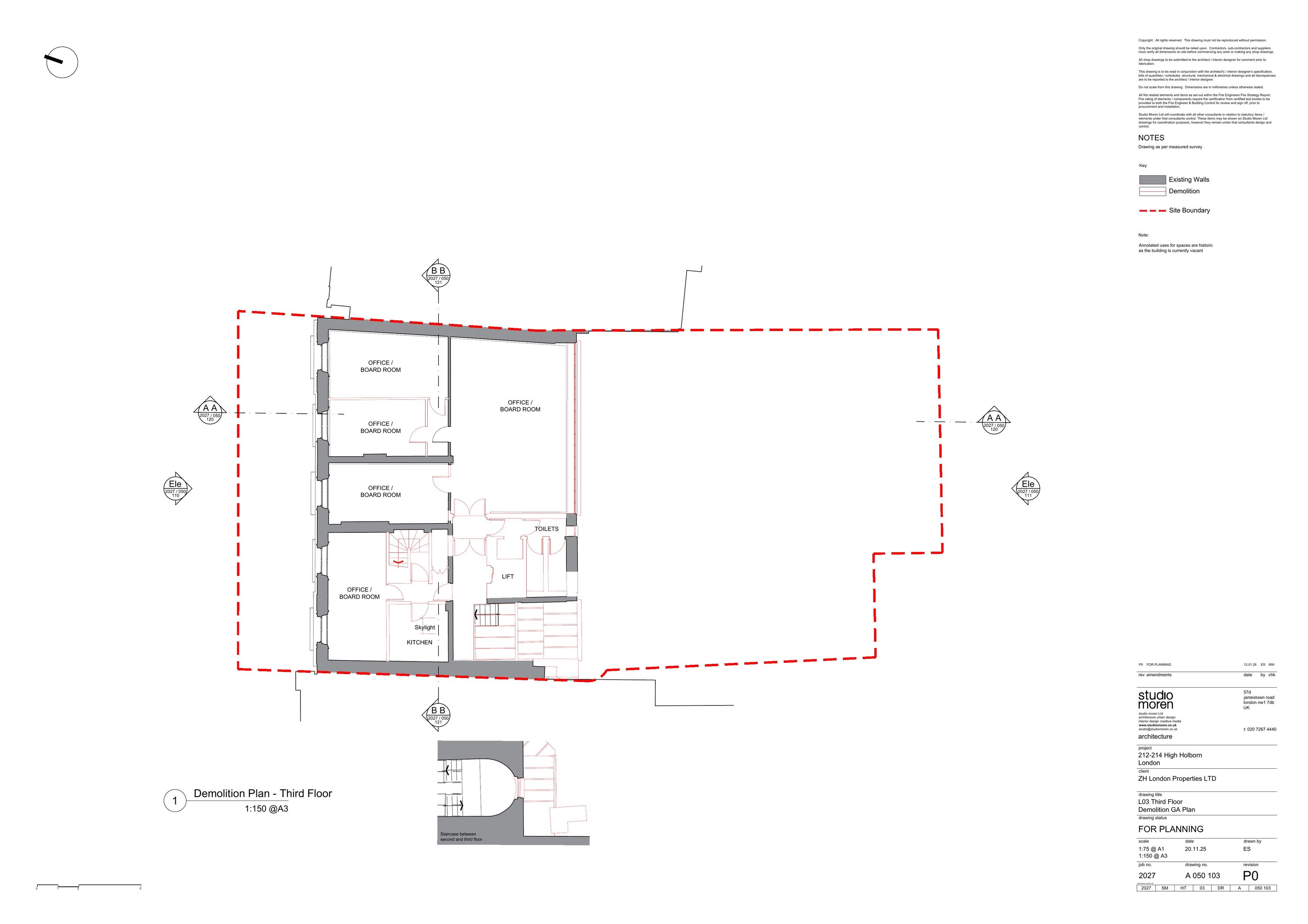
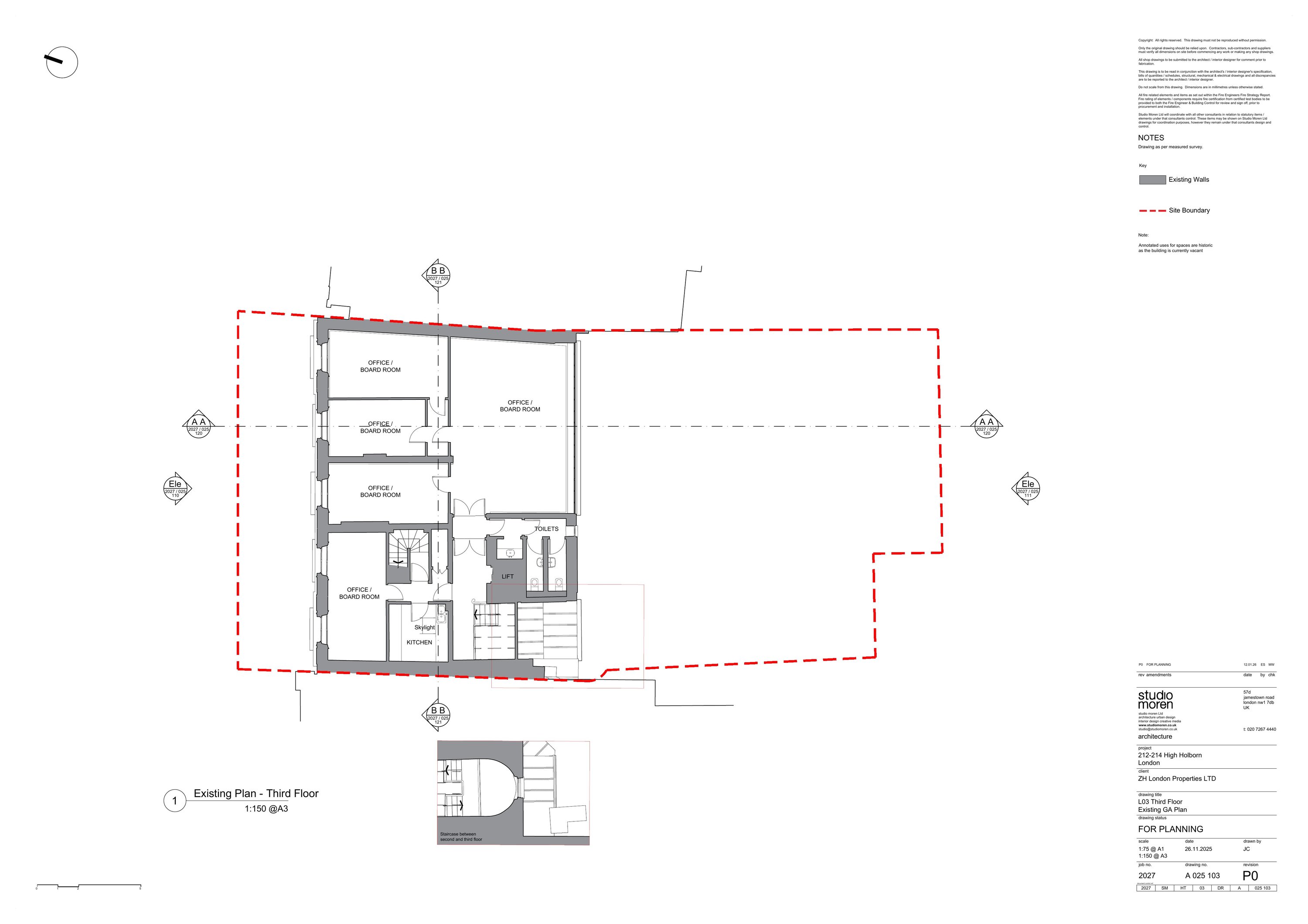
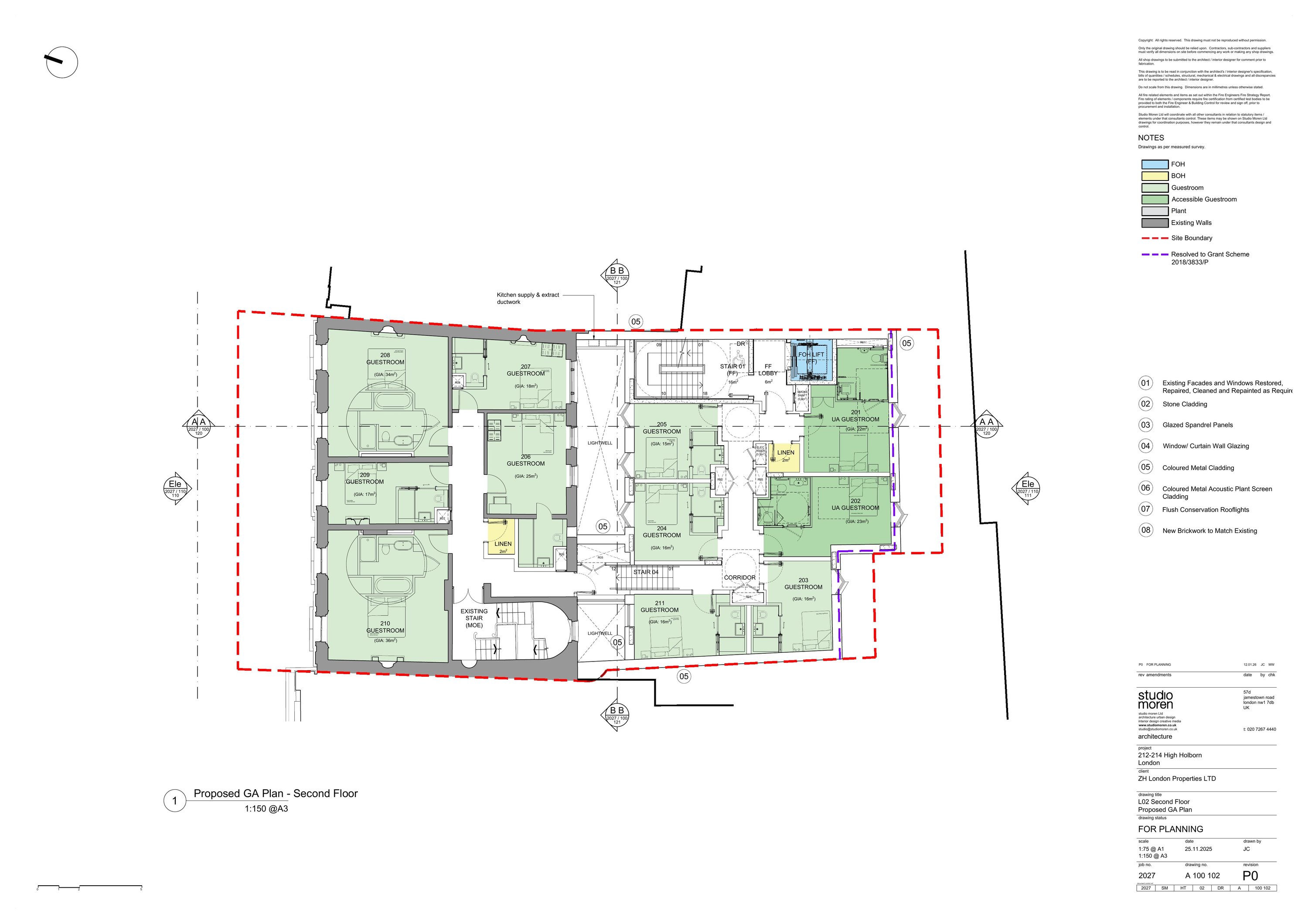
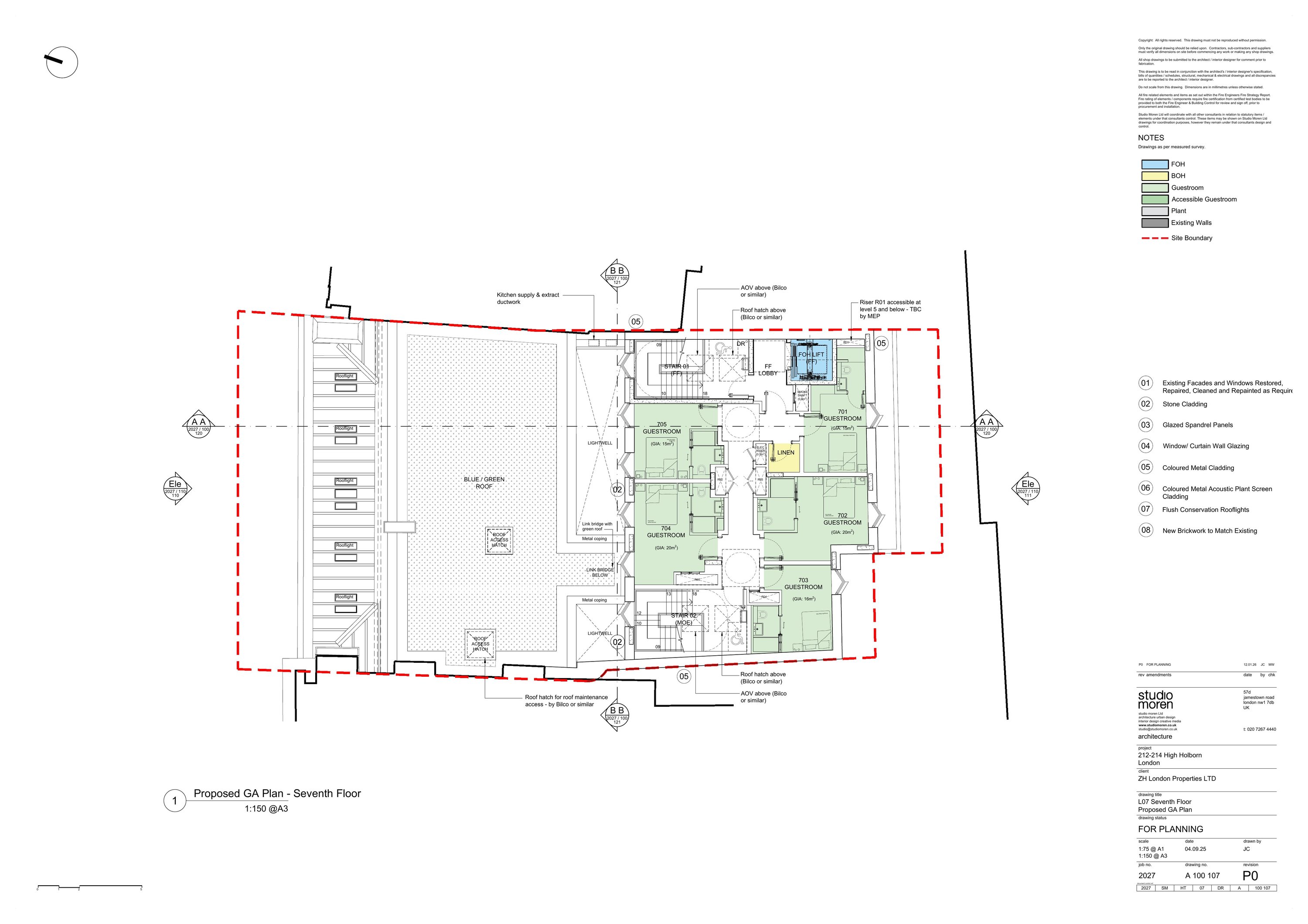
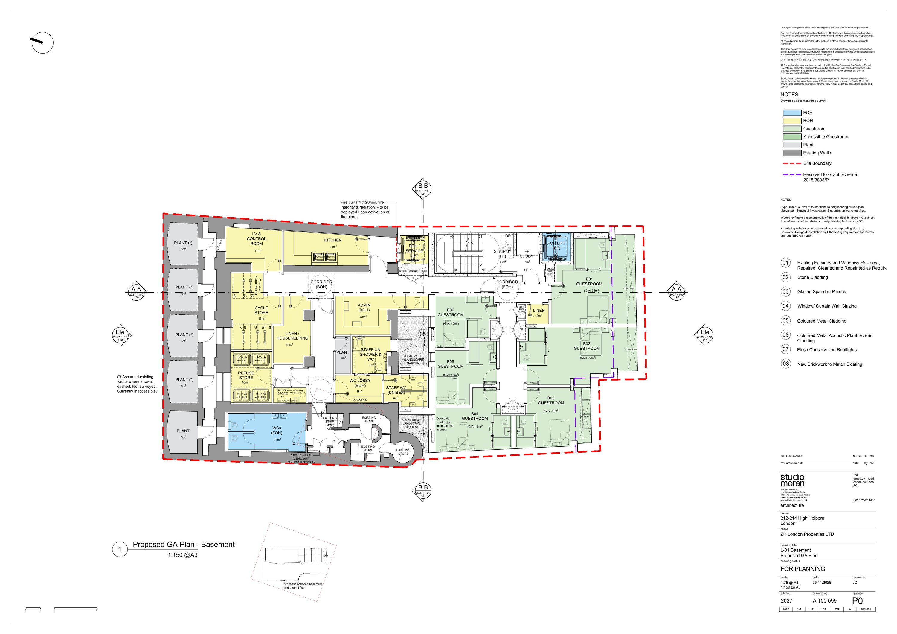
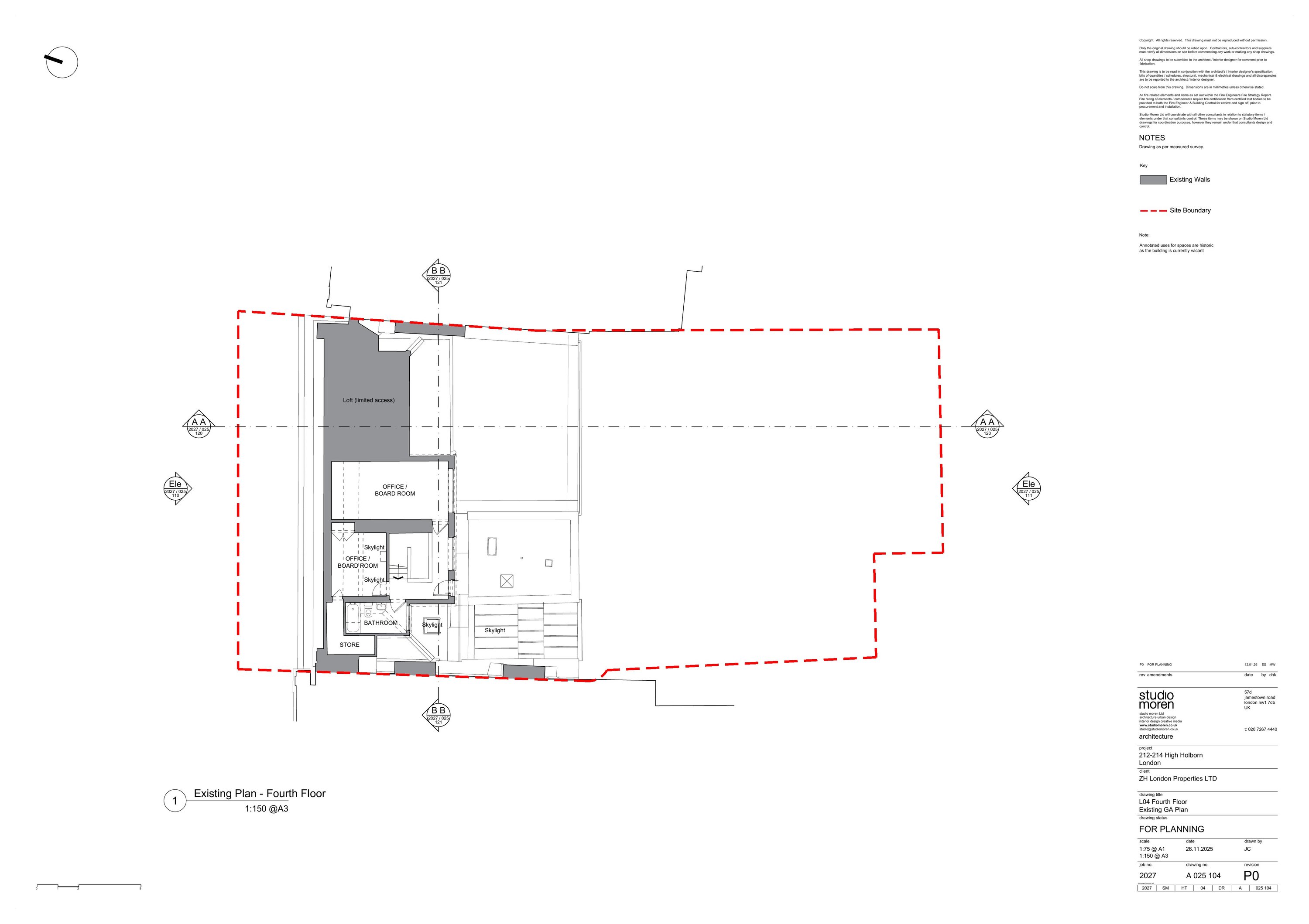
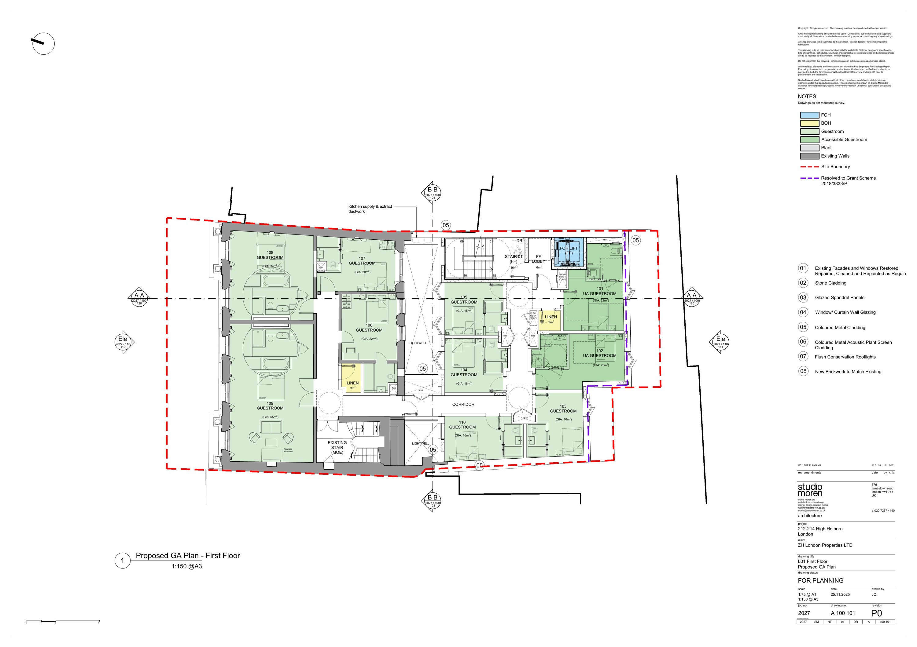
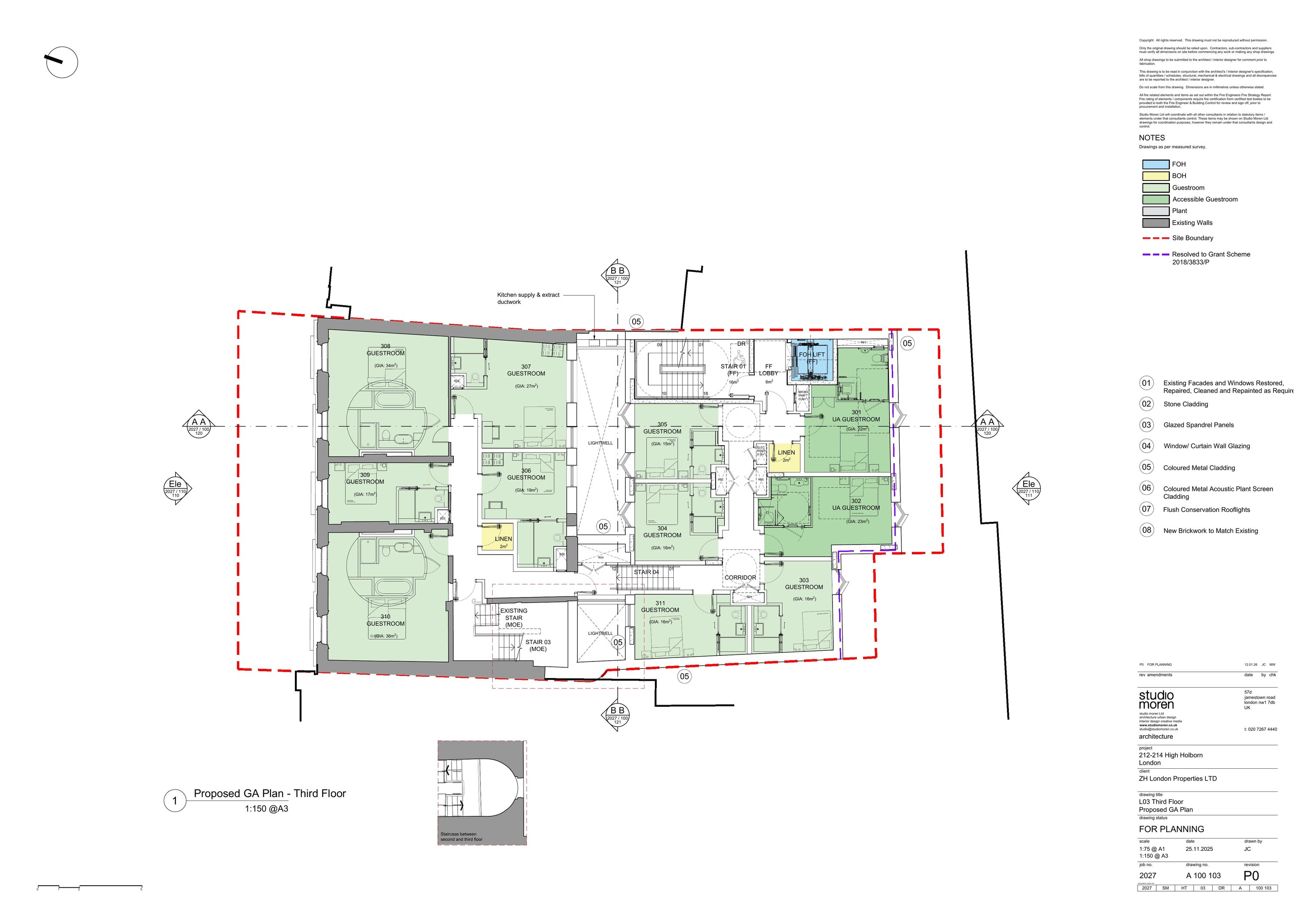
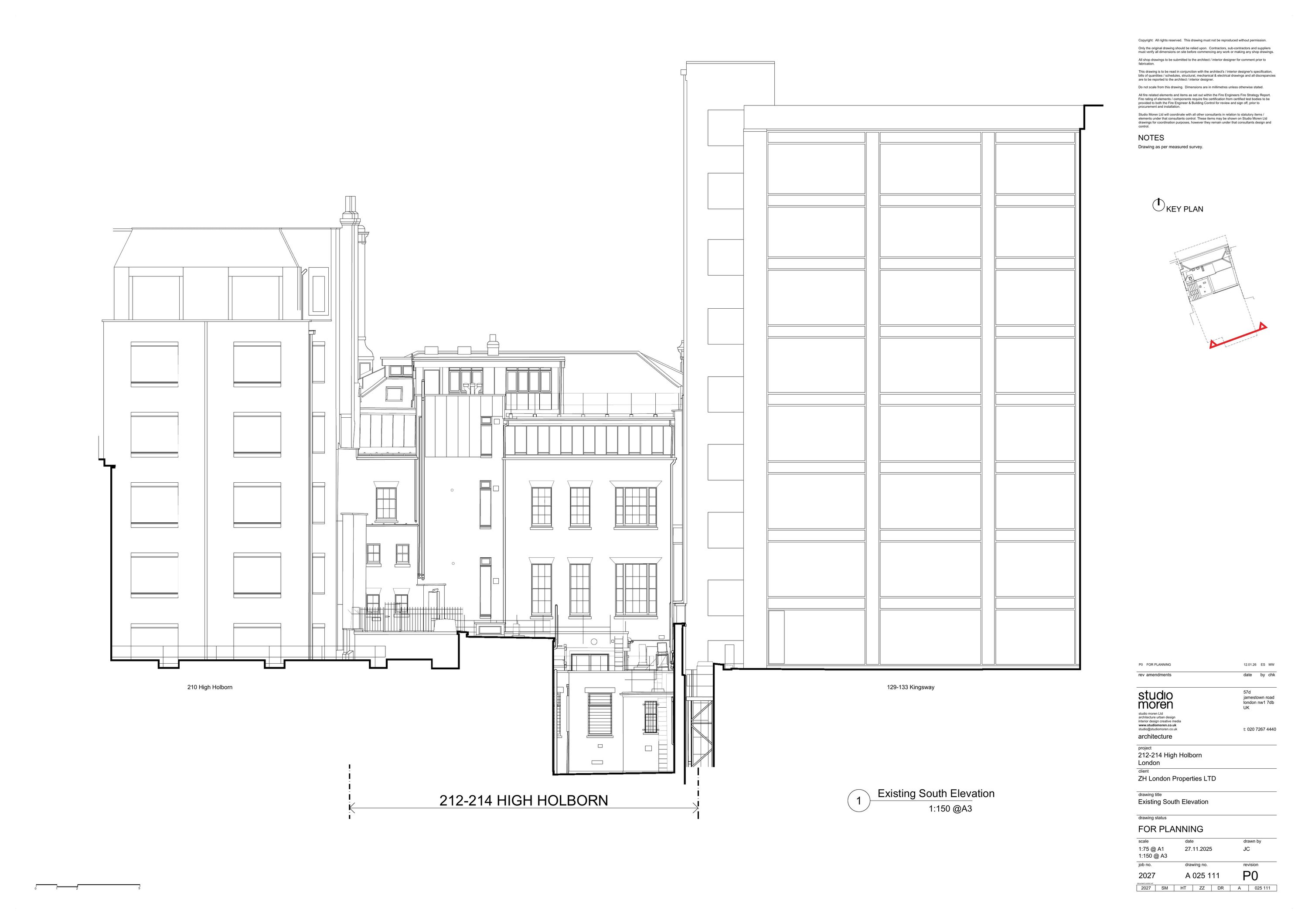
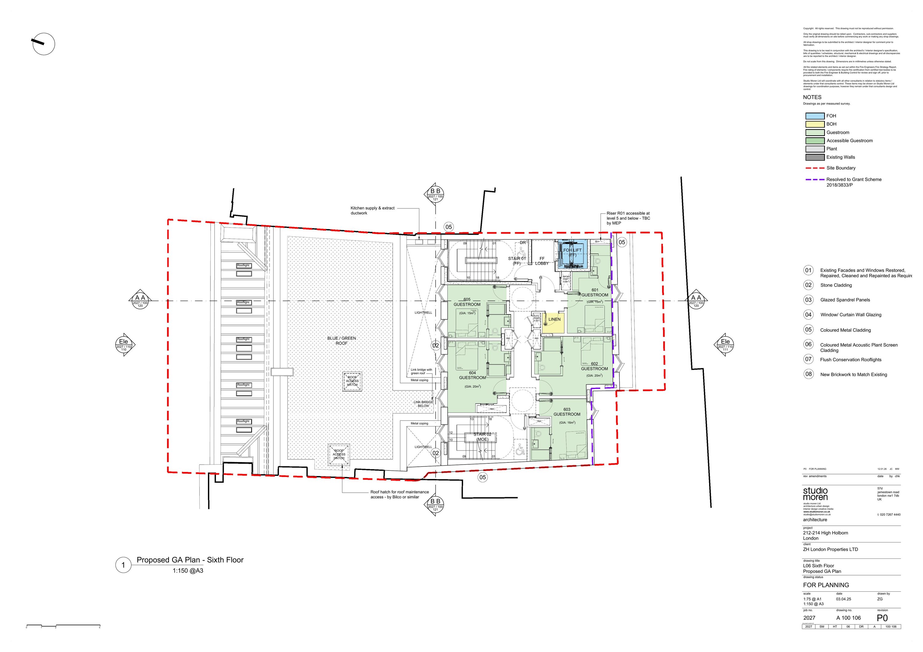
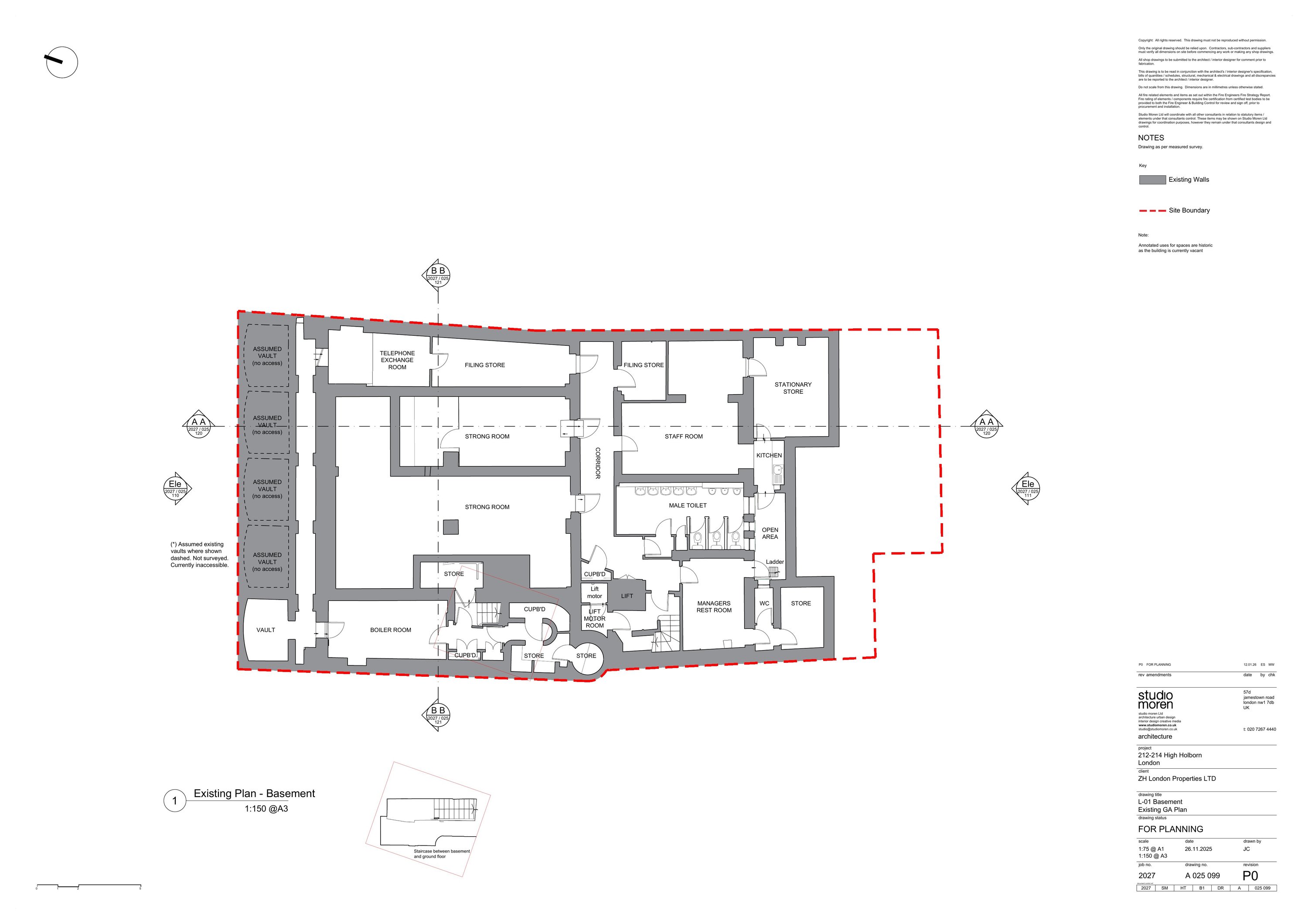
Change of use from office (Class E) to hotel (Class C1); external alterations including partial demolition; removal of the rear extension at basement, ground and mezzanine levels; construction of a nine-storey rear extension above basement level and a lateral extension to the existing basement; alterations to front elevation and restoration of original features.

Documents

Supporting Documents
Archived · Original link
Supporting Documents
Archived · Original link
Design and Access Statement
Archived · Original link
Design and Access Statement
Archived · Original link
Design and Access Statement
Archived · Original link
Design and Access Statement
Archived · Original link
Design and Access Statement
Archived · Original link
Design and Access Statement
Archived · Original link
Design and Access Statement
Archived · Original link
Design and Access Statement
Archived · Original link
Supporting Documents
Archived · Original link
Supporting Documents
Archived · Original link
Supporting Documents
Archived · Original link
Supporting Documents
Archived · Original link
Supporting Documents
Archived · Original link
Supporting Documents
Archived · Original link
Supporting Documents
Archived · Original link
Supporting Documents
Archived · Original link
Supporting Documents
Archived · Original link
Application Form
Archived · Original link
Plans
Archived · Original link

Have your say

Your comment matters. Councils must consider every representation that raises material planning considerations.

Write a comment