← London Borough of Camden

Status

REGISTERED House extension
Received
02 Feb 2026
New homes
0

Full proposal

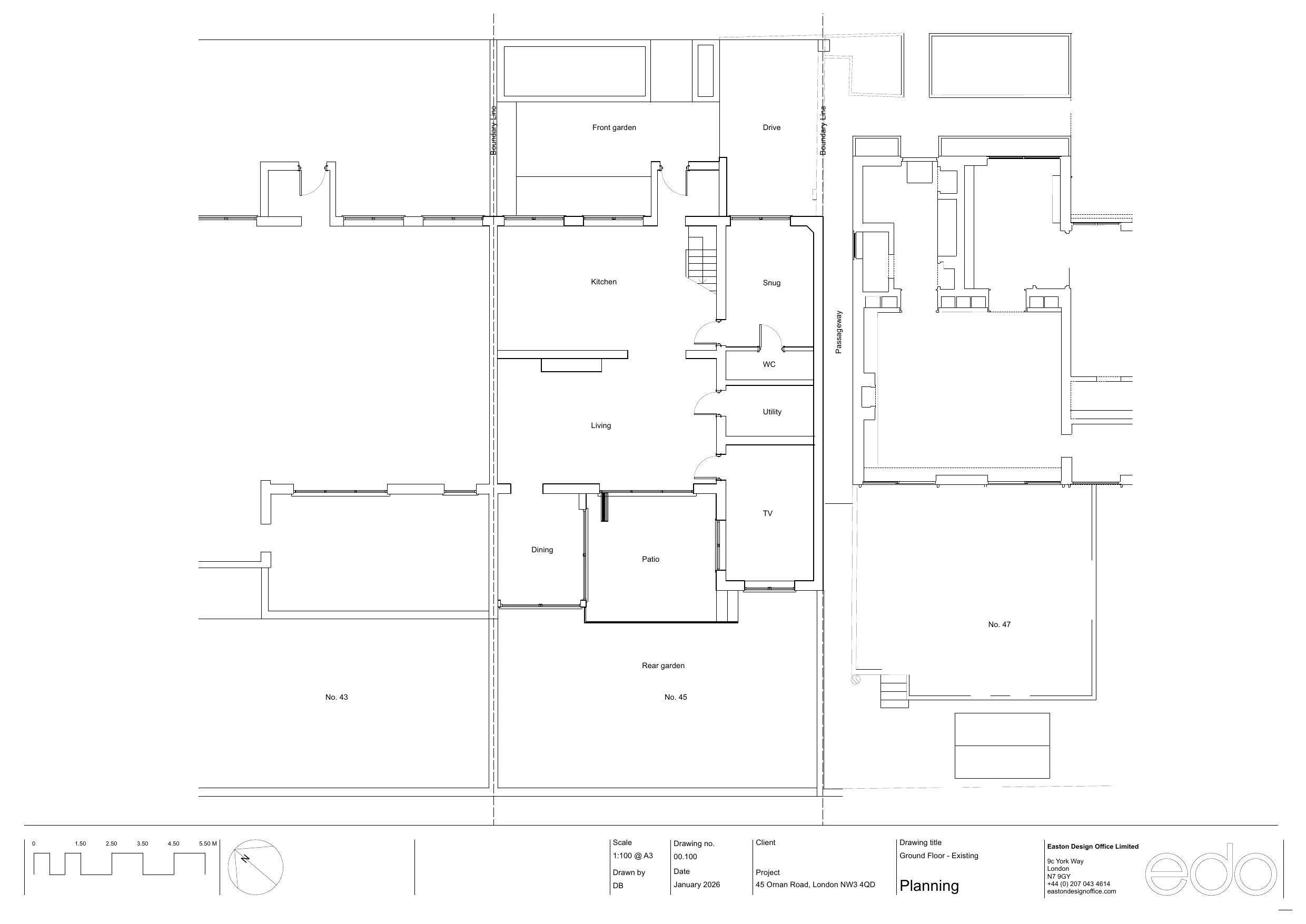
Erection of an additional storey to dwellinghouse.

Documents

Consultation Response
Archived · Original link
Consultation Response
Archived · Original link
Consultation Response
Archived · Original link
M3 Document
Archived · Original link
Application Form
Archived · Original link

Have your say

Your comment matters. Councils must consider every representation that raises material planning considerations.

Write a comment