← London Borough of Camden

Status

REGISTERED Change of use
Received
Last month
New homes
0

Full proposal

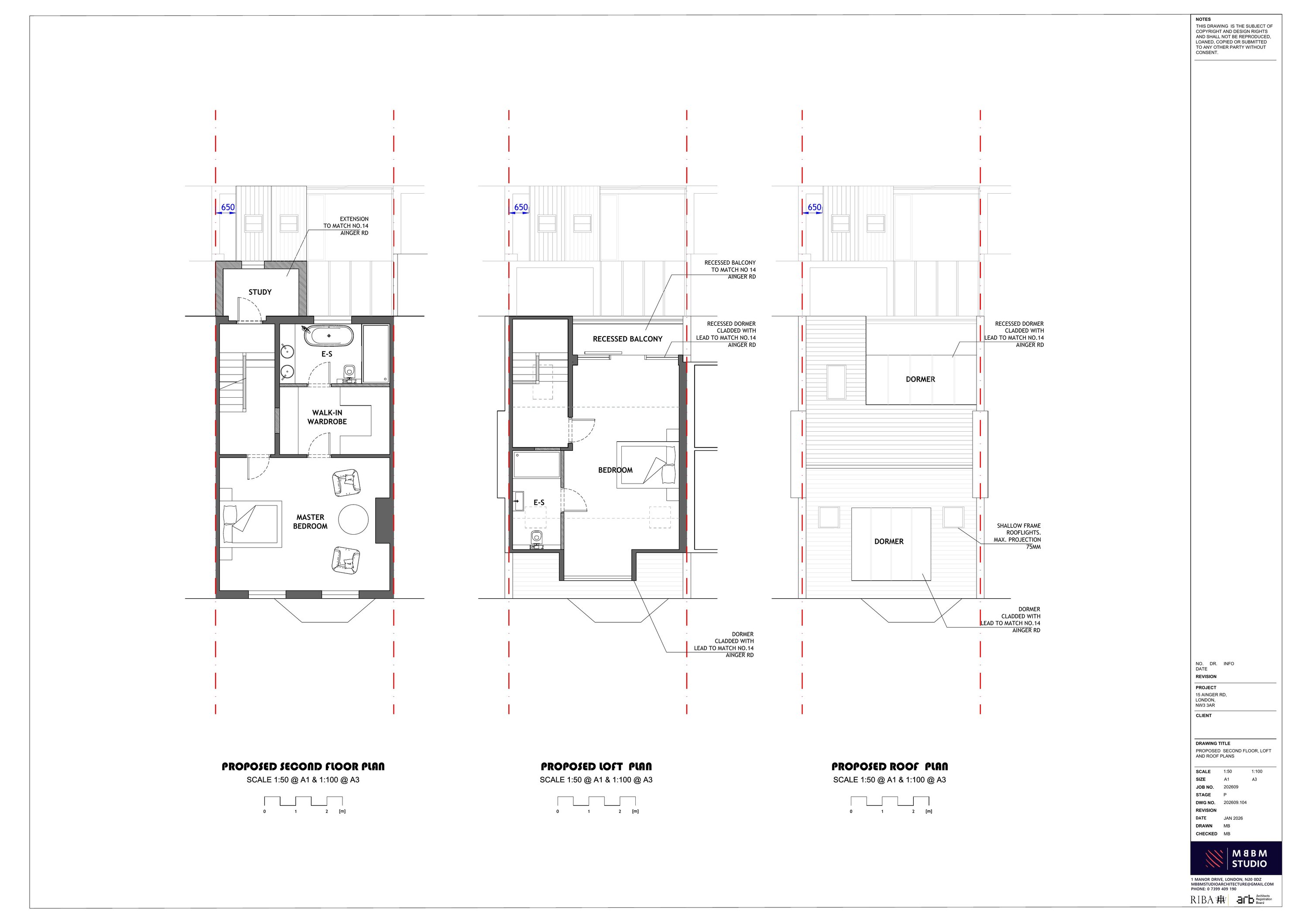
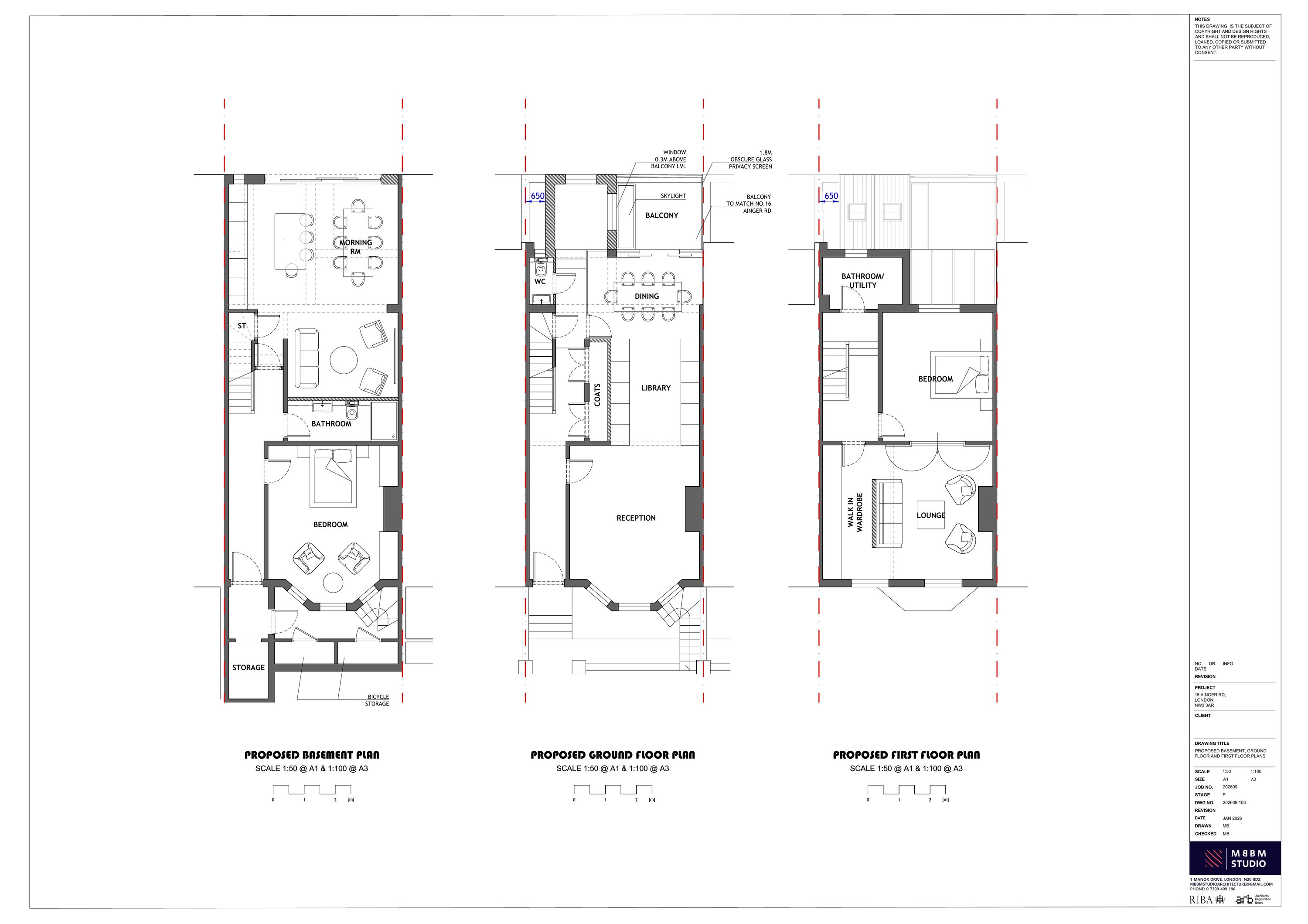
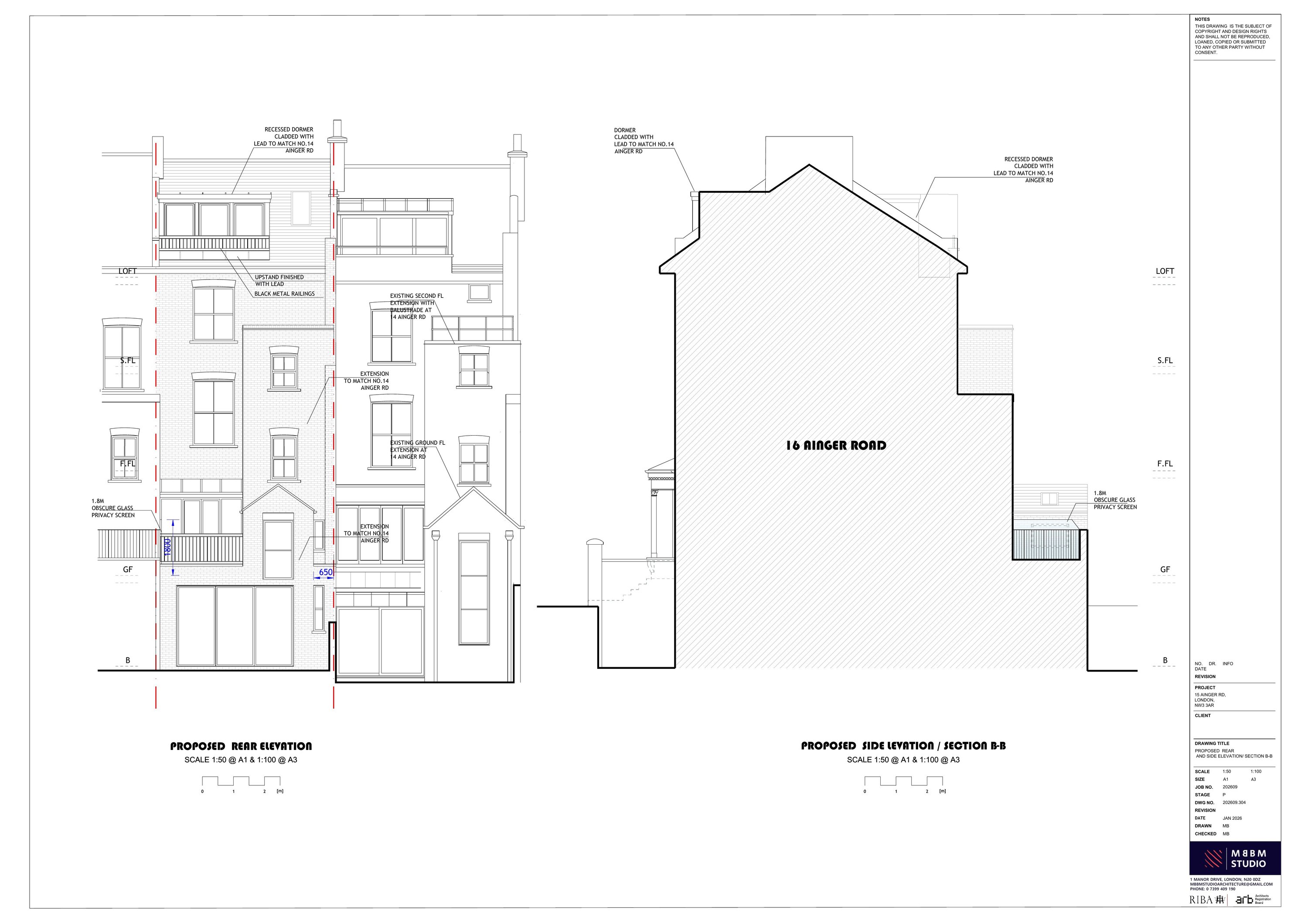
Deconversion of the existing HMO property into a four-bedroom single dwellinghouse; erection of part-basement and part ground-floor rear extensions; enlargement of the ground-floor rear balcony with a privacy screen (to match No. 16); erection of a second-floor rear extension and loft conversion including a front dormer, two front rooflights, and a rear inset dormer with balcony (to match No. 14); demolition and rebuilding of the rear boundary wall with a temporary inward-opening gate; and removal and replacement of the existing tree with a semi-mature specimen of the same species.

Have your say

Your comment matters. Councils must consider every representation that raises material planning considerations.

Write a comment