← London Borough of Camden

Status

REGISTERED House extension
Received
09 Feb 2026
New homes
0

Full proposal

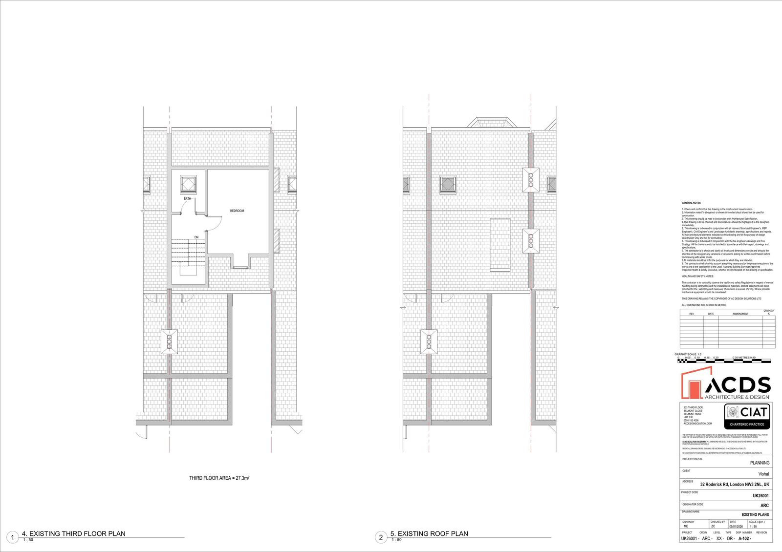
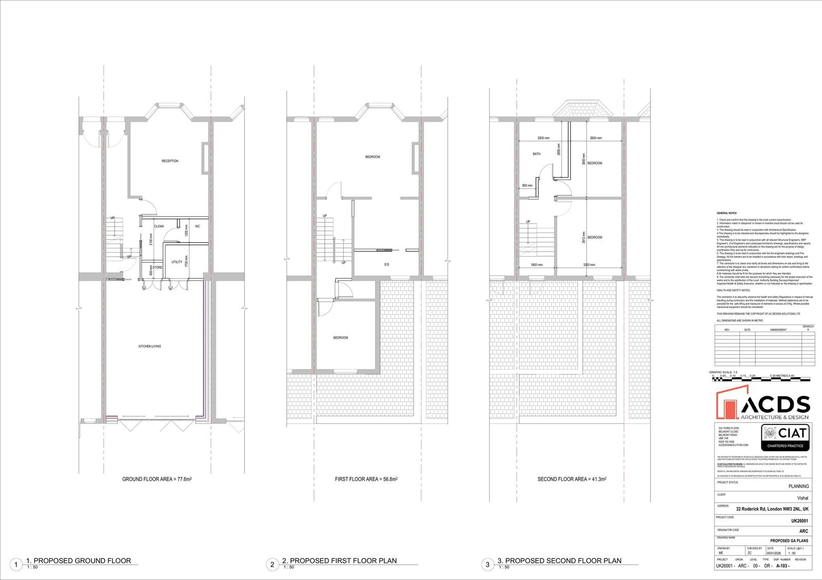
Erection of an infil side extension and replacement of existing sash windows with timber sash windows.

Have your say

Your comment matters. Councils must consider every representation that raises material planning considerations.

Write a comment