← London Borough of Camden

Status

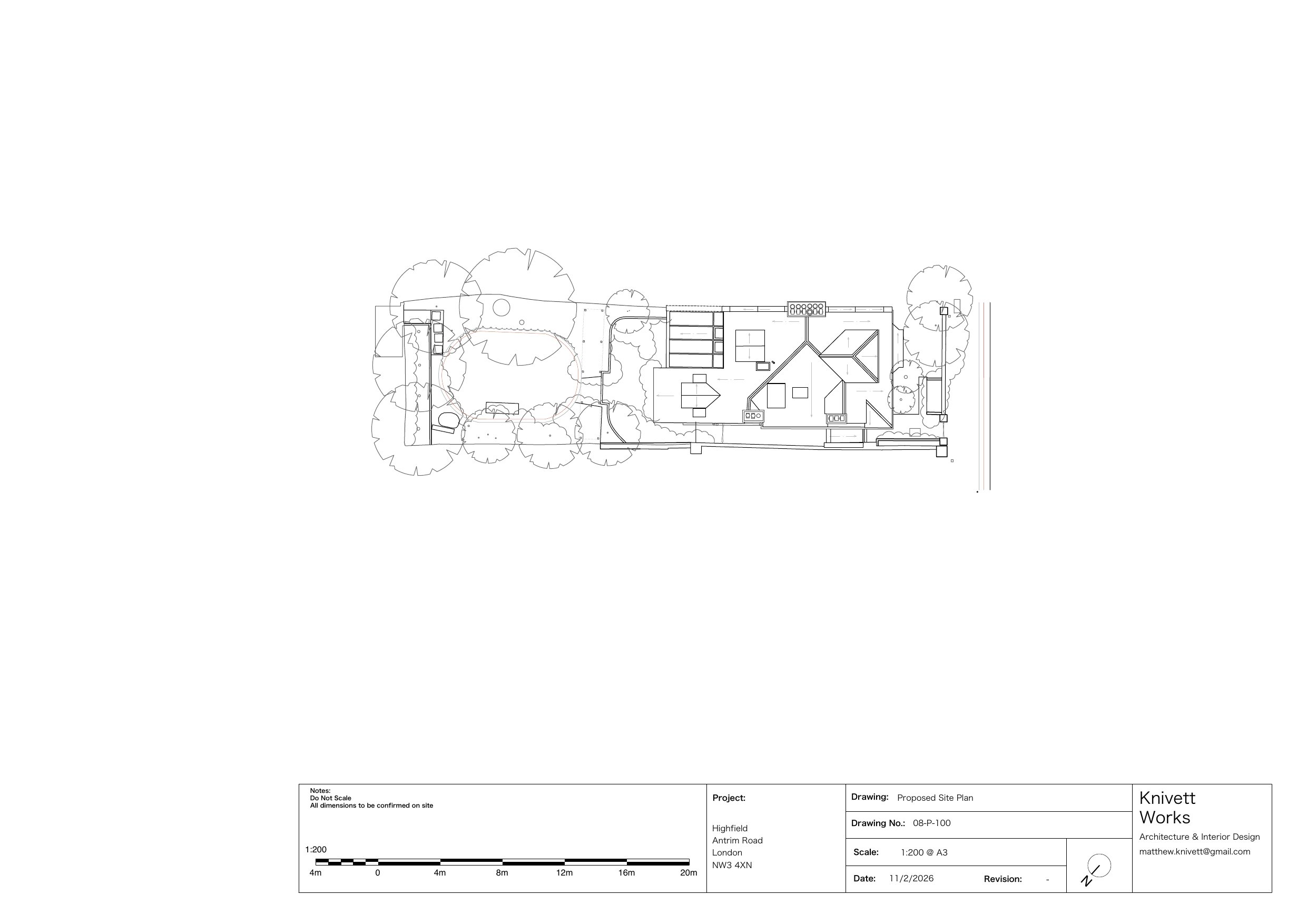
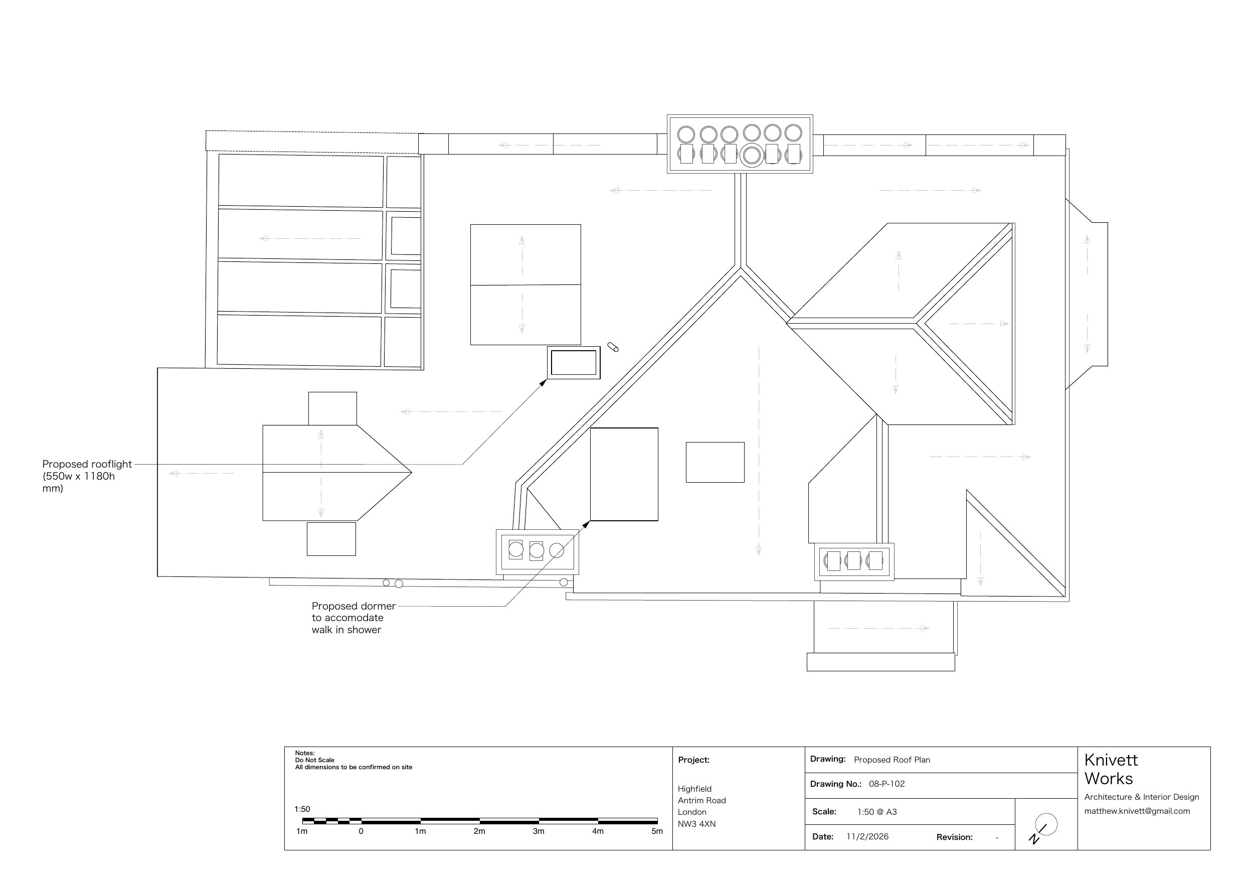
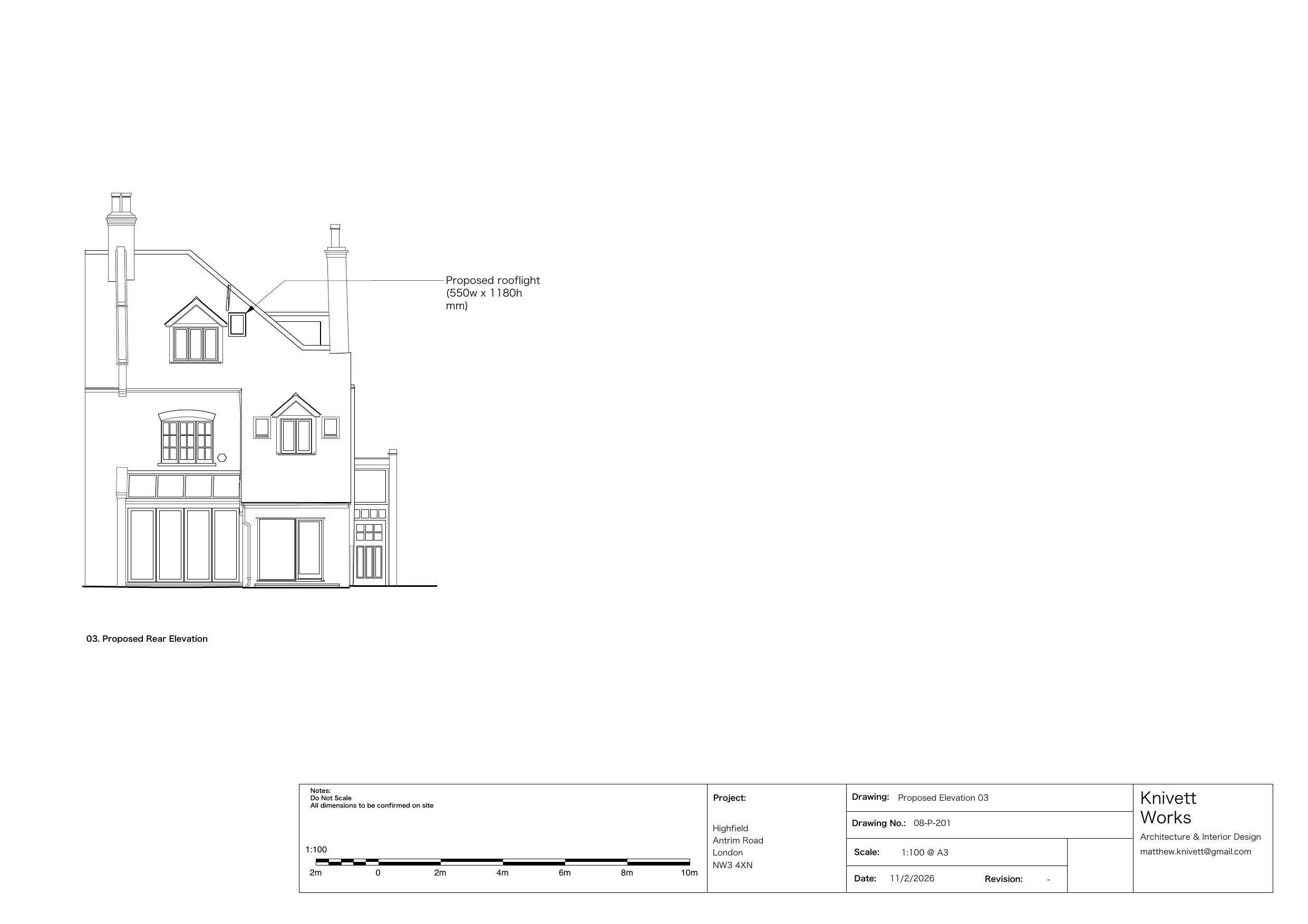
REGISTERED House extension
Received
Last month
New homes
0

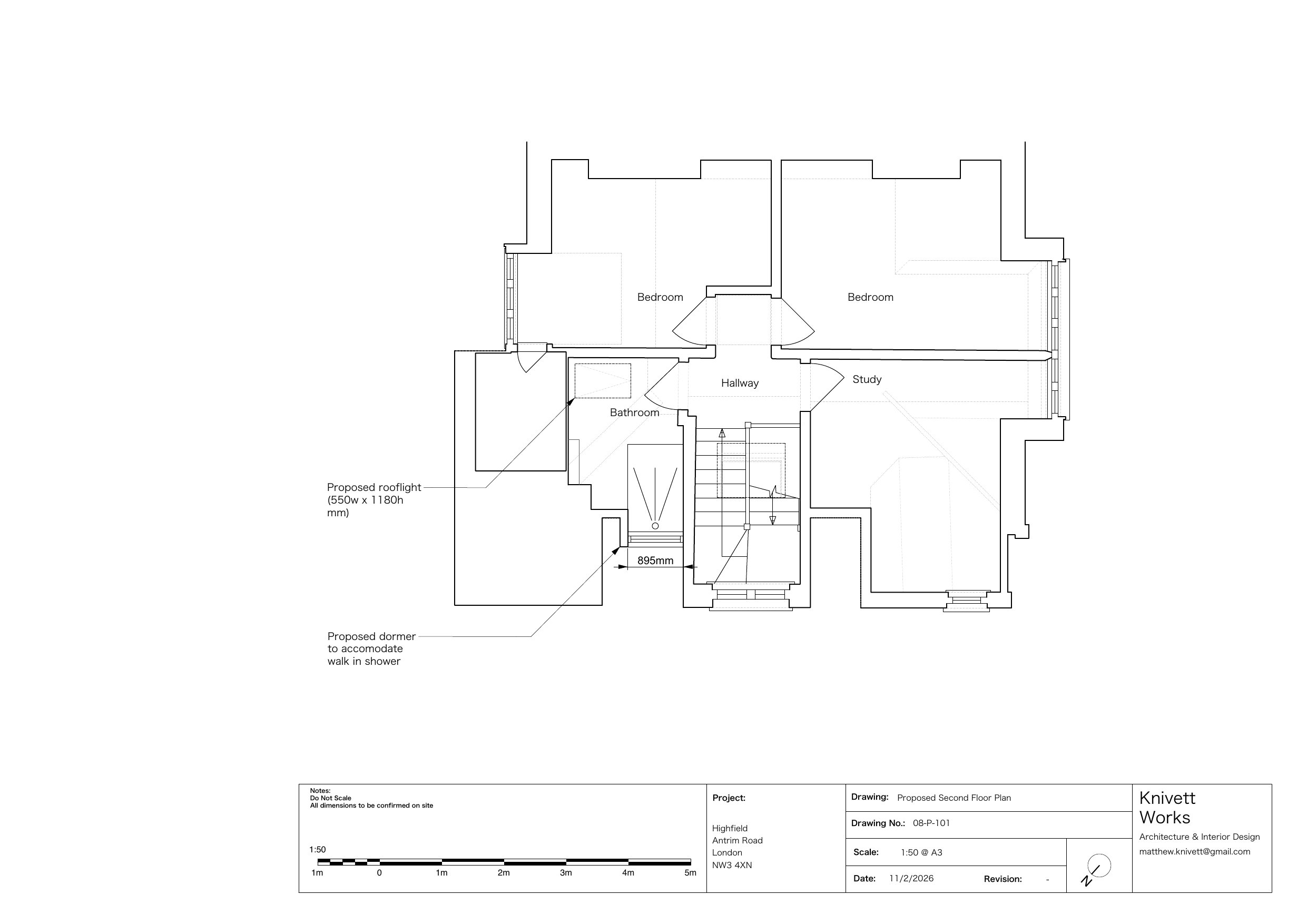
Full proposal

Erection of dormer window to north-west (side) roof slope and rooflight to north-east (rear) roof slope

Have your say

Your comment matters. Councils must consider every representation that raises material planning considerations.

Write a comment