← London Borough of Camden

Status

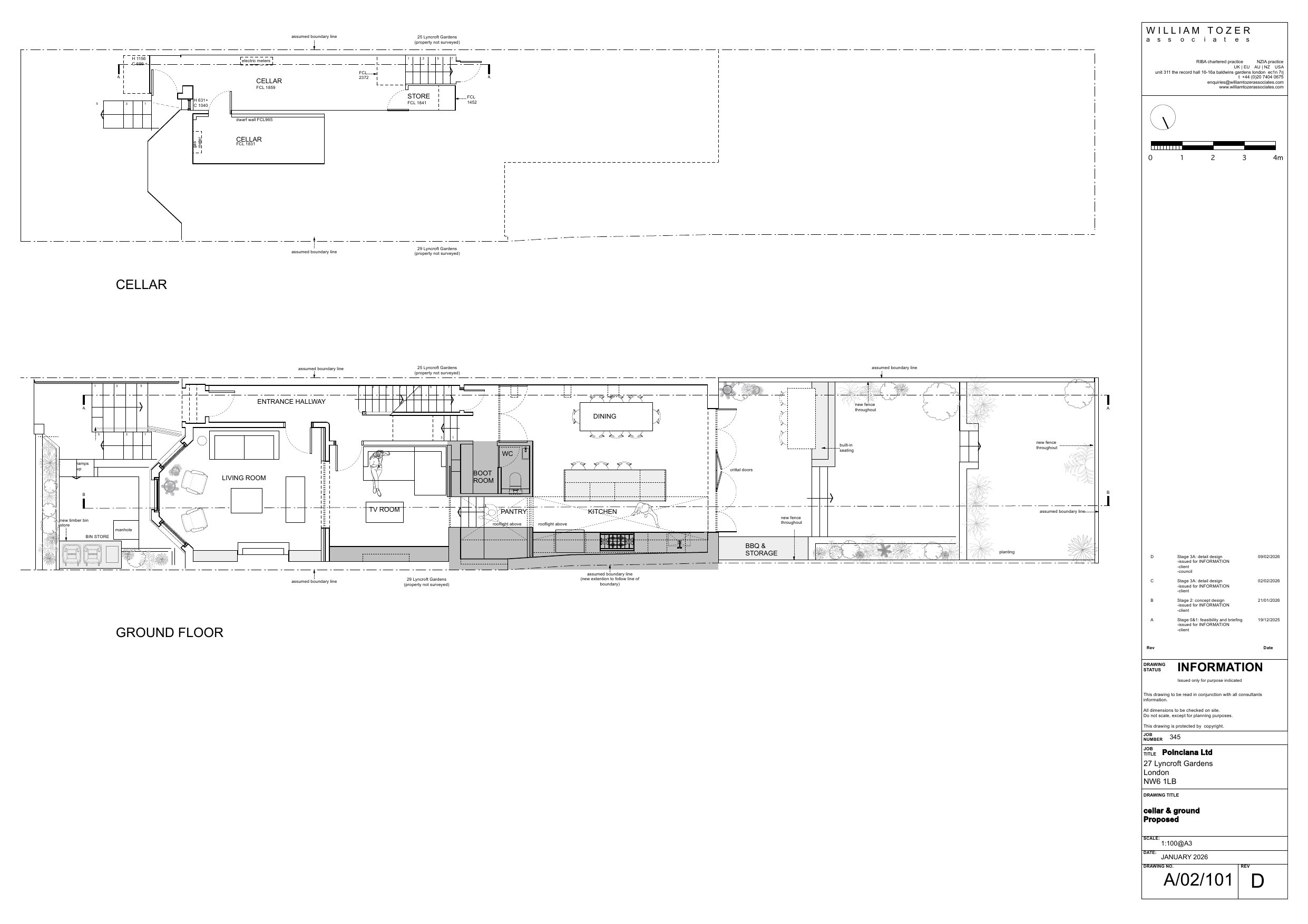
REGISTERED House extension
Received
Last month
New homes
0

Full proposal

Erection of a single storey side infill extension to the rear of the dwelling.

Have your say

Your comment matters. Councils must consider every representation that raises material planning considerations.

Write a comment