← London Borough of Camden

Status

REGISTERED Renewable energy
Received
Last month
New homes
0

Full proposal

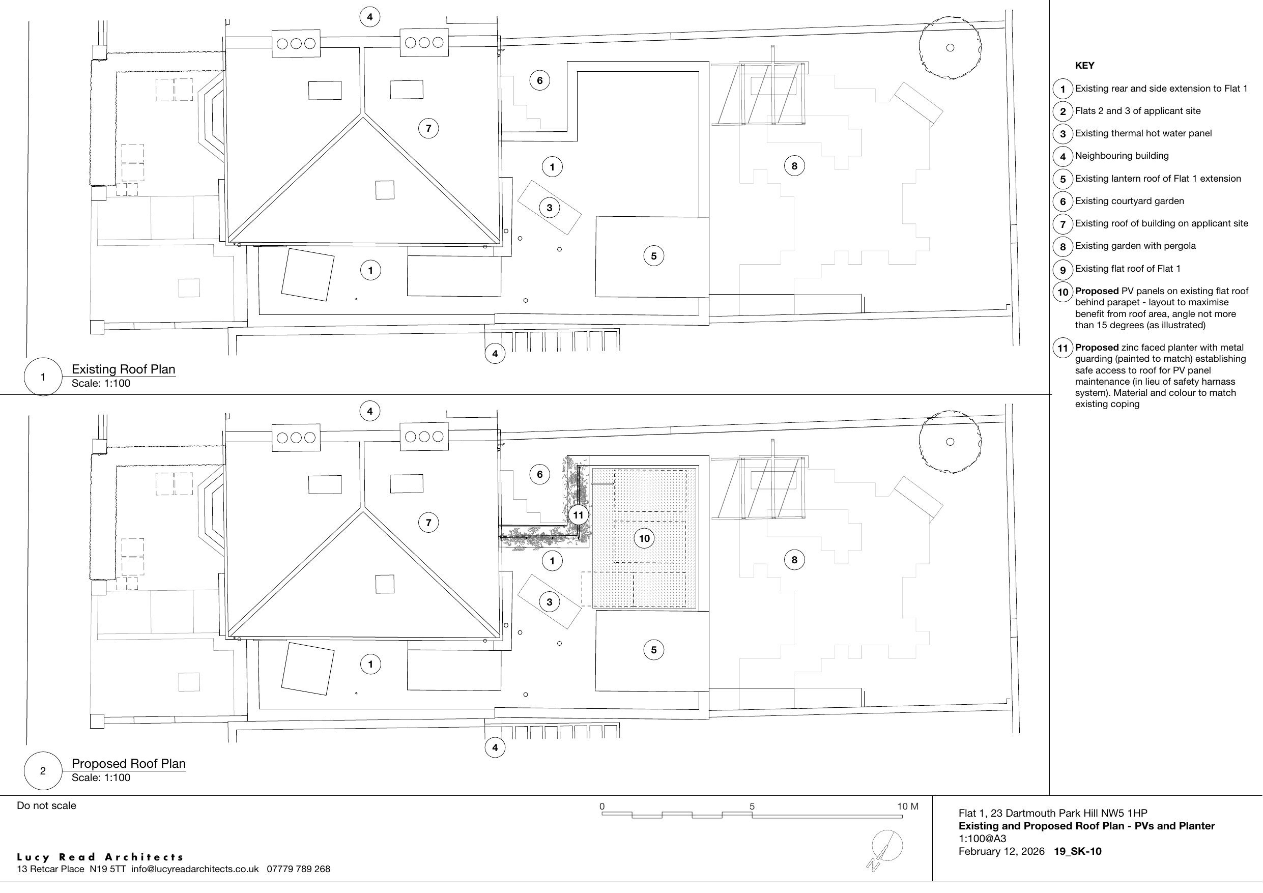
Installation of PV panels on flat roof of single storey rear extension with planter for safe access for maintenance

Have your say

Your comment matters. Councils must consider every representation that raises material planning considerations.

Write a comment