← London Borough of Camden

Status

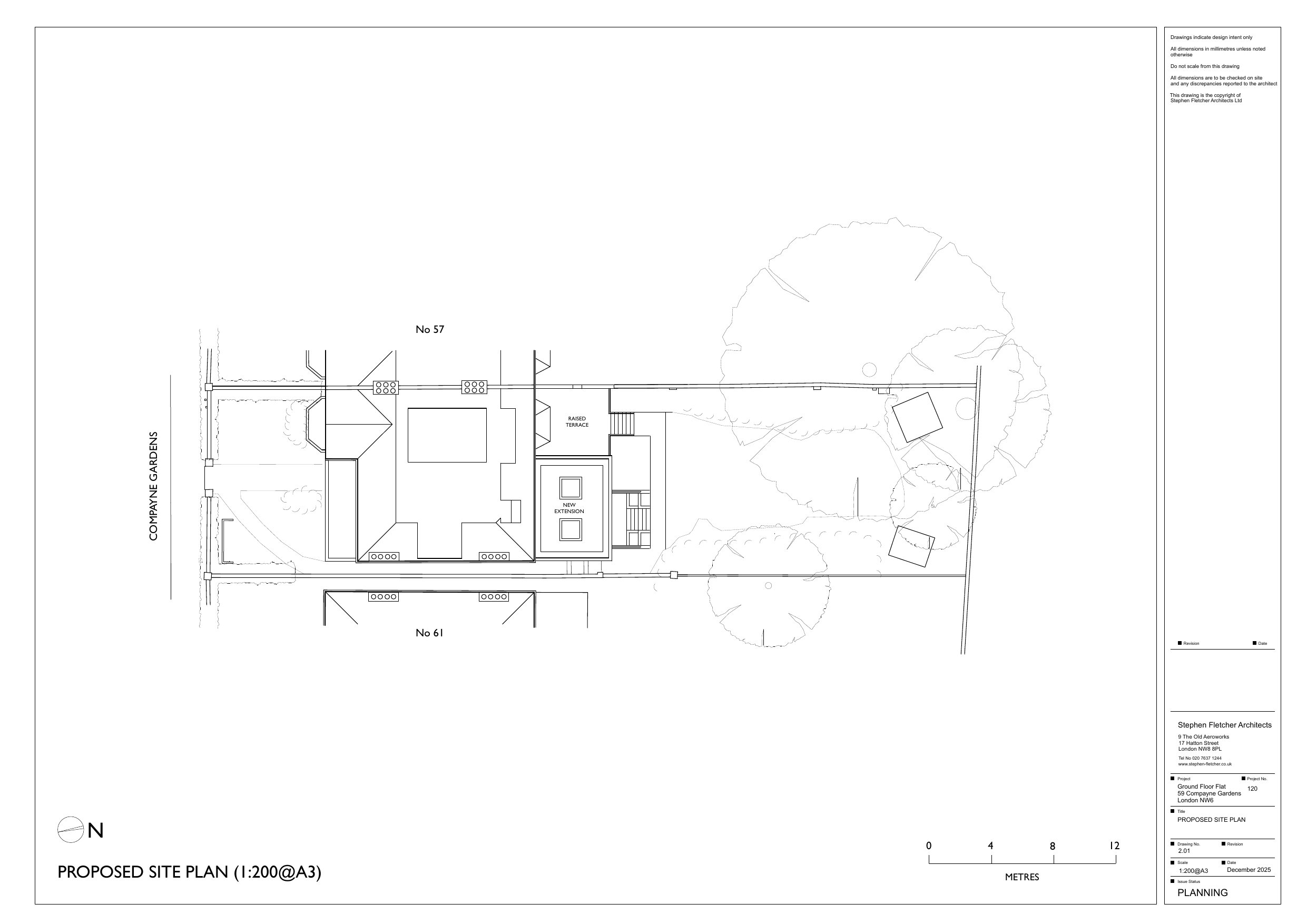
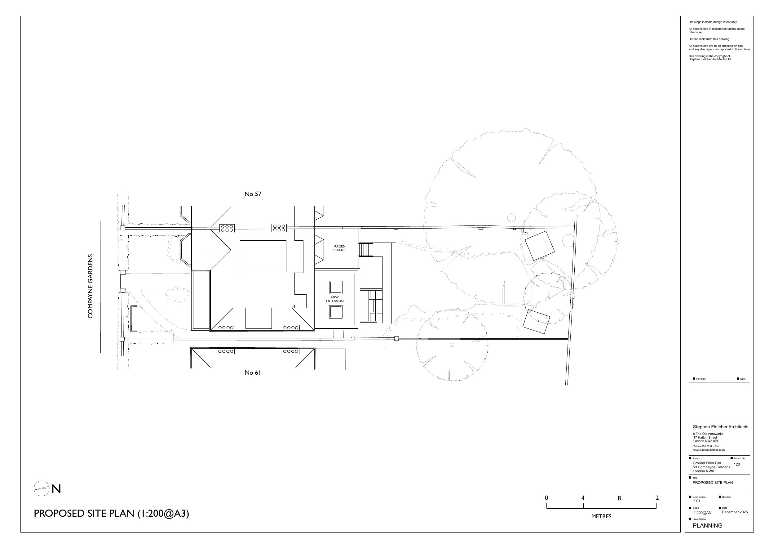
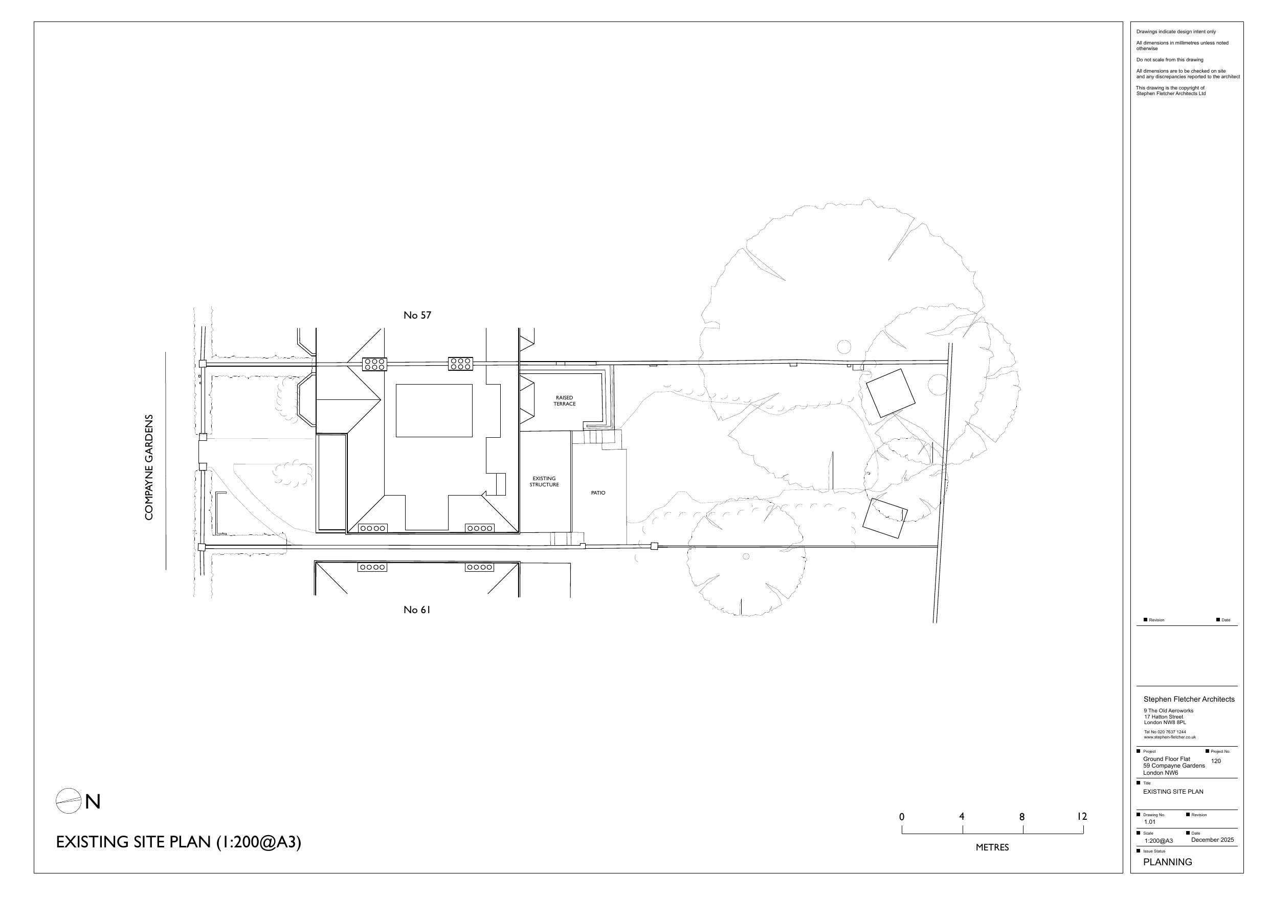
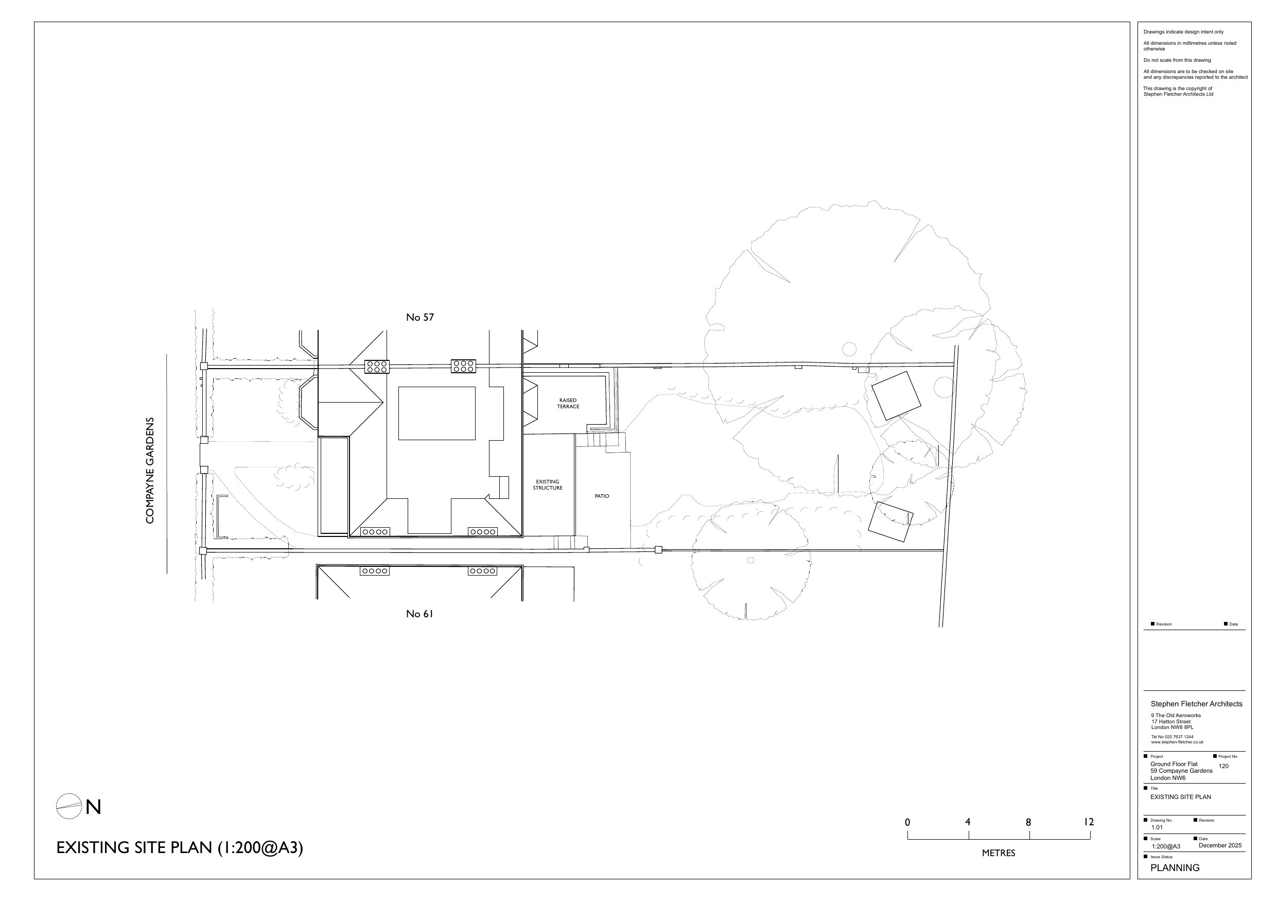
REGISTERED House extension
Received
Last month
New homes
0

Full proposal

Demolition of existing ground floor rear extension, basement extension and erection of new two level rear extension (ground floor and lower ground floor level). Amended terrace/steps up to garden.

Have your say

Your comment matters. Councils must consider every representation that raises material planning considerations.

Write a comment