← London Borough of Camden

Status

REGISTERED House extension
Received
Last month
New homes
0

Full proposal

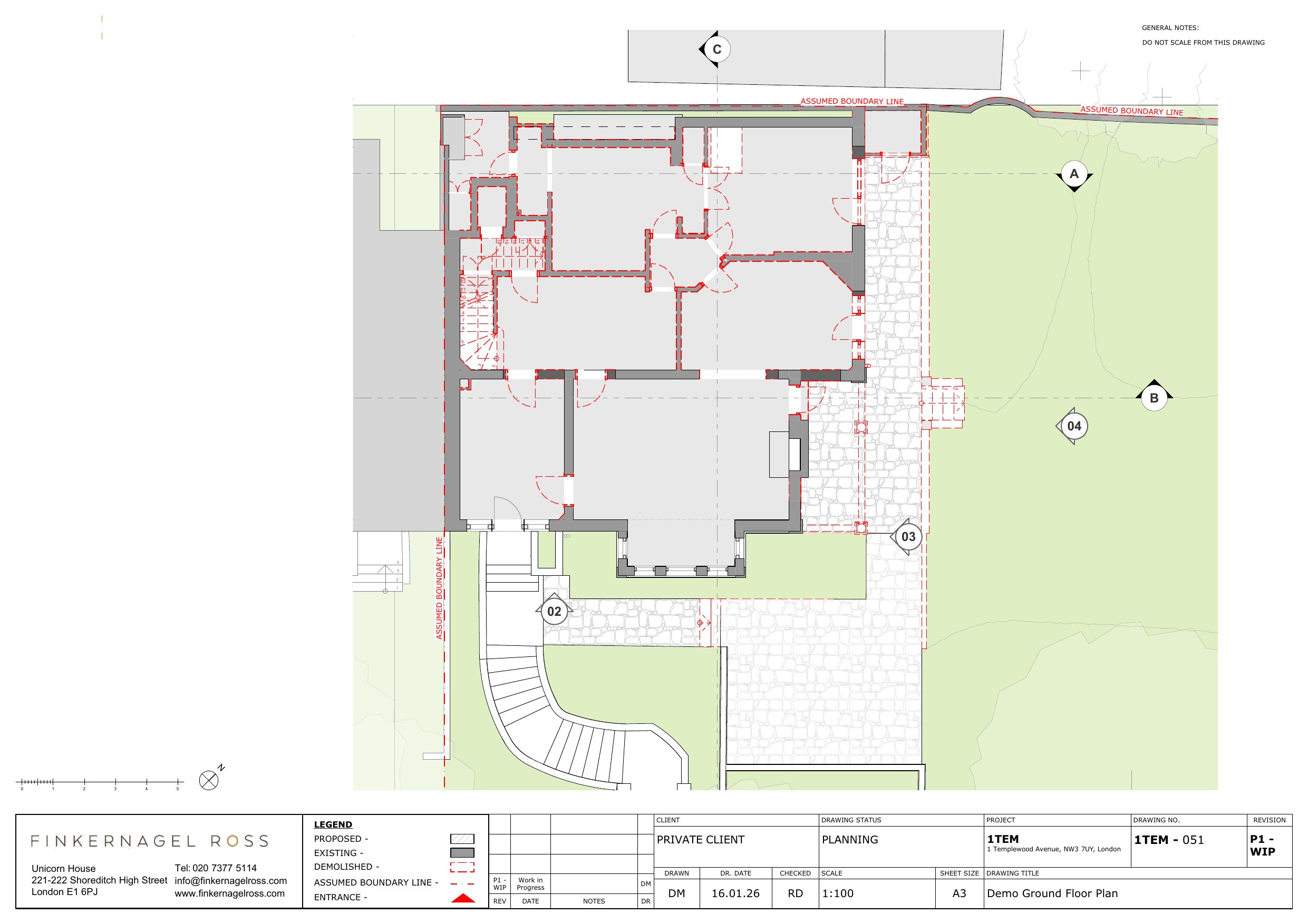
Erection of single storey side extension, installation of rooflights, removal of existing structures courtyard structures and straightening of rear ground floor wall.

Documents

Application Form
Archived · Original link
Supporting Documents
Archived · Original link
Supporting Documents
Archived · Original link
Design and Access Statement
Archived · Original link
Supporting Documents
Archived · Original link
Supporting Documents
Archived · Original link

Have your say

Your comment matters. Councils must consider every representation that raises material planning considerations.

Write a comment