← London Borough of Camden

Status

REGISTERED House extension
Received
Last month
New homes
0

Full proposal

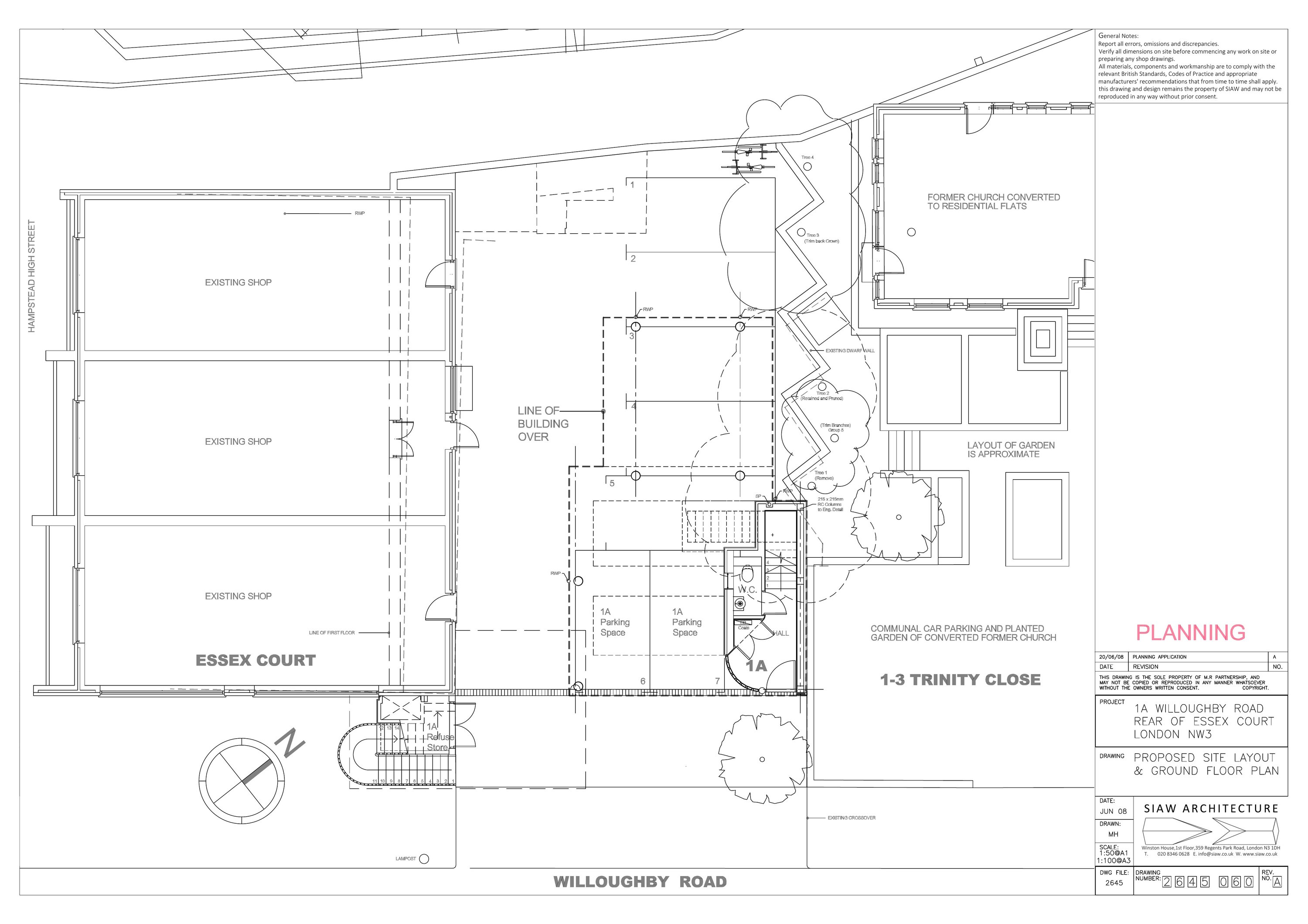
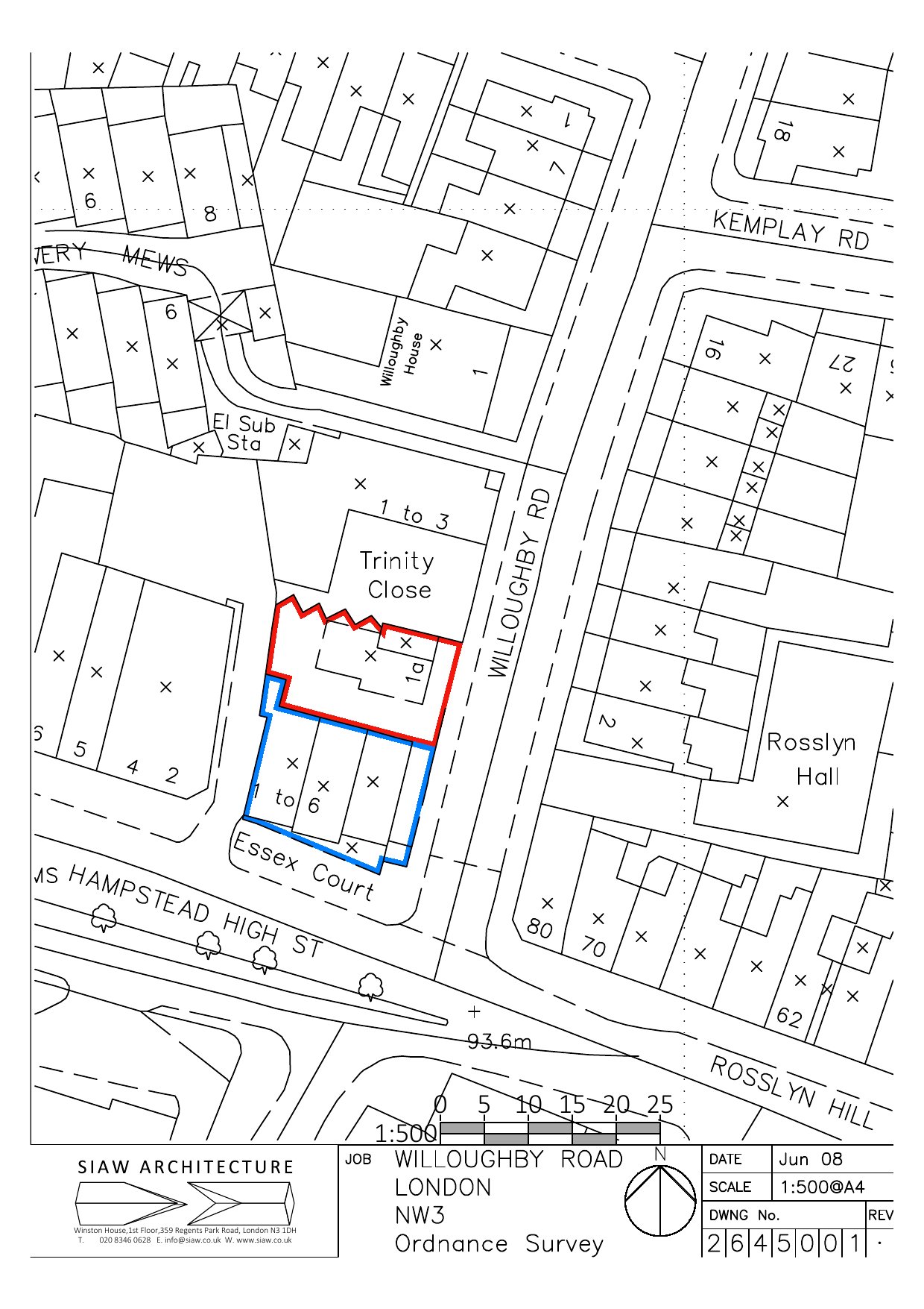
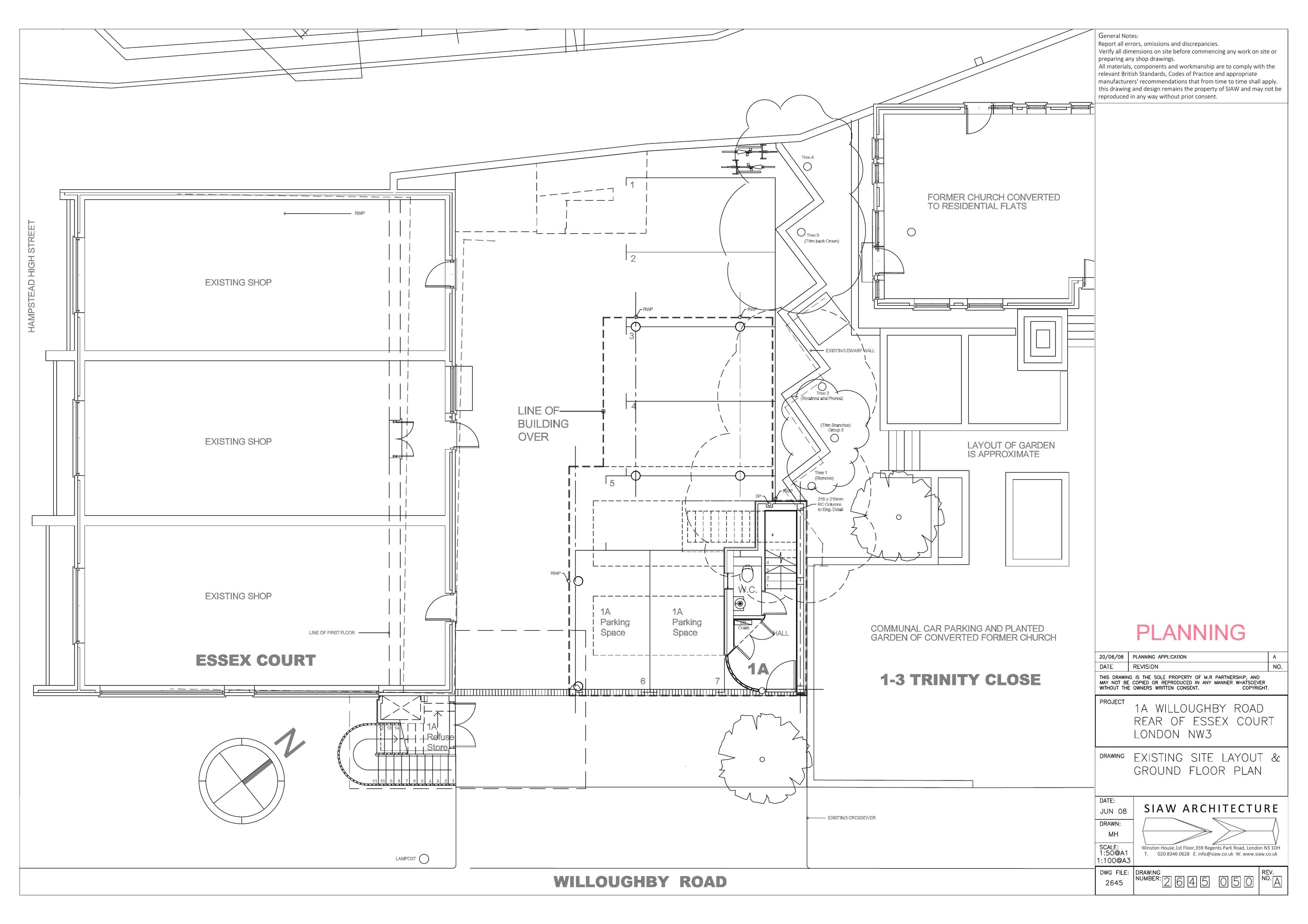
Demolition of existing roof and construction of new mansard roof extension

Have your say

Your comment matters. Councils must consider every representation that raises material planning considerations.

Write a comment