← London Borough of Camden

Status

REGISTERED House extension
Received
Last month
New homes
0

Full proposal

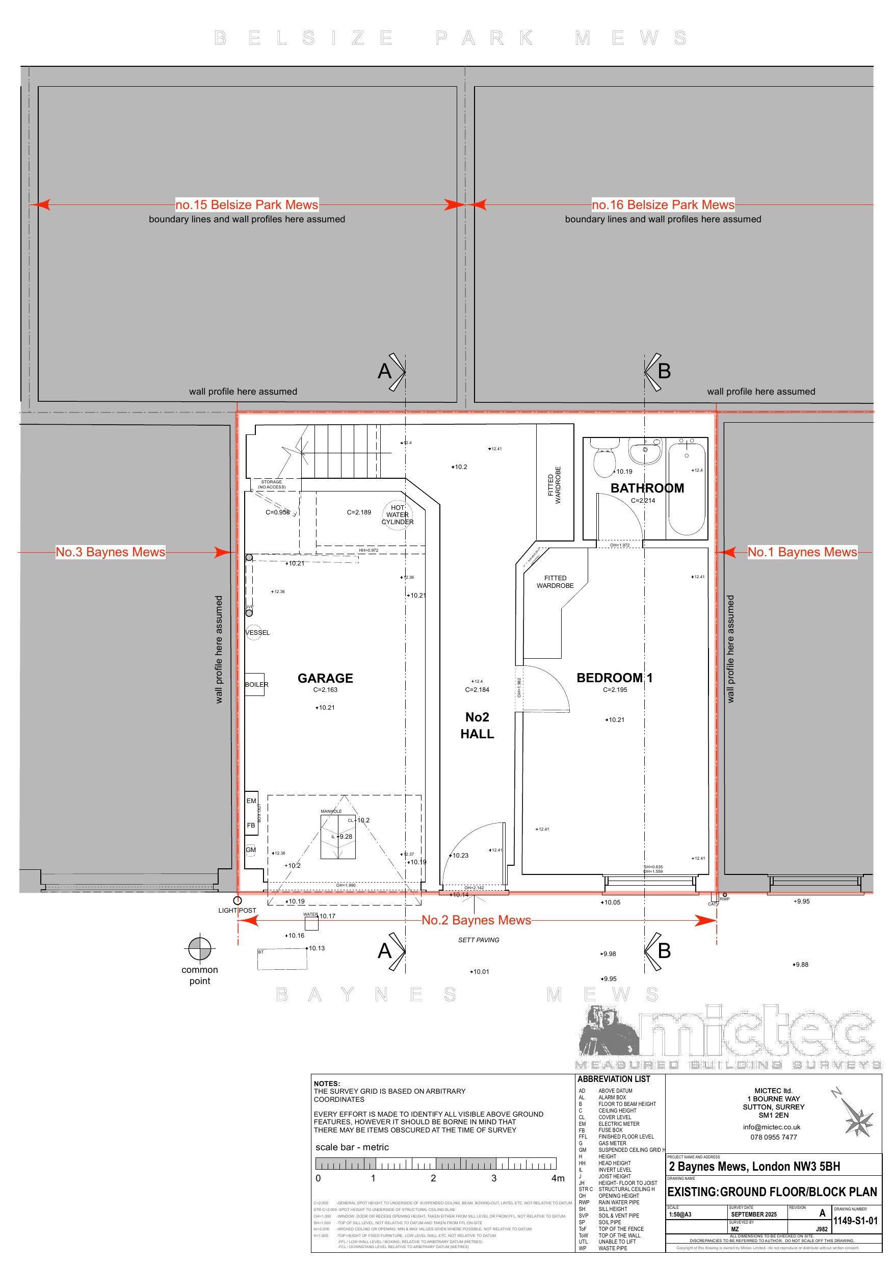
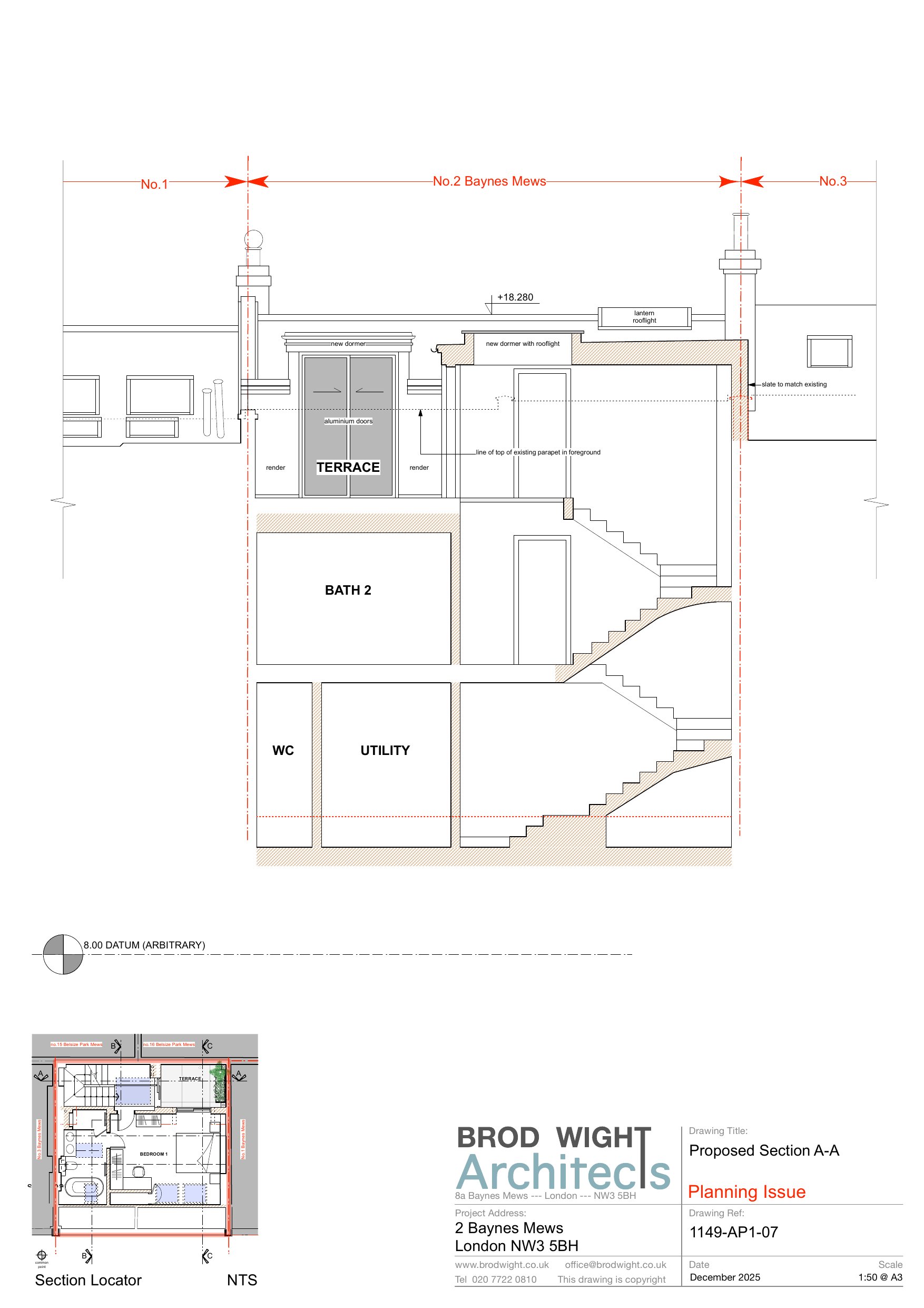
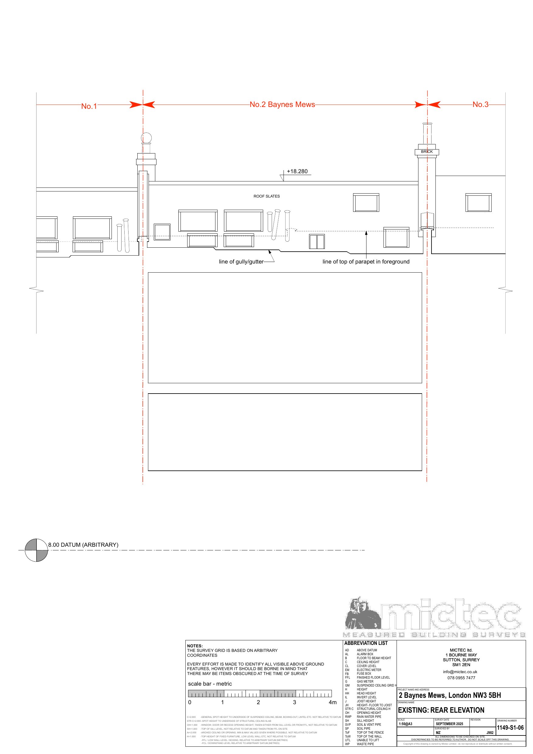
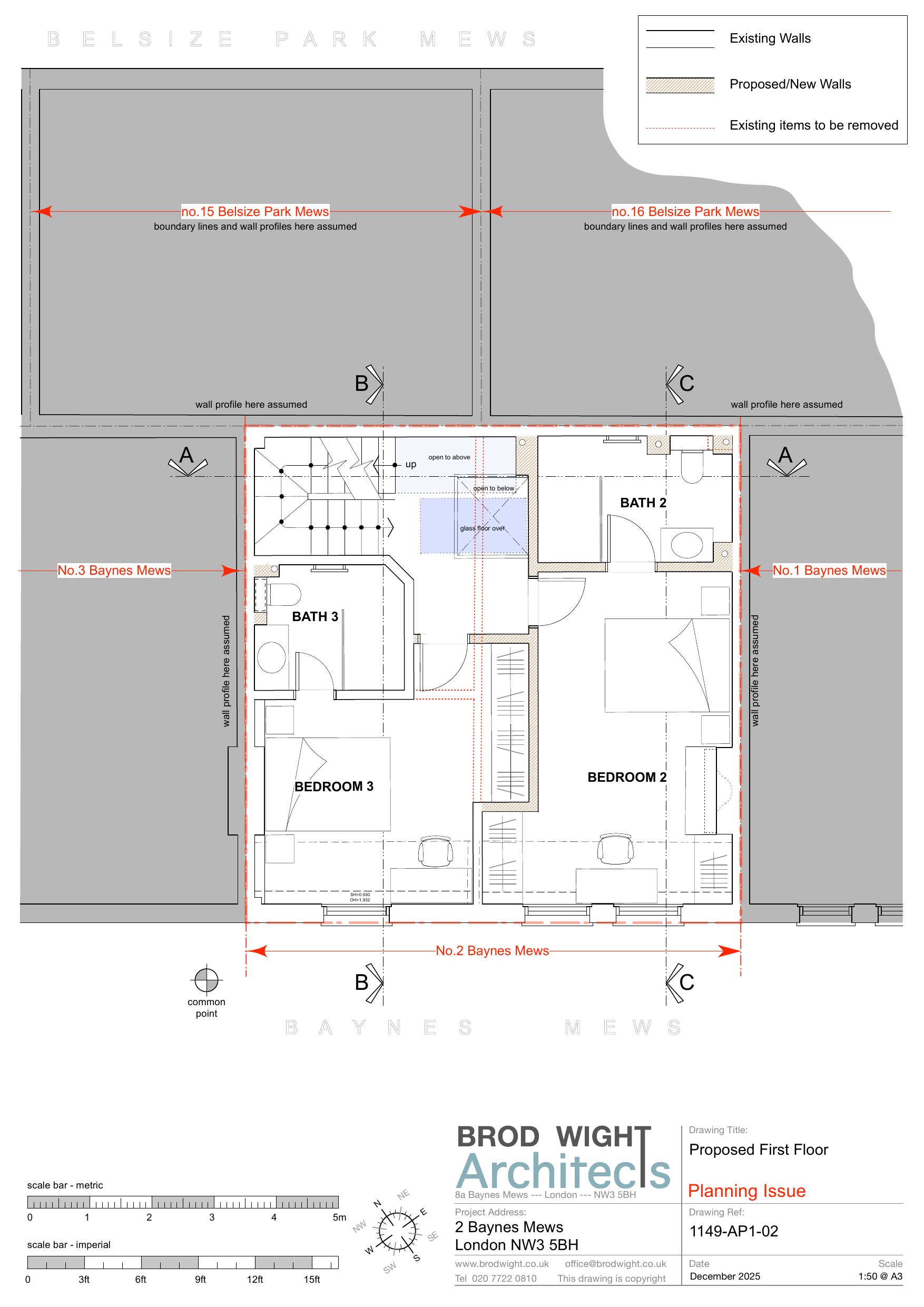
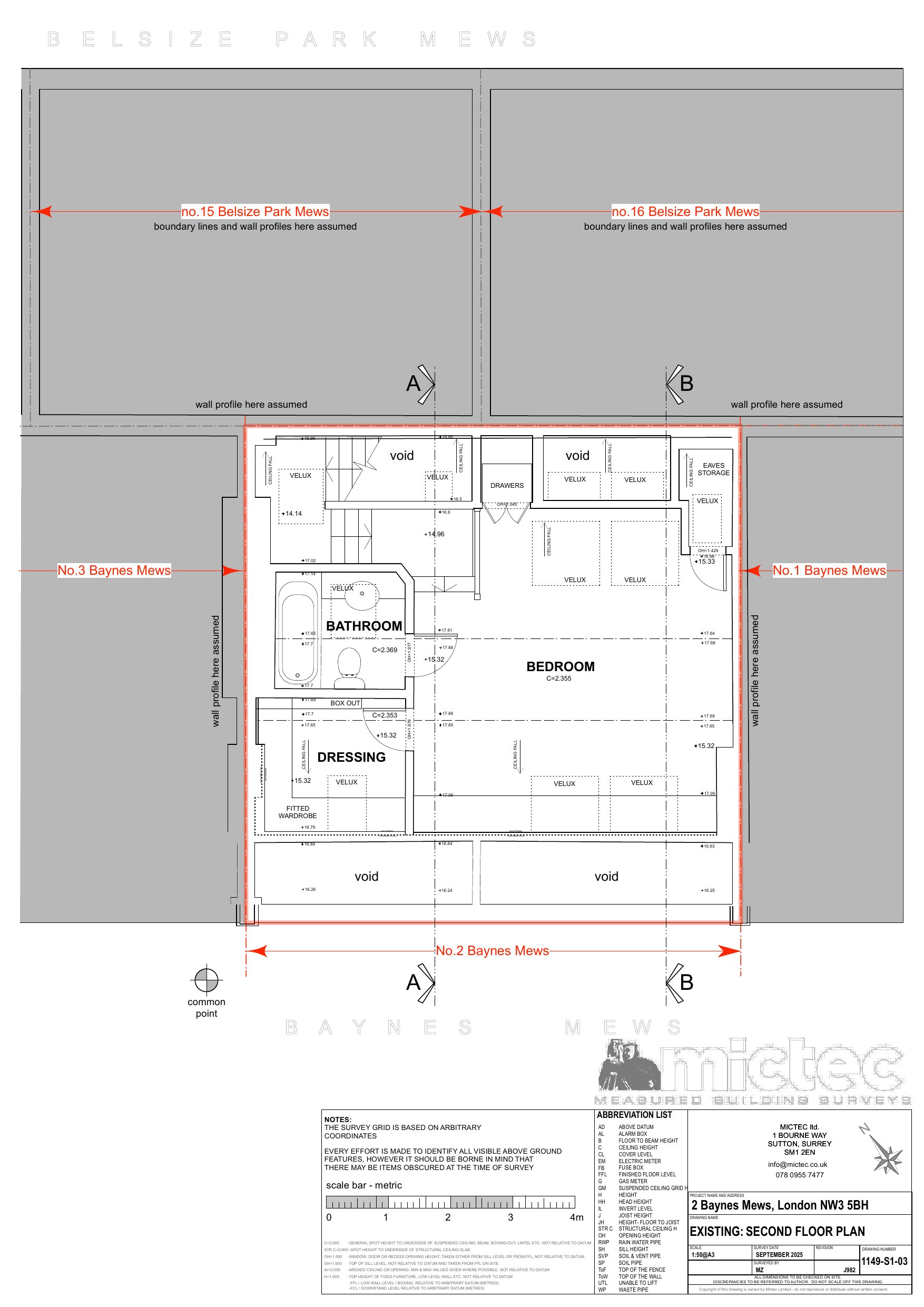
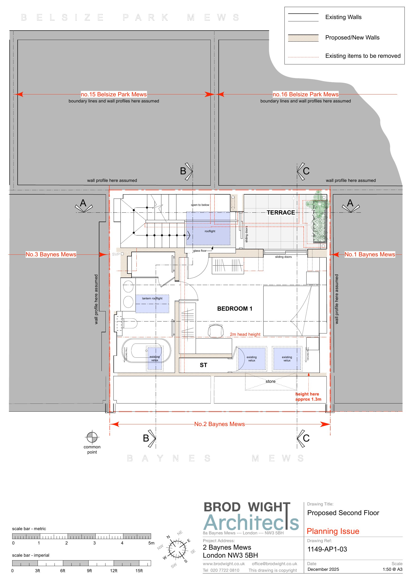
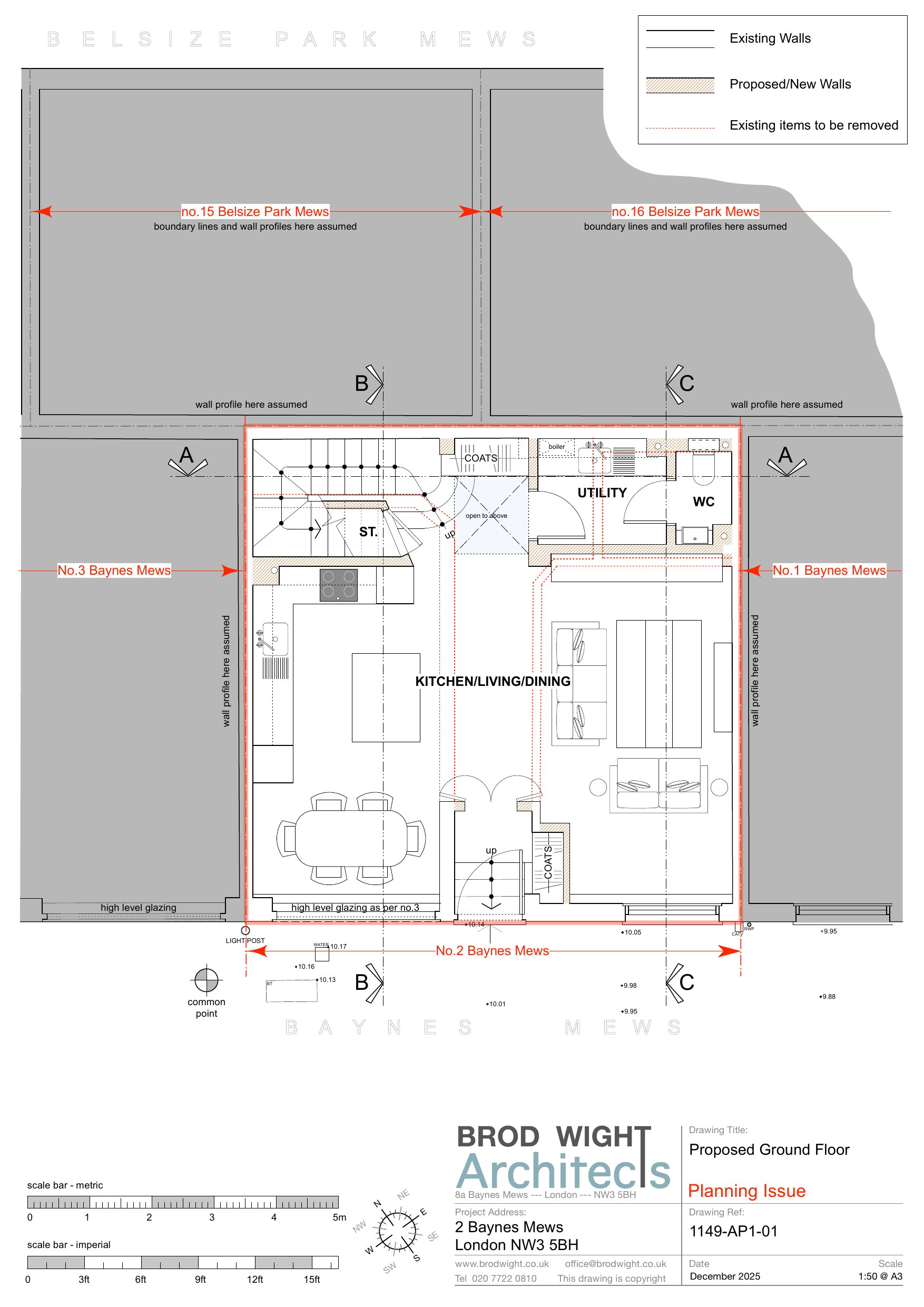
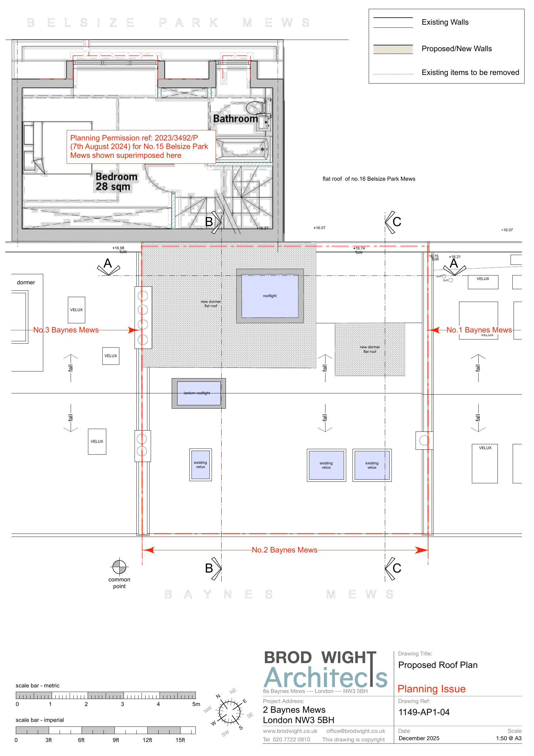
Erection of rear dormers, creation of sunken roof terrace, installation of rooflights and replacement of garage door.

Have your say

Your comment matters. Councils must consider every representation that raises material planning considerations.

Write a comment