← London Borough of Camden

Status

REGISTERED House extension
Received
Last month
New homes
0

Full proposal

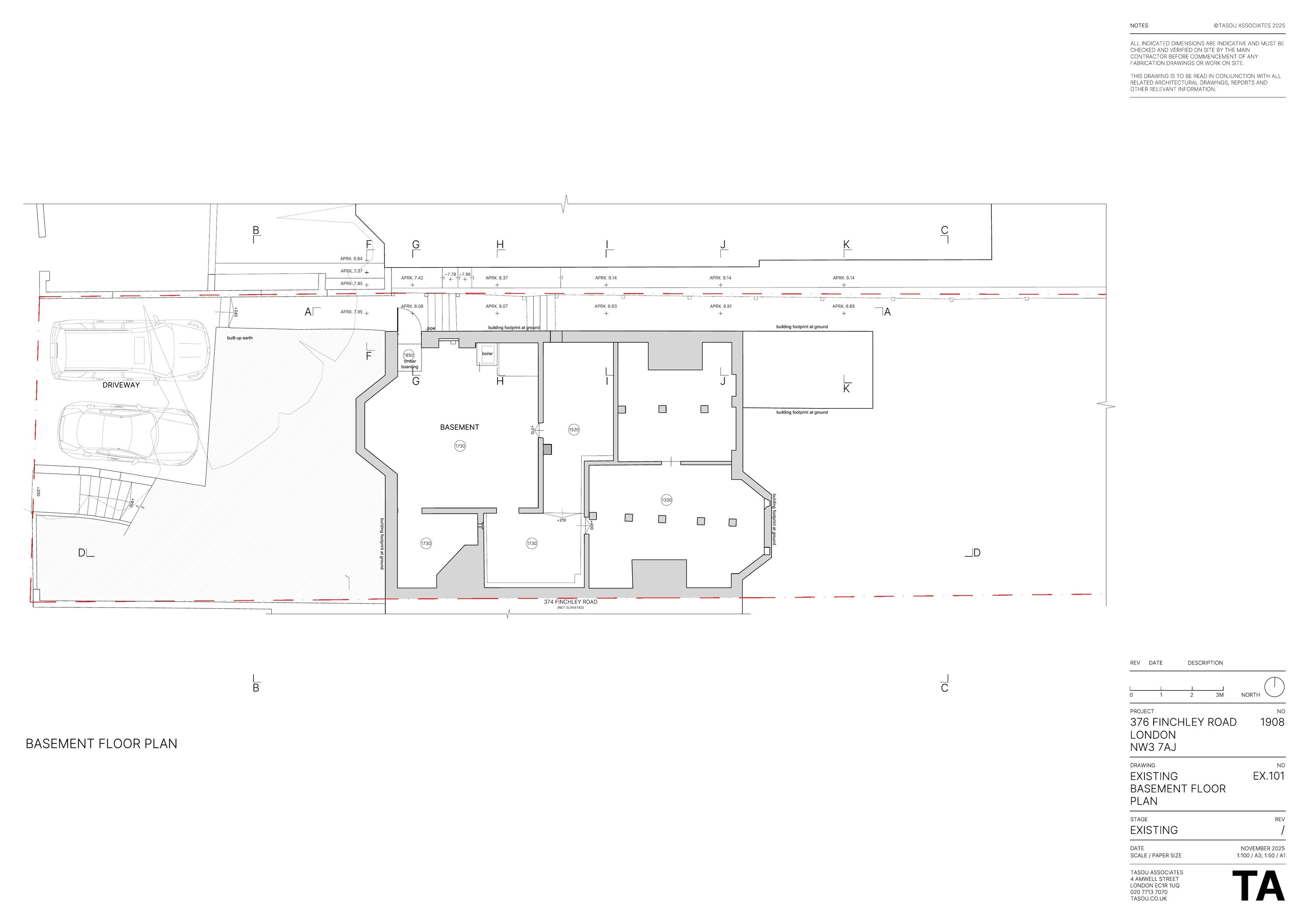
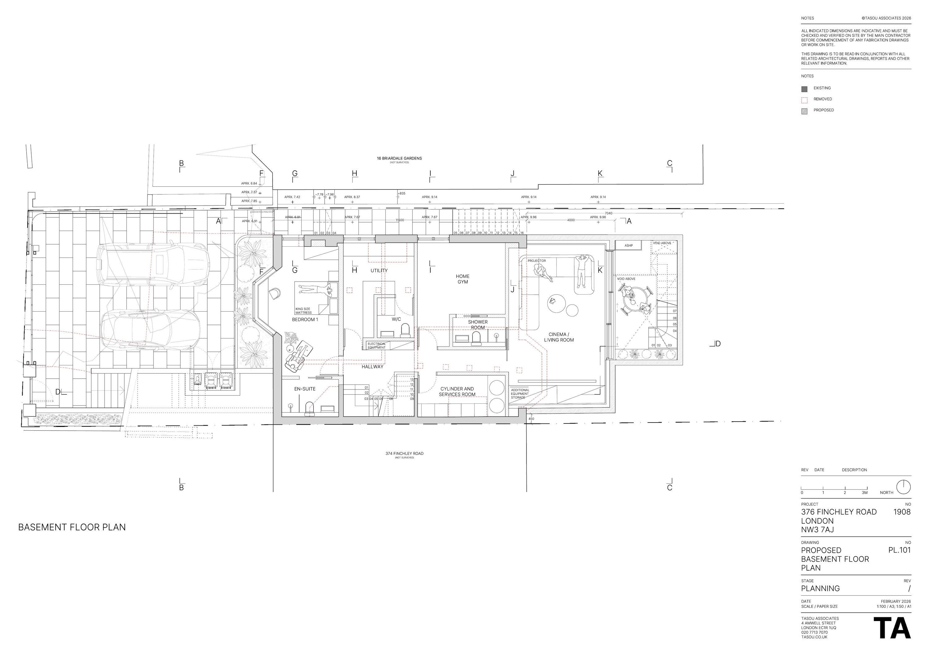
Excavation to form a basement extension with lightwell to rear elevation; erection of a single storey rear extension; construction of a rear dormer and a side hipped dormer extension to the flank elevation; and the provision of new hard and soft landscaping to the front elevation, including a new boundary fence, sliding gates, and a revised staircase arrangement

Documents

Design and Access Statement
Archived · Original link
Existing Drawing
Archived · Original link
OS Extract
Archived · Original link
Proposed Drawing
Archived · Original link
Supporting Documents
Archived · Original link
Supporting Documents
Archived · Original link
Application Form
Archived · Original link

Have your say

Your comment matters. Councils must consider every representation that raises material planning considerations.

Write a comment