← London Borough of Camden

Status

REGISTERED House extension
Received
Last month
New homes
0

Full proposal

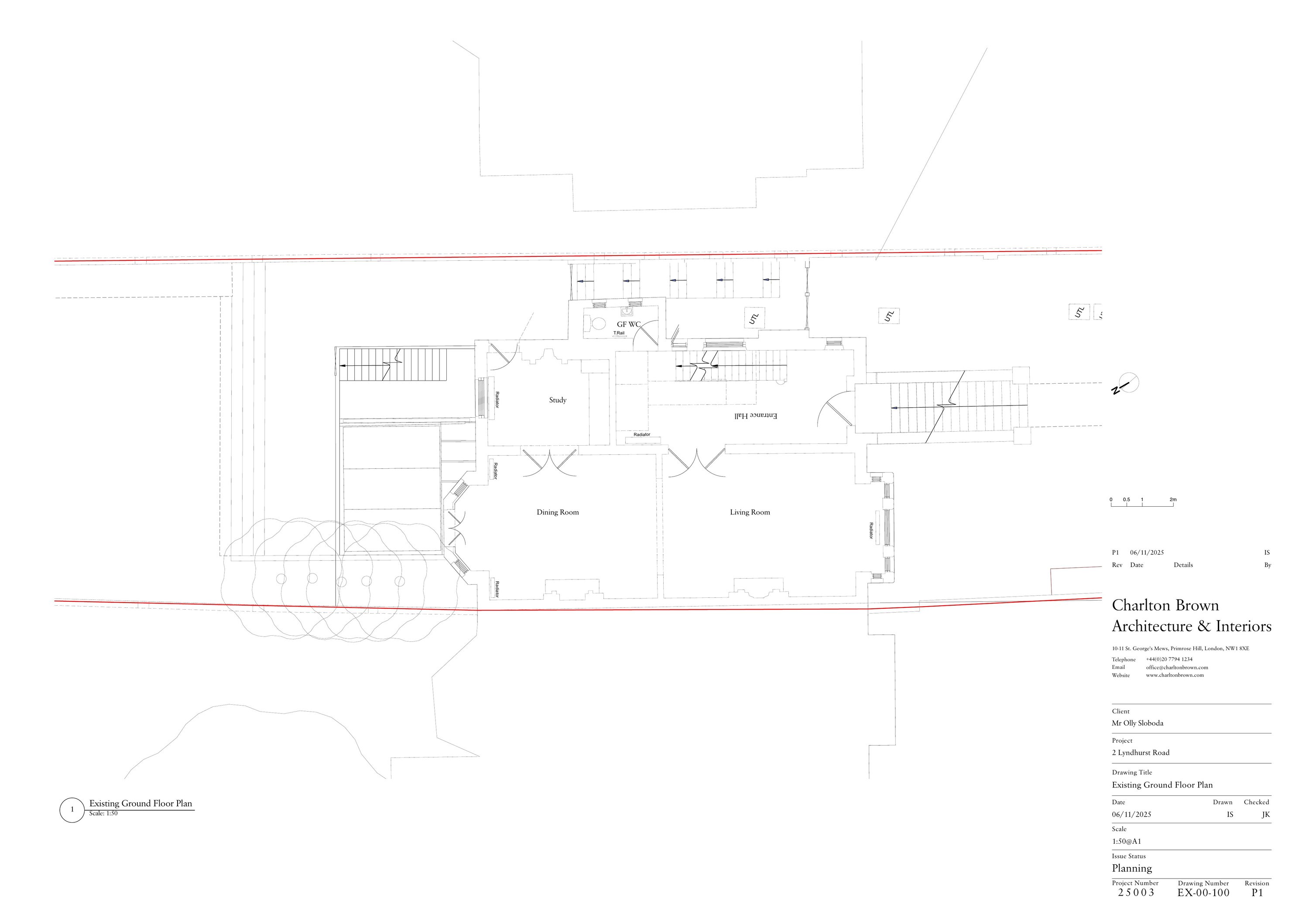
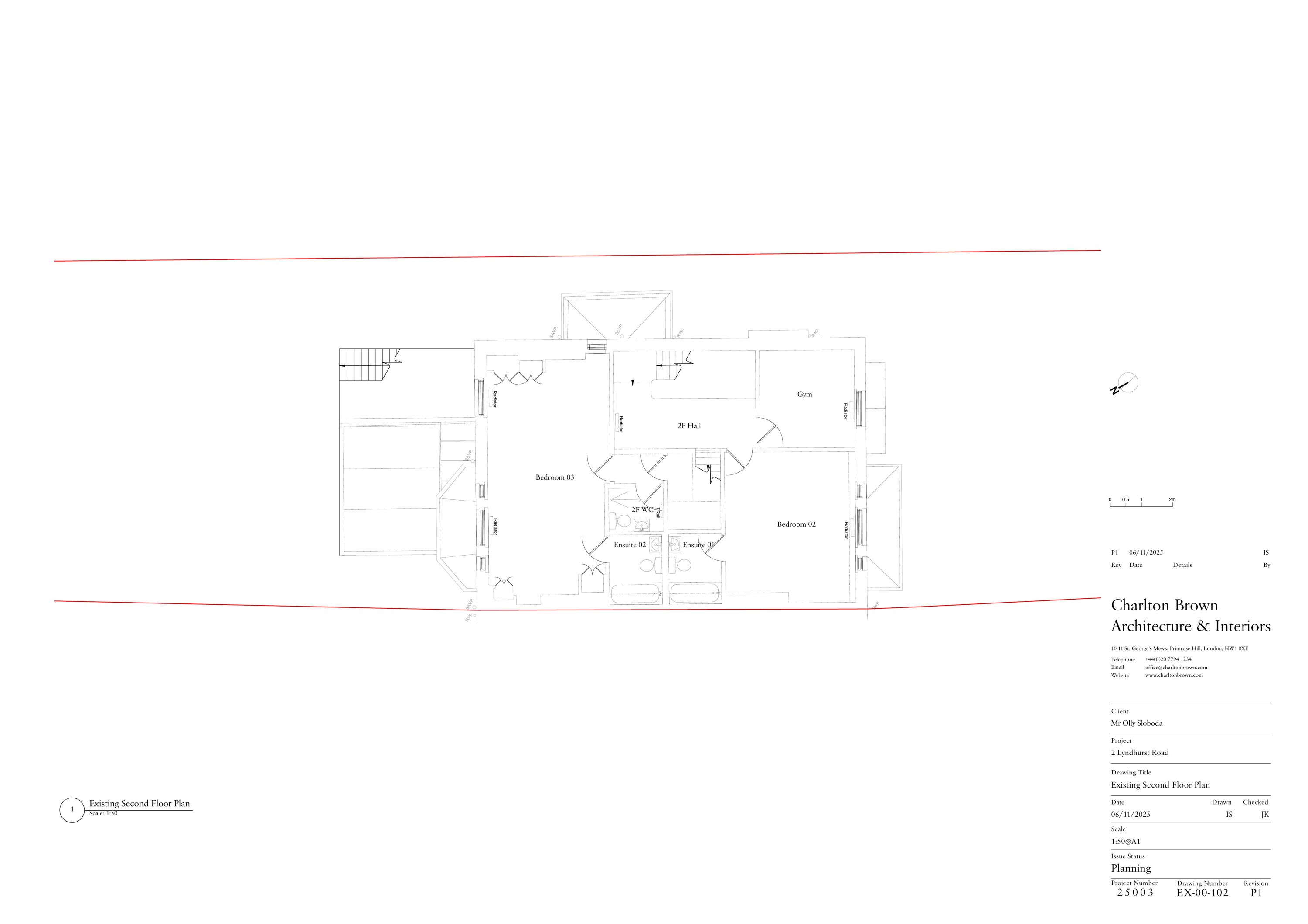
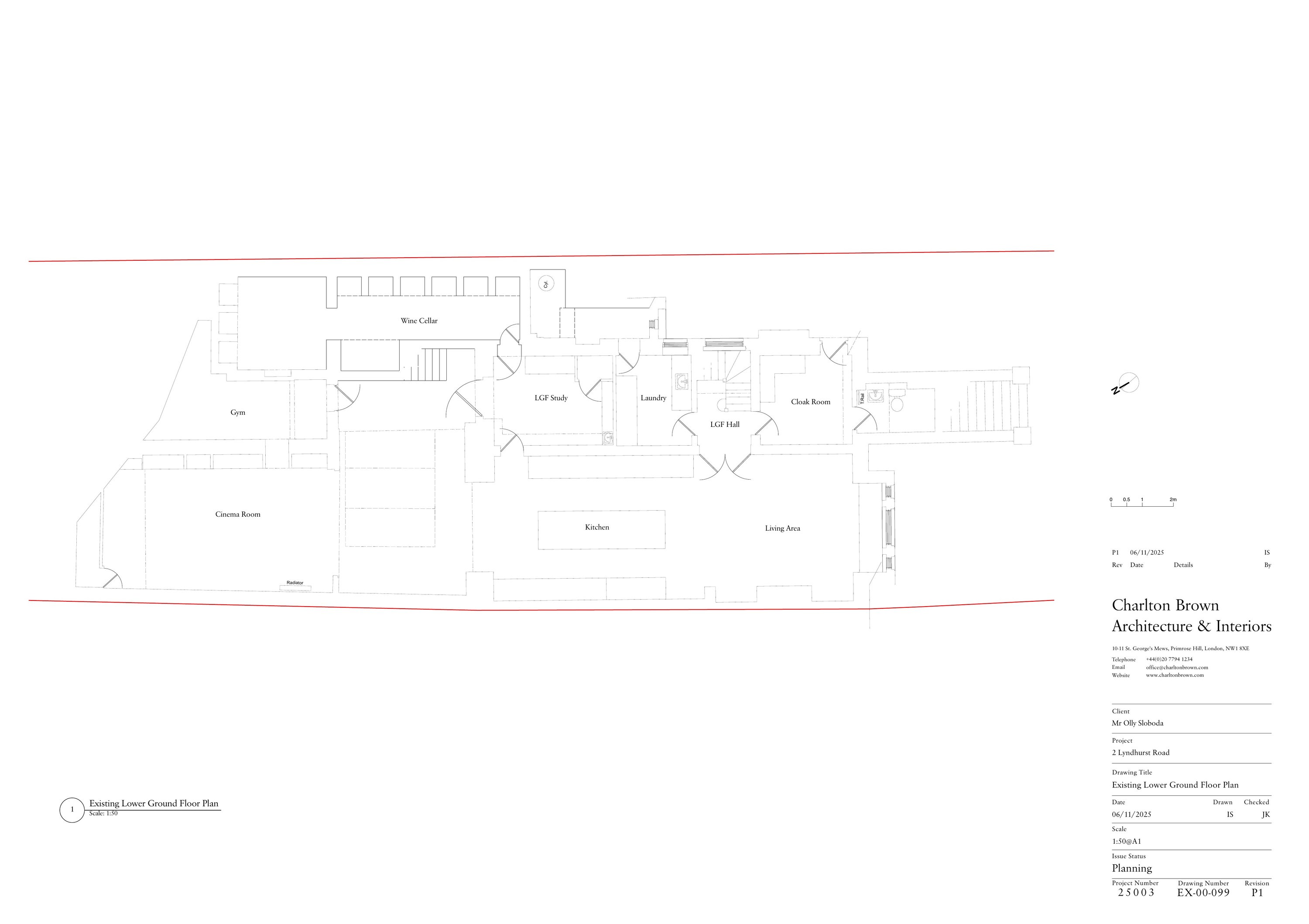
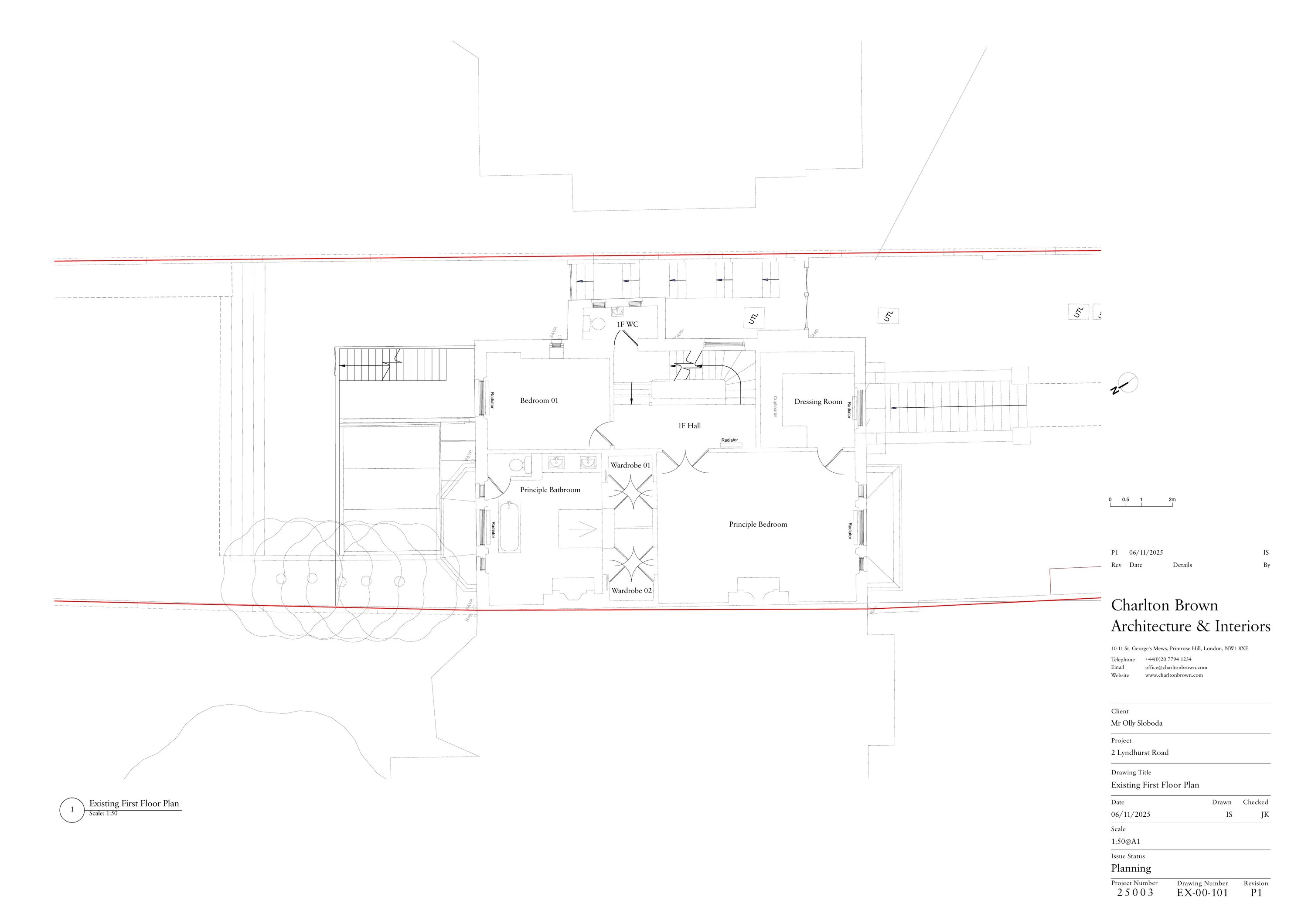
Erection of a single storey rear extension, insertion of two dormers at side/north east elevation, solar panels and inclusion of bin/cycle stores at side lower ground level.

Documents

Proposed Drawing
Archived · Original link
Proposed Drawing
Archived · Original link
Application Form
Archived · Original link
Design and Access Statement
Archived · Original link

Have your say

Your comment matters. Councils must consider every representation that raises material planning considerations.

Write a comment