← London Borough of Camden

Status

REGISTERED House extension
Received
Last month
New homes
0

Full proposal

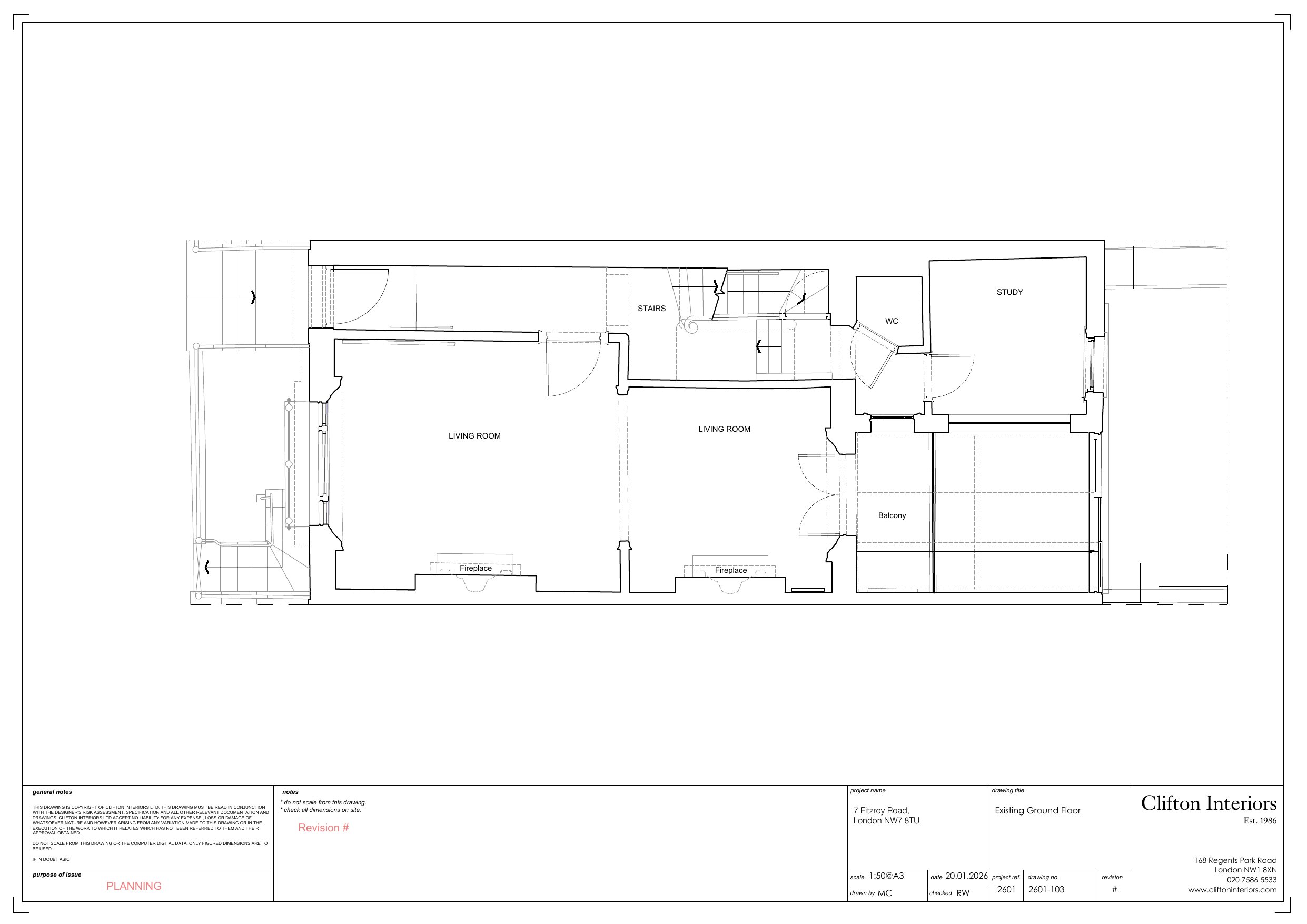
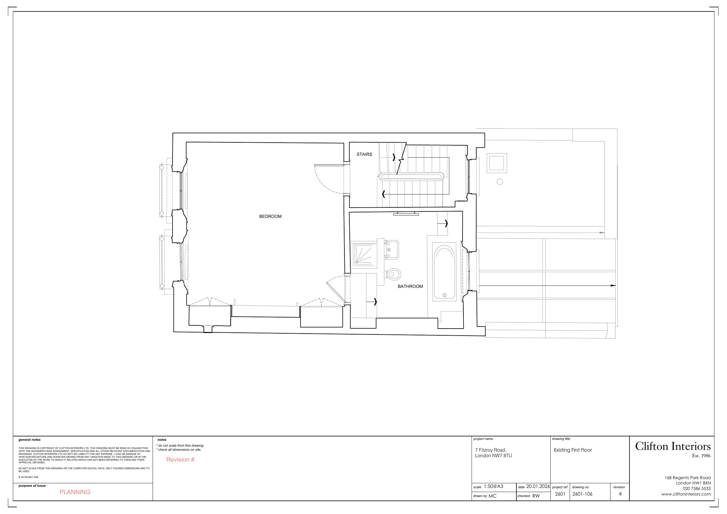
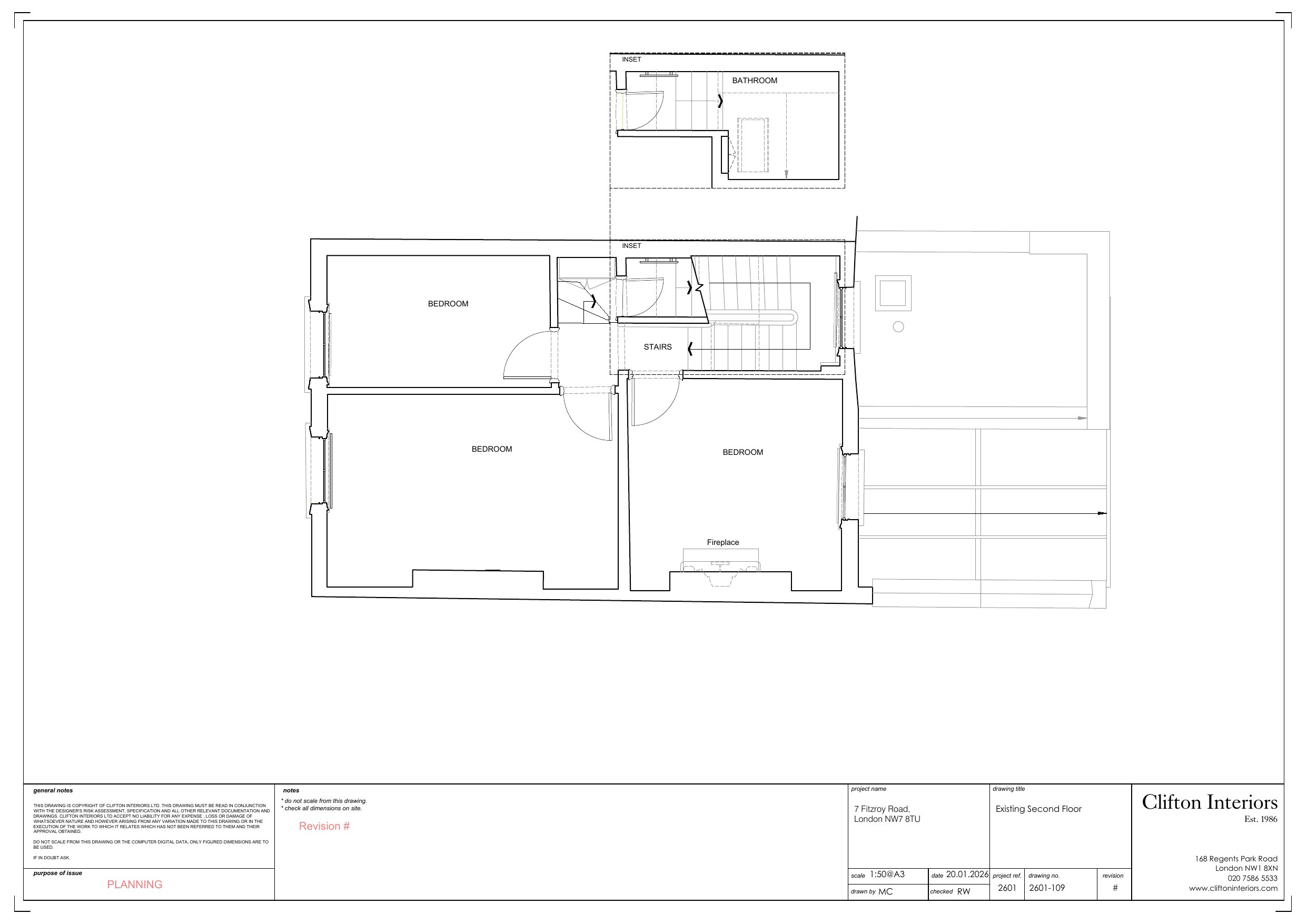
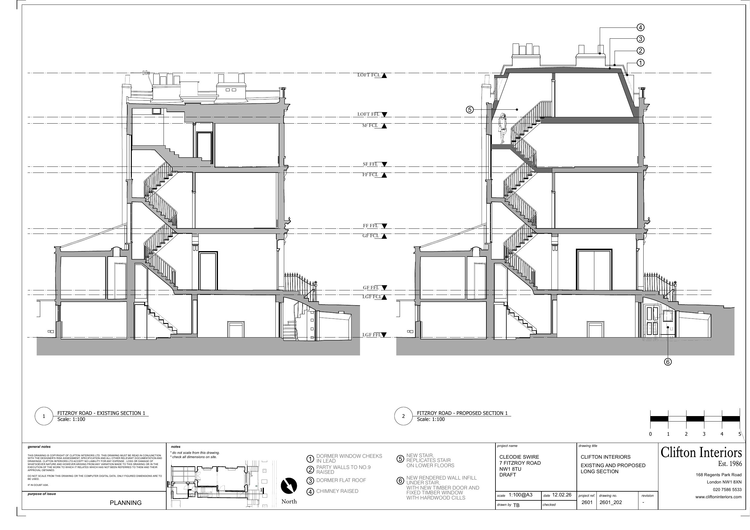
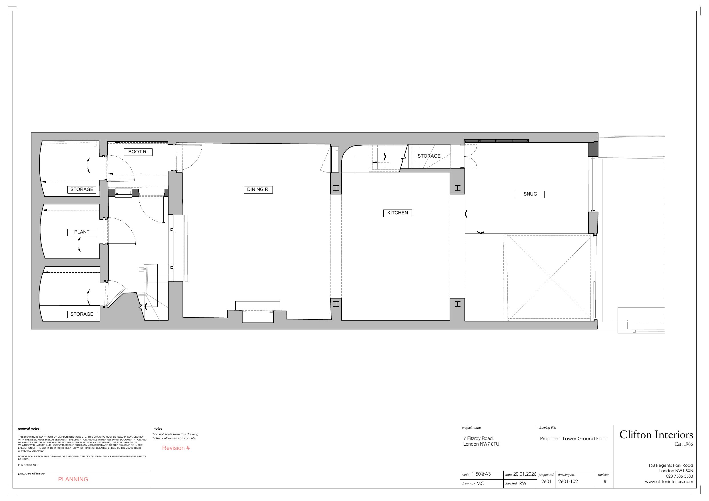
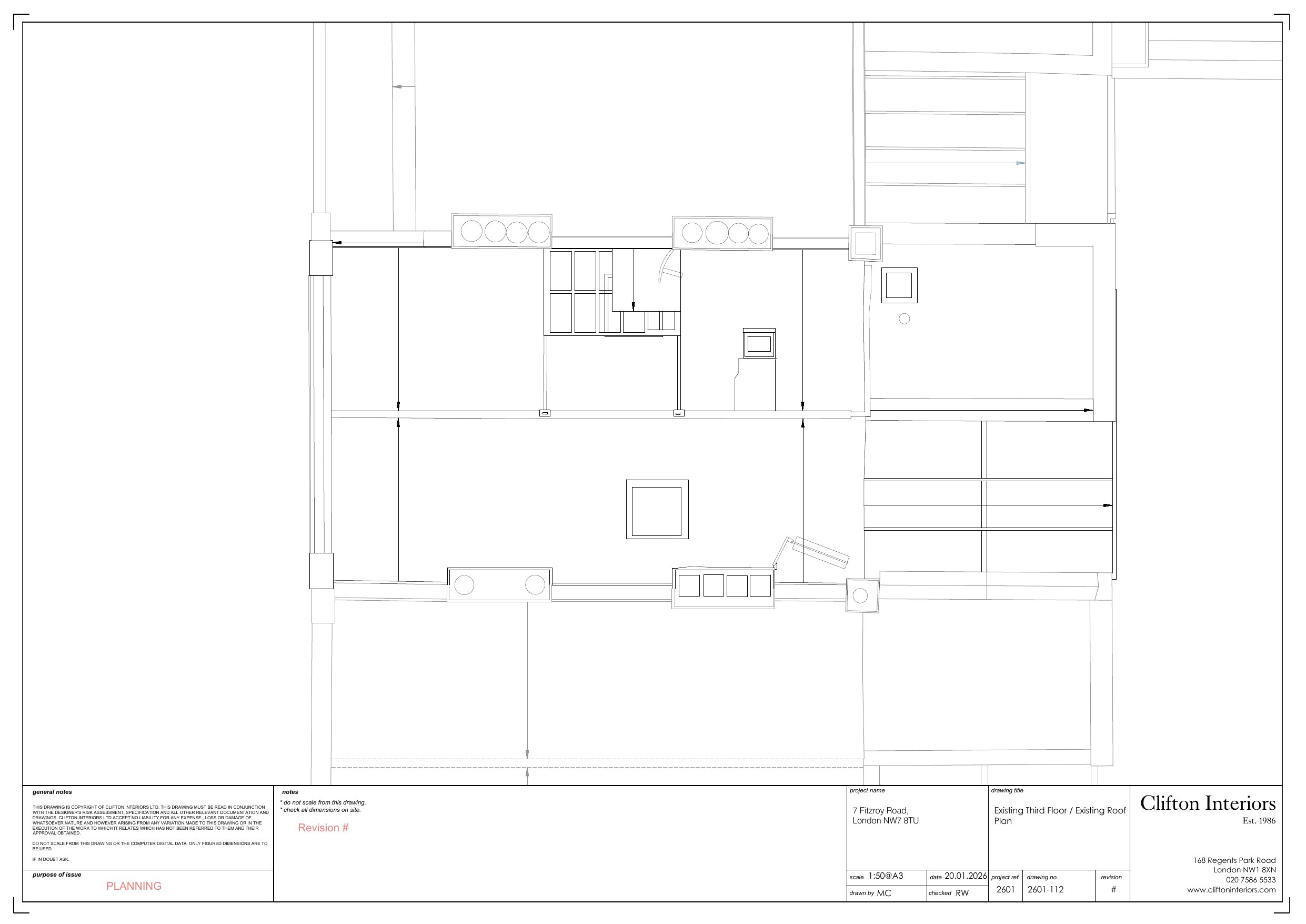
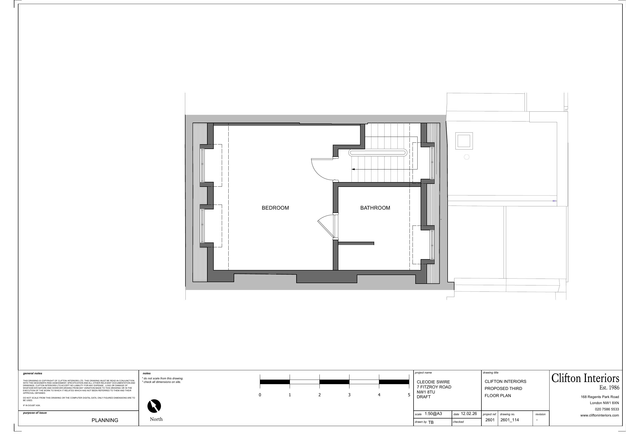
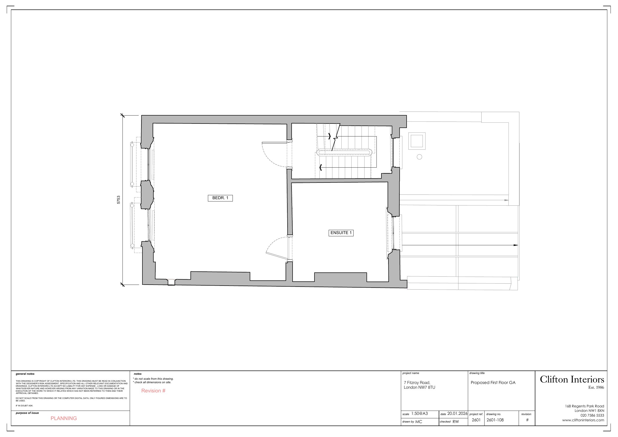
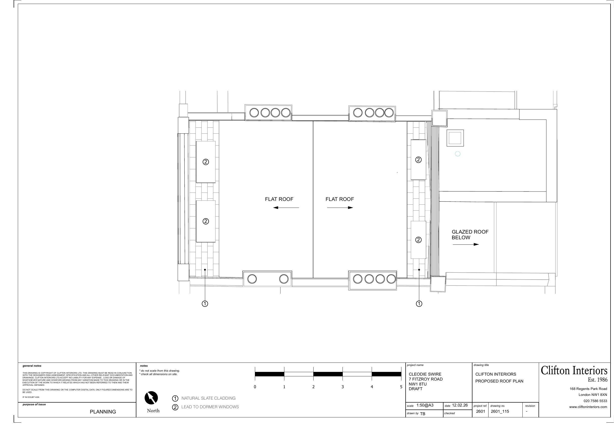
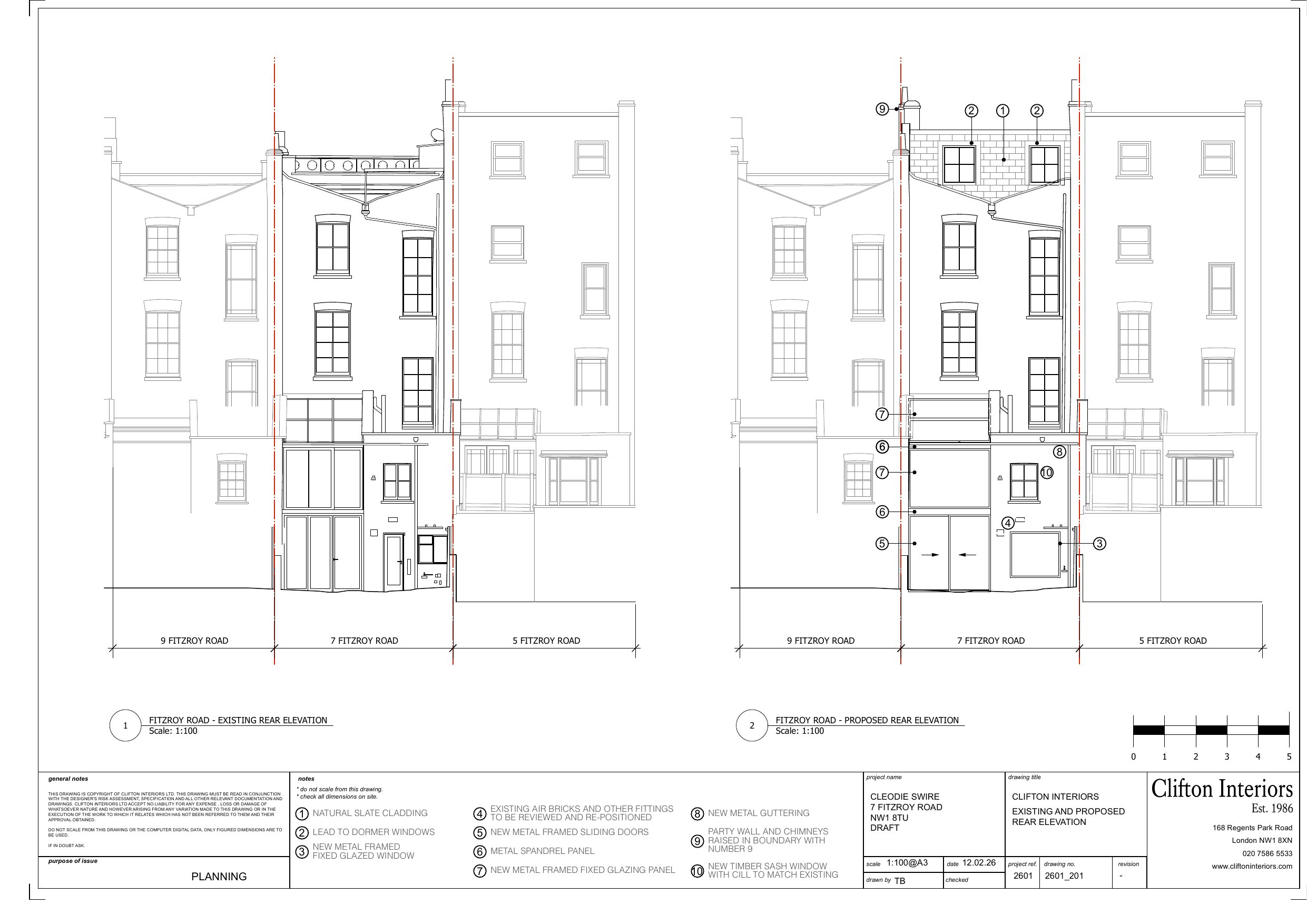
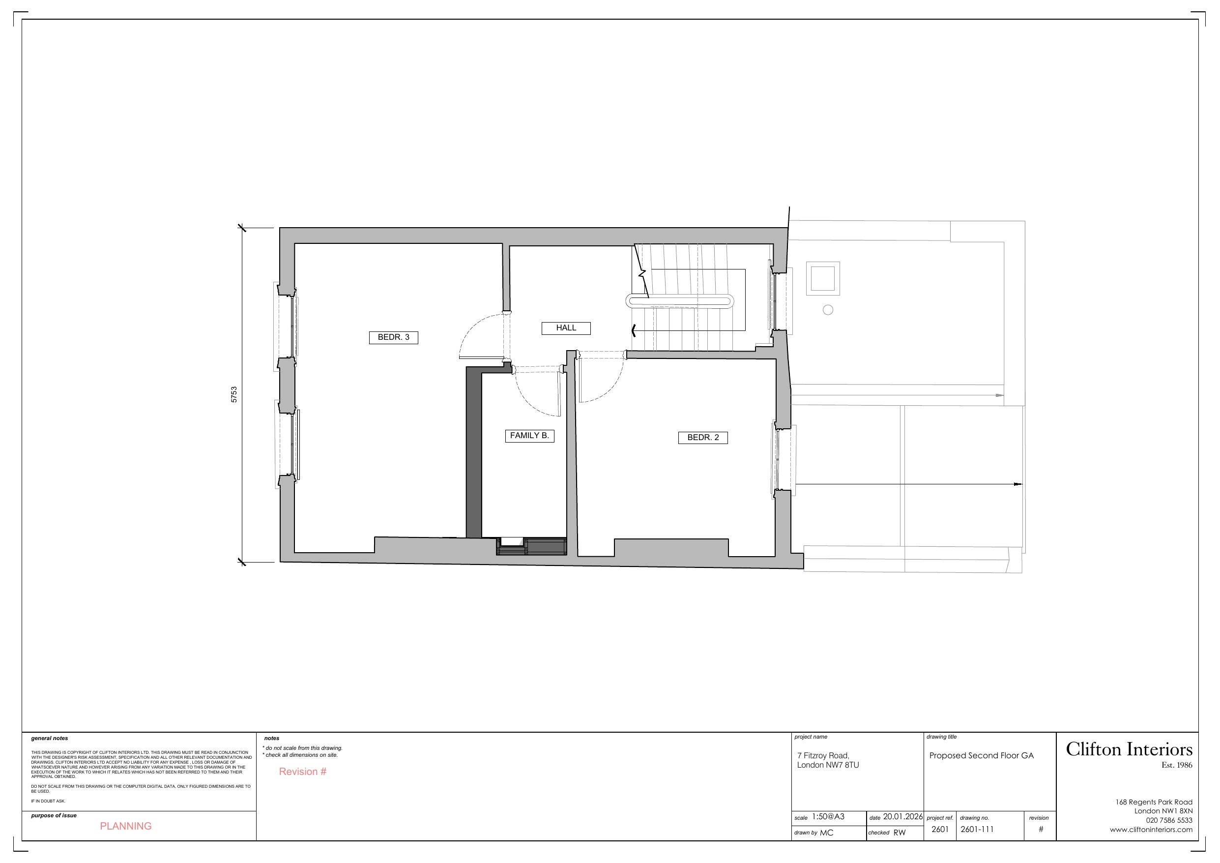
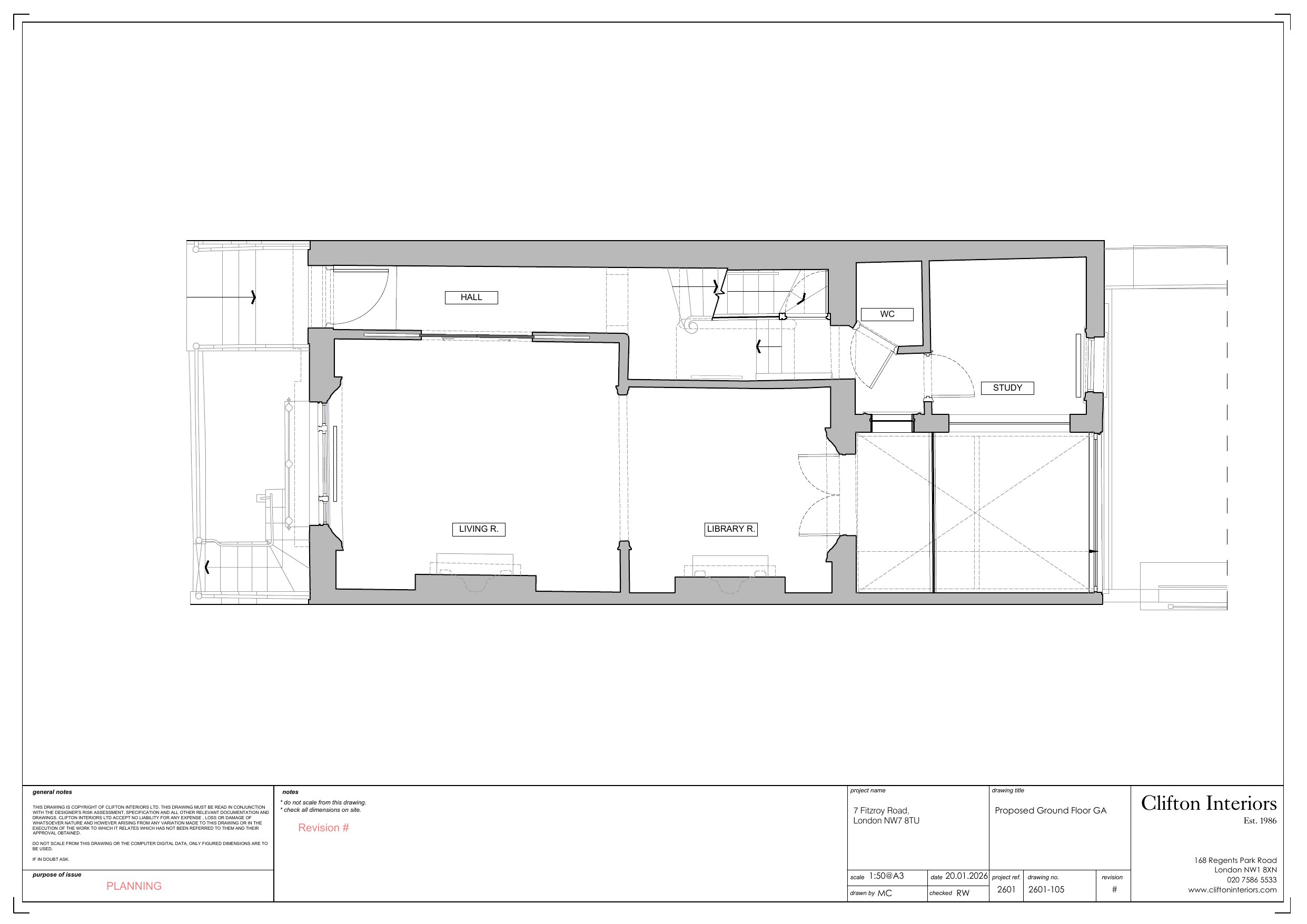
Erection of a mansard roof extension, replacement of existing timber sash windows on front and rear elevations with new double-glazed windows, replacement of existing Crittall window with timber sash, replacement of rear extension glazed infill with new slim aluminium frames including sliding doors, and relocation of lower ground floor entrance door.

Have your say

Your comment matters. Councils must consider every representation that raises material planning considerations.

Write a comment