← Cannock Chase District Council
CH/25/0004
Cannock Chase District Council
Status
Decision made
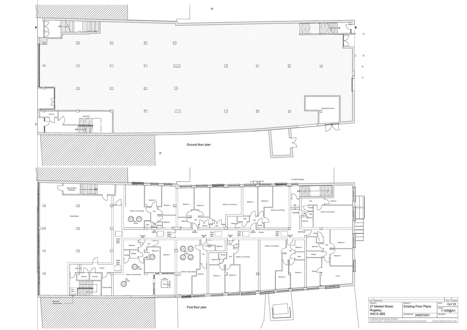
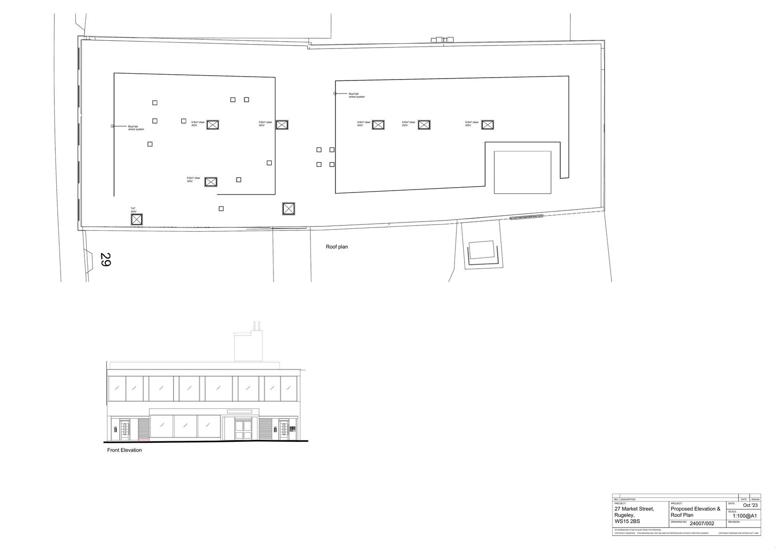
Change of use
Received
09 Jan 2025
New homes
2
Full proposal
Prior approval for the change of use from first floor commercial to 2 x dwellings
Documents
Have your say
Your comment matters. Councils must consider every representation that raises material planning considerations.