← Cannock Chase District Council
CH/25/0013
Cannock Chase District Council
Status
Decision made
Change of use
Received
17 Jan 2025
New homes
3
Full proposal
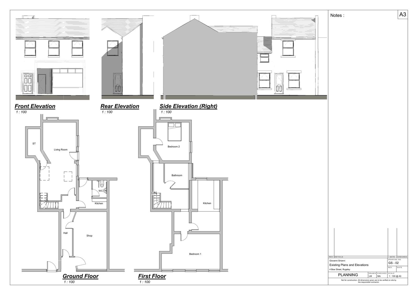
Application for the change of use of C3 residential to a 3 x 1 bed flat and raising of section of the rear roof
Documents
Have your say
Your comment matters. Councils must consider every representation that raises material planning considerations.