← Cannock Chase District Council
CH/25/0086
Cannock Chase District Council
Status
Decision made
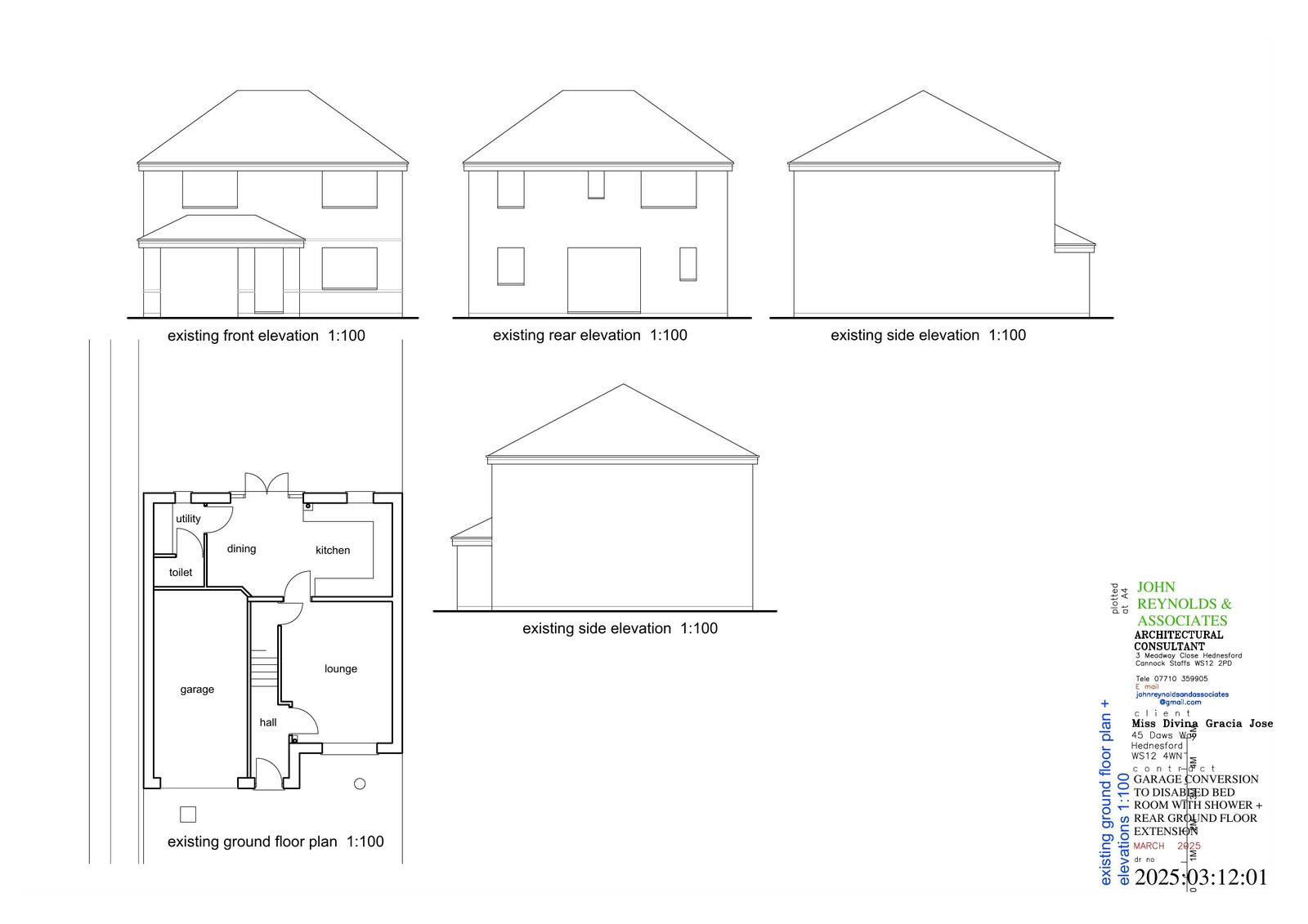
House extension
Received
18 Mar 2025
New homes
0
Full proposal
Garage conversion to habitable room and a single storey rear extension
Documents
Have your say
Your comment matters. Councils must consider every representation that raises material planning considerations.