← Cannock Chase District Council
CH/25/0088
Cannock Chase District Council
Status
Decision made
House extension
Received
24 Mar 2025
New homes
0
Full proposal
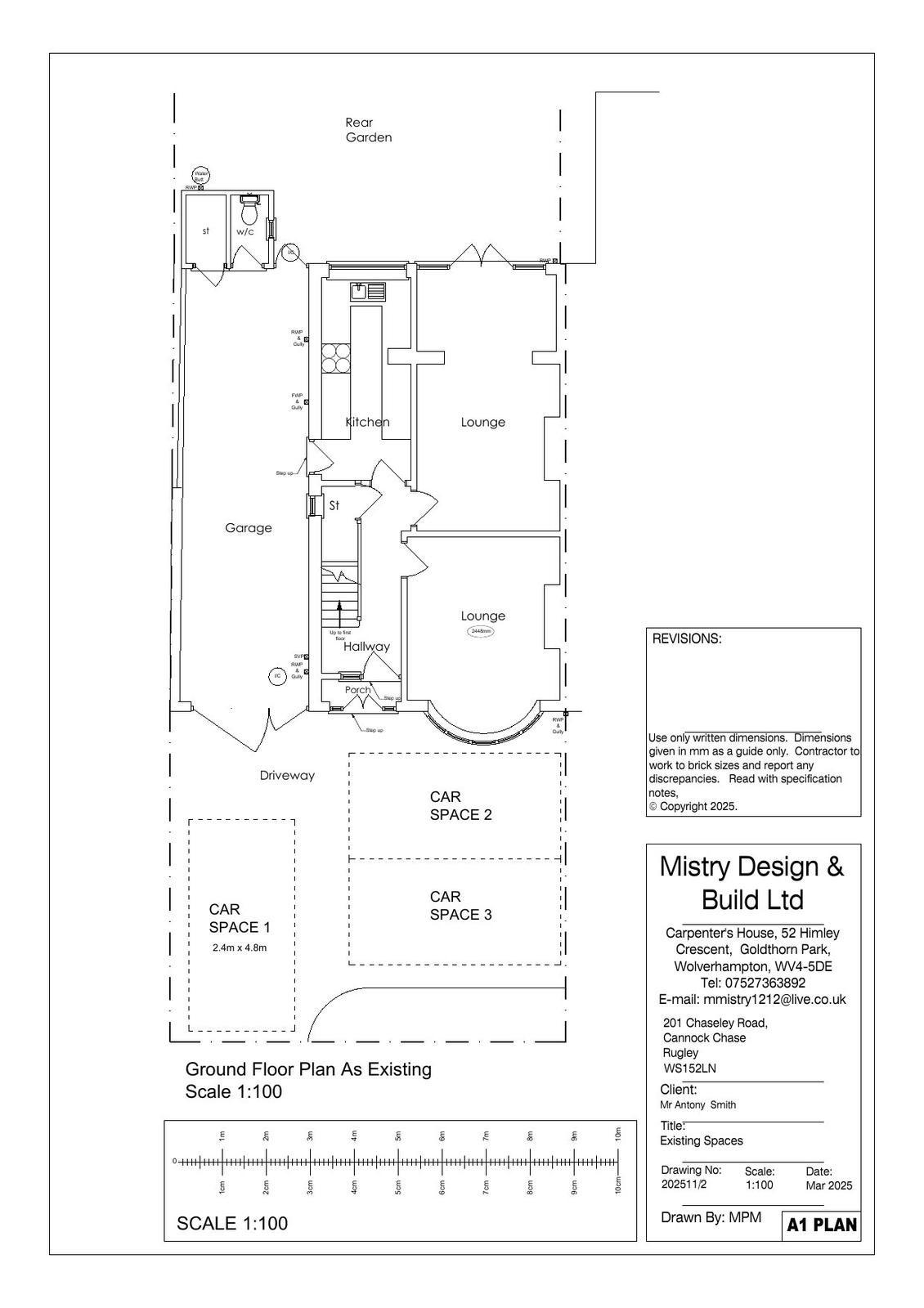
Single storey rear extension with internal alteration and loft conversion with dormers.
Documents
Have your say
Your comment matters. Councils must consider every representation that raises material planning considerations.